ᐅ Architektenentwurf / Umbau eines Einfamilienhaus - Eure Meinung ist gefragt
Erstellt am: 18.03.17 00:45
J
Joschka80J
Joschka8018.03.17 00:45Hallo zusammen,
nachdem wir länger nach einem Bauplatz suchten und nicht fündig wurden bzw. keinen schönen finden konnten, haben wir durch einen Glücksfall ein schönes bestehendes Haus gefunden und wollen dieses ab Herbst noch etwas umbauen, damit es noch besser zu unseren Vorstellungen passt.
Baujahr 1983, gut erhalten, zumindest das was man sieht. Klinkerfassade, unterkellert mit separater Einliegerwohnung, Bad EG im 2016 komplett erneuert, Gasheizung aus dem Jahr 2000, Grundstück 480qm.
Im Wesentlichen wollen wir folgendes ändern:
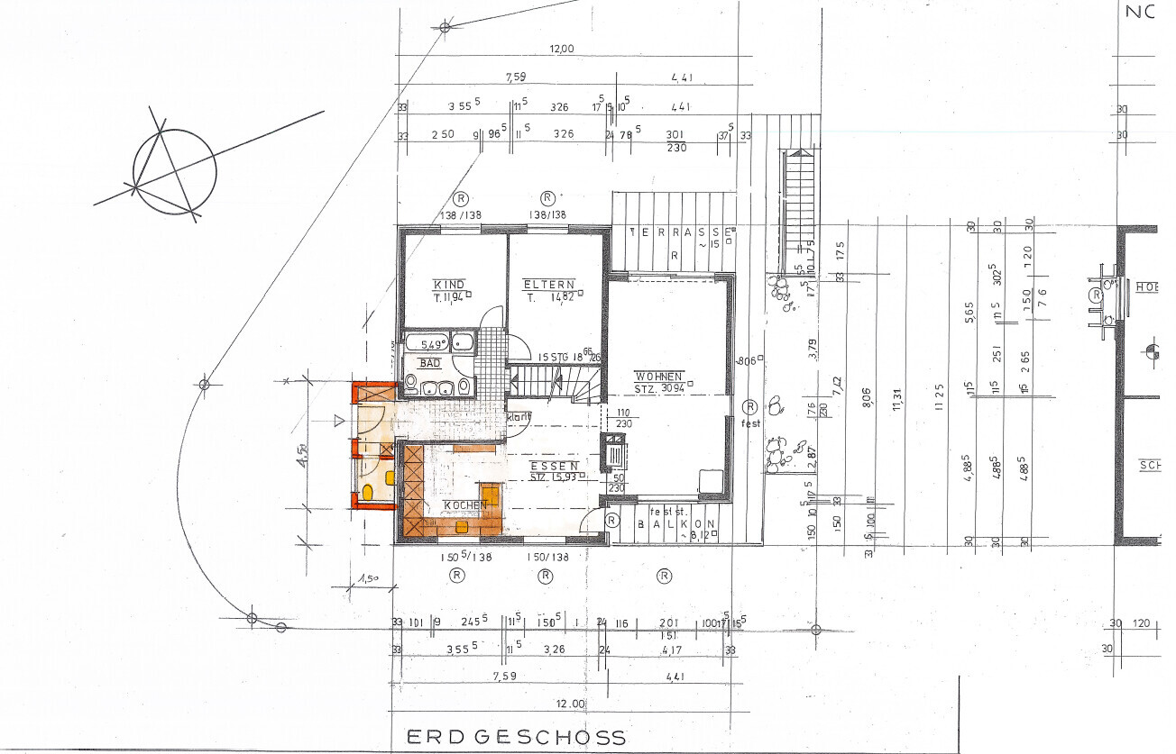
1. Anbau eines Windfangs vor den bisherigen Eingang
2. Die offene Decke über dem ca. 30 qm großen WZ durch einfügen einer Geschossdecke schließen um so im OG zwei weitere Kinderzimmer zu erhalten. Im jetzigen Entwurf ist im OG rechts eine Lounge geplant und links ein weiteres Kinderzimmer. Das werden wir auf jeden Fall exakt andersrum machen.
3. Bestehenden offenen Kamin und tragende Wand zwischen WZ UND EZ abtragen, um mehr Luftigkeit in den Wohnbereich zu bekommen. Der Schornstein soll jedoch weiter genutzt und ein neuer Ofen integriert werden.
4.Das Dach würden wir gerne energetisch Sanieren und neu decken, da es an der einen Seite wegen der 2 neuen Kinderzimmer sowieso erhöht werden muss.
5. Fenster im gesamten Haus, Glasschiebetür im WZ und Haustür austauschen.
6. Einen Wintergarten über dem jetzigen Balkon/ Freisitz errichten, der von WZ und EZ zugänglich ist.
7. Neue Fliesen im kompletten EG.
8. Falls nötig Fußbodenheizung im EG erneuern und in den Anbau erweitern, im OG bestehende Heizkörper durch Fußbodenheizung ersetzen und neue Fußbodenheizung in den beiden Kinderzimmer.
9.Jetzige Küche erweitern und dafür Speisekammer und Gäste-WC "opfern", neues WC dann im Anbau.
10. Neues/erweitertes Bad im OG
Generell sind alle bislang geplanten Maßnahmen mit dem über 30 Jahre alten bebauungsplan vereinbar, gilt der eigentlich nach so langer Zeit noch??
Jetzt zu meinen weiteren Fragen:
Was haltet ihr vom Architektenentwurf?
Was kann man verbessern?
Was haben wir nicht bedacht?
Gibts andere Ideen/ Vorschläge?
Was ist mit Elektro und Wasserleitungen, muss das zwingend auch neu gemacht werden?
Da wir erst drei Architektengespräche hatten, würde ich gerne wissen, was ihr für Erfahrungswerte mit euren Umbauten bei den Kosten gemacht habt?
Kann man ein grobes Budget zu den einzelnen o.g. Punkten schätzen?
Wie ihr seht, Fragen über Fragen.
Besten Dank vorab für alle Meinungen und eine rege Diskussion.
Fragen jederzeit gerne. Und falls ich wichtige Infos zur Einschätzung vergessen habe, bitte Bescheid geben. Danke!

nachdem wir länger nach einem Bauplatz suchten und nicht fündig wurden bzw. keinen schönen finden konnten, haben wir durch einen Glücksfall ein schönes bestehendes Haus gefunden und wollen dieses ab Herbst noch etwas umbauen, damit es noch besser zu unseren Vorstellungen passt.
Baujahr 1983, gut erhalten, zumindest das was man sieht. Klinkerfassade, unterkellert mit separater Einliegerwohnung, Bad EG im 2016 komplett erneuert, Gasheizung aus dem Jahr 2000, Grundstück 480qm.
Im Wesentlichen wollen wir folgendes ändern:
1. Anbau eines Windfangs vor den bisherigen Eingang
2. Die offene Decke über dem ca. 30 qm großen WZ durch einfügen einer Geschossdecke schließen um so im OG zwei weitere Kinderzimmer zu erhalten. Im jetzigen Entwurf ist im OG rechts eine Lounge geplant und links ein weiteres Kinderzimmer. Das werden wir auf jeden Fall exakt andersrum machen.
3. Bestehenden offenen Kamin und tragende Wand zwischen WZ UND EZ abtragen, um mehr Luftigkeit in den Wohnbereich zu bekommen. Der Schornstein soll jedoch weiter genutzt und ein neuer Ofen integriert werden.
4.Das Dach würden wir gerne energetisch Sanieren und neu decken, da es an der einen Seite wegen der 2 neuen Kinderzimmer sowieso erhöht werden muss.
5. Fenster im gesamten Haus, Glasschiebetür im WZ und Haustür austauschen.
6. Einen Wintergarten über dem jetzigen Balkon/ Freisitz errichten, der von WZ und EZ zugänglich ist.
7. Neue Fliesen im kompletten EG.
8. Falls nötig Fußbodenheizung im EG erneuern und in den Anbau erweitern, im OG bestehende Heizkörper durch Fußbodenheizung ersetzen und neue Fußbodenheizung in den beiden Kinderzimmer.
9.Jetzige Küche erweitern und dafür Speisekammer und Gäste-WC "opfern", neues WC dann im Anbau.
10. Neues/erweitertes Bad im OG
Generell sind alle bislang geplanten Maßnahmen mit dem über 30 Jahre alten bebauungsplan vereinbar, gilt der eigentlich nach so langer Zeit noch??
Jetzt zu meinen weiteren Fragen:
Was haltet ihr vom Architektenentwurf?
Was kann man verbessern?
Was haben wir nicht bedacht?
Gibts andere Ideen/ Vorschläge?
Was ist mit Elektro und Wasserleitungen, muss das zwingend auch neu gemacht werden?
Da wir erst drei Architektengespräche hatten, würde ich gerne wissen, was ihr für Erfahrungswerte mit euren Umbauten bei den Kosten gemacht habt?
Kann man ein grobes Budget zu den einzelnen o.g. Punkten schätzen?
Wie ihr seht, Fragen über Fragen.
Besten Dank vorab für alle Meinungen und eine rege Diskussion.
Fragen jederzeit gerne. Und falls ich wichtige Infos zur Einschätzung vergessen habe, bitte Bescheid geben. Danke!
Na, erstmal Glückwunsch zum Haus - von 1983 ist das ja technisch noch ein recht aktuelles Haus, mit Klinkervorsatzschale sogar etwa auf heutigem Niveau. Im Dach dürfte wohl Glaswolle zwischen den Sparren liegen.
Zu den Fenstern hast du nichts geschrieben, zum Baujahr und Klinker vermute ich mal Tropenholz isolierverglast, aber natürlich noch nicht dreifach. Dazu Fliesen- oder Steinzeugböden, ansehnlich, evtl. farblich nicht mehr ganz aktuell. Wandfliesen schon neuere Formate, 20/20 oder größer.
Wasserleitungen dürften noch fit sein, da spielt auch der örtliche Kalkgehalt ein bißchen mit hinein. Elektro auch noch gut, aber von der Zahl der Steckdosen wohl aus heutiger Sicht erweiterungsbedürftig. Dabei würde ich immer auch allerlei weitere Kabel danebenlegen, für Steueradern, moderne Häuser werden ja zunehmend "smarter".
Zu Kosten muß der Architekt am besten etwas sagen können. Da spielen viele Faktoren mit hinein. Fußbodenheizung erneuern heißt auch Ersatz der Bodenfliesen, auch wenn sie noch gut sind. Zimmertüren sind auch nicht ganz billig. Damals waren sie raumhoch modern, nicht selten in schwarz, das gefällt manchen Hauskäufern heute nicht mehr so recht. In Bädern kann man viel Geld versenken. Bodengleiche Duschen waren damals noch nicht üblich; die Keramik in curry, moosgrün oder bahamabeige findet heute nur noch wenige Fans ...
https://www.instagram.com/11antgmxde/
https://www.linkedin.com/company/bauen-jetzt/
Zu den Fenstern hast du nichts geschrieben, zum Baujahr und Klinker vermute ich mal Tropenholz isolierverglast, aber natürlich noch nicht dreifach. Dazu Fliesen- oder Steinzeugböden, ansehnlich, evtl. farblich nicht mehr ganz aktuell. Wandfliesen schon neuere Formate, 20/20 oder größer.
Wasserleitungen dürften noch fit sein, da spielt auch der örtliche Kalkgehalt ein bißchen mit hinein. Elektro auch noch gut, aber von der Zahl der Steckdosen wohl aus heutiger Sicht erweiterungsbedürftig. Dabei würde ich immer auch allerlei weitere Kabel danebenlegen, für Steueradern, moderne Häuser werden ja zunehmend "smarter".
Zu Kosten muß der Architekt am besten etwas sagen können. Da spielen viele Faktoren mit hinein. Fußbodenheizung erneuern heißt auch Ersatz der Bodenfliesen, auch wenn sie noch gut sind. Zimmertüren sind auch nicht ganz billig. Damals waren sie raumhoch modern, nicht selten in schwarz, das gefällt manchen Hauskäufern heute nicht mehr so recht. In Bädern kann man viel Geld versenken. Bodengleiche Duschen waren damals noch nicht üblich; die Keramik in curry, moosgrün oder bahamabeige findet heute nur noch wenige Fans ...
https://www.instagram.com/11antgmxde/
https://www.linkedin.com/company/bauen-jetzt/
Deine Fragen kann ich nicht beantworten, aber ich finde wenig Stauraum bei 6 Personen oder habt ihr einen Keller?
Würde den Anbau größer gestalten, so dass mehr Platz für die Garderobe ist. Im Zweifel müssen sich 6 Personen dort Jacken und Schuhe anziehen können. Ebenfalls sollte die Eingangstüre noch zu öffnen gehen.
Würde den Anbau größer gestalten, so dass mehr Platz für die Garderobe ist. Im Zweifel müssen sich 6 Personen dort Jacken und Schuhe anziehen können. Ebenfalls sollte die Eingangstüre noch zu öffnen gehen.
J
Joschka8018.03.17 10:24Erstmal vielen Dank für die ersten Anmerkungen. Die Fenster sind aus Kunststoff und isolierverglast. Und ja die Bodenfliesen sind noch ok, gefallen uns optisch aber gar nicht.
Der Tipp mit den Steckdosen und neuen Leitungen ist gut, danke.
Übrigens das Haus ist unterkellert (45qm Nzfl.+ 21 qm Garage sowie Einliegerwohnung mit 45qm)
Anbau vergrößern hatten wir auch schon drangedacht, da wir Stauraum für % brauchen
Gibt's weitere Anmerkungen zur Raumaufteilung und generell dem Grundriss??
Der Tipp mit den Steckdosen und neuen Leitungen ist gut, danke.
Übrigens das Haus ist unterkellert (45qm Nzfl.+ 21 qm Garage sowie Einliegerwohnung mit 45qm)
Anbau vergrößern hatten wir auch schon drangedacht, da wir Stauraum für % brauchen
Gibt's weitere Anmerkungen zur Raumaufteilung und generell dem Grundriss??
Joschka80 schrieb:
Die Fenster sind aus Kunststoff und isolierverglast.Je nach dem, von wann die Fenster sind, kann man sie behalten und die Farbe mit Folierung ändern. Sind sie zwei- oder dreifachverglast ?Joschka80 schrieb:
die Bodenfliesen sind noch ok, gefallen uns optisch aber gar nicht.Bezieht sich das auf die Farbe und die Struktur und Größe gefällt, läßt sich auch da mit Beschichtung arbeiten.
Joschka80 schrieb:
Gibt's weitere Anmerkungen zur Raumaufteilung und generell dem Grundriss??Nein, dazu wissen wir zu wenig. Der Bebauungsplan fehlt uns (Du fragtest auch nach dessen Gültigkeit: unbefristet bis auf Widerruf, es gilt stets die aktuellste Version), wir sehen zu wenig vom Grundstück; und was Euch gefällt, können wir erst recht nicht erahnen.
Viel zu Reden gibt es ja auch nicht mehr, das Haus ist längst gebaut. Daß es mit Um- und Anbauten im überschaubaren Rahmen passend zu machen ist, müßt Ihr beim Kauf schon berücksichtigt haben. Bestand kann man immer nur maßvoll korrigieren, wenn es spürbar günstiger bleiben soll als kompletter Neubau. Was das Haus teurer ist als das nackte Grundstück, das muß es m.E. auch wert sein, sonst kaufte man besser ein anderes.
https://www.instagram.com/11antgmxde/
https://www.linkedin.com/company/bauen-jetzt/
J
Joschka8018.03.17 17:00Hallo,
die Fenster sind zweifach verglast. Die Fliesen gefallen uns weder farblich noch von der Größe.
Generell wollen wir den Charakter Hauses beibehalten und situativ einige Änderungen (Anbau, Aufstockung mit 2 neuen Kinderzimmer) vornehmen. Ich wollte eigentlich nur wissen, ob noch jemand Ideen für das OG hat, da wir dort relativ viel aufgrund von Trcockenabu ändern können. Unser Budget liegt all in bei 300.000,- EUR für den Ausbau.
die Fenster sind zweifach verglast. Die Fliesen gefallen uns weder farblich noch von der Größe.
Generell wollen wir den Charakter Hauses beibehalten und situativ einige Änderungen (Anbau, Aufstockung mit 2 neuen Kinderzimmer) vornehmen. Ich wollte eigentlich nur wissen, ob noch jemand Ideen für das OG hat, da wir dort relativ viel aufgrund von Trcockenabu ändern können. Unser Budget liegt all in bei 300.000,- EUR für den Ausbau.
Ähnliche Themen