Hallo Leute,
unser Bauträger hat die Rohre für die Fußbodenheizung in die Bodenplatte unter den Stahl gelegt.
Über den Rohren sind somit noch grob 25-30 cm Beton/Stahl.
Jetzt ist da aber irgendwas falsch gelaufen und die Rohre für die Fußbodenheizung kommen nicht im Haustechnikraum aus dem Boden, sondern aus dem Ankleidezimmer.
Der Architekt meinte, man müsste die Wand im Ankleidezimmer etwas vorziehen und die Rohre in der Wand laufen lassen. Das heißt aber, dass das Ankleidezimmer locker mal 20 cm kleiner wird.
Kann man die Bodenplatte aufstämmen um die Rohre unter dem Holzständer in den Haustechnikraum Verlegen zu lassen?
Was würdet ihr an meiner Stelle machen?
Gruß
Tito
unser Bauträger hat die Rohre für die Fußbodenheizung in die Bodenplatte unter den Stahl gelegt.
Über den Rohren sind somit noch grob 25-30 cm Beton/Stahl.
Jetzt ist da aber irgendwas falsch gelaufen und die Rohre für die Fußbodenheizung kommen nicht im Haustechnikraum aus dem Boden, sondern aus dem Ankleidezimmer.
Der Architekt meinte, man müsste die Wand im Ankleidezimmer etwas vorziehen und die Rohre in der Wand laufen lassen. Das heißt aber, dass das Ankleidezimmer locker mal 20 cm kleiner wird.
Kann man die Bodenplatte aufstämmen um die Rohre unter dem Holzständer in den Haustechnikraum Verlegen zu lassen?
Was würdet ihr an meiner Stelle machen?
Gruß
Tito
B
Bieber081531.01.17 14:57Schwer zu sagen, ohne Kenntnis der weiteren Umstände (Grundriss? Heizungsplanung?). Was sagt der Bauträger dazu? Welche Rolle spielt der Architekt (Angestellter des BT)? Ist eine 20 cm kleinere Ankleide noch nutzbar?
Erstmal auf Nachbesserung bestehen, gucken, was dann kommt ...
Erstmal auf Nachbesserung bestehen, gucken, was dann kommt ...
Hallo,
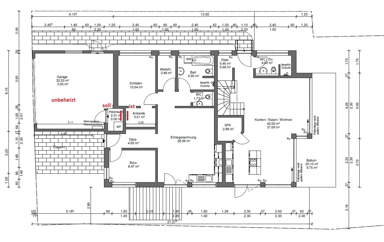
im Anhang ist der Grundriss mit dem soll- und dem ist-Zustand.
Die Garage ist unbeheizt.
Den Heizungsplan müsste ich mir vom Bauträger geben lassen.
Der Architekt ist angestellt beim Bauträger.
Die Ankleide ist mit 2,28 m Breite schon relativ eng. Am Ende wäre sie nur 2m breit, was wirklich sehr eng ist.
Die Frage ist, ob es technisch machbar wäre die Rohre zu verlegen.
Laut Architekt ist das nicht möglich.
Der Geschäftsführer jedoch meinte, man müsse schauen ob man den Boden da aufstemmen könne.
Grüße
Tito



im Anhang ist der Grundriss mit dem soll- und dem ist-Zustand.
Die Garage ist unbeheizt.
Den Heizungsplan müsste ich mir vom Bauträger geben lassen.
Der Architekt ist angestellt beim Bauträger.
Die Ankleide ist mit 2,28 m Breite schon relativ eng. Am Ende wäre sie nur 2m breit, was wirklich sehr eng ist.
Die Frage ist, ob es technisch machbar wäre die Rohre zu verlegen.
Laut Architekt ist das nicht möglich.
Der Geschäftsführer jedoch meinte, man müsse schauen ob man den Boden da aufstemmen könne.
Grüße
Tito
B
Bieber081502.02.17 11:32titoz schrieb:
im Anhang ist der Grundriss mit dem soll- und dem ist-Zustand.Vermute ich richtig, dass die Leitungen eher zu kurz als zu lang sind? Sie kommen im Mittel vermutlich von planrechts, sollten im Technikraum enden. Jemand hat sich vertan, nun enden sie schon vorher. titoz schrieb:
Laut Architekt ist das nicht möglich. Es ist eine Frage von Kosten und Zeit.Ich würde auf Nachbesserung bestehen. Technisch ist das sicher möglich. Die Details musst Du aber nicht festlegen (solltest Du auch nicht). Sage freundlich aber bestimmt, dass Du den Soll-Zustand wünschst. Bitte um einen Lösungsvorschlag innerhalb einer angemessenen Frist.
Soweit der zivilisierte Weg, alles andere dann mit Anwalt oder Du verzichtest auf den Soll-Zustand.
Mir scheint, da hat jemand die Zwischenwand als Bezug genommen und dann rechts und links velwechsert. Und offenbar auch oben und unten, denn wie soll eine Fundamentarmierungsheizung als Fußbodenheizung wirken ?
Ich würde mich mit dem Unternehmer über den Wert der bisherigen Leistungen inkl. Kosten des Rückbaus von dem Blödsinn vergleichen, und einen Profi das Haus fertig machen lassen. Sonst ist der Unternehmer am Ende von den Gewährleistungsansprüchen eines anderen Bauherren schon pleite, ehe Du Richtfest feierst.
Hat der Unternehmer die Rohre womöglich "aus Sicherheitsgründen" so tief gelegt, damit er sie beim Befestigen der Schwellen nicht selber anbohrt ?
https://www.instagram.com/11antgmxde/
https://www.linkedin.com/company/bauen-jetzt/
Ich würde mich mit dem Unternehmer über den Wert der bisherigen Leistungen inkl. Kosten des Rückbaus von dem Blödsinn vergleichen, und einen Profi das Haus fertig machen lassen. Sonst ist der Unternehmer am Ende von den Gewährleistungsansprüchen eines anderen Bauherren schon pleite, ehe Du Richtfest feierst.
Hat der Unternehmer die Rohre womöglich "aus Sicherheitsgründen" so tief gelegt, damit er sie beim Befestigen der Schwellen nicht selber anbohrt ?
https://www.instagram.com/11antgmxde/
https://www.linkedin.com/company/bauen-jetzt/
naja gleich den ganzen vertrag wegen der sache beenden ist doch etwas weit geschossen. insgesamt stehts du ja auf viele kleine zimmer. die zimmerbreite sollte doch eher so passen, das man dort einen vorher festgelegten schrank reinbekommt. typisches maß sind 1meter breite stücke. also müßte die abstellkammer so 210cm rohbaubreite schon haben (sind so 205 am ende mit jeweils 1finger luftspalt am rand). mit 199cm breite bekommste nur sonderlösungen rein und es wird gelinde gesagt scheiße.
wie schon gesagt waren die leitungen bestimmt nen tick zu kurz und man suchte schnell nach einer billigen pfuschlösung. die probleme baden dann andere später eventuell aus.
wie schon gesagt waren die leitungen bestimmt nen tick zu kurz und man suchte schnell nach einer billigen pfuschlösung. die probleme baden dann andere später eventuell aus.
Ähnliche Themen