Anbau eines 60er Jahre Hauses und energetischer Sanierung

5,00 Stern(e) 4 Votes
Zuletzt aktualisiert 28.11.2025
Sie befinden sich auf der Seite 2 der Diskussion zum Thema: Anbau eines 60er Jahre Hauses und energetischer Sanierung
>> Zum 1. Beitrag <<

11ant

11ant

Zum vermieten ist es ehrlich gesagt nicht gedacht
Aber wenn Du mal umziehen willst bevor es abbezahlt ist, dann wäre ein Mieter schon hilfreich. Und den juckt es nicht, ob es nach Deinem Geschmack o.k. ist, vom Schlafzimmer durchs Esszimmer auf den Balkon zu gehen. Sondern der findet eine andere Wohnung dann schöner geschnitten.

Insofern würde ich auch für "nur Eigennutzung" keine nur mäßig attraktive Immobilie "erzeugen" wollen.
 
E

El_Burrito

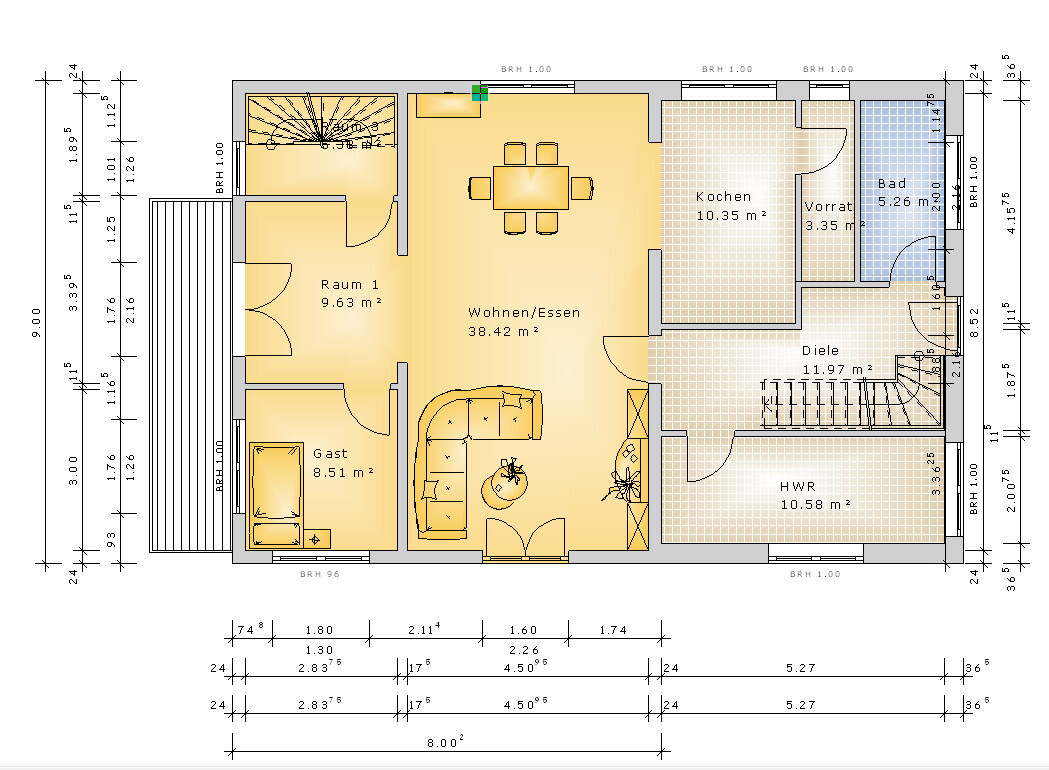
Beim zweiten Entwurf (OG) würden die Schlafräume im DG Platz finden. Erschlossen werden diese Räume durch die Treppe in der Diele. Hier hätte man keinen schlauchförmigen Flur. Allerdings gibt es in diesem Konzept einen Raum zwischen Wohn/Essbereich und Balkon, den ich noch nicht so recht zu nutzen weiß.

Detaillierter Hausgrundriss mit Wohnzimmer, Küche, Bad, Flur und Terrasse.
 
Y

ypg

Mir ist die Beschreibung in Deinem Eingangspost etwas zu wirr. Zum anderen habe ich erwähnt, dass mal das EG als Jpg eingestellt wird.
Was zur Übersicht fehlt, wäre mal ein Lageplan vom Grundstück, Bestand und gedachter Anbau in anderer Farbe.
Außerdem Grundriss vom Bestand und in anderer Farbe neue Wände und ggf. Abriss.

Dein 3D wirkt und wird wohl auch real zu klobig.
In der 3D-Ansicht ist außerdem eine Erweiterung im EG (Osten) zu sehen: wer wird das nutzen?
Ist es nicht sinnvoller, dort unten im Anbau im Osten den Eingang vom OG zu legen?
Was ich mitgenommen habe: 7,5 Meter Gesamt-Höhe... das bedeutet, dass Ihr kaum ein gängiges Zimmer im DG hättet.



Gruß, Yvonne
 
Y

ypg

Grundsätzlich würde ich aber bei so einem Projekt einen Architekten nehmen, der ja mit viel mehr Raffinesse und Können das Ultimative aus dem BePlan und Euren Anforderungen rauszukitzeln vermag.

Seine Ausarbeitung kannst Du ja mal hier einstellen.


Gruß, Yvonne
 
Zuletzt aktualisiert 28.11.2025
Im Forum Bauplanung gibt es 5072 Themen mit insgesamt 100818 Beiträgen


Ähnliche Themen zu Anbau eines 60er Jahre Hauses und energetischer Sanierung
Nr.ErgebnisBeiträge
1Anbau-Planung / Änderung - Seite 572
2Anbau an Altbau von 1965 mit Aufstockung - Seite 343
3Welche Nachteile hat ein Anbau an Terrassengrenze bei uns? - Seite 316
4Grundriss-Ideen Einfamilienhaus als Anbau mit 3 Kinderzimmern und Büro - Seite 435
5Grundrissänderung Wohnung plus Anbau 18
6Ideen für Anbau über Garage zusätzlicher Wohnraum - Seite 224
7Pflanzenbewässerung mit Rohren, auf Balkon 18
8Balkon auf Garage auf Grenze 11
9Freitragender nachträglicher Balkon: Kosten? Realisierbar? 11
10Wie vernichte ich dieses Unkraut auf dem Balkon?! 37
11Einbau bodentiefes Fenster & franz. Balkon, Altbau, 4.OG 12
12Balkon überdacht oder außenliegend 10
13Bodentiefe Fenster oder Doppelflügeltüre mit franz. Balkon? 25
14Balkon Gefälle und Abdichtung Kosten 12
15Mietminderung Balkon gerechtfertigt? - Seite 214
16Einfamilienhaus - Balkon im 1. OG sinnvoll? - Seite 314
17Nachträgliche Balkon-Befestigungs-Vorrichtung 17
18Balkon über Erker muss der Rahmen sein? 13
19Aluminium-Dielen auf dem Balkon - Erfahrungen? 15
20Rat für Größe Überstand Balkon OG 23

Oben