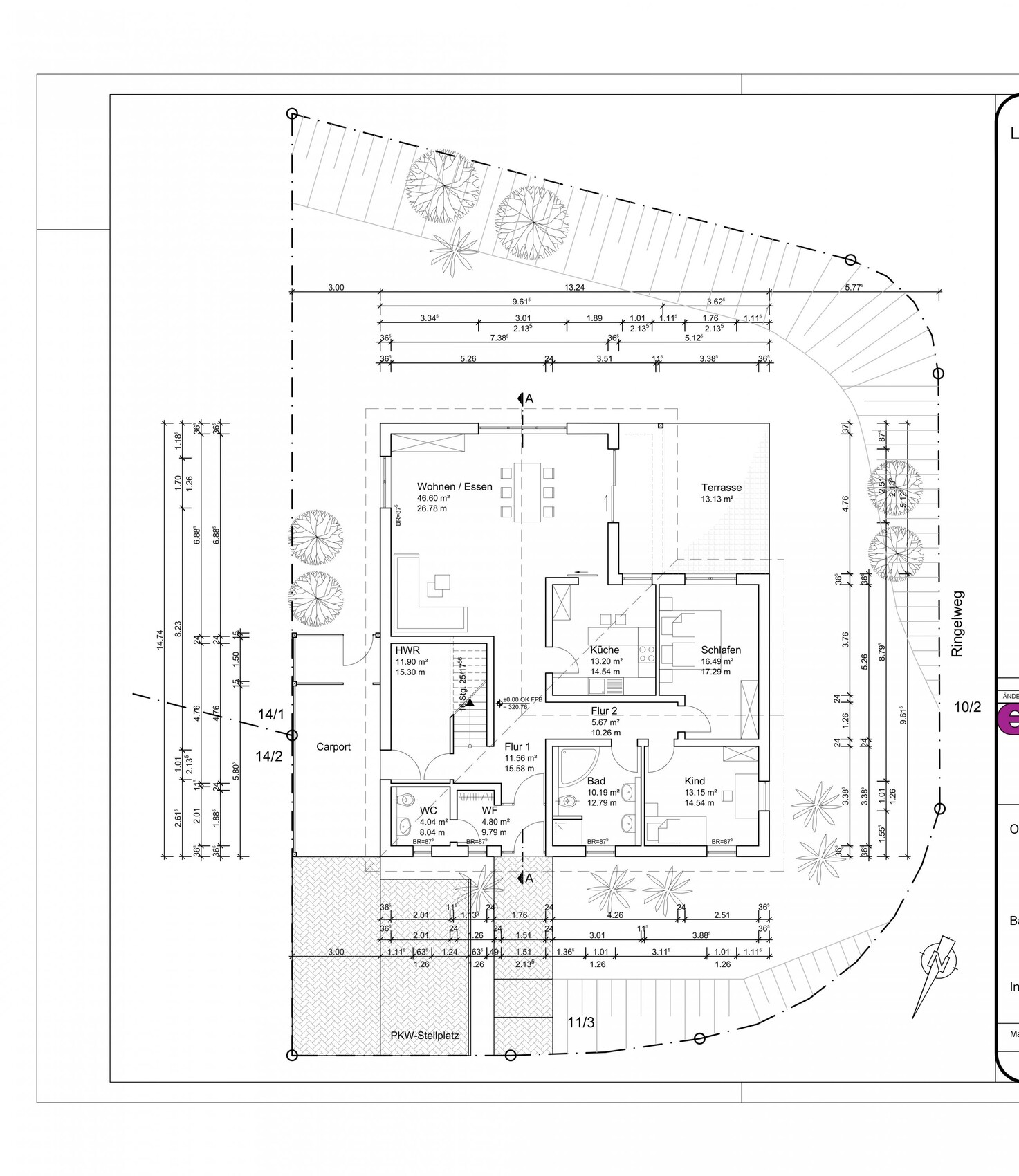
130 m² Bungalow mit Doppelcarport bei 600m² Grundstück?

4,90 Stern(e) 7 Votes
Zuletzt aktualisiert 20.11.2025
Sie befinden sich auf der Seite 11 der Diskussion zum Thema: 130 m² Bungalow mit Doppelcarport bei 600m² Grundstück?
>> Zum 1. Beitrag <<

Y

ypg

@Elnino
Du bist im falschen Unterforum mit einer Grundrissdiskussion. Sehe ich jetzt erst, weil ich den Fragebogen vermisse, den Du nicht ausgefüllt hast.
Vielleicht kann @Admin oder @Mycraft
Mal diesem Thread verschieben und Du füllst bitte den angepinten Fragebogen aus, damit wir nicht immer alles neu lesen müssen, welche Anforderungen Du an das Haus hast
 
kbt09

kbt09

@ypg ... da wäre es aber sinnvoller gleich einen neuen Thread zu machen, dann steht der Fragebogen wenigstens in Beitrag 1, wo man ihn immer gleich wieder findet.
 
Zuletzt aktualisiert 20.11.2025
Im Forum Bauplanung gibt es 5071 Themen mit insgesamt 100812 Beiträgen
Oben