ᐅ Ausrichten von Fliesenfugen Badezimmer (Fliesen 60 cm vs. 45 cm)
Erstellt am: 29.01.26 14:17
K
kasper_repsak29.01.26 14:17Hallo!
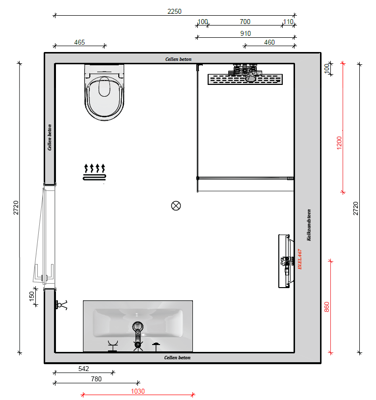
Bei einem Neubau haben wir die Möglichkeit, die Standard-Ausstattung im Badezimmer höherwertiger zu machen. Leider haben wir keinen direkten Kontakt mit dem Fliesenleger und man kann uns nicht garantieren, dass die Fliesenfugen bei Wand und Boden "in einer Linie" sein werden, selbst wenn wir Wand- und Bodenfliesen vom gleichen Hersteller und von der gleichen Größe nehmen - außer wir verwenden auch Bodenfliesen für die Wand, was wiederum deutlich mehr kostet. Die Fugen 1 cm versetzt sieht wohl "falsch" und nicht gut aus, daher die Idee, für Wand und Boden gleich unterschiedliche Formate zu nehmen.
Von der Raumgröße her passen 45 cm Länge in 5x6 Reihe perfekt rein. Bei Wandfliesen mit 45x22.5 sind WC und Dusche dann "mittig" mit den Fugen ausgerichtet. Wenn die Bodenfliesen dann 60x60 sind, lässt sich das mit der Länge der Dusche von 120 cm gut lösen und hat dort möglichst wenige Fugen am Boden.





Ist diese Idee vom Prinzip her stimmig - oder gibt es hier Bedenken? (die konkreten Fliesen müssen wir noch auswählen)
Vielen Dank!
PS: Ja, leider kein Fenster, keine schönen Nischen, ein schöner Spiegel mit Beleuchtung kommt aber nachher rein, ebenso noch ein Hochschrank links vom Waschtisch
Bei einem Neubau haben wir die Möglichkeit, die Standard-Ausstattung im Badezimmer höherwertiger zu machen. Leider haben wir keinen direkten Kontakt mit dem Fliesenleger und man kann uns nicht garantieren, dass die Fliesenfugen bei Wand und Boden "in einer Linie" sein werden, selbst wenn wir Wand- und Bodenfliesen vom gleichen Hersteller und von der gleichen Größe nehmen - außer wir verwenden auch Bodenfliesen für die Wand, was wiederum deutlich mehr kostet. Die Fugen 1 cm versetzt sieht wohl "falsch" und nicht gut aus, daher die Idee, für Wand und Boden gleich unterschiedliche Formate zu nehmen.
Von der Raumgröße her passen 45 cm Länge in 5x6 Reihe perfekt rein. Bei Wandfliesen mit 45x22.5 sind WC und Dusche dann "mittig" mit den Fugen ausgerichtet. Wenn die Bodenfliesen dann 60x60 sind, lässt sich das mit der Länge der Dusche von 120 cm gut lösen und hat dort möglichst wenige Fugen am Boden.
Ist diese Idee vom Prinzip her stimmig - oder gibt es hier Bedenken? (die konkreten Fliesen müssen wir noch auswählen)
Vielen Dank!
PS: Ja, leider kein Fenster, keine schönen Nischen, ein schöner Spiegel mit Beleuchtung kommt aber nachher rein, ebenso noch ein Hochschrank links vom Waschtisch
Anzeige
Hallo kasper_repsak,
schau mal hier: Ausrichten von Fliesenfugen Badezimmer (Fliesen 60 cm vs. 45 cm). Da wird jeder fündig!
schau mal hier: Ausrichten von Fliesenfugen Badezimmer (Fliesen 60 cm vs. 45 cm). Da wird jeder fündig!
K
kasper_repsak29.01.26 14:26PPS: Standard-Größe ohne Aufpreis ist 30x30 für Boden mit nur 15x15 im Duschbereich und 20x25 (weiß) bei Wand, wobei (nur) die Wandfliesen nicht rektifiziert wären.
Ähnliche Themen