ᐅ Lichtplanung Neubau Einfamilienhaus..Verbesserungspotential?
Erstellt am: 08.01.25 18:56
Guten Tag,
aufgrund der vielen interessanten Diskussionen hier, haben wir uns dazu entschlossen unsere Gedanken mit den Experten hier zu teilen bzw. weitere sinnvolle Anregungen für den Neubau unseres Einfamilienhaus beim Thema Beleuchtung zu bekommen.
Wir bauen ein Massivhaus ca. 10x11m. Kfw55, konventionelle Elektroinstallation (kein Smarthome, KNX,...). Deckenhöhe EG ca 2,4m (keine abgehängte Decke), im DG wird die Decke abgehängt auf ebenfalls ca. 2,4m, Deckenhöhe UG ca, 2,3m (keine abgehängte Decke).
Wir sind in der Planungsphase beim Thema Elektro, insbesondere der Lichtplanung angekommen, die uns langsam aber sicher verzweifeln lässt. Bei unseren Überlegungen haben wir uns klassischerweise an den Häusern der Eltern, Freunden, Bekannten orientiert, wobei hier kaum moderne Neubauten als Referenz herangezogen werden konnten.
Insgesamt haben wir bei unseren Überlegungen recht wenig Einbau-Spots vorgesehen. Zum einen finden wir eine Flut von Spots über die kompletten Decken der Räume nicht schön, zum anderen sind die Einbauspots (vor allem in der Betondecke) sehr unflexibel.
Somit kommen sie bei uns nur im EG Küche vor in der Betondecke, sowie im Bad DG in der abgehängten Trockenbau-Decke.
Bei den meisten anderen Räumen sowie den Fluren haben wir uns zunächst für einen (bzw. mehrere) klassischen elektr. Auslass entschieden, an dem eine Deckenlampe angebracht wird.
Der große Raum im UG wird zunächst als Hobby-Raum genutzt, könnte aber in Zukunft als "Einliegerwohnung" für Angehörige (zur Pflege) umfunktioniert werden. Deshalb hier zunächst nur zwei Auslässe für Deckenleuchten (separat geschalten).
Im Treppenhaus würden wir jeweils auf halber Höhe der Stufen eine Wandlampe vorsehen, die mit der Deckenlampe vom Flur DG bzw. Flur UG geschaltet wird.
Insbesondere der große Wohn-/Essbereich bereitet uns aber Schwierigkeiten:
- Wir hätten hier im Bereich zw. Küche und Esstisch eine Deckenlampe (mit 2-3 schwenkbaren Strahlern) vorgesehen, um diesen Übergangsbereich auszuleuchten.
-Dann klassisch eine Pendelleuchte (vermutlich 3-fach) über dem Esstisch.
- Im Wohnzimmer mittig eine Deckenleuchte um eine Grundausleuchtung zu ermöglichen.
Zusätzlich eine Kombination aus Stehlampe (ggfs mit integrierter Leseleuchte) neben Sofa, Wandleuchten beim Kaminofen und hinter dem Esstisch sowie eine Hintergrundbeleuchtung des TVs oder des TV-Boards. Diese würden wir zusammenschalten um ein gemütliches Licht zu bekommen, wenn man am Abend auf dem Sofa liegt.
Was sagt Ihr? Könnte das so grob funktionieren oder sind eklatante Planungsfehler vorhanden?
Für Tipps, Anregungen und Verbesserungsvorschläge sind wir sehr dankbar.
Wir freuen uns auf zahlreiche Rückmeldungen
Freundliche Grüße
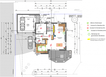
Anbei die Grundriss-Skizzen



aufgrund der vielen interessanten Diskussionen hier, haben wir uns dazu entschlossen unsere Gedanken mit den Experten hier zu teilen bzw. weitere sinnvolle Anregungen für den Neubau unseres Einfamilienhaus beim Thema Beleuchtung zu bekommen.
Wir bauen ein Massivhaus ca. 10x11m. Kfw55, konventionelle Elektroinstallation (kein Smarthome, KNX,...). Deckenhöhe EG ca 2,4m (keine abgehängte Decke), im DG wird die Decke abgehängt auf ebenfalls ca. 2,4m, Deckenhöhe UG ca, 2,3m (keine abgehängte Decke).
Wir sind in der Planungsphase beim Thema Elektro, insbesondere der Lichtplanung angekommen, die uns langsam aber sicher verzweifeln lässt. Bei unseren Überlegungen haben wir uns klassischerweise an den Häusern der Eltern, Freunden, Bekannten orientiert, wobei hier kaum moderne Neubauten als Referenz herangezogen werden konnten.
Insgesamt haben wir bei unseren Überlegungen recht wenig Einbau-Spots vorgesehen. Zum einen finden wir eine Flut von Spots über die kompletten Decken der Räume nicht schön, zum anderen sind die Einbauspots (vor allem in der Betondecke) sehr unflexibel.
Somit kommen sie bei uns nur im EG Küche vor in der Betondecke, sowie im Bad DG in der abgehängten Trockenbau-Decke.
Bei den meisten anderen Räumen sowie den Fluren haben wir uns zunächst für einen (bzw. mehrere) klassischen elektr. Auslass entschieden, an dem eine Deckenlampe angebracht wird.
Der große Raum im UG wird zunächst als Hobby-Raum genutzt, könnte aber in Zukunft als "Einliegerwohnung" für Angehörige (zur Pflege) umfunktioniert werden. Deshalb hier zunächst nur zwei Auslässe für Deckenleuchten (separat geschalten).
Im Treppenhaus würden wir jeweils auf halber Höhe der Stufen eine Wandlampe vorsehen, die mit der Deckenlampe vom Flur DG bzw. Flur UG geschaltet wird.
Insbesondere der große Wohn-/Essbereich bereitet uns aber Schwierigkeiten:
- Wir hätten hier im Bereich zw. Küche und Esstisch eine Deckenlampe (mit 2-3 schwenkbaren Strahlern) vorgesehen, um diesen Übergangsbereich auszuleuchten.
-Dann klassisch eine Pendelleuchte (vermutlich 3-fach) über dem Esstisch.
- Im Wohnzimmer mittig eine Deckenleuchte um eine Grundausleuchtung zu ermöglichen.
Zusätzlich eine Kombination aus Stehlampe (ggfs mit integrierter Leseleuchte) neben Sofa, Wandleuchten beim Kaminofen und hinter dem Esstisch sowie eine Hintergrundbeleuchtung des TVs oder des TV-Boards. Diese würden wir zusammenschalten um ein gemütliches Licht zu bekommen, wenn man am Abend auf dem Sofa liegt.
Was sagt Ihr? Könnte das so grob funktionieren oder sind eklatante Planungsfehler vorhanden?
Für Tipps, Anregungen und Verbesserungsvorschläge sind wir sehr dankbar.
Wir freuen uns auf zahlreiche Rückmeldungen
Freundliche Grüße
Anbei die Grundriss-Skizzen
Willkommen im Forum,
wir haben ebenfalls eine herkömmliche Elektrische Installation,
zwei Punkte zur Licht Planung eines Raumes,
einmal Grundbeleuchtung zum Nadel suchen und ergänzen mit weiteren notwendigen Wandlampen, Stehlampen, Leselampen etc.
Unsere Grundbeleuchtung hat Lampen mit Schraubfassungen, und teilweise drei-Stufen-Dimmer.
Das hat sich bewährt.
PS, lieber einige Zeit mit Baulampen leben und den Raum wirken lassen und in Ruhe suchen nach neuen Lampen
wir haben ebenfalls eine herkömmliche Elektrische Installation,
zwei Punkte zur Licht Planung eines Raumes,
einmal Grundbeleuchtung zum Nadel suchen und ergänzen mit weiteren notwendigen Wandlampen, Stehlampen, Leselampen etc.
Unsere Grundbeleuchtung hat Lampen mit Schraubfassungen, und teilweise drei-Stufen-Dimmer.
Das hat sich bewährt.
PS, lieber einige Zeit mit Baulampen leben und den Raum wirken lassen und in Ruhe suchen nach neuen Lampen
MC123456 schrieb:
Somit kommen sie bei uns nur im EG Küche vor in der BetondeckeWenn die Leuchten auch Arbeitslicht sein sollen, dann müssen diese vor dir sein. Wenn die Leuchte hinter dir ist, hast du immer Schatten. Ich würde im Bereich des Herds vielleicht noch eine Wandleuchte setzen.Hat es einen Grund warum die Deckenhöhen so gering sind?
Kommen die WLAN Access Points auch an die Decke? Wenn ja, dann auch gleich mit planen.
N
NatureSys08.01.25 21:02Wir haben eine professionelle Lichtplanung machen lassen in den Wohnräumen. Was gefällt uns dort am besten? Im Wohn und Essbereich haben wir mehrere Wandlampen, die auf 1,80 Höhe angebracht sind und nur nach oben leuchten.
Was ist am schlechten. Im Büro eine zentrale Deckenlampe, wie von dir geplant. Die ist ungemütlich und macht Schatten beim Arbeiten. Da ist eine andere Lösung besser.
Was ist am schlechten. Im Büro eine zentrale Deckenlampe, wie von dir geplant. Die ist ungemütlich und macht Schatten beim Arbeiten. Da ist eine andere Lösung besser.
Ganz ungefiltert ein paar Ideen, die uns wichtig waren bzw. sich nach 3 Jahren inzwischen als sinnvoll oder weniger erwiesen haben. Spots mögen wir nicht, wir haben uns jedoch schöne Leuchten ausgesucht.
Schlafzimmer: an einen Ein-/Ausschalter vom Bett aus denken, dazu mind. 2-3 Steckdosen pro Bettseite bzw. bei bekannter Bettgröße gleich je einen Wandauslass für Bett-/Wandlampe.
Ui, das Bad ist ja riesig, vlt. würde ich mir da dennoch ein WC reinbauen; Platz hats ja genug. Natürlich kann man dort in der Decke spielen mit Licht, wenn man es mag. Brauchen tut man helles Licht am Siegel, ansonsten würde ich auf jeden Fall eine zentrale, dimmbare Deckenleuchte nehmen und je nach Bauart der Dusche auch dort noch helle Leuchte. Strahler haben mMn das Problem, dass sie dem Namen nach halt strahlen und das eben meist in eine begrenzte Richtung. Bei Deinen Geschosshöhen sollten es entweder Einbauleuchten sein oder diese flachen LED-Leuchten, die es ja in jeglicher Ausführung gibt. Über der Wanne bräuchte ich keine Leuchte, vlt. findet ihr noch eine schicke Wandleuchte für die leere Wand wg. etwas indirektem Licht.
Beleuchtung der Treppe würde ich mich schlauer machen, weil es da ja auch um angemessene Ausleuchtung der Stufen wg. Stolpern geht. Wir haben zusätzlich seitliche Beleuchtung dort aber das ist mehr so ne schöne Spielerei.
Ankleide würde ich unbedingt pro Seite mehrere helle Downlights über den Schränken einsetzen, gibts z.B. auch von Ikea, wir hatten noch ein Schienensystem von Paulmann übrig; dort muss es unbedingt hell sein und soll auch keine Schatten werfen.
EG: Diele muss unbedingt hell sein, wir haben eine flache LED-Leuchte, bei Dir könnte man vorne eine zweite setzen oder vlt. nur eine, etwas längere nehmen.
In der Küche bzw. an der Arbeitshelle muss es ebenso hell sein, aucb da würde ich eher LED-Leuchten sehen anstatt der Spots. Im alten Haus hatten wir Spots aber inzwischen gefallen mir die flachen LED-Leuchten für diese Zwecke besser von der Ausleuchtung. Über dem Esstisch einen Auslass und dann eine lange Leuchte mit warmen Licht.
Sehr wichtig wird auch sein, was Du von wo und wie schalten können willst. Am Ende soll das ja auch nicht verwirrend sein vor lauter Optionen. Ich hatte mich zu einem Bewegungsmelder im Flur überreden lassen, das würden wir heute nicht mehr machen, sondern würden lieber jew. einen Schalter betätigen.
Versch. nötige Steckdosen außen am Haus und Beleuchtung nicht vergessen.
Generell würde ich im Allraum bzw. EG eine Grundbeleuchtung mit Wandlampen vorsehen und im Bereich Küche/Essen zwei Hauptleuchten. Den Rest (außer Küche) würde ich schön finden mit Wandlampen und der ein oder anderen Stehlampe, die sich nach und nach gerne dort einfinden darf.
Schlafzimmer: an einen Ein-/Ausschalter vom Bett aus denken, dazu mind. 2-3 Steckdosen pro Bettseite bzw. bei bekannter Bettgröße gleich je einen Wandauslass für Bett-/Wandlampe.
Ui, das Bad ist ja riesig, vlt. würde ich mir da dennoch ein WC reinbauen; Platz hats ja genug. Natürlich kann man dort in der Decke spielen mit Licht, wenn man es mag. Brauchen tut man helles Licht am Siegel, ansonsten würde ich auf jeden Fall eine zentrale, dimmbare Deckenleuchte nehmen und je nach Bauart der Dusche auch dort noch helle Leuchte. Strahler haben mMn das Problem, dass sie dem Namen nach halt strahlen und das eben meist in eine begrenzte Richtung. Bei Deinen Geschosshöhen sollten es entweder Einbauleuchten sein oder diese flachen LED-Leuchten, die es ja in jeglicher Ausführung gibt. Über der Wanne bräuchte ich keine Leuchte, vlt. findet ihr noch eine schicke Wandleuchte für die leere Wand wg. etwas indirektem Licht.
Beleuchtung der Treppe würde ich mich schlauer machen, weil es da ja auch um angemessene Ausleuchtung der Stufen wg. Stolpern geht. Wir haben zusätzlich seitliche Beleuchtung dort aber das ist mehr so ne schöne Spielerei.
Ankleide würde ich unbedingt pro Seite mehrere helle Downlights über den Schränken einsetzen, gibts z.B. auch von Ikea, wir hatten noch ein Schienensystem von Paulmann übrig; dort muss es unbedingt hell sein und soll auch keine Schatten werfen.
EG: Diele muss unbedingt hell sein, wir haben eine flache LED-Leuchte, bei Dir könnte man vorne eine zweite setzen oder vlt. nur eine, etwas längere nehmen.
In der Küche bzw. an der Arbeitshelle muss es ebenso hell sein, aucb da würde ich eher LED-Leuchten sehen anstatt der Spots. Im alten Haus hatten wir Spots aber inzwischen gefallen mir die flachen LED-Leuchten für diese Zwecke besser von der Ausleuchtung. Über dem Esstisch einen Auslass und dann eine lange Leuchte mit warmen Licht.
Sehr wichtig wird auch sein, was Du von wo und wie schalten können willst. Am Ende soll das ja auch nicht verwirrend sein vor lauter Optionen. Ich hatte mich zu einem Bewegungsmelder im Flur überreden lassen, das würden wir heute nicht mehr machen, sondern würden lieber jew. einen Schalter betätigen.
Versch. nötige Steckdosen außen am Haus und Beleuchtung nicht vergessen.
Generell würde ich im Allraum bzw. EG eine Grundbeleuchtung mit Wandlampen vorsehen und im Bereich Küche/Essen zwei Hauptleuchten. Den Rest (außer Küche) würde ich schön finden mit Wandlampen und der ein oder anderen Stehlampe, die sich nach und nach gerne dort einfinden darf.
K
k-man202108.01.25 22:40Es gibt von prediger ein Handbuch Lichtplanung, das ich ganz gut finde, ist mE immer noch kostenlos. Da sind für viele Räume gute Alternativen drin.
Ähnliche Themen