Gt5.0_20
21.06.2024 22:01:14
- #1
Bonjour à tous
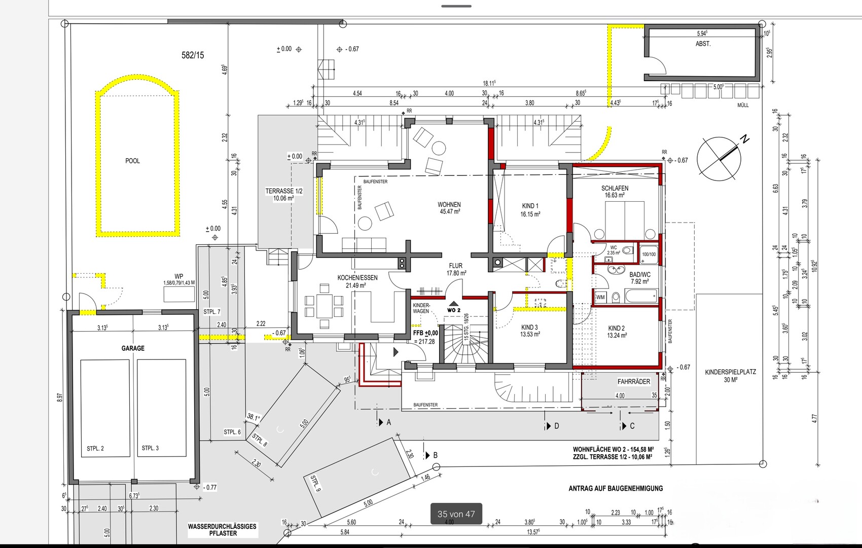
Je rénove la maison parentale en BW et nous avons planifié un immeuble collectif de 6 logements, car à l’âge avancé, on n’a plus besoin autant de place. Un étage supplémentaire sera également ajouté ainsi qu’une extension.







En raison du grand nombre de places de parking nécessaires (1,5 par logement), nous sommes maintenant 4 m² en dessous de la surface maximale utilisable. Le problème est que, pour cette raison, je dois démolir notre piscine (ancienne construction). Je trouve cette idée horrible (piscine remplacée par parking) et l’architecte est pour le moment dépassée, ou plutôt surchargée, au point qu’elle ne fait plus les efforts du début. J’espère que vous aurez quelques idées intéressantes ici.
Un conseil d’avance : les voisins ne sont malheureusement pas très ouverts aux changements. Des exceptions particulières sont donc défavorables... aucune dépassement de valeur n’est envisageable au minimum.
Je pensais que les places de stationnement 6 et 7 pourraient recevoir un carport, est-ce compatible avec les distances mini / avec la surface de garage existante ?
D’après ce que je comprends, les 2 places seraient alors comptées comme des « places couvertes hors sol soumises à décompte » (image), ce qui permettrait, en réduisant le chemin vers le porte-vélos à 1 m de largeur, de libérer les mètres carrés nécessaires pour la piscine.
Est-ce que tout cela est possible ? Je suis très ouvert à d’autres idées et points de vue.
P.S. : Pour plus de détails, vues/plans, n’hésitez pas à me le dire.
Selon la réglementation actuelle du bâtiment, je ne pourrais jamais plus reconstruire la piscine à cet endroit, j’aimerais donc vraiment ne pas devoir y renoncer.
Merci d’avance et cordiales salutations
Sam
Je rénove la maison parentale en BW et nous avons planifié un immeuble collectif de 6 logements, car à l’âge avancé, on n’a plus besoin autant de place. Un étage supplémentaire sera également ajouté ainsi qu’une extension.
En raison du grand nombre de places de parking nécessaires (1,5 par logement), nous sommes maintenant 4 m² en dessous de la surface maximale utilisable. Le problème est que, pour cette raison, je dois démolir notre piscine (ancienne construction). Je trouve cette idée horrible (piscine remplacée par parking) et l’architecte est pour le moment dépassée, ou plutôt surchargée, au point qu’elle ne fait plus les efforts du début. J’espère que vous aurez quelques idées intéressantes ici.
Un conseil d’avance : les voisins ne sont malheureusement pas très ouverts aux changements. Des exceptions particulières sont donc défavorables... aucune dépassement de valeur n’est envisageable au minimum.
Je pensais que les places de stationnement 6 et 7 pourraient recevoir un carport, est-ce compatible avec les distances mini / avec la surface de garage existante ?
D’après ce que je comprends, les 2 places seraient alors comptées comme des « places couvertes hors sol soumises à décompte » (image), ce qui permettrait, en réduisant le chemin vers le porte-vélos à 1 m de largeur, de libérer les mètres carrés nécessaires pour la piscine.
Est-ce que tout cela est possible ? Je suis très ouvert à d’autres idées et points de vue.
P.S. : Pour plus de détails, vues/plans, n’hésitez pas à me le dire.
Selon la réglementation actuelle du bâtiment, je ne pourrais jamais plus reconstruire la piscine à cet endroit, j’aimerais donc vraiment ne pas devoir y renoncer.
Merci d’avance et cordiales salutations
Sam