Chequeo del plano de una casa adosada

  • Erstellt am 05.05.2017 23:21:17

Ev-Marie86

05.05.2017 23:34:51
  • #1
Habitación de huéspedes = oficina ... y espacio para chaquetas y demás...
 

RobsonMKK

05.05.2017 23:45:36
  • #2
Entonces cambia la habitación de los niños y el dormitorio. Entonces, posiblemente no haya estrés.
 

11ant

05.05.2017 23:45:55
  • #3
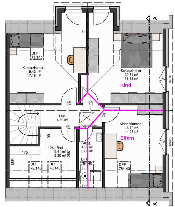
Si las medidas no indicaran construcción en mampostería, deduciría a partir del plano que se trata de una casa prefabricada. Okal Haus de alrededor de 1980. El planificador del plano parece tener una gran falta de amor por su profesión.

La puerta corredera de la despensa necesita para la pared de revestimiento más espacio del que ahorra en el espacio de giro. El cuarto de lavandería en la planta alta parece diseñado para encajar estrictamente sobre el pasillo de la planta baja y no ser ni un ápice más ancho. El baño probablemente esté dibujado sin objetos por una buena razón, para que no se perciba tan rápidamente lo estrecho que es.

No veo que pueda surgir en ningún lugar alegría de vivir.

¿Qué representan los ángulos en los extremos de la pared de los hastiales exteriores?
 

ypg

06.05.2017 00:06:45
  • #4


Sin medidas es difícil planificar bien. Pero la puerta del cuarto de lavado en la planta baja se puede mover... la puerta hacia la cocina también debe serlo... yo tampoco entiendo los pasillos grandes, pero apenas tienen espacio para colocar cosas... y se planean niños con todo lo que ello implica. ¿No tienes zapatos que tengan que guardarse en algún lugar? Nosotros dos tenemos todo el guardarropa debajo de la escalera como trastero — eso también se necesita, de lo contrario se ve desordenado.



¿Y cuál es el valor añadido de este comentario? ¡Me da igual!



¡Estoy de acuerdo contigo!
 

11ant

06.05.2017 00:34:56
  • #5



Si no puedes seguirme lingüísticamente allí, lo diré más directo: el plano parece una porquería, planificado con la retícula de vigas de un metro veinticinco típica en esa época para casas prefabricadas. Falta total de imaginación por tres. No encajaba aquí, no encajaba allá, el paso de máquina era así.



Doce metros cuadrados para colgar abrigos en lugar de un guardarropa. Sin comentarios.

--

Bueno, ahora un poco constructivo, intentaré rápidamente una miserable mejora:





Aunque la idea del cuarto de lavado en la planta alta no me parece mala, espacialmente lo encontré mal resuelto.

Por eso lo he integrado en la planta baja en el cuarto de servicio (HAR), he movido el WC al otro lado y la despensa un poco "hacia arriba", luego he girado la puerta del salón en el umbral.

Arriba amplié el baño (lo hice menos pequeño) y adapté las líneas de la pared a la forma del techo. Hay que imaginarse todavía en el dibujo rápido: mover un poco la puerta de la habitación 1, poner las puertas de la habitación 2 y la de los padres en la punta del pasillo.

Tampoco es un Picasso ni una casa soñada, sino solo una propuesta mínimamente invasiva para mejorar el desastre.
 

ypg

06.05.2017 00:45:39
  • #6


Puedo seguir un lenguaje vulgar perfectamente, pero aún así no veo el valor añadido para la TE.

Pero demasiado tarde: la TE lo hace borrar - ¡ese fue tu valor añadido! ¡Me dan ganas de vomitar!
 

Temas similares
21.02.2012¿Qué opinan de este plano?11
14.01.2013Opiniones sobre el plano de la planta baja10
26.05.2013Su opinión sobre el plano de planta para la planta baja28
18.09.2013¿Ayuda con el plano de la casa, sugerencias de mejora?28
28.11.2013Sus opiniones sobre nuestro plano y oferta22
17.01.2014Plano de casa unifamiliar25
17.03.2014Opiniones sobre el plano de una casa unifamiliar de aproximadamente 160 m²29
14.04.2014Se desea retroalimentación sobre el plano de una casa unifamiliar18
17.09.2014Estimulación - Crítica Plano de casa unifamiliar 320 m²29
06.08.2014¿Les parece bien el plano de nuestra villa urbana?46
03.09.2014Diseño del plano. ¿Cuáles son sus opiniones / sugerencias?15
21.04.2018Propuestas de planos - ¿Qué funciona y qué no?286
05.04.2018Plano/ideas de plano casa unifamiliar 180 m², 3 habitaciones infantiles46
30.11.2019plano alternativo bungalow 140m²84
26.09.2024Plano de una casa con cuatro hastiales38
28.10.2021Despensa vs. Cocina más grande vs. Cuarto de servicio13
04.12.2022Plano de una casa unifamiliar de aproximadamente 190 m² con sótano en papel milimetrado78
06.01.2022Plano de diseño para una nueva casa unifamiliar - parcela de 610 m² - opiniones bienvenidas50
17.07.2022Plano: planificación de puertas salón + despensa17
27.07.2022Plano de planta: ¿despensa o cocina más grande? ¿Experiencias?14

Oben