HoisleBauer22
12.09.2023 18:51:35
- #1
Hola,
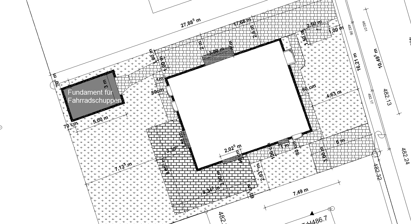
he hecho un plan para las zonas exteriores para el jardinero paisajista con el software "Cadvilla". Ahora me gustaría conocer vuestra opinión o pedir consejos aquí en el foro. Está hecho intencionadamente sin arbustos, etc., ya que queremos hacerlo nosotros mismos. Por lo tanto, solo está señalizado qué es verde y qué no es verde (= pavimentado). La esquina de la casa que apunta completamente hacia abajo es el sur.

he hecho un plan para las zonas exteriores para el jardinero paisajista con el software "Cadvilla". Ahora me gustaría conocer vuestra opinión o pedir consejos aquí en el foro. Está hecho intencionadamente sin arbustos, etc., ya que queremos hacerlo nosotros mismos. Por lo tanto, solo está señalizado qué es verde y qué no es verde (= pavimentado). La esquina de la casa que apunta completamente hacia abajo es el sur.