nikwepb
30.04.2023 13:37:45
- #1
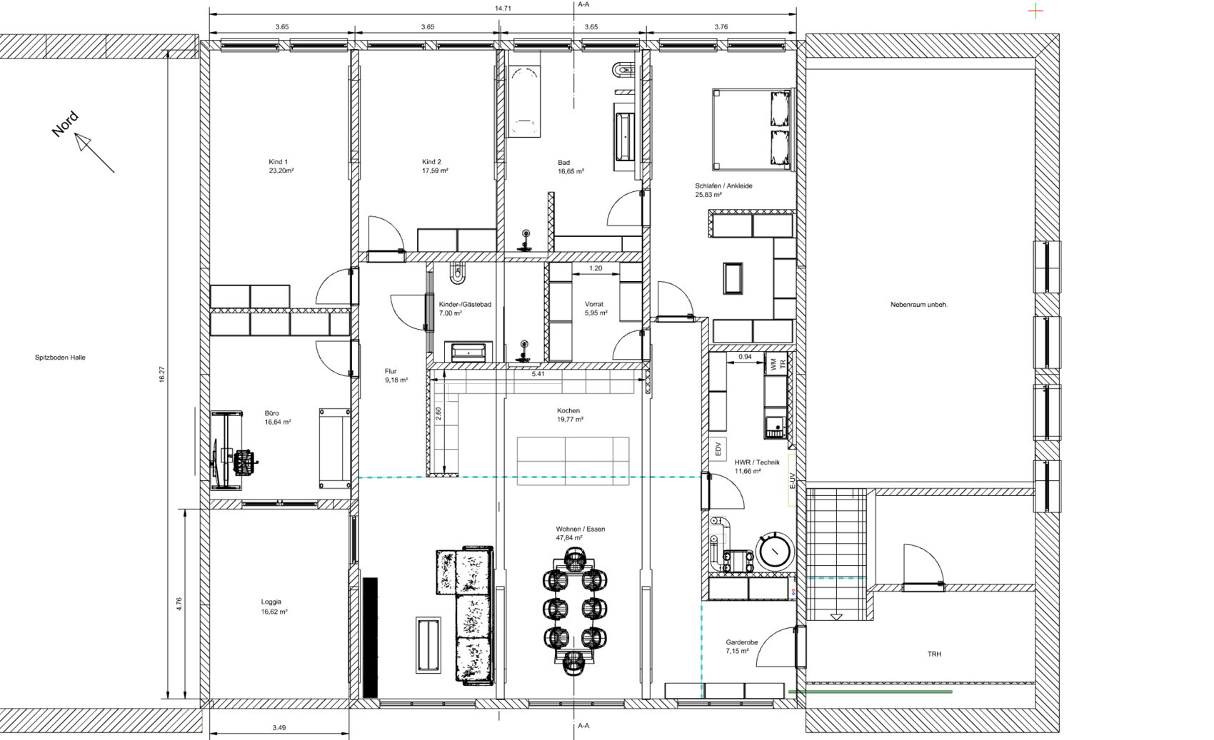
En este proyecto se trata de la posibilidad de convertir un pabellón/superficie de almacenamiento en espacio habitable. En la planta baja se encuentra la entrada y el "garaje", en la planta superior tenemos como una hoja en blanco con las medidas 14,6x16,2 m en la que podríamos dar rienda suelta a nuestra imaginación. La superficie es con más de 230 m² casi demasiado grande. La estructura del tejado en las paredes exteriores marca un poco la distribución de las habitaciones y ventanas. El reto de este proyecto es el cuerpo de edificio relativamente largo sin luz/ventanas en los laterales.
Plan de ordenación/restricciones
Pendiente:
Noreste a suroeste (ver anexo)
Año de construcción y estado:
Número de plantas:
Tipo de tejado:
Estilo:
Fachada noreste enfoscada, resto piedra arenisca natural con proporción de ladrillo macizo
Orientación:
Suroeste
Número de plazas de aparcamiento:
3x patio exterior y 3x nave para vehículos
Requisitos de los constructores
Construcción conservadora o moderna:
Construcción en el existente
Número de personas, edad:
2+1 (mediana edad 30 años y niño pequeño)
Necesidades de espacio en planta baja y planta superior:
2x habitaciones infantiles y oficina. Por lo demás lo “habitual”. La superficie relativamente grande permite espacios adicionales (por ejemplo, una despensa).
Oficina:
Trabajo desde casa a tiempo parcial (1 puesto de trabajo)
Huéspedes por año:
Sofá cama en la oficina es suficiente
Arquitectura abierta o cerrada:
Área de estar abierta. Zona de dormir separada. Baño de los padres en el área de dormir de los padres. Baño de invitados cerca de las habitaciones infantiles (y oficina). Incluir la estructura del tejado como elemento estilístico. Techo del salón-comedor abierto hacia arriba. Deseo: El techo del resto de las habitaciones por encima de las vigas a aprox. +2,95 m cota superior del suelo acabado (vigas longitudinales visibles de la estructura del tejado).
Cocina abierta e isla de cocina: sí
Número de plazas para comer: 6-8
Chimenea: no
Pared de música/estéreo:
Sonos, nada especial
Balcón, terraza en el tejado:
Apertura en el tejado y reforma para logia
Garaje, carport:
Garaje/nave en planta baja
Huerto útil, invernadero:
Sección de jardín de 500 m² a nivel del sótano, accesible mediante escaleras
Diseño de la casa
¿Quién es el autor del diseño?:
Hazlo tú mismo basado en un levantamiento y fotos. Modelo realizado en pCon.Planner.
¿Qué gusta especialmente? ¿Por qué?
¿Qué no gusta? ¿Por qué?
¿Dónde hay dudas? ¿Por qué?
Presupuesto estimado según arquitecto/planificador:
Por ahora sólo un cálculo propio de costes aprox. 400.000 €
Límite personal de precio para la casa, incluyendo equipamiento:
400.000 €
Tecnología doméstica preferida:
Bomba de calor aire-aire con acumulador combinado o acumulador higiénico
Calefacción por suelo radiante con 20 cm de construcción de suelo
Instalación fotovoltaica en techo suroeste
Sistema de ventilación centralizada
KNX realizado por cuenta propia con servicio de planificación
Si debéis prescindir, ¿de qué detalles o ampliaciones
podéis prescindir?
No podéis prescindir de:
Preguntas y más preguntas
¿Por qué el diseño es como es ahora?
He estado revisándolo durante mucho tiempo, modificando cosas, reordenando habitaciones y dejándome inspirar por otros proyectos. La disposición de las habitaciones en un solo nivel no es fácil. La separación de la vivienda, padres e hijos permite recorridos cortos para todos los habitantes y un lugar de encuentro central.
¿Qué preguntas quedan por resolver?
El diseño es mío, por supuesto no está resuelto en cuanto a estructuras, energía y detalles. Otra cuestión es cómo entra todo el material al edificio. Mi idea actual es una apertura temporal del tejado en el lado noreste. Un posible material debería estar en el patio a nivel de la planta baja.
¿Cuál es la pregunta más importante/fundamental sobre la distribución, resumida en 130 caracteres?
Me estoy volviendo ciego de tanto verlo. Tal vez alguien tenga aún ideas inspiradoras y nuevas.
Planta baja: Garaje y espacio de almacenamiento

Planta superior: Vivienda





Perfil del terreno: La diferencia de altura se salva con una planta o un muro.

Plan de ordenación/restricciones
Pendiente:
Noreste a suroeste (ver anexo)
Año de construcción y estado:
[*]1912, últimamente utilizado como nave para vehículos (planta baja) y espacio de almacenamiento (planta superior)
[*]Paredes exteriores de piedra arenisca de 60 cm, muros a dos aguas en planta superior de ladrillo macizo de aprox. 30 cm
[*]Semi-sótano en la pendiente, salida a nivel del sótano
[*]Techo de planta baja, aprox. 30 cm, apoyado sobre vigas y pilares macizos
[*]Cubierta y estructura del tejado en buen estado
Número de plantas:
[*]Sótano semi-subterráneo a nivel del jardín
[*]Planta baja con área de entrada, nave para vehículos y acceso desde noreste
[*]Planta superior con área residencial planeada
Tipo de tejado:
[*]Tejado a dos aguas 45°
[*]“Buhardillas” a ambos lados con 30° a lo largo de todo el ancho. Murillo de apoyo +2,57 m cota superior del suelo acabado
[*]Teóricamente abierto hasta la cumbrera +7,90 m cota superior del suelo acabado
Estilo:
Fachada noreste enfoscada, resto piedra arenisca natural con proporción de ladrillo macizo
Orientación:
Suroeste
Número de plazas de aparcamiento:
3x patio exterior y 3x nave para vehículos
Requisitos de los constructores
Construcción conservadora o moderna:
Construcción en el existente
Número de personas, edad:
2+1 (mediana edad 30 años y niño pequeño)
Necesidades de espacio en planta baja y planta superior:
2x habitaciones infantiles y oficina. Por lo demás lo “habitual”. La superficie relativamente grande permite espacios adicionales (por ejemplo, una despensa).
Oficina:
Trabajo desde casa a tiempo parcial (1 puesto de trabajo)
Huéspedes por año:
Sofá cama en la oficina es suficiente
Arquitectura abierta o cerrada:
Área de estar abierta. Zona de dormir separada. Baño de los padres en el área de dormir de los padres. Baño de invitados cerca de las habitaciones infantiles (y oficina). Incluir la estructura del tejado como elemento estilístico. Techo del salón-comedor abierto hacia arriba. Deseo: El techo del resto de las habitaciones por encima de las vigas a aprox. +2,95 m cota superior del suelo acabado (vigas longitudinales visibles de la estructura del tejado).
Cocina abierta e isla de cocina: sí
Número de plazas para comer: 6-8
Chimenea: no
Pared de música/estéreo:
Sonos, nada especial
Balcón, terraza en el tejado:
Apertura en el tejado y reforma para logia
Garaje, carport:
Garaje/nave en planta baja
Huerto útil, invernadero:
Sección de jardín de 500 m² a nivel del sótano, accesible mediante escaleras
Diseño de la casa
¿Quién es el autor del diseño?:
Hazlo tú mismo basado en un levantamiento y fotos. Modelo realizado en pCon.Planner.
¿Qué gusta especialmente? ¿Por qué?
[*]Zona de padres con vestidor y baño como área cerrada
[*]Techo abierto en el área de estar
[*]Logia como pequeño espacio exterior
¿Qué no gusta? ¿Por qué?
[*]Habitaciones infantiles de tamaño desigual. La habitación 1 es demasiado grande con 23 m²
[*]Cocina completamente abierta. Por la situación de luz y distribución del espacio, otra opción difícilmente posible
¿Dónde hay dudas? ¿Por qué?
[*]Área de entrada directamente en el espacio habitable -> solución con la mejor incidencia de luz -> Teóricamente aún queda espacio en el área de entrada en planta baja
Presupuesto estimado según arquitecto/planificador:
Por ahora sólo un cálculo propio de costes aprox. 400.000 €
Límite personal de precio para la casa, incluyendo equipamiento:
400.000 €
Tecnología doméstica preferida:
Bomba de calor aire-aire con acumulador combinado o acumulador higiénico
Calefacción por suelo radiante con 20 cm de construcción de suelo
Instalación fotovoltaica en techo suroeste
Sistema de ventilación centralizada
KNX realizado por cuenta propia con servicio de planificación
Si debéis prescindir, ¿de qué detalles o ampliaciones
podéis prescindir?
[*]Vigas longitudinales bajo el techo, si representa un problema estructural o de coste.
[*]Posiblemente el sistema de ventilación (precio)
No podéis prescindir de:
[*]Mucho trabajo propio en revestimiento de paredes, suelos, electricidad y otras tareas auxiliares (existe talento manual).
[*]Reforma del desván (frío), planta baja y patio. Eso también podemos mejorar más tarde.
Preguntas y más preguntas
¿Por qué el diseño es como es ahora?
He estado revisándolo durante mucho tiempo, modificando cosas, reordenando habitaciones y dejándome inspirar por otros proyectos. La disposición de las habitaciones en un solo nivel no es fácil. La separación de la vivienda, padres e hijos permite recorridos cortos para todos los habitantes y un lugar de encuentro central.
¿Qué preguntas quedan por resolver?
El diseño es mío, por supuesto no está resuelto en cuanto a estructuras, energía y detalles. Otra cuestión es cómo entra todo el material al edificio. Mi idea actual es una apertura temporal del tejado en el lado noreste. Un posible material debería estar en el patio a nivel de la planta baja.
¿Cuál es la pregunta más importante/fundamental sobre la distribución, resumida en 130 caracteres?
Me estoy volviendo ciego de tanto verlo. Tal vez alguien tenga aún ideas inspiradoras y nuevas.
Planta baja: Garaje y espacio de almacenamiento
Planta superior: Vivienda
Perfil del terreno: La diferencia de altura se salva con una planta o un muro.