Zentrale Lüftungsanlage / auch im Kellerraum?

4,30 Stern(e) 3 Votes
Zuletzt aktualisiert 12.10.2025
Sie befinden sich auf der Seite 3 der Diskussion zum Thema: Zentrale Lüftungsanlage / auch im Kellerraum?
>> Zum 1. Beitrag <<

Dr Hix

Dr Hix

Faktisch trifft das für keinen Neubau mehr zu und ist somit reine Theorie.
Wie wäre es denn, wenn du deine Aussagen ebenfalls mal etwas unterfütterst, anstatt hier immer nur irgendwelche kruden Thesen unters Volk zu bringen? Was trifft auf keinen Neubau mehr zu? Die Physik?

Und was liest man hier? Gibt Leute, die haben ihren Keller in die Kontrollierte-Wohnraumlüftung eingebunden. Gibt auch Leute, die stellen sich die Luft-Wasser-Wärmepumpe neben die Terrasse, oder haben ihre Fenster beständig auf Kipp. Kann man machen, ist aber keine gute Idee.
Du bist anderer "Meinung", bitteschön. Aber wenn du mit mir diskutieren willst bleib höflich und versuchs mal mit Argumenten :-*
 
B

Bookstar

Habe ich schon wenn du meinen ersten Beitrag liest. Neubau Keller unter 16 Grad wirst kaum finden. Und da du die Luft ständig umwälzt kann auch nichts schimmeln. Ebenso schaffst du es nicht mit der Kontrollierte-Wohnraumlüftung den unbeheizten Raum mehr als 1 bis 2 Grad zu erwärmen, somit tritt der von dir beschriebene Effekt niemals ein.

Eine Kontrollierte-Wohnraumlüftung ist kein Heissluftgebläse, hast du dir mal angesehen welche geringen Volumen da bewegt werden?
 
Dr Hix

Dr Hix

Den habe ich gelesen, aber abgesehen von der Behauptung, die seien allen selbst im tiefsten Winter 16° warm, kam da nichts weiter. Die DIN EN 12831, die die von mir genannte Normtemperatur von 10° vorgibt, hat das Ausgabedatum September 2017 - haben die in den letzten 16 Monaten etwas verpasst, was bloß dir aufgefallen ist und die kommende Aktualisierung wird mich Lügen strafen?
Erkläre doch mal, wie kann ein thermisch getrennter Keller ohne Beheizung bei Minusgraden denn dauerhaft 16° (und mehr) erreichen?

Und was hat das Umwälzen der Luft mit Schimmelvermeidung zu tun? Falls da irgendein Zusammenhang bestünde, wäre nicht ein einfacher Ventilator das Mittel der Wahl?

Deinen Einwand mit der Kontrollierte-Wohnraumlüftung und Beheizung verstehe ich nicht. Ich habe nichts dergleichen geschrieben.
 
B

Bookstar

OK vielleicht reden wir auch aneinander vorbei. Ich spreche von einem Keller der in der thermischen Hülle zu 100% liegt, wie im Neubau üblich. Da sind 10 Grad utopisch. Ebenso weil normal einige Räume geheizt werden, der Versorgungsraum dort zu finden ist und die Abwärme auch den Rest mitheizt.

ein Ventilator bläst Luft von A nach B. Eine Lüftungsanlage tauscht die Luft aus. Ein Unterschied oder?

Wir sollten auch mal darüber reden ob es um Winter oder Sommer geht. Im Winter ist die Kontrollierte-Wohnraumlüftung absolut positiv. Im Sommer ist es halt wie mit normalem Lüften auch, da sollte der Keller nur zu bestimmten Uhrzeiten/Tagen gelüftet werden.

Aber im Sommer wiederum spielt es keine Rolle signifikante Rolle ob ein Keller beheizt ist oder nicht. Da läuft sowieso keine Heizung.

Kontrollierte-Wohnraumlüftung und Beheizung war im Eingangspost zu lesen.
 
L

LuckyDuke

Also erst mal danke für die anregende Diskussion.

Ich denke auch nicht, dass der Keller unter 16°C abkühlen wird, da es ein KFW55 Haus ist und das Kellergeschoss wie gesagt nur zum Teil unbeheizt ist. Zudem wird dort keine Wäsche gewaschen oder aufgehängt.

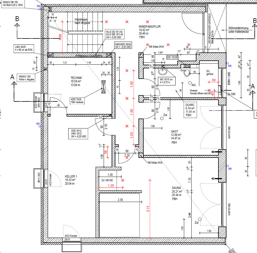
Der größere Teil wird zum Wohnen genutzt. Zum Verständnis mal der Werksplan. Weiße Kreise sind Zu- oder Abluft. Jeweils vermerkt mit den Abkürzungen "Abl." und "Zul.".


Grundriss eines Hauses mit Keller, Technik, Gast, Sauna, Fluren und Türen.


Also irgendwas passt da in deiner Planung nicht!
Die Planung ist ja eben nicht von mir sondern vom Installateur. Ich stelle diese in Frage.

Alle Räume, sowie die Diele, sind beheizt bis auf Keller 1 und Technik. Die Kellerseite ist im Hang, daher weiße Wanne mit 120 mm WLG 038 Dämmung. Front ist gemauert mit U8 42,5er wie auch der Rest des Hauses.

Also eigentlich müsste im Technikraum dann eine Abluft und im Keller 1 ein Zuluftanschluss oder?

Oder eben gar nichts, die Meinungen sind ja doch recht bivalent.

Aber Lüften werden wir aktiv wohl kaum, wer denkt schon in einem Keller daran. Und ein offenes Fenster über Nacht kühlt dann alles aus, das will man ja auch nicht.

Grüße
Christian
 
Zuletzt bearbeitet von einem Moderator:
Zuletzt aktualisiert 12.10.2025
Im Forum Wärmepumpen / Lüftungsanlagen gibt es 805 Themen mit insgesamt 11693 Beiträgen


Ähnliche Themen zu Zentrale Lüftungsanlage / auch im Kellerraum?
Nr.ErgebnisBeiträge
1Position Kontrollierte-Wohnraumlüftung im unterirdischen Keller? 16
2Kontrollierte-Wohnraumlüftung und trotzdem nachts Fenster auf 71
3Kontrollierte-Wohnraumlüftung in Keller aufstellen - Außenluft / Fortluft, Tipps? - Seite 215
4Lüften im Sommer ohne Kontrollierte-Wohnraumlüftung problematisch 19
5Lüften bei Kontrollierte-Wohnraumlüftung 15
6Neubau Poroton T7 MW 36,5 ohne Kontrollierte-Wohnraumlüftung - Seite 245
7Abluft Vs. Umluft bei eine Kontrollierte-Wohnraumlüftung - Seite 332
8Weniger öffenbare Fenster mit Kontrollierte-Wohnraumlüftung 30
9offene Küche: Abluft oder Umluft bei Kontrollierte-Wohnraumlüftung & KfW55 - Seite 340
10Öffnungsmöglichkeit der Fenster mit Kontrollierte-Wohnraumlüftung - Ideen zur Planung 60
11Kontrollierte-Wohnraumlüftung und Dunstabzugshaube Abluft - Seite 210
12Deutlich zu hohe Luftfeuchtigkeit im Keller 10
13160m2 Einfamilienhaus in Holzständerbauweise am Nordhang mit Keller - Seite 9100
14Kontrollierte Wohnraumlüftung - Ja oder Nein?! 31
15Fenster & Fenstergröße was wählen? Zweiflügelige Fenster? - Seite 646
16Automatisierung einer Kontrollierte-Wohnraumlüftung (Lüftungsanlage) - Seite 332
17Darf man bei einer Lüftungsanlage die Fenster nicht mehr öffnen? 15
18Dunstabzugshaube Umluft oder Abluft bei KFW55?? - Seite 427
19Kontrollierte-Wohnraumlüftung Schläuche ohne Keller verlegen? 12
20Kontrollierte-Wohnraumlüftung - Planung der Positionen für Zuluft / Abluft 60

Oben