Hausbau - Ratgeber
Bauherrenhilfe
- Bauherrenhilfe vor Vertragsabschluss
-- Warum einen unabhängigen Baubetreuer?
-- Vertragsgrundlagen
-- Bausumme
-- Zahlungsplan zur Kostenkontrolle
-- Pflichten des Bauherren vor Vertragsabschluss
-- Unterlagen beim Hausbau vor Vertragsabschluss
- Bauherrenhilfe nach Vertragsabschluss
-- Bauantrag bei Behörden
-- Bau-Genehmigungsverfahren bei Baubehörden
-- Bauspezifische Versicherungen
-- Bauzeitenplan
-- Baubeginn - die Letzten Pflichten der Bauherrschaft
- Bauherrenhilfe während der Bauzeit
- Gewährleistungsansprüche
- Bauabnahme
Baufinanzierung
- Baufinanzierung - Allgemeine Fragen
- Kreditarten
- Kredit-Konditionen
- Bausparen
- Staatliche Förderungen
- Verkehrswert
- Haushaltsrechnung und Bonität
Hausbau Planung
- Haustypen
- Hausbau Vorbereitungsarbeiten
- Das Baugrundstück
- Baugrund beim Hausbau
- Baurecht
- Gebäudeschutz
- Erdarbeiten und Wasserhaltung
- Stützmauern
- Einfriedung
- Untergeschoss
- Kanalisation
- Tragende Elemente
- Nichttragende Innenwände
- Fundation / Fundament
- Deckenkonstruktionen
- Dächer
- Kaminanlagen
- Treppen Rampen Leitern
- Dachbeläge und Spengler
- Fenster
- Sonnen und Wetterschutz
- Aussenputze
- Einbauten, Küchen, Türen
- Bodenbeläge und Unterlagsböden
- Parkett
- Gips, Wand, Decke
Haustechnik und Energie
- Heiztechnik
- Lüftung und Klimatechnik
- Sanitärtechnik
- Elektrotechnik
- Erneuerbare Energie
Whirlpools / Jacuzzi
Hausbau Magazin
- Baufinanzierung trotz Krise?
- Das Blockhaus
- Moderne Dämmstoffe im Vergleich
- Erker Vor- und Nachteile
- Glasflächen beim Hausbau
- Günstig ein Haus Bauen
- Mediterraner Hausbaustil
- Mehrgenerationenhaus
- Moderne Architektur
- Gartengestaltung leicht gemacht
- Traditioneller Ziegelbau
- Villa als höchster Traum
- Im Eigenheim Ruhestand geniessen
- Altbau sanieren
- Kauf einer Holzgarage
- Immobilienmakler
- Arbeitshandschuhe für den Winter
- Zuhause verschönern
- Outdoor-Plissees
- Schlafzimmer planen
- Terrassenüberdachung
- Wohngebäudeversicherung
- Zaunarten und Eigenschaften
- Hauseingang gestalten
- Der perfekte Grundriss
- Sparsamer heizen im Altbau
- Einfamilienhaus smart finanzieren
- Planung einer PV-Anlage
- Neues Haus
- Immobilienfinanzierung
- Installation einer Photovoltaikanlage
- Asbest erkennen und entfernen
- Gartenpflege im Frühling – worauf achten
- Sauna im Fokus - Wellness zuhause
- Erfolgreich vermieten
- Die perfekte Winterbekleidung
- Das Niedrigenergiehaus
- Der April und seine Stürme
- Architektonische Vielfalt
- Ökologisch und nachhaltig bauen
- Das perfekte Schlafzimmer
- Nachhaltige Energieversorgung
- Zukunftsorientiert bauen
- Nachhaltigkeit beim Hausbau
- Tiny Houses
- Wärmepumpen als nachhaltige Heizvariante
- Maßgeschneiderten Kleiderschrank
- Der richtige Baukredit
- Ratgeber für erfolgreichen Hausbau
- Haus als Altersvorsorge
Do-it-yourself Anleitungen
- Verlegeanleitung für Bodenbeläge und Parkett
- Bodenbeläge und Parkett reinigen und pflegen
- Malerarbeiten am Haus
- Garten Tipps
- Umzug und Reinigung

ᐅ Wir planen im Jahr 2022 zu bauen; die Planung beginnt

Erstellt am: 06.06.20 09:33
Y
Ybias78
Nida35a06.09.20 22:35
lass dir die Aufpreise für zusätzliche Steckdosen, Schalter, Auslässe etc. geben und plane im Rohbau,
deine Hände gehen alleine auf die Stelle, auf die ein Schalter muss.
Und plane mit den Funktionen und Lichtstimmungen
Y
Ybias78
07.09.20 06:09
SteLa33 schrieb:

Warum keine Steckdosen unterm Schalter?
Davon hätte ich im Nachhinein lieber mehr, weil wir die zum Staubsaugen nutzen. Dann muss man sich nicht bücken. Auch Bohrmaschine, Babyphone oder sonstiges kurzfristiges Zeug stecken wir immer da ein. Also da hätten wir wirklich lieber mehr und man wird ja auch nicht jünger...

Und was ich noch nicht verstehe. WC mit 2 Doppelsteckdosen? Ist das eigentlich ein Gästebad? Also wir hatten da auch in unserem alten Haus nur eine und selbst die eine wurde NIE benutzt. Für ein Gästebad fände ich es auch noch zu viel.

Insgesamt haben wir von der Anzahl nur ein paar Steckdosen mehr als ihr plant, aber wir haben deutlich mehr Plätze mit Steckdosen.
Also z.B. haben wir 10 Steckdosen im Wohn/Esszimmer, aber an 9 verschiedenen Stellen (8 Einzel- und eine Doppel) Es ist also bei uns sicher an jeder denkbaren Stelle eine Steckdose in der Nähe. Der Fall "zu wenig Steckdosen" kann also mit Mehrfachsteckern auch ohne Kabelsalat eigentlich nicht so leicht auftreten.

Schalter haben wir deutlich mehr als ihr, aber das hängt natürlich vom Grundriss ab.
Zum Beispiel im Gang unten haben wir 4 Schalter und keiner ist wirklich verzichtbar.

Insgesamt hatten wir im Vertrag stehen, was jede zusätzliche Steckdose kostet und konnten dann im Rohbaustadium nochmal flexibel schauen, wo Steckdosen hinsollen. Da kann man es sich dann schon besser vorstellen als nur auf dem Papier.

Weil wir es jetzt auch nicht haben und auch nicht vermissen. Als Staubsauger gibt es einen Roboter und ein akkubetriebenen Staubsauger. Babyphone wird nicht mehr gebraucht und Bohrmaschine läuft per Akku.

Wird aber bestimmt nicht die letzte Änderung sein.
Y
Ybias78
07.09.20 07:38
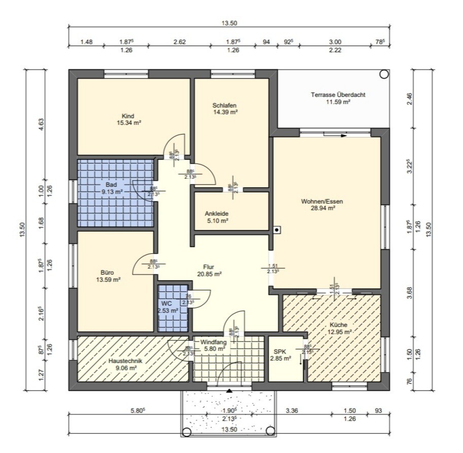
Hier unser Grundriss zum Verständnis. Wir werden aber paar Fenster noch verändern und die Wände aufgrund von Einbauschränken anpassen. Auch die Tür zu Küche entfällt. Über die Tür im Wildfang zum Flur denken wir noch nach.

Grundriss eines Hauses mit Küche, Wohnen, Schlafen, Kind, Büro, Bad, Flur, Terrasse Überdacht
S
SteLa33
07.09.20 18:56
Das Argument mit den Steckdosen leuchtet ein.
Aber Schalter würde ich da eher 4-5 brauchen.

Was ich nicht verstehe:
Warum gibt es keine Tür zwischen Flur und Küche?
Ihr müsst ja alle Einkäufe weit schleppen.

Und habt ihr die Schiebetüren im Angebot mit drin?
Ansonsten ordentlichen Aufpreis einrechnen. Hätten wir auch gern gehabt, aber das war uns dann doch zu teuer :-(
Y
Ybias78
07.09.20 19:18
SteLa33 schrieb:

Das Argument mit den Steckdosen leuchtet ein.
Aber Schalter würde ich da eher 4-5 brauchen.

Was ich nicht verstehe:
Warum gibt es keine Tür zwischen Flur und Küche?
Ihr müsst ja alle Einkäufe weit schleppen.

Und habt ihr die Schiebetüren im Angebot mit drin?
Ansonsten ordentlichen Aufpreis einrechnen. Hätten wir auch gern gehabt, aber das war uns dann doch zu teuer :-(

Ja. Hebe-Schiebetür 3m ist im Angebot enthalte.
Tür zu Küche wollen wir bewusst nicht. Lieber ein Schrank mehr. Evtl kommt da ein Side by Side Kühlschrank hin. Schleppen die Einkäufe in die 2. Etage, also wird das richtige Erleichterung
11ant07.09.20 20:28
Mit den Schiebetüren waren wohl eher die von Küche und Speisekammer gemeint.
https://www.instagram.com/11antgmxde/
https://www.linkedin.com/company/bauen-jetzt/
schiebetürenkücheschaltersteckdosenstaubsaugerflur