ᐅ Was müsste ich bei WLAN beachten ?
Erstellt am: 04.03.20 08:50
Hallo,
möchte zusätzlich WLAN im ganzen Haus haben.
Folgender Überlegung :
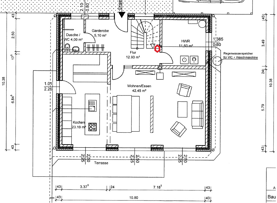
- im EG kommt der Router unterhalb der Treppe vor dem Hauswirtschaftsraum (ist eigentlich nicht ganz eingedrückt, Körperhöhe)
- im OG kommt an der Treppe zum DG ein Access-Point (Deckenhöhe)
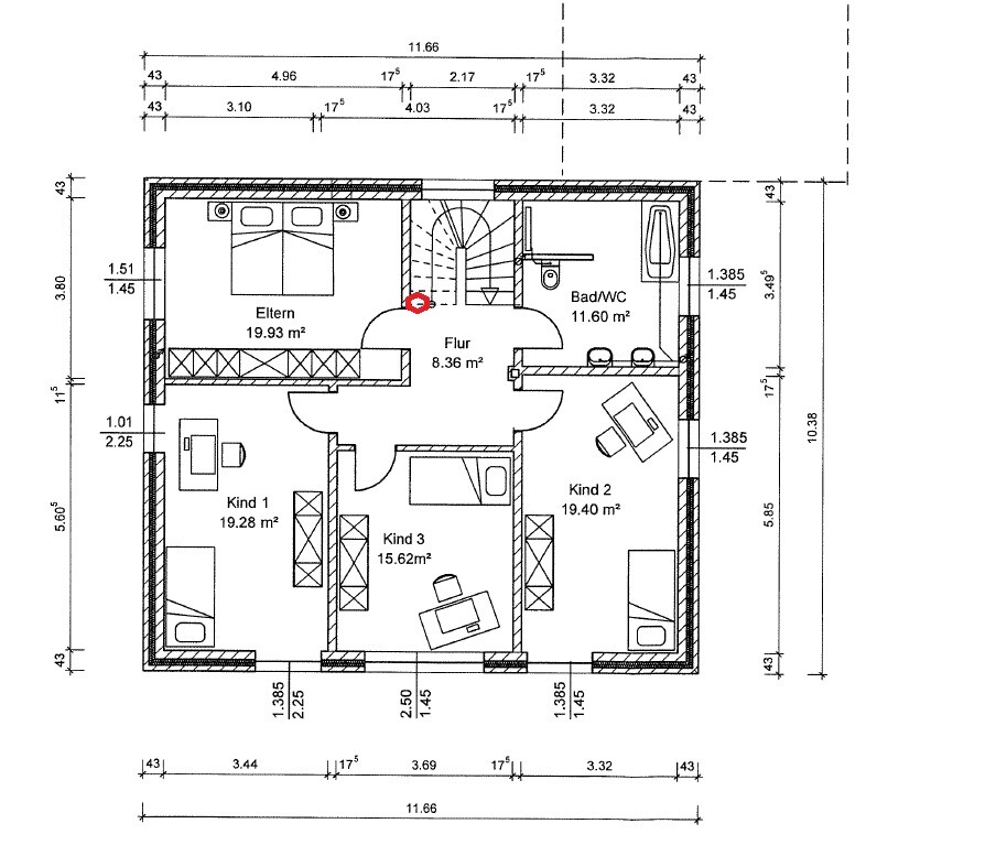
- im DG kommt im Flur an der Rigipswand eben ein Access-Point (Deckenhöhe)
Frage: reicht das aus bzw. sind die Position geeignet und könnt ihr bestimmte Produkte empfehlen ?
Danke und Gruß !



möchte zusätzlich WLAN im ganzen Haus haben.
Folgender Überlegung :
- im EG kommt der Router unterhalb der Treppe vor dem Hauswirtschaftsraum (ist eigentlich nicht ganz eingedrückt, Körperhöhe)
- im OG kommt an der Treppe zum DG ein Access-Point (Deckenhöhe)
- im DG kommt im Flur an der Rigipswand eben ein Access-Point (Deckenhöhe)
Frage: reicht das aus bzw. sind die Position geeignet und könnt ihr bestimmte Produkte empfehlen ?
Danke und Gruß !
S
SteffenBank04.03.20 09:19Hast du an allen Stellen einen LAN-Anschluss liegen? Wenn ja, dann würde ich im OG und DG je einen Unifi Accesspoint AC Lite an der Decke installieren.
SteffenBank schrieb:
Hast du an allen Stellen einen LAN-Anschluss liegen? Wenn ja, dann würde ich im OG und DG je einen Unifi Accesspoint AC Lite an der Decke installieren.wenn die Positionen passen, dann lasse ich welche dort legen (habe noch paar Tage, dann kommt der Verputzer) ...im EG am Hauswirtschaftsraum ist es zumindest schon mit dem Elektriker geplant.
S
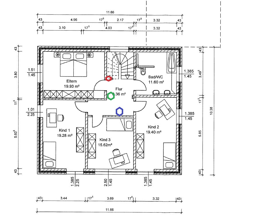
SteffenBank04.03.20 09:26Optimaler wäre es bei den Accesspoint natürlich, wenn sie Zentral im Geschoss sind, also im OG würde ich ihn weiter Richtung Kind 3 setzen. Die Accesspoint brauchen entweder eine Steckdose oder sie müssen mit poe über das LAN-Kabel versorgt werden.
SteffenBank schrieb:
Optimaler wäre es bei den Accesspoint natürlich, wenn sie Zentral im Geschoss sind, also im OG würde ich ihn weiter Richtung Kind 3 setzen. Die Accesspoint brauchen entweder eine Steckdose oder sie müssen mit poe über das LAN-Kabel versorgt werden.so, grüne oder blaue Position ?
ist es denn egal ob über Poe oder Steckdose ?
Ähnliche Themen