A
atomic200001.07.19 13:54Hallo,
ich habe mir ein Reihenhaus gekauft und bin dabei den Renovierungsplan aufzustellen.
Vorab die Info, dass ich in dem Gebiet ein absoluter Anfänger bin
Im EG (Wohn, und Esszimmer) liegen in Moment Fließen. Da der Boden für meine Kinder warm sein soll suche ich nach einer kostengünstigen Möglichkeit das zu realisieren.
Hier einige Daten. Baujahr 1986, Wohn,- und Esszimmer ca 30m², darunter befinden sich zum Teil beheizte Kellerräume.
Das steht bei mir in der Baubeschreibung: "Stahlbetondecken gem. Statik, Folie, 36/30 Dämmung, Folie, 4cm Estrich"
Als Bodenbelag wollte ich entweder PVC-freien Klick Designboden (wegen Zugang zur Terrasse) oder Klick-Parkett haben.
Alle von mir kontaktierte Anbieter empfehlen mir die Fräs-Methode.
Aber brauche ich wirklich eine Fußbodenheizung um einen nicht kalten Boden für die Kinder zu bekommen?
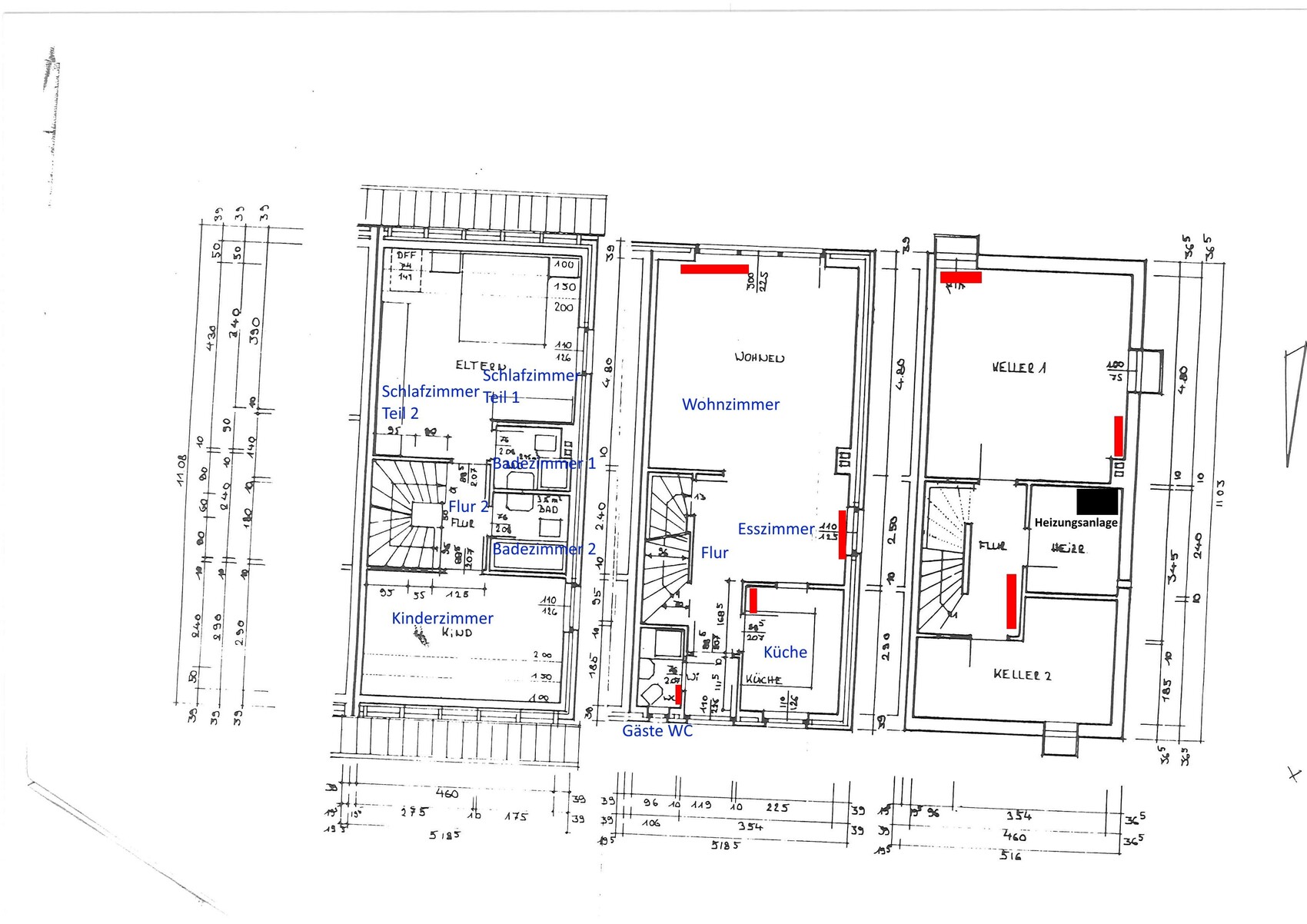
Anbei der Grundriss. Die Heizungen habe ich in dem angehängten Bild für EG und Keller rot markiert.

ich habe mir ein Reihenhaus gekauft und bin dabei den Renovierungsplan aufzustellen.
Vorab die Info, dass ich in dem Gebiet ein absoluter Anfänger bin
Im EG (Wohn, und Esszimmer) liegen in Moment Fließen. Da der Boden für meine Kinder warm sein soll suche ich nach einer kostengünstigen Möglichkeit das zu realisieren.
Hier einige Daten. Baujahr 1986, Wohn,- und Esszimmer ca 30m², darunter befinden sich zum Teil beheizte Kellerräume.
Das steht bei mir in der Baubeschreibung: "Stahlbetondecken gem. Statik, Folie, 36/30 Dämmung, Folie, 4cm Estrich"
Als Bodenbelag wollte ich entweder PVC-freien Klick Designboden (wegen Zugang zur Terrasse) oder Klick-Parkett haben.
Alle von mir kontaktierte Anbieter empfehlen mir die Fräs-Methode.
Aber brauche ich wirklich eine Fußbodenheizung um einen nicht kalten Boden für die Kinder zu bekommen?
Anbei der Grundriss. Die Heizungen habe ich in dem angehängten Bild für EG und Keller rot markiert.
Wenn der einzige Grund die auf dem Boden spielenden Kinder sind, schlage ich einen Teppich oder eine Spielmatte vor. Maximal eine Anpassung des Belags Richtung Holz oder Kork (Achtung, das verblasst recht schnell in der Sonne und sieht dann oll aus. Gibt es aber auch als Trägermaterial mit beständigerem Dekor darauf).
Deshalb das ganze Heizsystem umzuschmeißen erscheint mir ziemlich übertrieben. Sage ich als Freund von Fußbodenheizungen. Wenn ihr eigentlich alle eine wollt, ist das etwas anderes, aber danach klingt es mir nicht…
Deshalb das ganze Heizsystem umzuschmeißen erscheint mir ziemlich übertrieben. Sage ich als Freund von Fußbodenheizungen. Wenn ihr eigentlich alle eine wollt, ist das etwas anderes, aber danach klingt es mir nicht…
A
atomic200001.07.19 14:36Danke für die Antworten,
meine Frau will auch keine kalten Füße haben. Wir haben beide keine Erfahrungen und mir ist es egal. Die Heizung in der Küche stört und wir werden sie ersatzlos entfernen. Die Wohnzimmer-Heizung neben dem Fenster ist etwas blöd platziert. Aber dafür 5k auszugeben?
PS. Kamin haben wir auch
meine Frau will auch keine kalten Füße haben. Wir haben beide keine Erfahrungen und mir ist es egal. Die Heizung in der Küche stört und wir werden sie ersatzlos entfernen. Die Wohnzimmer-Heizung neben dem Fenster ist etwas blöd platziert. Aber dafür 5k auszugeben?
PS. Kamin haben wir auch
Wenn ihr die Heizkörper behalten wollt, finde ich es auch übertrieben, zum Spielen das komplette Heizsystem umzukrempeln. Fliesen fühlen sich kälter an als Holz, dann gibt es wie erwähnt noch Teppiche und dicke Socken. Wenn unten drunter beheizte Räume sind, sollte es sowieso nicht so kalt werden.
A
atomic200001.07.19 14:43Nein, die Lösung wäre entweder im EG die Fußbodenheizung oder die konventionellen Heizkörper.
Aber nun auch nach euren Antworten tendiere ich mehr zu den konventionellen Heizkörper.
Aber nun auch nach euren Antworten tendiere ich mehr zu den konventionellen Heizkörper.
Ähnliche Themen