ᐅ Parkett und Fliesen in einem Raum
Erstellt am: 11.09.22 21:03
K
Katha-rina11.09.22 21:03Hallo zusammen,
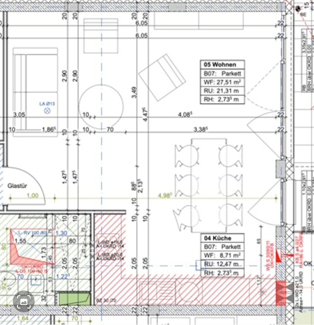
Ich bräuchte bitte einmal euren Rat und zwar stehen wir vor der Entscheidung welchen Bodenbelag wir in unserem offenen Wohnbereich verlegen möchten. Fest steht, dass wir in der Küche Fliesen und im Wohnbereich Parkett möchten. Uneinig sind wir uns noch wo wir diesen Bereich abtrennen möchten.
- Idee 1: Linie bei der eingezogenen Wand, Problem: Beim Fenster bei Küche sowohl Fliesen als auch Parkett
- Idee 2: Bereich um Küche in L-Form fliesen, 1,20 m von Wand
Welche Option findet ihr besser oder gibt es vielleicht noch ganz andere Ideen? Eine Änderung vom Grundriss oder ähnliches ist nicht möglich. 😉

Besten Dank vorab.
Ich bräuchte bitte einmal euren Rat und zwar stehen wir vor der Entscheidung welchen Bodenbelag wir in unserem offenen Wohnbereich verlegen möchten. Fest steht, dass wir in der Küche Fliesen und im Wohnbereich Parkett möchten. Uneinig sind wir uns noch wo wir diesen Bereich abtrennen möchten.
- Idee 1: Linie bei der eingezogenen Wand, Problem: Beim Fenster bei Küche sowohl Fliesen als auch Parkett
- Idee 2: Bereich um Küche in L-Form fliesen, 1,20 m von Wand
Welche Option findet ihr besser oder gibt es vielleicht noch ganz andere Ideen? Eine Änderung vom Grundriss oder ähnliches ist nicht möglich. 😉
Besten Dank vorab.
F
fach1werk11.09.22 21:24Habt Ihr Trennschnitte im Estrich?
M
Myrna_Loy11.09.22 21:27K
Katha-rina11.09.22 21:29fach1werk schrieb:
Habt Ihr Trennschnitte im Estrich?Der Estrich ist noch ausstehendF
fach1werk11.09.22 21:49Wir haben auch zwei Beläge im offenen Wohnbereich. Bei uns liess sich das sinnvoll dort trennen wo ohnehin Trennschnitte waren. Es gibt zwei grosse Blöcke Fliesen und Dielen. Die Dielen an Terrassentüren werden aber ganz schön strapaziert (Erdgeschoss). Hier wäre vielleicht ein etwas kleinräumigerer Belagswechsel doch gut gewesen, eine Art Sauberlaufbereich mit Fliesenbelag.
Aber verstehe ich es richtig dass bei Option 1 unter dem esstisch dann halb Fliesen halb Parkett wäre ? Das sieht ja komisch aus . Habt ihr Kinder ? Wenn ja würde ich die Fliesen um
Den gesamten Esstisch Bereich erweitern …. Und nur so ein 1,20
Fliesen strich macht auch nicht glücklich optisch .
wart ihr schon mal in einem
Vapiano ? Da ist der Boden komplett Holz und den ganzen Winter rennen die Leute da mit Straßenschuhen rum
Und essen . Der Boden sieht immer noch gut aus . Ich wäre daher für Holz überall .
Den gesamten Esstisch Bereich erweitern …. Und nur so ein 1,20
Fliesen strich macht auch nicht glücklich optisch .
wart ihr schon mal in einem
Vapiano ? Da ist der Boden komplett Holz und den ganzen Winter rennen die Leute da mit Straßenschuhen rum
Und essen . Der Boden sieht immer noch gut aus . Ich wäre daher für Holz überall .
Ähnliche Themen