ᐅ Verlegen der Abwasserleitung Neubau
Erstellt am: 19.04.20 15:17
Hallo,
bin neu hier und als "Baufrau" technisch nicht so bewandert. Bin froh dieses Forum gefunden zu haben.
Morgen soll der Ersttermin auf der Baustelle sein. Baue einen Bungalow ohne Keller mit Heinz von Heiden , also so gut wie alles aus einer Hand.
Die Grundstücksgegebenheiten sind so, dass neben dem Haus bis zur Nachbargrenze die Baustraße und künftige Einfahrt hin muss. abzüglich des Gründungspolsters ums Haus steht damit eine Breite von ca. 3,50 zur Verfügung.
Jetzt hat der Tiefbauer der vom GU beauftragten Firma ein Angebot für die Baustraße gemacht in gesamter Breite. Es müssen allerdings zwischen Gründungspolster und Baustraße noch die Abwasserleitungen (Schmutzwasser sowie Regenwasser) verlegte werden.
Diese Arbeiten hat der Tiefbauer in einem Zusatzangebot für über 10000,-€ Euro angeboten!!!
Wir reden über ca. 40 Meter Grabenlänge...
Die Ausführung durch ihn ist also undiskutabel. Jetzt habe ich eine Firma , die dies zu einem annehmbaren Preis macht.
Meine Frage.
An welcher Stelle vom Hausbau Ablaufplan werden die Enrwässerungsleitungen gelegt?
Ist es sinnvoll dies zu erledigen vor dem Befestigen der Baustraße und damit bevor die Bodenplatte gemacht wird. Dies vor dem Hintergrund, dass dann die Baustraße nicht wieder aufgeschachtet werden muss. Ist dies überhaupt technisch machbar, da ja noch keine Rohre vom Haus/Bodenplatte liegen. Und können zwei Firmen parallel nebeneinander die Arbeiten überhaupt ausführen?
Oder lässt man eine 50 cm Streifen "frei" zwischen Gründungspolster und Baustraße (diese dann nur 3 Meter breit), um dass im Nachgang da geschachtet und die Abwasserrohre verlegt werden können. Möchte nicht zweimal Geld ausgeben und die verdichtete Baustraße im Nachgang wieder aufschachten.
Dem Tiefbauer ist es egal. Je mehr Masse um so mehr Verdienst.
Ähnlich verhält es sich mit der Befestigung an der Seite der Baustraße zum Nachbarn. Möchte genau auf der Grenze L-Steine setzen lassen, da ich etwas tiefer wie der Nachbar bin, zudem soll der Zaun darauf montiert werden. Für mich macht es Sinn dass bevor die Baustraße verdichtet und aufgefüllt wird die Steine gesetzt werden. Der Tiefbauer hat keine Ahnung, ist mehr fürs Grobe... Also müssten auch da zwei Firmen agieren...
Danke für eure schnellen Tipps, damit ich morgen Nachmittag mit reden kann.
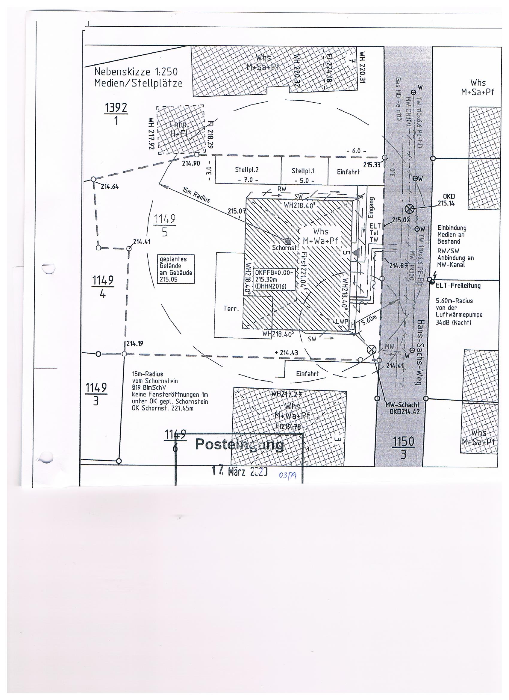
Anbei der Entwässerungs- und Lageplan


bin neu hier und als "Baufrau" technisch nicht so bewandert. Bin froh dieses Forum gefunden zu haben.
Morgen soll der Ersttermin auf der Baustelle sein. Baue einen Bungalow ohne Keller mit Heinz von Heiden , also so gut wie alles aus einer Hand.
Die Grundstücksgegebenheiten sind so, dass neben dem Haus bis zur Nachbargrenze die Baustraße und künftige Einfahrt hin muss. abzüglich des Gründungspolsters ums Haus steht damit eine Breite von ca. 3,50 zur Verfügung.
Jetzt hat der Tiefbauer der vom GU beauftragten Firma ein Angebot für die Baustraße gemacht in gesamter Breite. Es müssen allerdings zwischen Gründungspolster und Baustraße noch die Abwasserleitungen (Schmutzwasser sowie Regenwasser) verlegte werden.
Diese Arbeiten hat der Tiefbauer in einem Zusatzangebot für über 10000,-€ Euro angeboten!!!
Wir reden über ca. 40 Meter Grabenlänge...
Die Ausführung durch ihn ist also undiskutabel. Jetzt habe ich eine Firma , die dies zu einem annehmbaren Preis macht.
Meine Frage.
An welcher Stelle vom Hausbau Ablaufplan werden die Enrwässerungsleitungen gelegt?
Ist es sinnvoll dies zu erledigen vor dem Befestigen der Baustraße und damit bevor die Bodenplatte gemacht wird. Dies vor dem Hintergrund, dass dann die Baustraße nicht wieder aufgeschachtet werden muss. Ist dies überhaupt technisch machbar, da ja noch keine Rohre vom Haus/Bodenplatte liegen. Und können zwei Firmen parallel nebeneinander die Arbeiten überhaupt ausführen?
Oder lässt man eine 50 cm Streifen "frei" zwischen Gründungspolster und Baustraße (diese dann nur 3 Meter breit), um dass im Nachgang da geschachtet und die Abwasserrohre verlegt werden können. Möchte nicht zweimal Geld ausgeben und die verdichtete Baustraße im Nachgang wieder aufschachten.
Dem Tiefbauer ist es egal. Je mehr Masse um so mehr Verdienst.
Ähnlich verhält es sich mit der Befestigung an der Seite der Baustraße zum Nachbarn. Möchte genau auf der Grenze L-Steine setzen lassen, da ich etwas tiefer wie der Nachbar bin, zudem soll der Zaun darauf montiert werden. Für mich macht es Sinn dass bevor die Baustraße verdichtet und aufgefüllt wird die Steine gesetzt werden. Der Tiefbauer hat keine Ahnung, ist mehr fürs Grobe... Also müssten auch da zwei Firmen agieren...
Danke für eure schnellen Tipps, damit ich morgen Nachmittag mit reden kann.
Anbei der Entwässerungs- und Lageplan
V
Vicky Pedia19.04.20 19:18Hallo mutige Frau! Es geht ja generell um alle Medien, die in den Außenanlagen liegen. Also Trinkwasser, Elektro, Telekom, sowie Schmutz- und Regenwasser. Die Entwässerung geht bei Dir in einen Mischwasserkanal, wird also zusammengeführt.
Diese Tiefbauleistungen macht man, wenn das Haus steht und das Gerüst weg ist. Es macht dann Sinn, alles mit einer Tiefbaufirma zu erledigen. Vom Ablauf her läuft der finale Innenausbau und draußen ist Platz zum Hantieren für der Tiefbauer, der dann sicher auch die Stellplätze mit anlegt.
Ich habe letztes Jahr eine fast identische Situation gehabt, so ein Zufall.
Viel Glück bei Deinem Vorhaben.
Diese Tiefbauleistungen macht man, wenn das Haus steht und das Gerüst weg ist. Es macht dann Sinn, alles mit einer Tiefbaufirma zu erledigen. Vom Ablauf her läuft der finale Innenausbau und draußen ist Platz zum Hantieren für der Tiefbauer, der dann sicher auch die Stellplätze mit anlegt.
Ich habe letztes Jahr eine fast identische Situation gehabt, so ein Zufall.
Viel Glück bei Deinem Vorhaben.
Pet1234 schrieb:
Diese Arbeiten hat der Tiefbauer in einem Zusatzangebot für über 10000,-€ Euro angeboten!!!Wow!Pet1234 schrieb:
Wir reden über ca. 40 Meter Grabenlänge...Ach so.Pet1234 schrieb:
An welcher Stelle vom Hausbau Ablaufplan werden die Enrwässerungsleitungen gelegt?Später. Dann, wenn alle Abflüsse der Toiletten nach Entwässerungsplan fix sind und die Regenrinnen montiert. Dann erst beginnt der Aushub der Entwässerung.H
HilfeHilfe20.04.20 06:34wie weit sind den die Anbieter preislich auseinander ?
Ich würde nichts aus dem Vertrag rausnehmen sofern Heinz von Heiden auf dem Logo steht. Gewähr usw
Ich würde nichts aus dem Vertrag rausnehmen sofern Heinz von Heiden auf dem Logo steht. Gewähr usw
Ähnliche Themen