Hallo zusammen,
nach langer Suche nach einem passenden Grundstück sind wir nun endlich fündig geworden. Wir kaufen schlüsselfertig vom Bauträger, der uns drei Vorschläge für den Grundriss erstellt hat. Zwei davon sind bei uns gleich durchgefallen, der dritte kommt unseren Vorstellungen zwar am nächsten, aber dennoch sind wir nicht voll überzeugt.
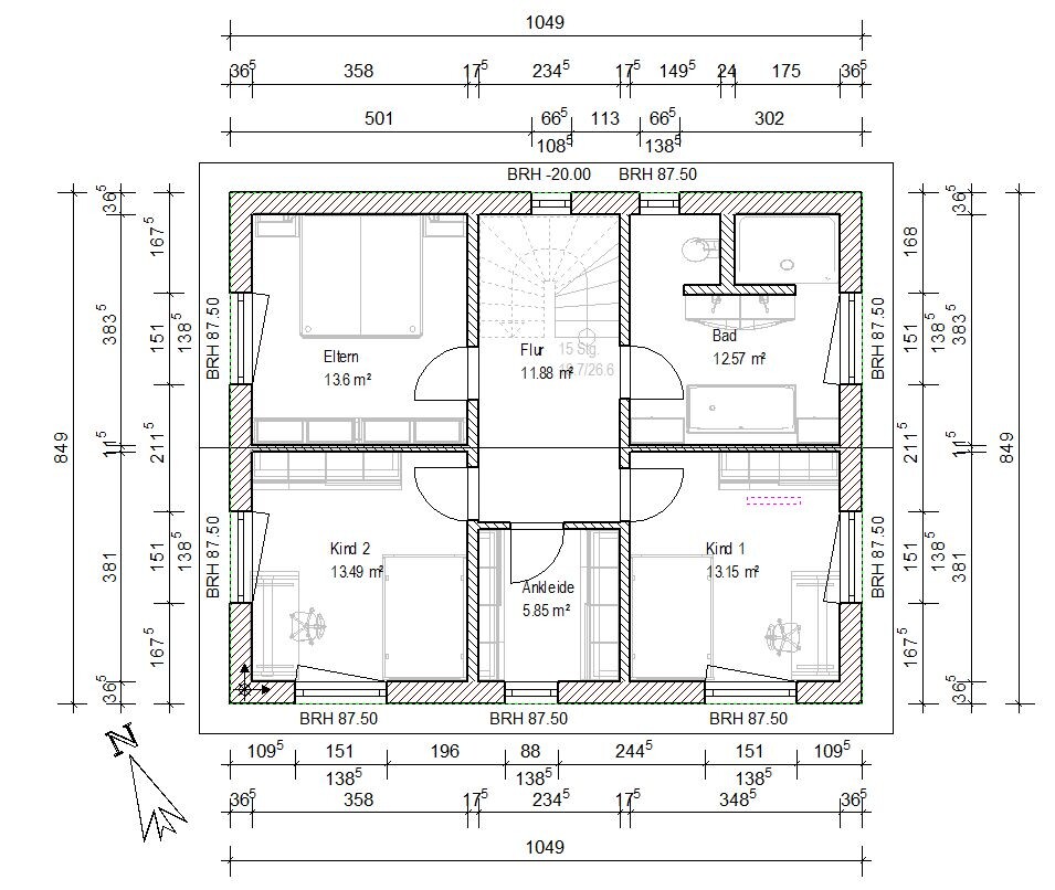
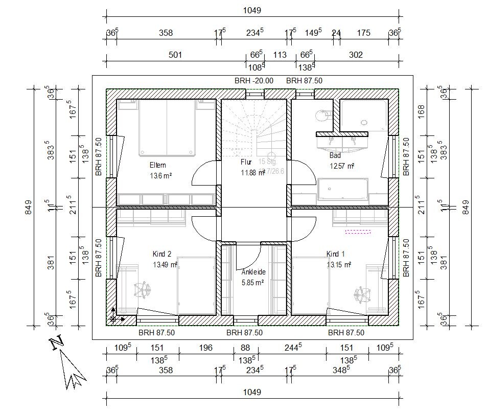
Die Planung für das OG gefällt uns gut, diese würden wir gerne so belassen.
Das EG bereitet uns jedoch Kopfzerbrechen. Konkret geht es um den Bereich Wohnzimmer/Esszimmer/Küche. Die jetzige Planung sieht eine Küche in U-Form vor. Uns wäre jedoch eine Lösung mit Kücheninsel lieber. Dazu bräuchten wir jedoch mehr Platz. Diesen Platz haben wir dafür im Wohnzimmer zu viel (unserer Meinung nach). Der Abstand von Wand zu Wand beträgt 4,50 Meter, damit wäre der Abstand zwischen Couch und Fernseher für uns zu groß (Hinweis: unser derzeitiges Wohnzimmer hat die Maße 3,40 x 4,50 m, d.h. Abstand zwischen Couch und Fernseher sind 3,40 und das ist unserer Ansicht nach optimal).
Wir haben deshalb in Erwägung gezogen, Wohnzimmer und Küche zu tauschen. Dann würde zwar eine Küche mit Insel passen, aber das Wohnzimmer wäre zu klein, da die Breite dort (wg. der Garderobennische) nur 2,80 Meter beträgt. Einen anderen Platz für die Garderobe sehen wir leider auch nicht, da der Flur nicht allzu viel Platz bietet.
Wir hoffen deshalb hier auf Anregungen bzw. Verbesserungsvorschläge.
Hier noch der Fragenkatalog:
Bebauungsplan/Einschränkungen
Größe des Grundstücks: ca. 430 qm
Hang: nein
Grundflächenzahl: 0,35
Geschossflächenzahl: -
Baufenster, Baulinie und -grenze:-
Randbebauung: -
Anzahl Stellplatz: 2
Geschossigkeit: 2 Vollgeschosse
Dachform: Satteldach
Stilrichtung: -
Ausrichtung: S - SW
Maximale Höhen/Begrenzungen:-
weitere Vorgaben:-
Anforderungen der Bauherren
Stilrichtung, Dachform, Gebäudetyp: Satteldach
Keller, Geschosse: 2 Vollgeschosse
Anzahl der Personen, Alter: derzeit noch 2 (beide Mitte 30), zukünftig noch 2 Kinder
Raumbedarf im EG: Wohnzimmer, Esszimmer, Küche, Gäste-WC, Technik, kleines Büro
Raumbedarf im OG: Schlafzimmer, Ankleide, 2 Kinderzimmer, Bad
Büro: Familiennutzung oder Homeoffice? Beides
Schlafgäste pro Jahr: ca. 3 Übernachtungen pro Jahr
offene oder geschlossene Architektur: offen
konservativ oder moderne Bauweise: modern
offene Küche, Kochinsel: ja
Anzahl Essplätze: für 6 Personen (erweiterbar auf 8)
Kamin: nein
Musik/Stereowand: nein
Balkon, Dachterrasse: nein
Garage, Carport: Doppelcarport
Nutzgarten, Treibhaus: nein
weitere Wünsche/Besonderheiten/Tagesablauf, gern auch Begründungen, warum dieses oder das nicht sein soll: -
Hausentwurf
Von wem stammt die Planung: Planer eines Bauunternehmens
Was gefällt besonders? Warum?: Aufteilung im OG aus unserer Sicht optimal
Was gefällt nicht? Warum?: Aufteilung im EG (Wohnzimmer, Esszimmer, Küche, Garderobe; s.o. wg. Problembeschreibung
favorisierte Heiztechnik: Wärmepumpe
Wenn Ihr verzichten müsst, auf welche Details/Ausbauten
-könnt Ihr verzichten: -
-könnt Ihr nicht verzichten: Ankleide; offener Bereich Wohnen/Essen/Kochen; Hauszugang von der Straßenseite
Warum ist der Entwurf so geworden, wie er jetzt ist?: Entwurf vom Planer mit unseren Angaben zu benötigten Räumen und Gesamtgröße
Was macht ihn in Euren Augen besonders gut oder schlecht?: s.o. wg. Problembeschreibung
Was ist die wichtigste/grundlegende Frage zum Grundriss in 130 Zeichen zusammengefasst?:
Macht es Sinn, Wohnzimmer und Küche zu tauschen (siehe Problembeschreibung oben)? Wenn ja, wo könnte die Garderobe sonst platziert werden, ohne dass der Flur zu eng wird? Ist das Büro von der Größe her noch in Ordnung?
Wir würden uns sehr über einige Anregungen bzw. Verbesserungsvorschläge von euch freuen.


nach langer Suche nach einem passenden Grundstück sind wir nun endlich fündig geworden. Wir kaufen schlüsselfertig vom Bauträger, der uns drei Vorschläge für den Grundriss erstellt hat. Zwei davon sind bei uns gleich durchgefallen, der dritte kommt unseren Vorstellungen zwar am nächsten, aber dennoch sind wir nicht voll überzeugt.
Die Planung für das OG gefällt uns gut, diese würden wir gerne so belassen.
Das EG bereitet uns jedoch Kopfzerbrechen. Konkret geht es um den Bereich Wohnzimmer/Esszimmer/Küche. Die jetzige Planung sieht eine Küche in U-Form vor. Uns wäre jedoch eine Lösung mit Kücheninsel lieber. Dazu bräuchten wir jedoch mehr Platz. Diesen Platz haben wir dafür im Wohnzimmer zu viel (unserer Meinung nach). Der Abstand von Wand zu Wand beträgt 4,50 Meter, damit wäre der Abstand zwischen Couch und Fernseher für uns zu groß (Hinweis: unser derzeitiges Wohnzimmer hat die Maße 3,40 x 4,50 m, d.h. Abstand zwischen Couch und Fernseher sind 3,40 und das ist unserer Ansicht nach optimal).
Wir haben deshalb in Erwägung gezogen, Wohnzimmer und Küche zu tauschen. Dann würde zwar eine Küche mit Insel passen, aber das Wohnzimmer wäre zu klein, da die Breite dort (wg. der Garderobennische) nur 2,80 Meter beträgt. Einen anderen Platz für die Garderobe sehen wir leider auch nicht, da der Flur nicht allzu viel Platz bietet.
Wir hoffen deshalb hier auf Anregungen bzw. Verbesserungsvorschläge.
Hier noch der Fragenkatalog:
Bebauungsplan/Einschränkungen
Größe des Grundstücks: ca. 430 qm
Hang: nein
Grundflächenzahl: 0,35
Geschossflächenzahl: -
Baufenster, Baulinie und -grenze:-
Randbebauung: -
Anzahl Stellplatz: 2
Geschossigkeit: 2 Vollgeschosse
Dachform: Satteldach
Stilrichtung: -
Ausrichtung: S - SW
Maximale Höhen/Begrenzungen:-
weitere Vorgaben:-
Anforderungen der Bauherren
Stilrichtung, Dachform, Gebäudetyp: Satteldach
Keller, Geschosse: 2 Vollgeschosse
Anzahl der Personen, Alter: derzeit noch 2 (beide Mitte 30), zukünftig noch 2 Kinder
Raumbedarf im EG: Wohnzimmer, Esszimmer, Küche, Gäste-WC, Technik, kleines Büro
Raumbedarf im OG: Schlafzimmer, Ankleide, 2 Kinderzimmer, Bad
Büro: Familiennutzung oder Homeoffice? Beides
Schlafgäste pro Jahr: ca. 3 Übernachtungen pro Jahr
offene oder geschlossene Architektur: offen
konservativ oder moderne Bauweise: modern
offene Küche, Kochinsel: ja
Anzahl Essplätze: für 6 Personen (erweiterbar auf 8)
Kamin: nein
Musik/Stereowand: nein
Balkon, Dachterrasse: nein
Garage, Carport: Doppelcarport
Nutzgarten, Treibhaus: nein
weitere Wünsche/Besonderheiten/Tagesablauf, gern auch Begründungen, warum dieses oder das nicht sein soll: -
Hausentwurf
Von wem stammt die Planung: Planer eines Bauunternehmens
Was gefällt besonders? Warum?: Aufteilung im OG aus unserer Sicht optimal
Was gefällt nicht? Warum?: Aufteilung im EG (Wohnzimmer, Esszimmer, Küche, Garderobe; s.o. wg. Problembeschreibung
favorisierte Heiztechnik: Wärmepumpe
Wenn Ihr verzichten müsst, auf welche Details/Ausbauten
-könnt Ihr verzichten: -
-könnt Ihr nicht verzichten: Ankleide; offener Bereich Wohnen/Essen/Kochen; Hauszugang von der Straßenseite
Warum ist der Entwurf so geworden, wie er jetzt ist?: Entwurf vom Planer mit unseren Angaben zu benötigten Räumen und Gesamtgröße
Was macht ihn in Euren Augen besonders gut oder schlecht?: s.o. wg. Problembeschreibung
Was ist die wichtigste/grundlegende Frage zum Grundriss in 130 Zeichen zusammengefasst?:
Macht es Sinn, Wohnzimmer und Küche zu tauschen (siehe Problembeschreibung oben)? Wenn ja, wo könnte die Garderobe sonst platziert werden, ohne dass der Flur zu eng wird? Ist das Büro von der Größe her noch in Ordnung?
Wir würden uns sehr über einige Anregungen bzw. Verbesserungsvorschläge von euch freuen.
Erstmal muss man hier mal die 100%ig supergute Threaderöffnung lobend hervorheben. Da ist wirklich an einer Stelle alles zusammen, was man immer so fragt.
Und dann bringt es auch Spaß mal etwas zu testen.
Flur ist mit 110 cm zu schmal, Büro fand ich auch mit 180 cm Raumbreite zu schmal, Dusche, wenn es denn sein soll .. ok.
Technikraum .. was soll da alles rein, Tür sitzt dort ungünstig.
OG .. beide Kinderzimmer nach Süd wäre besser und Elternschlafzimmer so, dass doch noch ein schrank etc. passen könnte.
Auf jeden Fall habe ich mal geschoben .
Technikraum jetzt in den Osten, näher zur Straße, das dürfte auch günstiger werden. Dafür kleiner, vielleicht so, dass man rechts Richtung Fenster noch Waschmaschine etc. stellen kann und den Kinderwagen dort mal reinschiebt. Dafür Platz unter der Treppe für Staubsauger und Konsorten und eine Vorratshaltung angedacht.
Bad im EG noch kleiner, reicht für eine 70 cm schmale aber bodentiefe Dusche und ein Miniwaschbecken. Garderobe als Vorflur zum Büro, dass jetzt wenigstens 215 cm tief ist. Da würde auch mal statt Schreibtisch ein Gästebett passen.
Türen alle so versucht zu optimieren, dass da möglichst noch Schrank dahinter passt.
Wohnzimmer jetzt in den Nordwesten, für den Esstisch normale Fenster, dann kann dort auf der Terrasse auch eine Bank unter dem Fenster stehen. Hauptausgangspunkt für die Terrasse ist die Schiebetür im Küchenbereich.
Im OG weiterhin den Schrankraum, wenn das Fenster dort mittig über der Schiebetür unten sein soll, passen links nur tiefenreduzierte Schränke, rechts normaltief. Jeweils wieder mal im Ikea-Pax-Maß. Dafür passt jetzt im Elternschlafzimmer noch eine Kommodenreihe oder sogar noch richtig Kleiderschränke.
Dem OG-Bad habe ich noch ein schmales Fenster gegönnt und Dusche/WC getauscht.

Und dann bringt es auch Spaß mal etwas zu testen.
Flur ist mit 110 cm zu schmal, Büro fand ich auch mit 180 cm Raumbreite zu schmal, Dusche, wenn es denn sein soll .. ok.
Technikraum .. was soll da alles rein, Tür sitzt dort ungünstig.
OG .. beide Kinderzimmer nach Süd wäre besser und Elternschlafzimmer so, dass doch noch ein schrank etc. passen könnte.
Auf jeden Fall habe ich mal geschoben .
Technikraum jetzt in den Osten, näher zur Straße, das dürfte auch günstiger werden. Dafür kleiner, vielleicht so, dass man rechts Richtung Fenster noch Waschmaschine etc. stellen kann und den Kinderwagen dort mal reinschiebt. Dafür Platz unter der Treppe für Staubsauger und Konsorten und eine Vorratshaltung angedacht.
Bad im EG noch kleiner, reicht für eine 70 cm schmale aber bodentiefe Dusche und ein Miniwaschbecken. Garderobe als Vorflur zum Büro, dass jetzt wenigstens 215 cm tief ist. Da würde auch mal statt Schreibtisch ein Gästebett passen.
Türen alle so versucht zu optimieren, dass da möglichst noch Schrank dahinter passt.
Wohnzimmer jetzt in den Nordwesten, für den Esstisch normale Fenster, dann kann dort auf der Terrasse auch eine Bank unter dem Fenster stehen. Hauptausgangspunkt für die Terrasse ist die Schiebetür im Küchenbereich.
Im OG weiterhin den Schrankraum, wenn das Fenster dort mittig über der Schiebetür unten sein soll, passen links nur tiefenreduzierte Schränke, rechts normaltief. Jeweils wieder mal im Ikea-Pax-Maß. Dafür passt jetzt im Elternschlafzimmer noch eine Kommodenreihe oder sogar noch richtig Kleiderschränke.
Dem OG-Bad habe ich noch ein schmales Fenster gegönnt und Dusche/WC getauscht.
Ähnliche Themen