Hallo zusammen,
nach langer Suche nach einem passenden Grundstück sind wir nun endlich fündig geworden. Wir kaufen schlüsselfertig vom Bauträger, der uns drei Vorschläge für den Grundriss erstellt hat. Zwei davon sind bei uns gleich durchgefallen, der dritte kommt unseren Vorstellungen zwar am nächsten, aber dennoch sind wir nicht voll überzeugt.
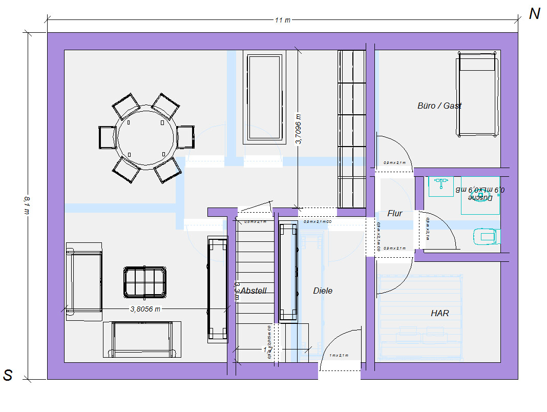
Die Planung für das OG gefällt uns gut, diese würden wir gerne so belassen.
Das EG bereitet uns jedoch Kopfzerbrechen. Konkret geht es um den Bereich Wohnzimmer/Esszimmer/Küche. Die jetzige Planung sieht eine Küche in U-Form vor. Uns wäre jedoch eine Lösung mit Kücheninsel lieber. Dazu bräuchten wir jedoch mehr Platz. Diesen Platz haben wir dafür im Wohnzimmer zu viel (unserer Meinung nach). Der Abstand von Wand zu Wand beträgt 4,50 Meter, damit wäre der Abstand zwischen Couch und Fernseher für uns zu groß (Hinweis: unser derzeitiges Wohnzimmer hat die Maße 3,40 x 4,50 m, d.h. Abstand zwischen Couch und Fernseher sind 3,40 und das ist unserer Ansicht nach optimal).
Wir haben deshalb in Erwägung gezogen, Wohnzimmer und Küche zu tauschen. Dann würde zwar eine Küche mit Insel passen, aber das Wohnzimmer wäre zu klein, da die Breite dort (wg. der Garderobennische) nur 2,80 Meter beträgt. Einen anderen Platz für die Garderobe sehen wir leider auch nicht, da der Flur nicht allzu viel Platz bietet.
Wir hoffen deshalb hier auf Anregungen bzw. Verbesserungsvorschläge.
Hier noch der Fragenkatalog:
Bebauungsplan/Einschränkungen
Größe des Grundstücks: ca. 430 qm
Hang: nein
Grundflächenzahl: 0,35
Geschossflächenzahl: -
Baufenster, Baulinie und -grenze:-
Randbebauung: -
Anzahl Stellplatz: 2
Geschossigkeit: 2 Vollgeschosse
Dachform: Satteldach
Stilrichtung: -
Ausrichtung: S - SW
Maximale Höhen/Begrenzungen:-
weitere Vorgaben:-
Anforderungen der Bauherren
Stilrichtung, Dachform, Gebäudetyp: Satteldach
Keller, Geschosse: 2 Vollgeschosse
Anzahl der Personen, Alter: derzeit noch 2 (beide Mitte 30), zukünftig noch 2 Kinder
Raumbedarf im EG: Wohnzimmer, Esszimmer, Küche, Gäste-WC, Technik, kleines Büro
Raumbedarf im OG: Schlafzimmer, Ankleide, 2 Kinderzimmer, Bad
Büro: Familiennutzung oder Homeoffice? Beides
Schlafgäste pro Jahr: ca. 3 Übernachtungen pro Jahr
offene oder geschlossene Architektur: offen
konservativ oder moderne Bauweise: modern
offene Küche, Kochinsel: ja
Anzahl Essplätze: für 6 Personen (erweiterbar auf 8)
Kamin: nein
Musik/Stereowand: nein
Balkon, Dachterrasse: nein
Garage, Carport: Doppelcarport
Nutzgarten, Treibhaus: nein
weitere Wünsche/Besonderheiten/Tagesablauf, gern auch Begründungen, warum dieses oder das nicht sein soll: -
Hausentwurf
Von wem stammt die Planung: Planer eines Bauunternehmens
Was gefällt besonders? Warum?: Aufteilung im OG aus unserer Sicht optimal
Was gefällt nicht? Warum?: Aufteilung im EG (Wohnzimmer, Esszimmer, Küche, Garderobe; s.o. wg. Problembeschreibung
favorisierte Heiztechnik: Wärmepumpe
Wenn Ihr verzichten müsst, auf welche Details/Ausbauten
-könnt Ihr verzichten: -
-könnt Ihr nicht verzichten: Ankleide; offener Bereich Wohnen/Essen/Kochen; Hauszugang von der Straßenseite
Warum ist der Entwurf so geworden, wie er jetzt ist?: Entwurf vom Planer mit unseren Angaben zu benötigten Räumen und Gesamtgröße
Was macht ihn in Euren Augen besonders gut oder schlecht?: s.o. wg. Problembeschreibung
Was ist die wichtigste/grundlegende Frage zum Grundriss in 130 Zeichen zusammengefasst?:
Macht es Sinn, Wohnzimmer und Küche zu tauschen (siehe Problembeschreibung oben)? Wenn ja, wo könnte die Garderobe sonst platziert werden, ohne dass der Flur zu eng wird? Ist das Büro von der Größe her noch in Ordnung?
Wir würden uns sehr über einige Anregungen bzw. Verbesserungsvorschläge von euch freuen.


nach langer Suche nach einem passenden Grundstück sind wir nun endlich fündig geworden. Wir kaufen schlüsselfertig vom Bauträger, der uns drei Vorschläge für den Grundriss erstellt hat. Zwei davon sind bei uns gleich durchgefallen, der dritte kommt unseren Vorstellungen zwar am nächsten, aber dennoch sind wir nicht voll überzeugt.
Die Planung für das OG gefällt uns gut, diese würden wir gerne so belassen.
Das EG bereitet uns jedoch Kopfzerbrechen. Konkret geht es um den Bereich Wohnzimmer/Esszimmer/Küche. Die jetzige Planung sieht eine Küche in U-Form vor. Uns wäre jedoch eine Lösung mit Kücheninsel lieber. Dazu bräuchten wir jedoch mehr Platz. Diesen Platz haben wir dafür im Wohnzimmer zu viel (unserer Meinung nach). Der Abstand von Wand zu Wand beträgt 4,50 Meter, damit wäre der Abstand zwischen Couch und Fernseher für uns zu groß (Hinweis: unser derzeitiges Wohnzimmer hat die Maße 3,40 x 4,50 m, d.h. Abstand zwischen Couch und Fernseher sind 3,40 und das ist unserer Ansicht nach optimal).
Wir haben deshalb in Erwägung gezogen, Wohnzimmer und Küche zu tauschen. Dann würde zwar eine Küche mit Insel passen, aber das Wohnzimmer wäre zu klein, da die Breite dort (wg. der Garderobennische) nur 2,80 Meter beträgt. Einen anderen Platz für die Garderobe sehen wir leider auch nicht, da der Flur nicht allzu viel Platz bietet.
Wir hoffen deshalb hier auf Anregungen bzw. Verbesserungsvorschläge.
Hier noch der Fragenkatalog:
Bebauungsplan/Einschränkungen
Größe des Grundstücks: ca. 430 qm
Hang: nein
Grundflächenzahl: 0,35
Geschossflächenzahl: -
Baufenster, Baulinie und -grenze:-
Randbebauung: -
Anzahl Stellplatz: 2
Geschossigkeit: 2 Vollgeschosse
Dachform: Satteldach
Stilrichtung: -
Ausrichtung: S - SW
Maximale Höhen/Begrenzungen:-
weitere Vorgaben:-
Anforderungen der Bauherren
Stilrichtung, Dachform, Gebäudetyp: Satteldach
Keller, Geschosse: 2 Vollgeschosse
Anzahl der Personen, Alter: derzeit noch 2 (beide Mitte 30), zukünftig noch 2 Kinder
Raumbedarf im EG: Wohnzimmer, Esszimmer, Küche, Gäste-WC, Technik, kleines Büro
Raumbedarf im OG: Schlafzimmer, Ankleide, 2 Kinderzimmer, Bad
Büro: Familiennutzung oder Homeoffice? Beides
Schlafgäste pro Jahr: ca. 3 Übernachtungen pro Jahr
offene oder geschlossene Architektur: offen
konservativ oder moderne Bauweise: modern
offene Küche, Kochinsel: ja
Anzahl Essplätze: für 6 Personen (erweiterbar auf 8)
Kamin: nein
Musik/Stereowand: nein
Balkon, Dachterrasse: nein
Garage, Carport: Doppelcarport
Nutzgarten, Treibhaus: nein
weitere Wünsche/Besonderheiten/Tagesablauf, gern auch Begründungen, warum dieses oder das nicht sein soll: -
Hausentwurf
Von wem stammt die Planung: Planer eines Bauunternehmens
Was gefällt besonders? Warum?: Aufteilung im OG aus unserer Sicht optimal
Was gefällt nicht? Warum?: Aufteilung im EG (Wohnzimmer, Esszimmer, Küche, Garderobe; s.o. wg. Problembeschreibung
favorisierte Heiztechnik: Wärmepumpe
Wenn Ihr verzichten müsst, auf welche Details/Ausbauten
-könnt Ihr verzichten: -
-könnt Ihr nicht verzichten: Ankleide; offener Bereich Wohnen/Essen/Kochen; Hauszugang von der Straßenseite
Warum ist der Entwurf so geworden, wie er jetzt ist?: Entwurf vom Planer mit unseren Angaben zu benötigten Räumen und Gesamtgröße
Was macht ihn in Euren Augen besonders gut oder schlecht?: s.o. wg. Problembeschreibung
Was ist die wichtigste/grundlegende Frage zum Grundriss in 130 Zeichen zusammengefasst?:
Macht es Sinn, Wohnzimmer und Küche zu tauschen (siehe Problembeschreibung oben)? Wenn ja, wo könnte die Garderobe sonst platziert werden, ohne dass der Flur zu eng wird? Ist das Büro von der Größe her noch in Ordnung?
Wir würden uns sehr über einige Anregungen bzw. Verbesserungsvorschläge von euch freuen.
nitta schrieb:
Wir kaufen schlüsselfertig vom Bauträger, der uns drei Vorschläge für den Grundriss erstellt hat. Zwei davon sind bei uns gleich durchgefallen,In solchen Fällen hege ich oft den Verdacht: wenn die durchgefallenen Entwürfe ebenfalls gezeigt würden - freilich mit Kommentar, warum sie nicht in Frage kommen - könnten die Mitdiskutanten dadurch genauer auf die Spur gebracht werden. Aber das nur ´mal allgemein zu solchen Situationen, im speziellen Fall dieses Threads scheint es ja auch ohnedem zu gedeihen.Zaba12 schrieb:
Wir haben einen ähnlichen Grundriss.Ja, lustig daß Du auch gleich geantwortet hast - sonst hätte ich Dein Haus zum Vergleich empfohlen.https://www.instagram.com/11antgmxde/
https://www.linkedin.com/company/bauen-jetzt/
11ant schrieb:
sonst hätte ich Dein Haus zum Vergleich empfohlen.Das wäre dieses hier: https://www.hausbau-forum.de/threads/Grundriss-für-11m-x-8-25m-ok.24781/[vor kurzem konnte man ´mal länger als 10 min. lang einen Beitrag ergänzen - aktuell wieder nicht, daher hier ein Edit-Nachtrag]
https://www.instagram.com/11antgmxde/
https://www.linkedin.com/company/bauen-jetzt/
Mich würde eigentlich schon interessieren, wie die @nitta Deine Vorschläge so findet. Die Diskussion führt sonst nicht weiter.
Aber dann müssen’s ja vier Duschen sein Ich finde, man kann auch als Notdusche die Wanne nehmen. Überdenken sollte man Platzfresser, welche nur seltene Eventuellpositionen sind.
Also wird der Duschplatz eigentlich für Deine Technik gebraucht? Dann doch lieber komfortables Wäschewaschen
Man mag vieles leiden, aber man muss nicht alles haben, wenn man abwägt...
Wenn es am Finanziellen nicht scheitert, dann nimm gleich einen Meter mehr.
Lieber im Haus entspannter Wohnen als sich andauernd über Enge oder Gequetsche zu stören und sich ärgern. Dabei wird es nicht das WZ sein, aber der Flur, die schlechte Bedienung der Waschmaschine, keine Möglichkeit zum Wäschelagern, weil die Schmutzschuhe auch genau da stehen. Usw.
nitta schrieb:
Hätten wir gedacht als Ausweichmöglichkeit, falls mal alle gleichzeitig unter die Dusche wollen.
Aber dann müssen’s ja vier Duschen sein Ich finde, man kann auch als Notdusche die Wanne nehmen. Überdenken sollte man Platzfresser, welche nur seltene Eventuellpositionen sind.
nitta schrieb:
Im Technikraum brauchen wir wirklich einiges an Platz: Technik, Waschmaschine, Trockner, zusätzlicher Gefrierschrank, Staubsauger, später evtl. Stromspeicher. Viel kleiner geht also nicht...
Also wird der Duschplatz eigentlich für Deine Technik gebraucht? Dann doch lieber komfortables Wäschewaschen
nitta schrieb:
Treppe möchten wir gerne offen haben (aus optischen Gründen, auch wenn dadurch eine Stauraummöglichkeit entfällt... man hat halt so seine Vorstellungen...)
Man mag vieles leiden, aber man muss nicht alles haben, wenn man abwägt...
nitta schrieb:
Außerdem wäre es zu überlegen, ob wir das Haus vielleicht 25cm breiter machen, also 8,74m statt 8,49m. Das müsste vom Bebauungsplan her gehen, wobei wir das schon noch abklären müssten. Kostet dann zwar etwas mehr, aber am Finanziellen soll es nicht scheitern...
Wenn es am Finanziellen nicht scheitert, dann nimm gleich einen Meter mehr.
Lieber im Haus entspannter Wohnen als sich andauernd über Enge oder Gequetsche zu stören und sich ärgern. Dabei wird es nicht das WZ sein, aber der Flur, die schlechte Bedienung der Waschmaschine, keine Möglichkeit zum Wäschelagern, weil die Schmutzschuhe auch genau da stehen. Usw.