ᐅ Vaillant Kontrollierte-Wohnraumlüftung - Bericht Planer Auslegung
Erstellt am: 13.12.21 21:10
M
Matthias_1212
Hallo liebe Forengemeinde,
unser Bauvorhaben schreitet weiter voran. Vergangene Woche haben wir bereits nach 2 Monaten unsere Baugenehmigung erhalten.
Zusätzlich hat uns Vaillant die Planung der Lüftungsanlage VAR 260/4 gesendet.
Vaillant empfiehlt uns ausdrücklich die VAR 260/4 und nicht die VAR 360/4, die von uns angefragt wurde.
Mein Gedanke hinter der VAR 360/4 ist, dass die größere Anlage auf einer niedrigeren Stufe laufen kann und dadurch leiser ist.
Ich wäre sehr an eurer Einschätzung interessiert. Zur besseren Einordnung habe ich einzelne Auszüge des Berichts von Vaillant angehängt.
Viele Grüße
Matthias









unser Bauvorhaben schreitet weiter voran. Vergangene Woche haben wir bereits nach 2 Monaten unsere Baugenehmigung erhalten.
Zusätzlich hat uns Vaillant die Planung der Lüftungsanlage VAR 260/4 gesendet.
Vaillant empfiehlt uns ausdrücklich die VAR 260/4 und nicht die VAR 360/4, die von uns angefragt wurde.
Mein Gedanke hinter der VAR 360/4 ist, dass die größere Anlage auf einer niedrigeren Stufe laufen kann und dadurch leiser ist.
Ich wäre sehr an eurer Einschätzung interessiert. Zur besseren Einordnung habe ich einzelne Auszüge des Berichts von Vaillant angehängt.
Viele Grüße
Matthias
R
RotorMotor13.12.21 21:34Rumbi441 schrieb:
Die Luftmenge die deine Anlage laut Vaillant schaft langt nicht für den "normalen" Luftaustausch, daher musst du eh lüften. Da steht doch 0.5/h. Das heißt ca. alle 2h ist die Luft komplett ausgetauscht?!M
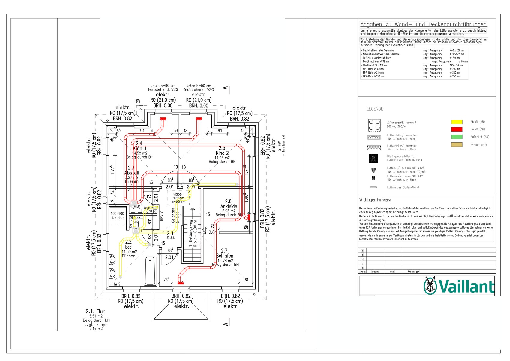
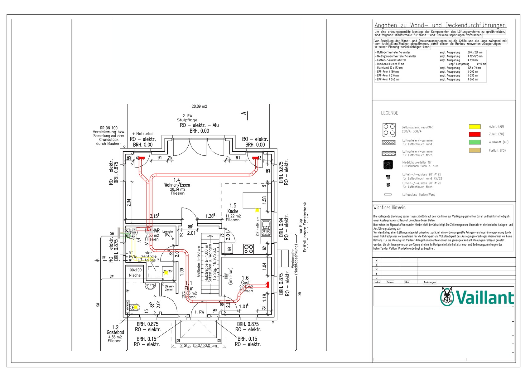
Matthias_121214.12.21 17:47Wir haben nun auch die Planung für die Verlegung der Kanäle etc. bekommen (anbei).
Mich würden nun folgende Punkte interessieren:
1. ist die VAR 360/4 tatsächlich zu stark überdimensiert?
2. könnte es bei der Anordnung der Lüftung zu einem Luftkurzschluss kommen?
Ich freue mich auf eure Einschätzung.


Mich würden nun folgende Punkte interessieren:
1. ist die VAR 360/4 tatsächlich zu stark überdimensiert?
2. könnte es bei der Anordnung der Lüftung zu einem Luftkurzschluss kommen?
Ich freue mich auf eure Einschätzung.
R
RotorMotor14.12.21 18:05Matthias_1212 schrieb:
1. ist die VAR 360/4 tatsächlich zu stark überdimensiert?Ich denke schon.Hast du dir die Datenblätter mal angesehen?
Matthias_1212 schrieb:
2. könnte es bei der Anordnung der Lüftung zu einem Luftkurzschluss kommen?Was meinst du damit?Verstehe nicht warum man für den Schlafzimmerkanal so einen Umweg geht und nicht über den Flur?!
Und irgendwie sind es doch viel mehr Zu- als Abluft?
Und hat der Abstellraum keine Abluft?
Rumbi441 schrieb:
Die Luftmenge die deine Anlage laut Vaillant schaft langt nicht für den "normalen" Luftaustausch, daher musst du eh lüften. 3 mal täglich stoß.Das wage ich zu bezweifelnRumbi441 schrieb:
Die Pollenfilter die da eingesetzt werden können nicht alles rausfiltern, der wechsel/wartung jährlich ist relativ teuer."nicht alles" ist in dem Fall immer noch viel mehr als nix und kann schon viel ausmachen bei Allergie. Wartung brauchts nicht/macht man selbst.
Filter kann man billig kaufen, filtern genau so.
RotorMotor schrieb:
Und irgendwie sind es doch viel mehr Zu- als Abluft?Ist bei uns auch so. Macht doch nix, oder gibt's da Nachteile?R
RotorMotor14.12.21 19:18KingJulien schrieb:
Ist bei uns auch so. Macht doch nix, oder gibt's da Nachteile?Für optimalen Betrieb ist entweder gleiche Anzahl oder größere Verrohrung bei denen mit geringerer Anzahl sinnvoll.Ansonsten kommt es bei der geringeren Anzahl zu höheren Strömungsgeschwindigkeiten und somit Geräuschen.
RotorMotor schrieb:
Für optimalen Betrieb ist entweder gleiche Anzahl oder größere Verrohrung bei denen mit geringerer Anzahl sinnvoll.
Ansonsten kommt es bei der geringeren Anzahl zu höheren Strömungsgeschwindigkeiten und somit Geräuschen.Ah ja, das macht Sinn. Hab mir die Lüftungsplanung bei uns nie genau angesehen.Ähnliche Themen