ᐅ Unsicherheiten bzgl Größe, Planung an sich so weit fertig
Erstellt am: 28.01.16 08:54
Schönen, guten Morgen!
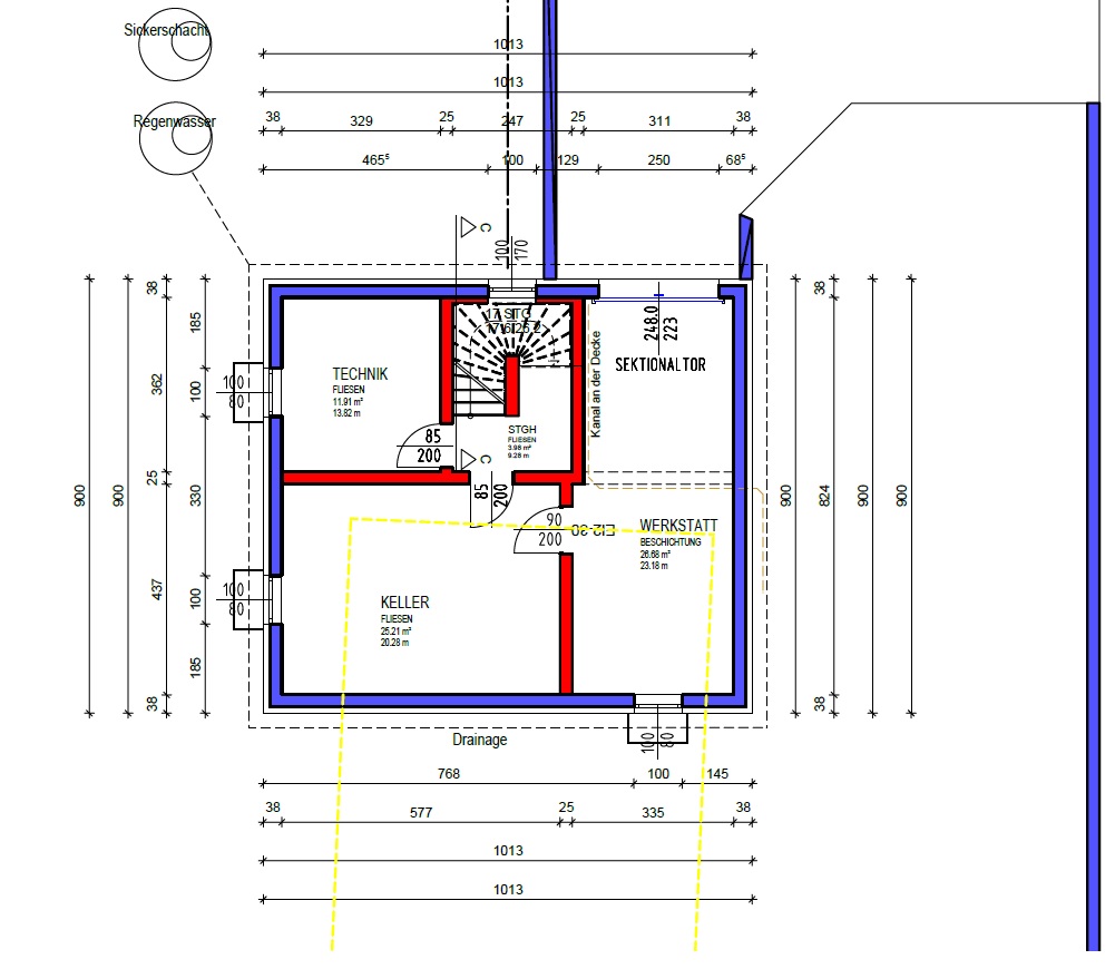
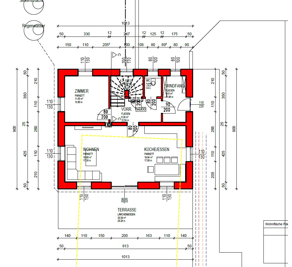
wir stehen kurz vor Abschluss unserer Einfamilienhaus Planung; wir wollen 1,5 Geschosse mit 150cm Kniestock (Drempel?) so kompakt wie möglich bauen. Bisher waren wir mit dem Entwurf vom Planer des Bauunternehmens sehr zufrieden, jetzt wo ich mich mit der Einrichtung beschäftige kommt mir aber der Wohn-Eß-Küchen-Bereich irgendwie beengt vor. Wir wollen unbedingt eine Sitzecke beim Essbereich, aber ich befürchte dass das schwierig wird (Küche+Sitzecke). Nun überlege ich, ob wir nicht das Haus generell erweitern sollen damit alles sitzt (von 10,13 x 9 auf 11 x 9,5). Vielleicht hat jemand hier hilfreiche Tipps?
Das Haus ist unterkellert, Lichte Raumhöhe in den Wohnräumen liegt bei 260 cm, Satteldach mit Gaube und 35° Neigung ist angedacht. Das Grundstück hat etwa 900m² und zu den Nachbarn muß man 3 Meter Abstand halten. 2 Stellplätze (Carport) vorne bei der Straße sind mitgeplant. vielen Dank und liebe Grüße


wir stehen kurz vor Abschluss unserer Einfamilienhaus Planung; wir wollen 1,5 Geschosse mit 150cm Kniestock (Drempel?) so kompakt wie möglich bauen. Bisher waren wir mit dem Entwurf vom Planer des Bauunternehmens sehr zufrieden, jetzt wo ich mich mit der Einrichtung beschäftige kommt mir aber der Wohn-Eß-Küchen-Bereich irgendwie beengt vor. Wir wollen unbedingt eine Sitzecke beim Essbereich, aber ich befürchte dass das schwierig wird (Küche+Sitzecke). Nun überlege ich, ob wir nicht das Haus generell erweitern sollen damit alles sitzt (von 10,13 x 9 auf 11 x 9,5). Vielleicht hat jemand hier hilfreiche Tipps?
Das Haus ist unterkellert, Lichte Raumhöhe in den Wohnräumen liegt bei 260 cm, Satteldach mit Gaube und 35° Neigung ist angedacht. Das Grundstück hat etwa 900m² und zu den Nachbarn muß man 3 Meter Abstand halten. 2 Stellplätze (Carport) vorne bei der Straße sind mitgeplant. vielen Dank und liebe Grüße
B
Bauexperte28.01.16 10:23@Zwark
Ich habe Deinen anderen Eintrag soeben gelöscht; es reicht die Diskussion zum gleichen Thema an einer Stelle
Grüße, Bauexperte
Ich habe Deinen anderen Eintrag soeben gelöscht; es reicht die Diskussion zum gleichen Thema an einer Stelle
Grüße, Bauexperte
Wir unterliegen keiner baurechtlichen Restriktion was die Geschoss Anzahl betrifft, wir wollen nur kein zu hohes Haus und kein flach-pult-toskanadach deshalb die uebermauerung. Danke, die Eingangssituation passen wir noch an
Mein Sorgenkind ist aber der wohn-Essbereich, ich habe die Befürchtung, dass er zu klein ist?
Wir bauen in Österreich, falls relevant.
Mein Sorgenkind ist aber der wohn-Essbereich, ich habe die Befürchtung, dass er zu klein ist?
Wir bauen in Österreich, falls relevant.
Ähnliche Themen