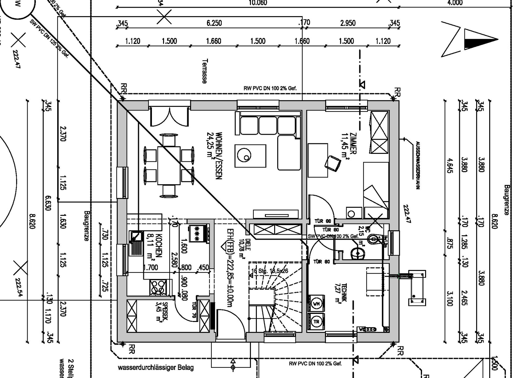
Hallo Leute,
wir haben in wenigen Tagen Bemusterung und sind uns immer noch nicht einig wie wir z.b unser Bad gestalten sollen, wohin mit der Badewanne? Des Weiteren lassen wir seitliches Fenster im Wohnzimmer weg. Fällt euch erfahrenen Nutzern sonst noch etwas auf? Im Gästezimmer (EG) wird das Fenster angepasst so das man auch auf die Terrasse rausgehen kann.
Wir sind zu dritt im Haushalt und planen weiteren Nachwuchs
Danke euch.
Einen schönen Sonntag noch.


wir haben in wenigen Tagen Bemusterung und sind uns immer noch nicht einig wie wir z.b unser Bad gestalten sollen, wohin mit der Badewanne? Des Weiteren lassen wir seitliches Fenster im Wohnzimmer weg. Fällt euch erfahrenen Nutzern sonst noch etwas auf? Im Gästezimmer (EG) wird das Fenster angepasst so das man auch auf die Terrasse rausgehen kann.
Wir sind zu dritt im Haushalt und planen weiteren Nachwuchs
Danke euch.
Einen schönen Sonntag noch.
Nur als Tipp und hat nichts mit dem Grundriss zu tun. Ich würde die Position des Außenwasserhahns ändern und diesen entweder in die Außenwand vom WC oder vom Hauswirtschaftsraum nehmen. Die Schmutzwasserleitung einmal quer unter dem Haus durch wäre definitiv nicht meins, Abwasser würde ich immer auf dem kürzesten Weg nach draußen legen, auch wenn es draußen dann bisschen länger wird, unterm Haus kommst du da nie wieder ran, oder sehe ich das in den Plänen falsch?
BeHaElJa schrieb:
Was hat denn der Außenwasserhahn mit Schmutzwasser zu tun?Ich finde den Gedanke ganz interessant, das Schmutzwasser mittels Außenwasserhahn zu entsorgen Ähnliche Themen