Unser Grundriss-Entwurf für ein günstiges Haus

4,90 Stern(e) 37 Votes
Zuletzt aktualisiert 05.10.2025
Sie befinden sich auf der Seite 36 der Diskussion zum Thema: Unser Grundriss-Entwurf für ein günstiges Haus
>> Zum 1. Beitrag <<

la.schnute

la.schnute

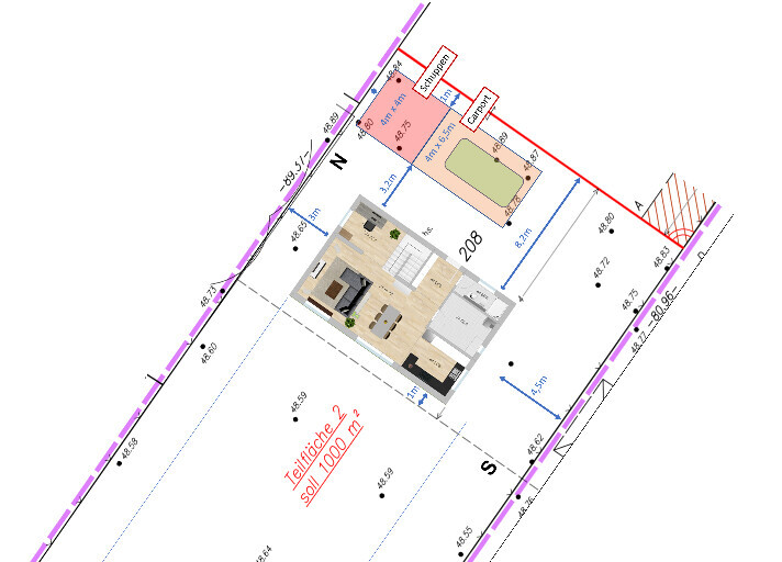
Hier übrigens noch mal zur Ausrichtung der Sonnenverlauf...zum Wochenendfrühstück um ca. 09:00 Uhr jetzt im März scheint die Sonne genau durch's Küchenfenster , ich finde das eigentlich ganz gut.

Kreisförmige Karte mit zentraler Markierung, Häuser, Wald und Rübenländergraben.
 
11ant

11ant

Die Morgensonne ist höchstens beim Frühstück wichtig (um irgendwie in die Gänge zu kommen)
Dann bat Euch eine Infrarotheizung an den Frühstücksplatz, sonst kommt Ihr im deutschen Naßkaltgrauwinter eben doch nicht in die Gänge

Beides zu mischen, scheint nicht zu funktionieren
Du kannst auch Nitro und Glycerin mischen, aber dann darf Dich der Knall nicht stören
Säuren und Basen zu mischen, wäre widersinnig
 
kaho674

kaho674

Und nein, ich verstehe grad wirklich nicht, warum die Ausrichtung dann gespiegelt mehr Sinn macht. Statt spitzer Kommentare wäre eine Erklärung wirklich nett.
Auch das noch.

Dein einziges Südfenster wird es nicht schaffen, den 11m tiefen Raum dahinter zu erhellen. Du sitzt also am Frühstückstisch und am Mittagstisch im dunkeln. Die Sonne kommt erst am Nachmittag langsam in den Wohnraum - da ist sie im Winter aber schon wieder am untergehen. Deshalb wird es eine düstere Sache.

Für eine Megafenster-Ecklösung in der Küche fehlt Euch das Geld. Die sinnvollste Lösung ist deshalb, die Wohnräume direkt an die Lichtseite zu nehmen und den Hauswirtschaftsraum dahin zu verbannen, wo er hingehört: in den Norden.
 
Nordlys

Nordlys

M.E. wird das Licht im Raum genügen. Es sind Fenster nach SO und SW vorhanden. Es gibt keinen verschattenden grossen Überstand.
 
Ibdk14

Ibdk14

Ja, wenn das so richtig ist, was der Elefant da gebastelt hat, glaub ich auch, dass das Licht ausreichend ist. So war meine Annahme, dass man das Haus doch drehen müsste, falsch.
 
Zuletzt aktualisiert 05.10.2025
Im Forum Grundrissplanung / Grundstücksplanung gibt es 2510 Themen mit insgesamt 87152 Beiträgen
Oben