Hallo ihr lieben,
wir sind eine deutsch-amerikanische Familie mit 3 kleinen Kindern.
Hier seht ihr unseren allerersten Grundrissversuch.
Wir haben noch mit keinem Architekten gesprochen, dies ist lediglich das Basishaus von ProHaus das wir gewählt haben (die Außenwände dazu) der Innengrundriss ist komplett unsere Idee (eben der erste Versuch).
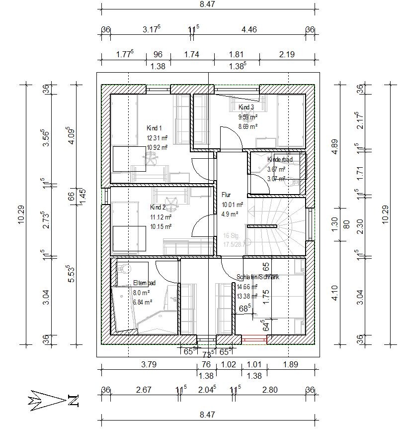
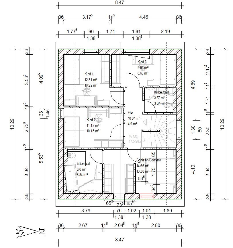
"Oben" (also da wo der Garten und Ärker ist) ist Westen, rechts Norden, unten Osten, links Süden.
Garage steht auf der Grundstücksgrenze (ist erlaubt).
Leider lies mich das Programm die Abmasse der Wände nicht anzeigen, ich kann euch aber sagen, dass das Haus 8,48m x 10,30m ist.
Kniestockhöhe im Norden und Süden ist 1,60m.
Die Wandstaerken sowie sämtliche Möbel (bis auf die im Hauswirtschaftsraum) sind genau abgemessen und wurden auch so angegeben (nur sieht man es leider nicht). m2 Zahlen sind richtig.
Bei der Treppe im OG ist Natürlich keine Wand vor der Treppe Hat das Programm mich nicht ändern lassen.
Was unbedingt bleiben muss:
- kein Keller (nach langen Diskussionen entschieden )
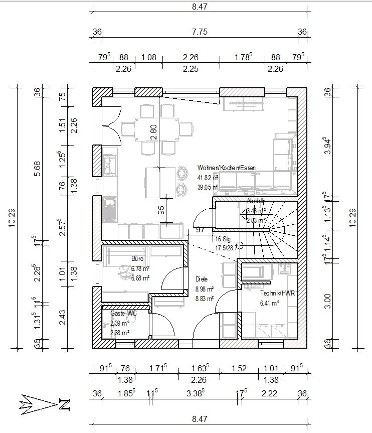
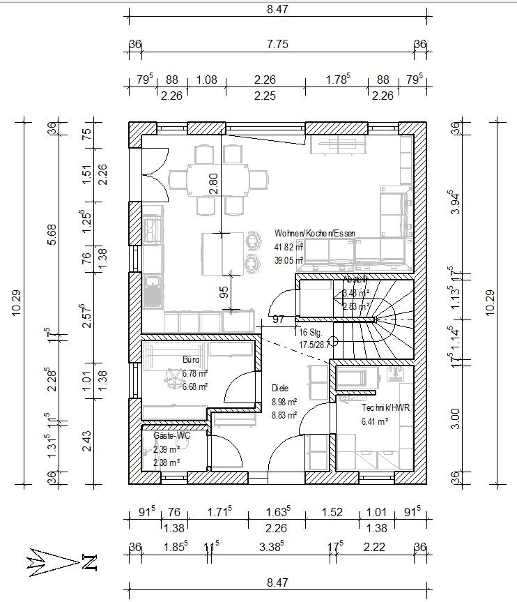
- ein weiterer Eingang durch die Garage (hier ist mein amerikanischer Mann schuld ).
- die Treppe im Wohnbereich (wir möchten alle Gänge so klein wie möglich halten und finden es einfach viel gemuetlicher - ist sicherlich Geschmackssache). Die Treppe ist offen, darunter ist also Platz für Buecherregale etc.
- der Glasaerker im EG im Wohnzimmer und das ganze soll Zugang zum Garten haben.
- die Giebelseiten zur Strasse und zum Garten (schreibt die Gemeinde so vor)
- alle Schlafräume im OG (ist uns einfach als Familie wichtig, wir wollen da nicht getrennt sein)
- die Räume an sich (also welche Räume es alles gibt. Größen und wo sie sich befinden können Natürlich verändert werden)
-- wir brauchen die 3 Kinderzimmer. Mir ist klar, dass sie recht klein sind, aber wir finden es wichtiger, dass jeder seinen eigenen Rueckzugsbereich hat, gerade wenn sie größer werden. Ihre Kinderzimmer jetzt in unserer Wohnung sind wesentlich kleiner.
-- zwei Bäder. Halten wir für sinnvoll weil irgendwann mal 5 Leute gleichzeitig ein Bad brauchen werden. Im EG wollen wir keine Dusche.
-- ein Bad & eine Ankleide die nur vom Elternzimmer erreichbar sind (wieder die amerikanische Art )
- das Elternschlafzimmer darf ruhig so klein bleiben, evt. etwas größer, aber nicht viel. Wir schlafen da nur und legen keinen Wert auf die Größe. Hauptsache Bett passt rein
- der Abstellraum unten ist für Spielzeugkisten usw. gedacht, damit in den Kinderzimmern mehr Platz bleibt.
Was uns noch nicht 100%ig gefällt:
Im EG:
- mein groesstes Problem: Der Hauswirtschaftsraum Raum. 5.62 m2, das reicht doch nicht oder?
Was muss/sollte rein:
luftwärmepumpe, Warmwasserspeicher, Ionenaustauscher (damit kein Kalk im Wasser ist), Schmutzwaeschekorb, Waschmaschine, Trockner (zur Not auch uebereinander), wenn möglich noch ein Waschbecken für dreckige Gummistiefel usw. (das es ja auch unser Eingang ist). Reicht der Platz? Wenn nicht, wie kann ich es besser machen?
- Küche mit 12.03 m2. Langt das für 5 Leute? Ich meine es ist ja keine Wand zwischen Küche und Wohnzimmer, aber ist das nicht recht klein? Oder reicht das aus wenn man bedenkt, das es eine Speisekammer für Vorraete gibt? Die Insel muss bleiben, hier sind wir wieder amerikanisch .
- Der Ärker. Sitzt er gut in der "Mitte" vom Wohnzimmer? Oder soll ich ihn lieber ganz nach links schieben? (Wobei aber links im Eck der Dekokamin steht). Die Tür kann man individuell im Ärker verschieben, sie könnte also auch so angebracht werden, dass man sich nicht am esstisch vorbeiqueteschen muss. - was uns aber im generellen auch nicht stört.
- Mir ist eigentlich der Gang noch zu gross. (nicht links Richtung WC - hier ist ja die Garderobe - sondern eher das lange nach hinten zum Wohnzimmer) Was meint ihr?
Im OG:
- Die Kinderzimmer. Bei "Kind 1" finde ich die verschobene Wand nicht prickelnd. (Bei "Kind 3" finde ich sie ok, hier kann gut ein schrank reinschluepfen und so Platz sparen).
- Elternbad. Ich hätte gerne um die 9 m2. Aber wie? Die Badewanne usw. sind von der Außenwand weggeschoben, da hier Schranke (also so Ablagefächer) in die Wand eingebaut werden sollen und ich ja somit noch eine Wand ziehen muss. Ich kann das ja nicht in die Aussenwand machen, oder doch?
- Ankleide. Hab die Masse (2.25m x 1.12m) heute mal mithilfe von Decken am Boden und Kisten als Schränke (Pax mit 60 Tiefe) abgemessen und hätte noch gut 75cm Durchgang. Dies ist zwar ok (klar wenn ich eine Schublade aufmachen will muss ich mich daneben stellen - finde ich aber ok, ich will ja da drin nicht wohnen sondern mir nur meine Kleider in der früh holen ) - aber klar finde ich größer schöner.
Im übrigen bin ich auch noch komplett offen für völlig neue Grundrisse, solange die oben genannten Eckdaten weitgehend bleiben können. Ich finde alles noch ein bisschen verschachtelt und... irgendwie.. voll
Manche Räume noch zu "schlauchartig" oder nicht wirklich geradlinig.
Habt ihr eine besser Idee oder eine tolle Lösung? Gute Vorschläge?
Was mir nicht weiterhilft, ist jemand der sagt "alles doof" was ich eher brauche ist jemand der mir sagt wie man es besser lösen kann.
Unsere Nachbarn haben oben 3 Kinderzimmer (hab ich euch angehängt als OGnachbarn - leider nur ganz schnell und schlampig in Paint gezeichnet, Natürlich haben alle Kinderzimmer eine Tür zum Gang (auch Kind 2.) Hier ist mir das Elternschlafzimmer zu gross Eber das Bad und die Ankleide schön gross. Aber wie kann ich den die Treppe in die Mitte bekommen ohne das mir die im EG im Weg steht?
Vielleicht ist ja jemand von euch super kreativ und zeigt mir völlig neue Möglichkeiten an die ich noch gar nicht gedacht habe oder überzeugt mich bei etwas vom voelligen Gegenteil?
Ich würde mich drüber freuen.
Vielen Dank und liebe Grüße,
Anya.


wir sind eine deutsch-amerikanische Familie mit 3 kleinen Kindern.
Hier seht ihr unseren allerersten Grundrissversuch.
Wir haben noch mit keinem Architekten gesprochen, dies ist lediglich das Basishaus von ProHaus das wir gewählt haben (die Außenwände dazu) der Innengrundriss ist komplett unsere Idee (eben der erste Versuch).
"Oben" (also da wo der Garten und Ärker ist) ist Westen, rechts Norden, unten Osten, links Süden.
Garage steht auf der Grundstücksgrenze (ist erlaubt).
Leider lies mich das Programm die Abmasse der Wände nicht anzeigen, ich kann euch aber sagen, dass das Haus 8,48m x 10,30m ist.
Kniestockhöhe im Norden und Süden ist 1,60m.
Die Wandstaerken sowie sämtliche Möbel (bis auf die im Hauswirtschaftsraum) sind genau abgemessen und wurden auch so angegeben (nur sieht man es leider nicht). m2 Zahlen sind richtig.
Bei der Treppe im OG ist Natürlich keine Wand vor der Treppe Hat das Programm mich nicht ändern lassen.
Was unbedingt bleiben muss:
- kein Keller (nach langen Diskussionen entschieden )
- ein weiterer Eingang durch die Garage (hier ist mein amerikanischer Mann schuld ).
- die Treppe im Wohnbereich (wir möchten alle Gänge so klein wie möglich halten und finden es einfach viel gemuetlicher - ist sicherlich Geschmackssache). Die Treppe ist offen, darunter ist also Platz für Buecherregale etc.
- der Glasaerker im EG im Wohnzimmer und das ganze soll Zugang zum Garten haben.
- die Giebelseiten zur Strasse und zum Garten (schreibt die Gemeinde so vor)
- alle Schlafräume im OG (ist uns einfach als Familie wichtig, wir wollen da nicht getrennt sein)
- die Räume an sich (also welche Räume es alles gibt. Größen und wo sie sich befinden können Natürlich verändert werden)
-- wir brauchen die 3 Kinderzimmer. Mir ist klar, dass sie recht klein sind, aber wir finden es wichtiger, dass jeder seinen eigenen Rueckzugsbereich hat, gerade wenn sie größer werden. Ihre Kinderzimmer jetzt in unserer Wohnung sind wesentlich kleiner.
-- zwei Bäder. Halten wir für sinnvoll weil irgendwann mal 5 Leute gleichzeitig ein Bad brauchen werden. Im EG wollen wir keine Dusche.
-- ein Bad & eine Ankleide die nur vom Elternzimmer erreichbar sind (wieder die amerikanische Art )
- das Elternschlafzimmer darf ruhig so klein bleiben, evt. etwas größer, aber nicht viel. Wir schlafen da nur und legen keinen Wert auf die Größe. Hauptsache Bett passt rein
- der Abstellraum unten ist für Spielzeugkisten usw. gedacht, damit in den Kinderzimmern mehr Platz bleibt.
Was uns noch nicht 100%ig gefällt:
Im EG:
- mein groesstes Problem: Der Hauswirtschaftsraum Raum. 5.62 m2, das reicht doch nicht oder?
Was muss/sollte rein:
luftwärmepumpe, Warmwasserspeicher, Ionenaustauscher (damit kein Kalk im Wasser ist), Schmutzwaeschekorb, Waschmaschine, Trockner (zur Not auch uebereinander), wenn möglich noch ein Waschbecken für dreckige Gummistiefel usw. (das es ja auch unser Eingang ist). Reicht der Platz? Wenn nicht, wie kann ich es besser machen?
- Küche mit 12.03 m2. Langt das für 5 Leute? Ich meine es ist ja keine Wand zwischen Küche und Wohnzimmer, aber ist das nicht recht klein? Oder reicht das aus wenn man bedenkt, das es eine Speisekammer für Vorraete gibt? Die Insel muss bleiben, hier sind wir wieder amerikanisch .
- Der Ärker. Sitzt er gut in der "Mitte" vom Wohnzimmer? Oder soll ich ihn lieber ganz nach links schieben? (Wobei aber links im Eck der Dekokamin steht). Die Tür kann man individuell im Ärker verschieben, sie könnte also auch so angebracht werden, dass man sich nicht am esstisch vorbeiqueteschen muss. - was uns aber im generellen auch nicht stört.
- Mir ist eigentlich der Gang noch zu gross. (nicht links Richtung WC - hier ist ja die Garderobe - sondern eher das lange nach hinten zum Wohnzimmer) Was meint ihr?
Im OG:
- Die Kinderzimmer. Bei "Kind 1" finde ich die verschobene Wand nicht prickelnd. (Bei "Kind 3" finde ich sie ok, hier kann gut ein schrank reinschluepfen und so Platz sparen).
- Elternbad. Ich hätte gerne um die 9 m2. Aber wie? Die Badewanne usw. sind von der Außenwand weggeschoben, da hier Schranke (also so Ablagefächer) in die Wand eingebaut werden sollen und ich ja somit noch eine Wand ziehen muss. Ich kann das ja nicht in die Aussenwand machen, oder doch?
- Ankleide. Hab die Masse (2.25m x 1.12m) heute mal mithilfe von Decken am Boden und Kisten als Schränke (Pax mit 60 Tiefe) abgemessen und hätte noch gut 75cm Durchgang. Dies ist zwar ok (klar wenn ich eine Schublade aufmachen will muss ich mich daneben stellen - finde ich aber ok, ich will ja da drin nicht wohnen sondern mir nur meine Kleider in der früh holen ) - aber klar finde ich größer schöner.
Im übrigen bin ich auch noch komplett offen für völlig neue Grundrisse, solange die oben genannten Eckdaten weitgehend bleiben können. Ich finde alles noch ein bisschen verschachtelt und... irgendwie.. voll
Manche Räume noch zu "schlauchartig" oder nicht wirklich geradlinig.
Habt ihr eine besser Idee oder eine tolle Lösung? Gute Vorschläge?
Was mir nicht weiterhilft, ist jemand der sagt "alles doof" was ich eher brauche ist jemand der mir sagt wie man es besser lösen kann.
Unsere Nachbarn haben oben 3 Kinderzimmer (hab ich euch angehängt als OGnachbarn - leider nur ganz schnell und schlampig in Paint gezeichnet, Natürlich haben alle Kinderzimmer eine Tür zum Gang (auch Kind 2.) Hier ist mir das Elternschlafzimmer zu gross Eber das Bad und die Ankleide schön gross. Aber wie kann ich den die Treppe in die Mitte bekommen ohne das mir die im EG im Weg steht?
Vielleicht ist ja jemand von euch super kreativ und zeigt mir völlig neue Möglichkeiten an die ich noch gar nicht gedacht habe oder überzeugt mich bei etwas vom voelligen Gegenteil?
Ich würde mich drüber freuen.
Vielen Dank und liebe Grüße,
Anya.
kbt09 schrieb:
Hier mal die Anleitung für die Bemaßung mit Roomsketcher:
......
@ypg .. ich hoffe, der Link ist in Ordnung.nee, das kannst Du auch über PN
Na gut, dann gibt es keinen Link .. findet man auch mit 2 Suchbegriffen ...
@anya .. ich sehe noch ein Problem .. bei einem Kniestock von 160 werden Fenster in den Wänden Max. bei ca. 145 cm Oberkante enden, Dachfenster jedoch werden erst bei ca. 170 cm beginnen. Beides ist also nicht Fisch, nicht Fleisch.
@anya .. ich sehe noch ein Problem .. bei einem Kniestock von 160 werden Fenster in den Wänden Max. bei ca. 145 cm Oberkante enden, Dachfenster jedoch werden erst bei ca. 170 cm beginnen. Beides ist also nicht Fisch, nicht Fleisch.
So etwas läßt mir ja keine Ruhe .
@Anya. , bist du sicher, dass dein Grundriss dem Außenmaß 10,30x8,48m entspricht? Ich habe jetzt mal einen Versuch gestartet. Zunächst mal die Flächenangaben von meinem Ergebnis:
Wobei Wohnfläche entsprechend den Regeln für Flächen unter 200 cm Höhe ermittelt wurde.
Worauf ich ja schon hinwies, ist das Problem von Fenstern im OG bei einer Kniestockhöhe von 160 cm. Hier mal die Südostansicht mit einem bodentiefem Fenster in Kinderzimmer 2 ... Fensterhöhe hatte ich mal mit 145 cm angegeben. Man sieht, das ist schon zu viel, da dort leicht die Dachbalken sichtbar sind. Also, mehr als 135 cm Höhe wird da nicht sichtbar sein. Andererseits werden Dachfenster von innen erst aber einer Höhe von frühestens 160 cm Licht in die Zimmer bringen.
Auf der anderen Seite im gedachten Treppenbereich auch noch ein Fenster, aus OG-Sicht mit 0 cm Brüstungshöhe und 80 cm Fensterhöhe, Ansicht dann so:
Dann habe ich versucht, deine Vorgaben umzusetzen. Allerdings Hauswirtschaftsraum vergrößert und als Abstellfläche mit zu nutzen, incl. Waschmaschine und Trockner. So etwas wie Speisekammer mit Platz für Staubsauger dann unter der Treppe im Küchenzugriff.
Sofa mitten im Raum mit Fläche zum Durchlaufen, Fläche für Kücheninsel und ausreichend Abstand zum Fernseher geht meiner Meinung nach bei 775 cm Raumbreite nicht. Daher ein etwas anderer Ansatz, Wohnbereich dadurch auch etwas privatisiert. Esstisch ist hier z. B. mit 90x180 cm eingezeichnet. Kücheninsel ist ca. 120x120 cm.
Im OG hatte ich dieselbe Idee wie @Manu1976 . Ankleide in die Mitte, Schlafen rechts Richtung Norden, damit die Südsonne das Zimmer nicht so aufheizt. Raumtiefe hier 305 cm .. Bett mal mit Rahmenaussenmaß von ca. 175 cm .. du siehst, das wird immer noch nicht groß.
Kinderbad jetzt nur mit einer kleinen Eckdusche.
Für Kind 2 kommt eben nur Dachfenster und dieses Kniestockfenster in Frage. Das gefällt mir leider noch gar nicht so richtig. Hier fehlt eine pfiffige Idee, wie man das oben besser umsetzen kann.
Wie gesagt .. ich habe den Eindruck, dass bei deinen Maßen irgendetwas nicht stimmt.
@Anya. , bist du sicher, dass dein Grundriss dem Außenmaß 10,30x8,48m entspricht? Ich habe jetzt mal einen Versuch gestartet. Zunächst mal die Flächenangaben von meinem Ergebnis:
Wobei Wohnfläche entsprechend den Regeln für Flächen unter 200 cm Höhe ermittelt wurde.
Worauf ich ja schon hinwies, ist das Problem von Fenstern im OG bei einer Kniestockhöhe von 160 cm. Hier mal die Südostansicht mit einem bodentiefem Fenster in Kinderzimmer 2 ... Fensterhöhe hatte ich mal mit 145 cm angegeben. Man sieht, das ist schon zu viel, da dort leicht die Dachbalken sichtbar sind. Also, mehr als 135 cm Höhe wird da nicht sichtbar sein. Andererseits werden Dachfenster von innen erst aber einer Höhe von frühestens 160 cm Licht in die Zimmer bringen.
Auf der anderen Seite im gedachten Treppenbereich auch noch ein Fenster, aus OG-Sicht mit 0 cm Brüstungshöhe und 80 cm Fensterhöhe, Ansicht dann so:
Dann habe ich versucht, deine Vorgaben umzusetzen. Allerdings Hauswirtschaftsraum vergrößert und als Abstellfläche mit zu nutzen, incl. Waschmaschine und Trockner. So etwas wie Speisekammer mit Platz für Staubsauger dann unter der Treppe im Küchenzugriff.
Sofa mitten im Raum mit Fläche zum Durchlaufen, Fläche für Kücheninsel und ausreichend Abstand zum Fernseher geht meiner Meinung nach bei 775 cm Raumbreite nicht. Daher ein etwas anderer Ansatz, Wohnbereich dadurch auch etwas privatisiert. Esstisch ist hier z. B. mit 90x180 cm eingezeichnet. Kücheninsel ist ca. 120x120 cm.
Im OG hatte ich dieselbe Idee wie @Manu1976 . Ankleide in die Mitte, Schlafen rechts Richtung Norden, damit die Südsonne das Zimmer nicht so aufheizt. Raumtiefe hier 305 cm .. Bett mal mit Rahmenaussenmaß von ca. 175 cm .. du siehst, das wird immer noch nicht groß.
Kinderbad jetzt nur mit einer kleinen Eckdusche.
Für Kind 2 kommt eben nur Dachfenster und dieses Kniestockfenster in Frage. Das gefällt mir leider noch gar nicht so richtig. Hier fehlt eine pfiffige Idee, wie man das oben besser umsetzen kann.
Wie gesagt .. ich habe den Eindruck, dass bei deinen Maßen irgendetwas nicht stimmt.
Tja ich kann mich den Vorrednern leider nur anschliessen. Weis aus Erfahrung wie schwer dass ist von einem selbst erstellten Grundriss los zulassen. Aber hier liegt einiges in argen, was ein Laie mit diesen baulichen Einschränkungen (b-Bebauungsplan) einfach planerisch nicht bewältigen kann. Brecht euch keinen Zacken aus der Krone und investiert anstatt zeit und nerven, Geld in einen vernünftigen Architekten !
Damit tut ihr euch sicherlich mehr einen gefallen als euch über unzureichende Grundrisse zu ärgern !
Viel Erfolg dabei liebe grüsse
Damit tut ihr euch sicherlich mehr einen gefallen als euch über unzureichende Grundrisse zu ärgern !
Viel Erfolg dabei liebe grüsse
Wir haben dasselbe Raumprogramm wie ihr für 5 Personen und haben es auf 10,8x10,2m nicht geschafft alle Räumlichkeiten auf diesen 2 Etagen unterzubringen.
Wir haben also noch einen Stock darauf gesetzt (ohne Kniestock).
Könnt ihr denn noch höher bauen? Z.B. den Spitzboden für 1-2 Räume nutzen?
Wir haben also noch einen Stock darauf gesetzt (ohne Kniestock).
Könnt ihr denn noch höher bauen? Z.B. den Spitzboden für 1-2 Räume nutzen?
Die Idee von Milkie ist nicht schlecht. Dann könntet ihr im OG nen Kinderbereich machen mit 3 Kinderzimmer, Bad und evtl. sogar das Büro und oben unter dem Dach macht ihr euch ein kuschliges Nest mit Schlafzimmer, Ankleide und eurem Bad. Dann hättet ihr im EG - wenn das Büro dann ins OG zieht - wieder Raum für anderes z.B. Abstellmöglichkeiten oder mehr Platz für Wohnen und Essen zur Verfügung.
Aber das muss natürlich der Bebauungsplan auch vorgeben. Wenn das aufgrund der Traufhöhe oder so nicht möglich ist, dann müsst ihr euch was anderes einfallen lassen.
Aber das muss natürlich der Bebauungsplan auch vorgeben. Wenn das aufgrund der Traufhöhe oder so nicht möglich ist, dann müsst ihr euch was anderes einfallen lassen.
Ähnliche Themen