Toilette zu nah an Wand, was nun?

4,70 Stern(e) 7 Votes
Zuletzt aktualisiert 25.11.2025
Sie befinden sich auf der Seite 4 der Diskussion zum Thema: Toilette zu nah an Wand, was nun?
>> Zum 1. Beitrag <<

J

jens.knoedel

Mal ne andere Glaubensfrage.... Braucht man wirklich ein Bidget ???? Oder weg damit und nur die Toilette in die Mitte
Klare Antwort: JA, AUF JEDEN FALL!!!

Ich sehe im Urlaub immer zu, dass wir in den Ferienwohnungen ein Bidet haben. Meine Kinder stehen drauf, sich die Füße nach einem Strandbesuch immer im Bidet zu waschen. Kurz und knackig. Muss man nicht in die Badewanne oder Dusche gehen.
 
C

Costruttrice

Wenn man wirklich aufreißen und neu machen will: Möglich wäre dann auch WC und Bidet raus und stattdessen mittig Dusch-WC setzen.
 
H

hanghaus2023

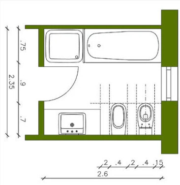
Richtzeichnung:


Kleines Badezimmer Grundriss mit Badewanne, Toilette, Waschbecken und Tür


Für eine ausreichende Bewegungsfreiheit bei Toiletten sollte ein Mindestabstand von 20 cm seitlich vom Toilettenrand bis zur nächsten Wand oder zum benachbarten Sanitärobjekt eingehalten werden.

So habe ich es zumindest in Erinnerung. Ich plane mind 80 cm.
 
H

hanghaus2023

Die Planung hält die Richtzeichnung ein (15cm) 13 cm sind zu wenig. Da hat wohl jemand den Putz vergessen zu berücksichtigen.

Da setzt man sich halt schief drauf!
 
Zuletzt aktualisiert 25.11.2025
Im Forum Sanitär / Bad / WC gibt es 1379 Themen mit insgesamt 14427 Beiträgen
Oben