P
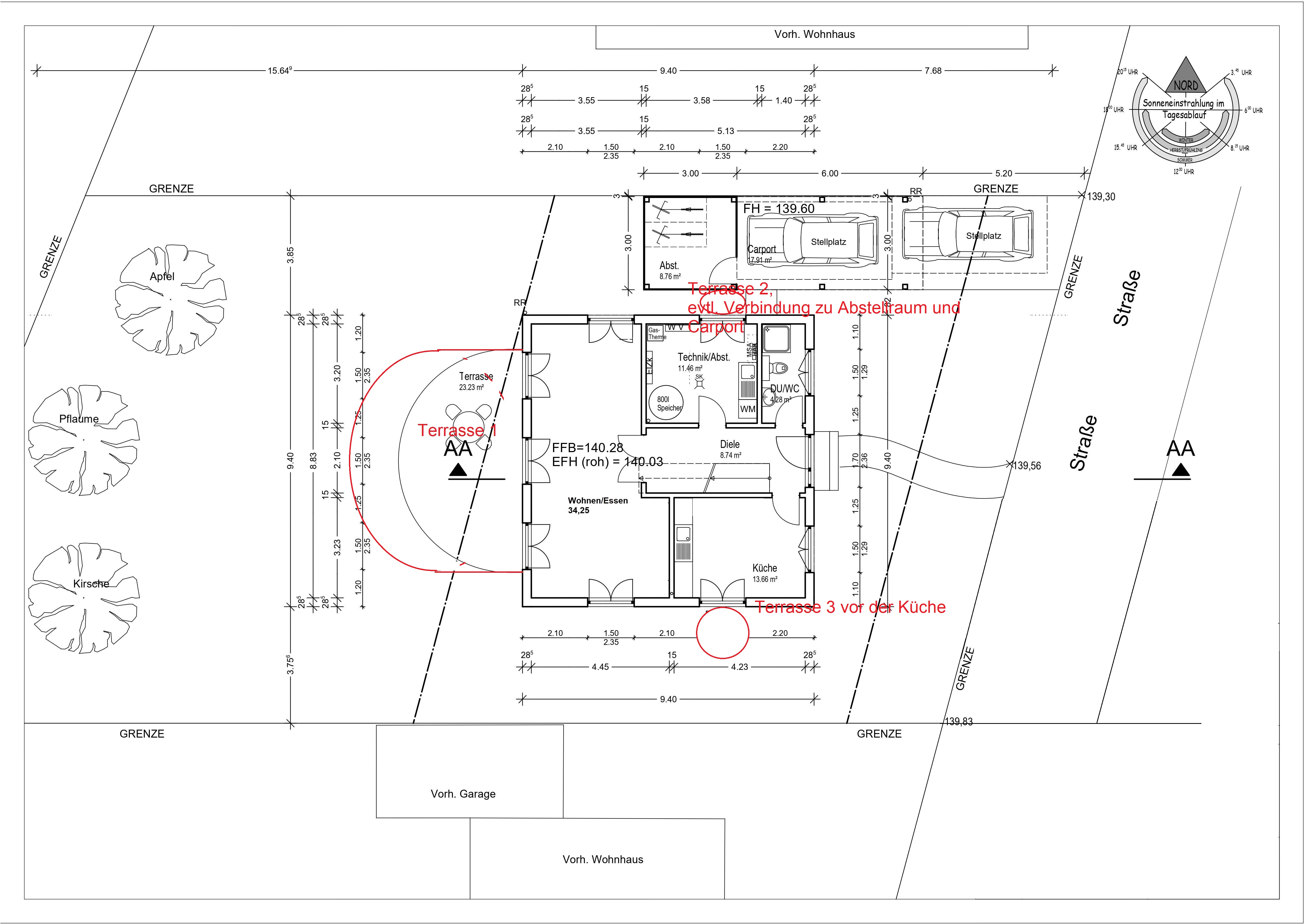
Pinkiponk02.01.22 12:51Ich habe ein weiteres Anliegen, da wir demnächst mit dem Tiefbauer besprechen wollen, wo er den Boden für Terrassen vorbereiten kann/soll.
Eure Meinung ist, in Hinsicht auf Ästhetik und Praxistauglichkeit erwünscht, was die Anzahl und Form unserer Terrasse/n angeht.
Zu erst einmal habe ich 3 Terrassen angedacht: Hauptterrasse nach hinten in den Garten (Terrasse 1), kleine Terrasse um von der Küche aus mal kurz im Freien einen Tee oder Sekt zu trinken (Terrasse 3) und eine weitere kleine Terrasse bei unserem Technik/Hauswirtschaftsraum (Terrasse 2) um einen Wäscheständer rauszustellen, einen Eimer Wasser zu entleeren oder einfach mal dort stehen und "gucken" (schwäbisch für schauen oder sehen).
Hinsichtlich der Form/en bin ich unsicher. Ich mag runde, halbrunde, organische Formen, weiß aber nicht, ob das zu einem quadratischen Haus (9,40m x 9,40m) passt. Des Weiteren gefallen mir "Pflasterkreise", von denen ich einige auf den Terrassen/Carport unterbringen möchte. In weiß nicht, ob Pflasterkreise in runden Terrassen besser aussehen als in eckigen. Oder ob es dann zu viel "rund" ist. Wenn Ihr gelungene Fotos habt, zeigt sie mir gerne.
Auch hier möchte ich die Gelegenheit nutzen, Euch allen und Euren Familien ein gutes Neues Jahr, mit vielen glücklichen Stunden, innerhalb ;-) und außerhalb des Forums zu wünschen. Bitte lasst uns alle weiterhin so schön und hilfreich zusammenkommen.
--> Und wer mit Hampshire Kontakt hat, möchte ihn bitte mit allen zur Verfügung stehenden Mitteln zur Rückkehr bewegen. Er fehlt bei uns sehr.
Noch ein Hinweis zu meinen Einzeichnungen in den Fotos. Ich bekam keine halbrunden Formen eingezeichnet, deswegen habe ich teilweise die Form "oval/rund" gewählt. Ich hoffe, meine Fragen sind trotzdem verständlich.


Eure Meinung ist, in Hinsicht auf Ästhetik und Praxistauglichkeit erwünscht, was die Anzahl und Form unserer Terrasse/n angeht.
Zu erst einmal habe ich 3 Terrassen angedacht: Hauptterrasse nach hinten in den Garten (Terrasse 1), kleine Terrasse um von der Küche aus mal kurz im Freien einen Tee oder Sekt zu trinken (Terrasse 3) und eine weitere kleine Terrasse bei unserem Technik/Hauswirtschaftsraum (Terrasse 2) um einen Wäscheständer rauszustellen, einen Eimer Wasser zu entleeren oder einfach mal dort stehen und "gucken" (schwäbisch für schauen oder sehen).
Hinsichtlich der Form/en bin ich unsicher. Ich mag runde, halbrunde, organische Formen, weiß aber nicht, ob das zu einem quadratischen Haus (9,40m x 9,40m) passt. Des Weiteren gefallen mir "Pflasterkreise", von denen ich einige auf den Terrassen/Carport unterbringen möchte. In weiß nicht, ob Pflasterkreise in runden Terrassen besser aussehen als in eckigen. Oder ob es dann zu viel "rund" ist. Wenn Ihr gelungene Fotos habt, zeigt sie mir gerne.
Auch hier möchte ich die Gelegenheit nutzen, Euch allen und Euren Familien ein gutes Neues Jahr, mit vielen glücklichen Stunden, innerhalb ;-) und außerhalb des Forums zu wünschen. Bitte lasst uns alle weiterhin so schön und hilfreich zusammenkommen.
--> Und wer mit Hampshire Kontakt hat, möchte ihn bitte mit allen zur Verfügung stehenden Mitteln zur Rückkehr bewegen. Er fehlt bei uns sehr.
Noch ein Hinweis zu meinen Einzeichnungen in den Fotos. Ich bekam keine halbrunden Formen eingezeichnet, deswegen habe ich teilweise die Form "oval/rund" gewählt. Ich hoffe, meine Fragen sind trotzdem verständlich.
Pinkiponk schrieb:
Ich mag runde, halbrunde, organische Formen, weiß aber nicht, ob das zu einem quadratischen Haus (9,40m x 9,40m) passt.Warum sollte das nicht passen? Natur ist organisch und die meisten Gärten und Parks sind organisch angelegt (Außer es handelt sich um geplante Anlagen mit anderen Stilmitteln oder Stilen)Deine Terrasse 2 ist auf einer Tiefe von ca. 70cm wie gemeint? Wo soll da Wäsche getrocknet werden? Das ist ein Gang, nichts weiter.
Da eine Umrandung wohl auch geplant ist, würde ich das so in der Art machen. Rot ist eine Wäschespinne (ich geh mal davon aus, dass so etwas geplant ist bei Dir). Wassereimer würde ich auf Rasen oder in Beeten leeren.
Braun sind Beete für Stauden und Sträucher, grün dann die Pflasterung.
Die eigentliche Terrasse wird ja von Möbeln beherrscht, da muss man selbst wissen, wohin man von innen schaut bzw. ob man auf einen Baum, Stauden oder auf Möblierung schauen will.
Wenn Du das so halbrund und symmetrisch machen willst, dann mach das doch so.
P
Pinkiponk02.01.22 19:57ypg schrieb:
Warum sollte das nicht passen? Natur ist organisch und die meisten Gärten und Parks sind organisch angelegt (Außer es handelt sich um geplante Anlagen mit anderen Stilmitteln oder Stilen)
Deine Terrasse 2 ist auf einer Tiefe von ca. 70cm wie gemeint? Wo soll da Wäsche getrocknet werden? Das ist ein Gang, nichts weiter.
Da eine Umrandung wohl auch geplant ist, würde ich das so in der Art machen. Rot ist eine Wäschespinne (ich geh mal davon aus, dass so etwas geplant ist bei Dir). Wassereimer würde ich auf Rasen oder in Beeten leeren.
Braun sind Beete für Stauden und Sträucher, grün dann die Pflasterung.
Die eigentliche Terrasse wird ja von Möbeln beherrscht, da muss man selbst wissen, wohin man von innen schaut bzw. ob man auf einen Baum, Stauden oder auf Möblierung schauen will.
Wenn Du das so halbrund und symmetrisch machen willst, dann mach das doch so.Oh, das hast Du aber schön skizziert. So machen wir das. Außer der Wäschespinne, die finde ich immer zu dominant ... es muß auch nicht jeder Nachbar meine Wäsche sehen. ;-)B
barfly66602.01.22 20:16Ist das echt so gewollt, 80 cm zwischen Haus und Garage/Abstellkammer?
Das Fenster/Türe des Hauswirtschaftsraum: da gebe ich zu bedenken, das da die Stelle sein wird, wo der nicht eingeladene Besucher sich ungestört und ungesehen alle Zeit der Welt lassen kann um einzutreten ….
insgesamt ist der Schlauch nicht optimal (kommt man da überhaupt mit einem Rad schiebenderweise durch, ohne den Lenker abzumontieren?). Den Abstellraum an der Garage würde ich daher eher als offenen Fahrradport konzipieren, den Schlauch würde ich dann noch lichtdurchlässig überdachen und zur Strasse hin ein gescheites Tor o.ä.
Das Fenster/Türe des Hauswirtschaftsraum: da gebe ich zu bedenken, das da die Stelle sein wird, wo der nicht eingeladene Besucher sich ungestört und ungesehen alle Zeit der Welt lassen kann um einzutreten ….
insgesamt ist der Schlauch nicht optimal (kommt man da überhaupt mit einem Rad schiebenderweise durch, ohne den Lenker abzumontieren?). Den Abstellraum an der Garage würde ich daher eher als offenen Fahrradport konzipieren, den Schlauch würde ich dann noch lichtdurchlässig überdachen und zur Strasse hin ein gescheites Tor o.ä.
P
Pinkiponk02.01.22 20:31barfly666 schrieb:
Ist das echt so gewollt, 80 cm zwischen Haus und Garage/Abstellkammer?
Das Fenster/Türe des Hauswirtschaftsraum: da gebe ich zu bedenken, das da die Stelle sein wird, wo der nicht eingeladene Besucher sich ungestört und ungesehen alle Zeit der Welt lassen kann um einzutreten ….
insgesamt ist der Schlauch nicht optimal (kommt man da überhaupt mit einem Rad schiebenderweise durch, ohne den Lenker abzumontieren?). Den Abstellraum an der Garage würde ich daher eher als offenen Fahrradport konzipieren, den Schlauch würde ich dann noch lichtdurchlässig überdachen und zur Strasse hin ein gescheites Tor o.ä.Ich hoffe noch, dass mein Mann dort an der Stelle auf den Abstellraum verzichtet und wir nur einen schönen, luftigen Stellplatz für das Auto, mit Kreispflaster, ;-) haben werden oder der Abstellraum statt 3m breit nur 1,5m breit sein wird. Ich darf halt nicht alleine entscheiden.Ein Tor möchte ich nicht. Vorerst will ich noch rundherum alles offen lassen. Das hatten wir bei unserem letzten Haus so und ich fand es toll.
Ähnliche Themen