Hallo,
bei unserer Hausplanung für ein klassisches Satteldach-Haus haben wir einen Grundriss und Positionierung gefunden, die uns sehr gut gefällt. Zur Sicherheit würde ich den hier gerne einmal zerpflücken lassen.
Bebauungsplan/Einschränkungen
Größe des Grundstücks = 600 qm
Baufenster, Baulinie und -grenze = Siehe Lageplan
Randbebauung = Max. 9m
Hecke (2m breit) sowie 1m Abstand im Norden vorgeschrieben.
Anforderungen der Bauherren
Anzahl der Personen = später 4
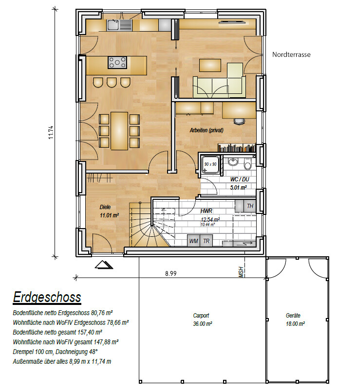
Wohnzimmer ca. 4x4m
Offene Küche zum Essbereich, der abtrennbar in das Wohnzimmer übergeht
Arbeitszimmer
Elternschlafzimmer mit Ankleide
Gäste-WC mit Dusche
Doppel-Carport mit gemauertem Abstellraum
Warum ist der Entwurf so geworden, wie er jetzt ist?
Zur Platzierung auf dem Grundstück:
Grundüberlegung ist, dass wir einen Süd/West-Garten haben möchten. An der Westseite wird mit großer Wahrscheinlichkeit der Nachbar seinen Carport platzieren, so dass wir lieber mehr Garten im Süden haben wollen. Deshalb favorisieren wir eine traufständige Positionierung (weit in die Zukunft gedacht dann vielleicht auch Vorteilhaft für Photovoltaikanlage). Zusätzlich würden wir gerne den Eingang relativ trockenen Fußes vom Carport aus erreichen, weshalb der Eingang dann an der Giebelseite positioniert ist.
Für die weitere Positionierung wurde dann das Haus samt Carport so weit es das Baufenster erlaubt nach Nord-Osten geschoben.
Für den Grundriss selbst:
Zentrale Überlegung ist, dass wir ein Wohnzimmer (ca 4x4m) als Rückzugsort haben wollen. Zudem soll das Esszimmer mit offener Küche aktiv als solches genutzt werden, kein toter Raum der nur 2x im Jahr mit Gästen genutzt wird. Vom Essbereich soll man die Terrasse betreten können.
Insgesamt soll ein Arbeitszimmer Platz finden als auch ein Elternschlafzimmer mit Ankleide.


bei unserer Hausplanung für ein klassisches Satteldach-Haus haben wir einen Grundriss und Positionierung gefunden, die uns sehr gut gefällt. Zur Sicherheit würde ich den hier gerne einmal zerpflücken lassen.
Bebauungsplan/Einschränkungen
Größe des Grundstücks = 600 qm
Baufenster, Baulinie und -grenze = Siehe Lageplan
Randbebauung = Max. 9m
Hecke (2m breit) sowie 1m Abstand im Norden vorgeschrieben.
Anforderungen der Bauherren
Anzahl der Personen = später 4
Wohnzimmer ca. 4x4m
Offene Küche zum Essbereich, der abtrennbar in das Wohnzimmer übergeht
Arbeitszimmer
Elternschlafzimmer mit Ankleide
Gäste-WC mit Dusche
Doppel-Carport mit gemauertem Abstellraum
Warum ist der Entwurf so geworden, wie er jetzt ist?
Zur Platzierung auf dem Grundstück:
Grundüberlegung ist, dass wir einen Süd/West-Garten haben möchten. An der Westseite wird mit großer Wahrscheinlichkeit der Nachbar seinen Carport platzieren, so dass wir lieber mehr Garten im Süden haben wollen. Deshalb favorisieren wir eine traufständige Positionierung (weit in die Zukunft gedacht dann vielleicht auch Vorteilhaft für Photovoltaikanlage). Zusätzlich würden wir gerne den Eingang relativ trockenen Fußes vom Carport aus erreichen, weshalb der Eingang dann an der Giebelseite positioniert ist.
Für die weitere Positionierung wurde dann das Haus samt Carport so weit es das Baufenster erlaubt nach Nord-Osten geschoben.
Für den Grundriss selbst:
Zentrale Überlegung ist, dass wir ein Wohnzimmer (ca 4x4m) als Rückzugsort haben wollen. Zudem soll das Esszimmer mit offener Küche aktiv als solches genutzt werden, kein toter Raum der nur 2x im Jahr mit Gästen genutzt wird. Vom Essbereich soll man die Terrasse betreten können.
Insgesamt soll ein Arbeitszimmer Platz finden als auch ein Elternschlafzimmer mit Ankleide.
S
Stefan00110.05.20 10:35Schon mal vielen Dank für die Rückmeldungen.
Bei der Küche sind wir uns auch noch nicht sicher. Reichen wird sie (müssen), die aktuelle möblierung ist aber nicht korrekt. Wir werden definitiv keine Barzeile haben, so dass insgesamt mehr Platz zur Verfügung steht und wir überlegen die Tür zur Küche so weit nach links zu versetzen, dass man auf der rechten Seite noch eine Regalzeile stellen kann. Oder alternativ die Wand zum Arbeitszimmer um die Tiefe eines Regals versetzen.
Die Anregung oben mit der Ankleide müssen wir uns noch mal im Detail anschauen! Ich kann allen Varianten etwas abgewinnen
Zum Grundstück:
Bei giebelständiger Bauweise würden nur ca. 7m zwischen Hauswand und Grundstücksgrenze auf der Westseite übrig bleiben. Zudem ist der Nachbar auf Grund seines Baufensters mehr oder weniger dazu gezwungen, sein Carport dann genau auf der Höhe unserer Terrasse anzulegen. Da würde ich mich glaube ich zu sehr eingeengt fühlen. Im Süden verläuft ja der Stichweg und dahinter kommt erst noch der Vorgarten der anderen Nachbarn. Das kommt dann deutlich luftiger.
Da ich absolut kein Fan von Sonne bin, ist das aber definitiv ein Punkt den ich auch sehe. Unsere aktuelle Überlegung sieht vor das wir im Garten einen Baum pflanzen der dann irgendwann mal die Beschattung der Terrasse übernehmen kann.

Bei der Küche sind wir uns auch noch nicht sicher. Reichen wird sie (müssen), die aktuelle möblierung ist aber nicht korrekt. Wir werden definitiv keine Barzeile haben, so dass insgesamt mehr Platz zur Verfügung steht und wir überlegen die Tür zur Küche so weit nach links zu versetzen, dass man auf der rechten Seite noch eine Regalzeile stellen kann. Oder alternativ die Wand zum Arbeitszimmer um die Tiefe eines Regals versetzen.
Die Anregung oben mit der Ankleide müssen wir uns noch mal im Detail anschauen! Ich kann allen Varianten etwas abgewinnen
Zum Grundstück:
Bei giebelständiger Bauweise würden nur ca. 7m zwischen Hauswand und Grundstücksgrenze auf der Westseite übrig bleiben. Zudem ist der Nachbar auf Grund seines Baufensters mehr oder weniger dazu gezwungen, sein Carport dann genau auf der Höhe unserer Terrasse anzulegen. Da würde ich mich glaube ich zu sehr eingeengt fühlen. Im Süden verläuft ja der Stichweg und dahinter kommt erst noch der Vorgarten der anderen Nachbarn. Das kommt dann deutlich luftiger.
Da ich absolut kein Fan von Sonne bin, ist das aber definitiv ein Punkt den ich auch sehe. Unsere aktuelle Überlegung sieht vor das wir im Garten einen Baum pflanzen der dann irgendwann mal die Beschattung der Terrasse übernehmen kann.
Stefan001 schrieb:
die aktuelle Möblierung ist aber nicht korrekt... dann ist sie das auch im anderen Sinne, und das verfälscht dann natürlich die Kommentare entsprechend.https://www.instagram.com/11antgmxde/
https://www.linkedin.com/company/bauen-jetzt/
S
saralina8710.05.20 15:39Stefan001 schrieb:
Schon mal vielen Dank für die Rückmeldungen.
Bei der Küche sind wir uns auch noch nicht sicher. Reichen wird sie (müssen), die aktuelle Möblierung ist aber nicht korrekt. Wir werden definitiv keine Barzeile haben, so dass insgesamt mehr Platz zur Verfügung steht und wir überlegen die Tür zur Küche so weit nach links zu versetzen, dass man auf der rechten Seite noch eine Regalzeile stellen kann. Oder alternativ die Wand zum Arbeitszimmer um die Tiefe eines Regals versetzen.
[...]
Da ich absolut kein Fan von Sonne bin, ist das aber definitiv ein Punkt den ich auch sehe. Unsere aktuelle Überlegung sieht vor das wir im Garten einen Baum pflanzen der dann irgendwann mal die Beschattung der Terrasse übernehmen kann.Die Küche würde ich wirklich mal durchplanen. Ikea bietet da eine gute Möglichkeit. Und dann einfach eine Liste machen, wie viele Schubläden und/oder Hochschränke es braucht...
Ich würde vermutlich die Tür nach links versetzen und an die rechte Wand eine komplette Hochschrank-Wand setzen, links dann eine L-Küche. Aber das nur als Idee.
Die Idee mit dem Baum ist natürlich einleuchtend, aber wenig effektiv im Hochsommer. Sobald die Luft eine gewisse Temperatur hat bringt ein Baum nichts mehr. Im Süden schon gleich gar nicht. Ihr hättet doch theoretisch die Möglichkeit zwei Terrassen zu machen, wenn man das Haus weiter Richtung Süden setzt, oder? Darüber würde ich vielleicht noch nachdenken.
Stefan001 schrieb:
Unsere aktuelle Überlegung sieht vor das wir im Garten einen Baum pflanzen der dann irgendwann mal die Beschattung der Terrasse übernehmen kann.Etwa zu Deinem Sechzigsten wird der Baum da schon mehr als nur erkennbar bemüht sein. Bäume wachsen nicht wie Unkrauthttps://www.instagram.com/11antgmxde/
https://www.linkedin.com/company/bauen-jetzt/
Kleine Küchen können funktionieren, aber meistens steht viel rum, so dass es nicht sonderlich aufgeräumt wirkt. Ich würde daher Essen und Küche tauschen, dafür Arbeitszimmer und WZ nen Tick kleiner machen. Außerdem Fenster ändern und das Sofa nicht vors Fenster stellen. Lieber Austritt Richtung Norden und da noch ne kleine Terrasse vor die Hecke. Eine Idee dazu hier im Anhang.
Im OG würde ich das Schlafzimmer und/oder das Bad nen Tick kleiner machen und die Ankleide größer. So könnt ihr kaum was stellen.

Im OG würde ich das Schlafzimmer und/oder das Bad nen Tick kleiner machen und die Ankleide größer. So könnt ihr kaum was stellen.
Ähnliche Themen