Ich denke das ist Geschmackssache, meine Frau und ich wollen derzeit auch noch einen Sichtdachstuhl, wir sind beide keine Freunde von engen Dachböden in denen man meistens eh nur Gerümpel sammelt. Ich nehme an die 4,60 sind an der höchsten Stelle (First) ist da überhaupt genügend Platz für einen (sinnvoll nutzbaren) Dachboden?
Bei euch könnte ich mir auch gut vorstellen dass man z.B. in den Kinderzimmern über den Kleiderschränken einen Zwischenboden einzieht und so zusätzlichen Spiel-/ oder Schlafplatz für die Kinder schafft.
Über eurer Ankleide würde das auch passen um dort z.B. Stauraum zu schaffen.
Den Flur würde ich persönlich ruhig hoch lassen und evtl. nur im Badezimmer eine niedrigere Decke einziehen.
Gruß,
Sebastian
Bei euch könnte ich mir auch gut vorstellen dass man z.B. in den Kinderzimmern über den Kleiderschränken einen Zwischenboden einzieht und so zusätzlichen Spiel-/ oder Schlafplatz für die Kinder schafft.
Über eurer Ankleide würde das auch passen um dort z.B. Stauraum zu schaffen.
Den Flur würde ich persönlich ruhig hoch lassen und evtl. nur im Badezimmer eine niedrigere Decke einziehen.
Gruß,
Sebastian
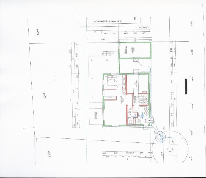
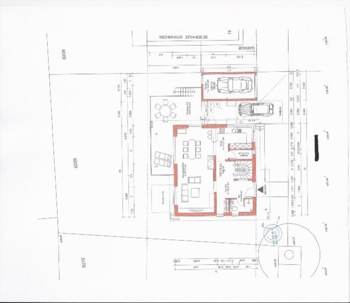
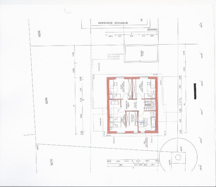
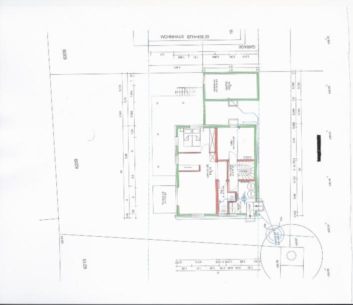
die 4,6m sind tatsächlich an der höchsten stelle. ursprünglich hatten wir uns das mit den Zwischenböden in den Kinderzimmern auch gedacht....aber nun weiss ich nicht, ob das bei uns im Schlafzimmer eine nicht zu hohe Mauer wird, auf die wir schauen.
hast du unsere Pläne schon gesehen? ich hänge sie mal direkt in diesen Beitrag rein

hast du unsere Pläne schon gesehen? ich hänge sie mal direkt in diesen Beitrag rein
Die Entwürfe hatte ich in einem anderen Beitrag von dir gesehen, die Schlafzimmer(Ankleidezimmer) Wand ist ja nicht mittig, von daher ist die Raumhöhe im Schlafzimmer ja schon um einiges niedriger als 4,60. Wie breit ist dein Haus, welche Dachneigung und welche Kniestockhöhe? Das sieht man leider in den Zeichnungen nicht richtig.
Ähnliche Themen