H
Hanniball2k11.06.25 20:42Mahlzeit zusammen,
nachdem ein moderneres Haus, was bei uns in Betracht gezogen wurde bereits vergeben ist, hat sich an anderer Seite wieder die Tür geöffnet.
Wir haben im Ort meiner Familie über bekannte die Möglichkeit bekommen ein Haus zu besichtigen, bevor das Expose online gestellt wird.
Diskussionen zur Finanziellen Situation gab es bereits hier: https://www.hausbau-forum.de/threads/hauskauf-realistisch-oder-uebernehmen-wir-uns.49102/
Ich bin mir nur bezüglich des Sanierungsaufwandes nicht ganz klar, vielleicht gibt es hier ein paar interessante Tipps & Hinweise. Eine Besichtigung mit einem Sachverständiger ist noch geplant.
Eckdaten:
Innenausbau würden wir uns selber zutrauen. Mein Vater hat ein Denkmalgeschütztes Fachwerkhaus und hält alles selber instand, ich kann ihn aber altersbedingt auch nicht voll einspannen:
Finanziell:
Wenn wir alles zusammenkratzen (Riester, Aktien, Eigenkapital) hätten wir 200.000€.
Wir würden das Objekt so versuchen zu finanzieren, dass ich davon 100.000€ für den Kauf nehme. Bleiben 100.000€ bei uns übrig. Davon möchte ich natürlich nicht alles einplanen, also wäre ich so bei 60-80k€ Sanierungsbudget. (Meinungen hierzu?)
Was mich interessieren würde ist ein grobe Kostenschätzung, wenn das so aus der Ferne überhaupt möglich ist:
ps: entschuldigt die etwas suboptimalen Fotos, waren bei der ersten Besichtigung mit Kind dabei und musste zum schluss schnell gehen (machen das idr. einmal in Ruhe, und dann Fotos im nachgang). Muss da nochmal vernünftige bei einer 2. Besichtigung machen










nachdem ein moderneres Haus, was bei uns in Betracht gezogen wurde bereits vergeben ist, hat sich an anderer Seite wieder die Tür geöffnet.
Wir haben im Ort meiner Familie über bekannte die Möglichkeit bekommen ein Haus zu besichtigen, bevor das Expose online gestellt wird.
Diskussionen zur Finanziellen Situation gab es bereits hier: https://www.hausbau-forum.de/threads/hauskauf-realistisch-oder-uebernehmen-wir-uns.49102/
Ich bin mir nur bezüglich des Sanierungsaufwandes nicht ganz klar, vielleicht gibt es hier ein paar interessante Tipps & Hinweise. Eine Besichtigung mit einem Sachverständiger ist noch geplant.
Eckdaten:
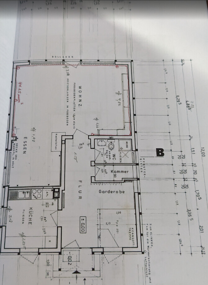
- Einfamilienhaus
- BJ1981
- Massivbauweise mit vorgesetztem Fachwerk
- Wenn ich es richtig interpretiere 32er Wandstärke mit 12cm Fachwerk konstruktion davorgesetzt
- Teilweise unterkellert
- Wohnfläche 125m2
- Grundstück 735m2
- Fenster
- Holz, Doppelglas
- Dach soll eine Zwischensparrendämmung besitzen
- Energieausweis Bedarfsorientiert
- Primär: 254kwh/m2
- Endenergie: 229kwh/m2
- ---> Das kommt mir wirklich hoch vor?? Ich habe die Abrechnungen der letzten 3 Jahre angefragt aber noch nicht erhalten.
- Gas Zentralheizung inkl. Warmwasserspeicher von 2023
Innenausbau würden wir uns selber zutrauen. Mein Vater hat ein Denkmalgeschütztes Fachwerkhaus und hält alles selber instand, ich kann ihn aber altersbedingt auch nicht voll einspannen:
- Holzvertäfelung abreißen
- ggf. Decke abhängen, inkl. Spachtelarbeiten
- Tapezierarbeiten
- Fußboden verlegen (Parkett, Vinyl?)
- Badezimmer fliesen
- je nach Budget nur Gästebad, oder Beide
- Küche ist vorhanden, Küchenaufbau sollte auch drinn sein
Finanziell:
Wenn wir alles zusammenkratzen (Riester, Aktien, Eigenkapital) hätten wir 200.000€.
Wir würden das Objekt so versuchen zu finanzieren, dass ich davon 100.000€ für den Kauf nehme. Bleiben 100.000€ bei uns übrig. Davon möchte ich natürlich nicht alles einplanen, also wäre ich so bei 60-80k€ Sanierungsbudget. (Meinungen hierzu?)
Was mich interessieren würde ist ein grobe Kostenschätzung, wenn das so aus der Ferne überhaupt möglich ist:
- Materialien aus Eigebleistung würde ich mal so mit 15-20k beziffern.
- Fliesen, Fußböden, Farbe etc.., Gipskarton, Lattung.
- Fenster & Türen tauschen 15-20k
- 2 Dachfenster, 12 "Normale"
- Ist das Sinnvoll wenn die prinzipiell noch dicht sind? Doppelverglasung von 1980 wird nicht den Standard haben wie wir heute
- Elektrik erneuern (10k€?)
- Sicherungskasten sieht mMn. richtig gut aus. Allein 20 Einzelne Sicherungen, FI fehlt, Erdung vorhanden
- --> Meine Einschätzung ist, dass hier nicht "alles neu" gemacht werden muss?
- Ggf. neue Steckdosen setzen falls Anzahl noch nicht ausreichend ist
- Sanitär ?
- Zustand der Rohre lässt sich für mich auch extrem schwer beurteilen. Wie geht man da am besten vor? Ist ja alles irgendwie im Mauerwerk verlegt...
- Langfristig
- Dach neu inkl. Aufsparrendämmung
- Allgemein außendämmung
- --> Hier stellt sich mir die Frage was möglich ist wenn das Massivmauerwerk mit dem Fachwerk verschalt ist. Ggf. auch hier auf die Meinung des Sachveständigen gespannt...
ps: entschuldigt die etwas suboptimalen Fotos, waren bei der ersten Besichtigung mit Kind dabei und musste zum schluss schnell gehen (machen das idr. einmal in Ruhe, und dann Fotos im nachgang). Muss da nochmal vernünftige bei einer 2. Besichtigung machen
N
nordanney11.06.25 21:29Bei dem Alter stehst du an einer Grenze. Auf der einen Seite ist es noch relativ „neu“ und hat keinen großen Sanierungsbedarf. Auf der anderen Seite gelangen viele Bauteile an ihre Grenzen.
Elektrik - wird ok sein, aber nicht für aktuelle Bedürfnisse (Anzahl Kreise/Steckdosen, LAN etc. )
Dach - wird wohl auch ok sein, aber wie lange noch?
==> dann stellt sich auch die Frage der Dämmung
Fenster - na, eher so langsam durch und alte Verglasung
Rohre/Wasser - sollte unproblematisch sein
Heizung - ist neu, aber Heizkörper oder schlechte Fußbodenheizung (grundsätzliches Thema, hab die Fotos nicht angeschaut)
Rest ist Optik.
Mit dem Budget bekommst du es schon wohnlich. Aber keine große Sanierung. Fenster und Kelldecke stehen bei mir auf Platz 1. Falls Heizkörper, dann auf 33er gehen und die Heizung entsprechend anpassen. Dann wird es auch günstig bei den Heizkosten.
Elektrik - wird ok sein, aber nicht für aktuelle Bedürfnisse (Anzahl Kreise/Steckdosen, LAN etc. )
Dach - wird wohl auch ok sein, aber wie lange noch?
==> dann stellt sich auch die Frage der Dämmung
Fenster - na, eher so langsam durch und alte Verglasung
Rohre/Wasser - sollte unproblematisch sein
Heizung - ist neu, aber Heizkörper oder schlechte Fußbodenheizung (grundsätzliches Thema, hab die Fotos nicht angeschaut)
Rest ist Optik.
Mit dem Budget bekommst du es schon wohnlich. Aber keine große Sanierung. Fenster und Kelldecke stehen bei mir auf Platz 1. Falls Heizkörper, dann auf 33er gehen und die Heizung entsprechend anpassen. Dann wird es auch günstig bei den Heizkosten.
Erfahrungsgemäß ist die Zwischensparrendämmung oft eher mangelhaft ausgeführt in diesen Jahren. Diese würde ich dementsprechend neu planen und evtl die Sparren aufdoppeln. Das kann man alles auch als Laie selbst machen für relativ wenig Geld. Ebenso geht das mit der Kellerdecke. Auch hier selbst dämmen für einen schmalen Taler.
Bei der Fassade würde ich über eine Einblasdämmung nachdenken, sofern möglich. Das ist eine sehr wirtschaftliche Variante. Fenster und Türen sollten in dem Zuge wirklich neu. Hier ist dann zwingend über die Lüftung im Anschluss zu sprechen!
Wasser/Abwasser sind wahrscheinlich ok. Sofern keine Eisenrohre verwendet wurden, halten die schon lang.
Bei der Elektrik würde ich genau schauen, prüfen und dann eher 20k einrechnen. Wenn du das anfasst, dann mach es gleich gut und vernünftig. Die begleitet dich viele viele Jahre und im bewohnten Zustand ist das übel.
Dächer halten in der Regel lang. Da würde ich mir erstmal, sofern keine Anhaltspunkte vorhanden sind, keine Gedanken drüber machen.
Wenn du mit den Bädern fein bist, muss das nicht angefasst werden. Ein einfacher Tausch der Badmöbel ist in Eigenleistung Recht günstig. Geht's an eine Sanierung wird es teuer.
Bei der Fassade würde ich über eine Einblasdämmung nachdenken, sofern möglich. Das ist eine sehr wirtschaftliche Variante. Fenster und Türen sollten in dem Zuge wirklich neu. Hier ist dann zwingend über die Lüftung im Anschluss zu sprechen!
Wasser/Abwasser sind wahrscheinlich ok. Sofern keine Eisenrohre verwendet wurden, halten die schon lang.
Bei der Elektrik würde ich genau schauen, prüfen und dann eher 20k einrechnen. Wenn du das anfasst, dann mach es gleich gut und vernünftig. Die begleitet dich viele viele Jahre und im bewohnten Zustand ist das übel.
Dächer halten in der Regel lang. Da würde ich mir erstmal, sofern keine Anhaltspunkte vorhanden sind, keine Gedanken drüber machen.
Wenn du mit den Bädern fein bist, muss das nicht angefasst werden. Ein einfacher Tausch der Badmöbel ist in Eigenleistung Recht günstig. Geht's an eine Sanierung wird es teuer.
H
Hanniball2k17.06.25 21:21Moin,
danke für euer Feedback soweit. Haben die Tage noch eine Besichtigung mit nem Bausachverständiger und dann mal schauen.
Hab mal ein wenig die Materialkosten/Gewerke anhand der Grundfläche und Wandfläche überschlagen, könnte Eng werden... womal ich bestimmt nicht alles mit bedacht habe.
Da wirds dann schon tatsächlich eng für etwaige unplanmäßige Dinge die hochkommen, ggf. zuarbeiten durch Energieberater und co. Entsorgung etc. pp.
Wäre denn die Frage was wir sofort machen sollten, was ggf. warten kann, worauf wir verzichten könnten etc. Bin mal gespannt was der Sachverständige zur generellen Substanz sagt und was seine Einschätzung ist.
danke für euer Feedback soweit. Haben die Tage noch eine Besichtigung mit nem Bausachverständiger und dann mal schauen.
Hab mal ein wenig die Materialkosten/Gewerke anhand der Grundfläche und Wandfläche überschlagen, könnte Eng werden... womal ich bestimmt nicht alles mit bedacht habe.
- Dämmung Dach (Zwischensparren, Untersparren)
- Badmöbel
- Fliesen, Fußböden, Farbe und son kram
- Heizkörper
- --> 20-25k
Da wirds dann schon tatsächlich eng für etwaige unplanmäßige Dinge die hochkommen, ggf. zuarbeiten durch Energieberater und co. Entsorgung etc. pp.
Wäre denn die Frage was wir sofort machen sollten, was ggf. warten kann, worauf wir verzichten könnten etc. Bin mal gespannt was der Sachverständige zur generellen Substanz sagt und was seine Einschätzung ist.
H
Hanniball2k17.06.25 21:38*Da ich nicht mehr editieren kann. Gemeint ist mit dem Rest das Restbudget von 30-40k. Das wird voraussichtlich dann entsprechend nicht reichen für die aufgezählten Dinge wie Fenster, Haustür, Elektrik, Sanitär
"Bleibt dann der Rest (30-40k) für Fenster, Haustür, Elektrik, Sanitär (wenn neue ltg. verlegt werden müssten)."
Ja, das kann sportlich werden. Etwas, das man mit knappem Budget und altem Haus (für den Neubau gilt ähnliches) wirklich lernen muss, ist Prioritäten zu setzen und genau zwischen "nice-to-have" und "notwendig" unterscheiden zu lernen - so verzichte ich leider nach wie vor auf meine schicken neuen Innenzimmertüren, aber dieses Jahr war die Heizung schon dreimal reparaturbedürftig und wir müssen sie noch - ausgehend von den heutigen Förderrichtlinien, wohlwissend wie volatil die sind - mindestens 3 Jahre ziehen, damit sie "alt" genug für einen aus heutiger Sicht wirtschaftlich sinnvollen Austausch ist. Tja, und da eine funktionierende Heizung wichtiger ist als nett aussehende Zimmertüren, flossen die verfügbaren Euronen nun mal zum Installateur und nicht ins Bauzentrum, auch wenn ich das persönlich sehr bedauere... genug von mir.
In der obigen Liste fällt mir die Position "Badmöbel" auf --> ist damit eine Erneuerung der Waschbecken, Duschtassen, Toiletten gemeint? Wenn die vorhandenen zwar nicht schön, aber noch funktionsfähig sind, wäre das so eine Position, die auf einer To-Do-Liste nach hinten rutschen sollte zugunsten von Dingen, die wichtiger wären wie zum Beispiel der Einbau besserer Fenster oder einer dichteren / sicheren Haustür.
Ja, das kann sportlich werden. Etwas, das man mit knappem Budget und altem Haus (für den Neubau gilt ähnliches) wirklich lernen muss, ist Prioritäten zu setzen und genau zwischen "nice-to-have" und "notwendig" unterscheiden zu lernen - so verzichte ich leider nach wie vor auf meine schicken neuen Innenzimmertüren, aber dieses Jahr war die Heizung schon dreimal reparaturbedürftig und wir müssen sie noch - ausgehend von den heutigen Förderrichtlinien, wohlwissend wie volatil die sind - mindestens 3 Jahre ziehen, damit sie "alt" genug für einen aus heutiger Sicht wirtschaftlich sinnvollen Austausch ist. Tja, und da eine funktionierende Heizung wichtiger ist als nett aussehende Zimmertüren, flossen die verfügbaren Euronen nun mal zum Installateur und nicht ins Bauzentrum, auch wenn ich das persönlich sehr bedauere... genug von mir.
In der obigen Liste fällt mir die Position "Badmöbel" auf --> ist damit eine Erneuerung der Waschbecken, Duschtassen, Toiletten gemeint? Wenn die vorhandenen zwar nicht schön, aber noch funktionsfähig sind, wäre das so eine Position, die auf einer To-Do-Liste nach hinten rutschen sollte zugunsten von Dingen, die wichtiger wären wie zum Beispiel der Einbau besserer Fenster oder einer dichteren / sicheren Haustür.
Ähnliche Themen