ᐅ Planung Terrasse und Überdachung
Erstellt am: 06.08.19 15:44
Hallo zusammen,
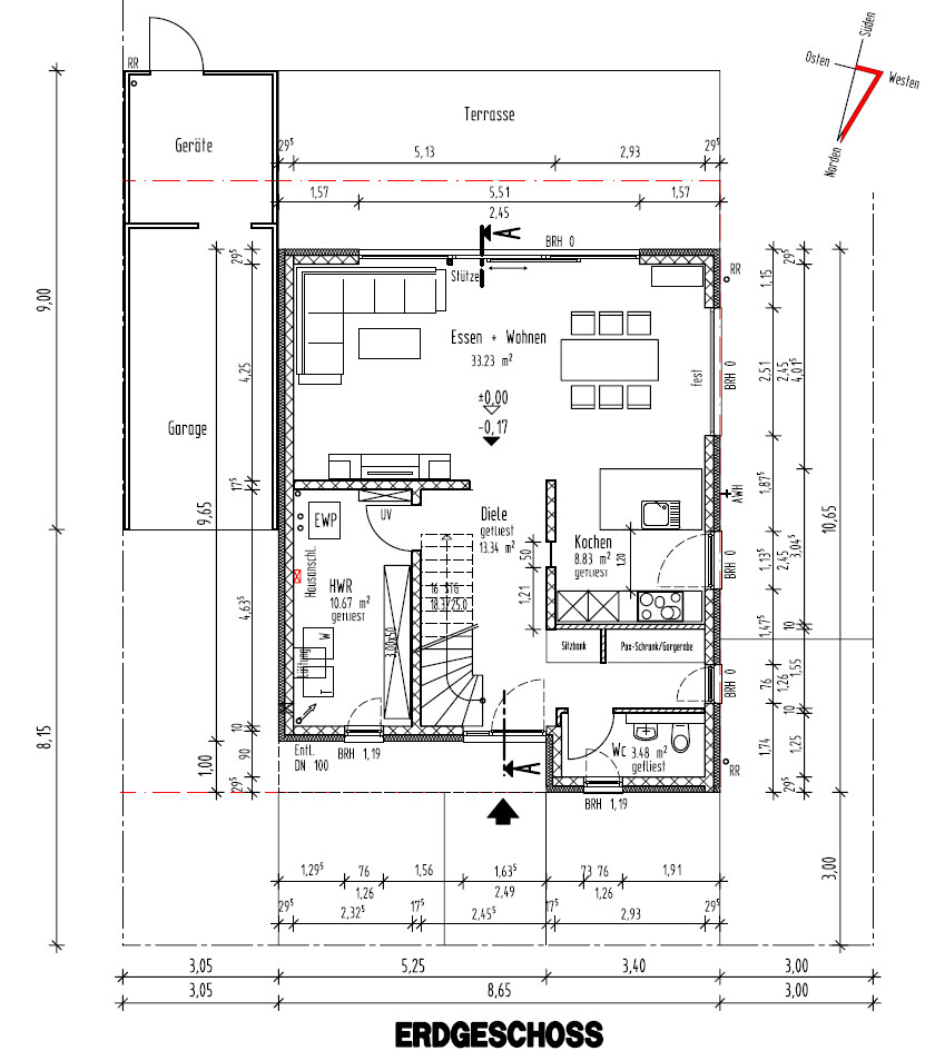
aufbauend auf unsere Grundrissplanung möchten wir uns uns nun mit der Terrasse und einer entsprechenden Überdachung auseinandersetzen.
Die Terrasse haben wir nun erst einmal mit einer Breite von 8,65 Meter Breite und 3,50 Meter Tiefe eingeplant.
Aber muss die Terrasse wirklich so breit sein?
Wir möchten gerne eine Terrassenüberdachung machen.
Tendenziell sollte diese zumindest die große Fensterfront überdachen, so dass man durch die Überdachung auch indirekt das Wohnzimmer verschatten kann, ohne gleich die Rollläden runterfahren zu müssen.
Wahrscheinlich macht es auch Sinn die Überdachung bis zur Garage zu machen und dort zu sitzen, oder?
Habt ihr Ideen für uns?


aufbauend auf unsere Grundrissplanung möchten wir uns uns nun mit der Terrasse und einer entsprechenden Überdachung auseinandersetzen.
Die Terrasse haben wir nun erst einmal mit einer Breite von 8,65 Meter Breite und 3,50 Meter Tiefe eingeplant.
Aber muss die Terrasse wirklich so breit sein?
Wir möchten gerne eine Terrassenüberdachung machen.
Tendenziell sollte diese zumindest die große Fensterfront überdachen, so dass man durch die Überdachung auch indirekt das Wohnzimmer verschatten kann, ohne gleich die Rollläden runterfahren zu müssen.
Wahrscheinlich macht es auch Sinn die Überdachung bis zur Garage zu machen und dort zu sitzen, oder?
Habt ihr Ideen für uns?
bei einer 3,50m tiefen Terrasse kannst du 1m für die Tischbreite abziehen und hast dann nur noch 1,25m auf jeder Seite des Tischs. Mit einem Terrassenstuhl, bei dem sich die Rückenlehne zurückklappen lässt, hast du gar keinen Platz und hinter dem Stuhl vorbei zu gehen wird auch sehr eng. Du musst die Terrasse nicht zwangsläufig auf die gesamte Hausbreite machen, du kannst auch rechts oder links ein Beet anlegen oder ein Hochbeet. Es wäre auch möglich einen Esstisch und eine Loungeecke auf die breite Terrasse zu stellen, je nachdem was ihr euch so vorstellt.
LG
Sabine
LG
Sabine
Oh weh, ihr verwirrt mich.
Ich weiß nicht, warum wir die ganze Zeit von 3,50 Meter Tiefe ausgegangen sind.
Eine gewisse Breite sollte die Terrasse aber schon haben, sonst sieht das mit der Überdachung wieder blöd aus.
Ich weiß nicht, warum wir die ganze Zeit von 3,50 Meter Tiefe ausgegangen sind.
Tego12 schrieb:Das würde bei dem kleinen Garten 1 Meter weniger grün bedeuten.
Ich würde sogar eher auf 4,50m gehen
Eine gewisse Breite sollte die Terrasse aber schon haben, sonst sieht das mit der Überdachung wieder blöd aus.
-SCEPS- schrieb:
Oh weh, ihr verwirrt mich.Vielleicht solltest Du einfach mal überlegen, ob ihr entspannt Gäste unter einer Überdachung bewirtet, wenn es so stark regnet, dass man die Überdachung braucht.
Nicht, dass Ihr eh dann reingeht oder ihr nur einmal im Jahr einen Tisch füllen könnt, sodass ihr gar nicht in diese Situation kommt.
Ich bin sehr für Großzügigkeit, immer gern überall ein paar QM mehr, und wenn Ihr den Platz, das Geld und die Genehmigung für 4,50 habt, dann macht es. Aber schön ist etwas anderes, wenn Du von Verschattung sprichst: innen schaust Du auf Gestell, Licht kommt nicht mehr ins Haus und außen hast Du wieder ein Dach übern Kopf.
Google mal, was eine Terrasse ist und frag Dich, was Du von ihr erwartest und wann Du sie wie nutzt.
Ähnliche Themen