Hausbau - Ratgeber
Bauherrenhilfe
- Bauherrenhilfe vor Vertragsabschluss
-- Warum einen unabhängigen Baubetreuer?
-- Vertragsgrundlagen
-- Bausumme
-- Zahlungsplan zur Kostenkontrolle
-- Pflichten des Bauherren vor Vertragsabschluss
-- Unterlagen beim Hausbau vor Vertragsabschluss
- Bauherrenhilfe nach Vertragsabschluss
-- Bauantrag bei Behörden
-- Bau-Genehmigungsverfahren bei Baubehörden
-- Bauspezifische Versicherungen
-- Bauzeitenplan
-- Baubeginn - die Letzten Pflichten der Bauherrschaft
- Bauherrenhilfe während der Bauzeit
- Gewährleistungsansprüche
- Bauabnahme
Baufinanzierung
- Baufinanzierung - Allgemeine Fragen
- Kreditarten
- Kredit-Konditionen
- Bausparen
- Staatliche Förderungen
- Verkehrswert
- Haushaltsrechnung und Bonität
Hausbau Planung
- Haustypen
- Hausbau Vorbereitungsarbeiten
- Das Baugrundstück
- Baugrund beim Hausbau
- Baurecht
- Gebäudeschutz
- Erdarbeiten und Wasserhaltung
- Stützmauern
- Einfriedung
- Untergeschoss
- Kanalisation
- Tragende Elemente
- Nichttragende Innenwände
- Fundation / Fundament
- Deckenkonstruktionen
- Dächer
- Kaminanlagen
- Treppen Rampen Leitern
- Dachbeläge und Spengler
- Fenster
- Sonnen und Wetterschutz
- Aussenputze
- Einbauten, Küchen, Türen
- Bodenbeläge und Unterlagsböden
- Parkett
- Gips, Wand, Decke
Haustechnik und Energie
- Heiztechnik
- Lüftung und Klimatechnik
- Sanitärtechnik
- Elektrotechnik
- Erneuerbare Energie
Whirlpools / Jacuzzi
Hausbau Magazin
- Baufinanzierung trotz Krise?
- Das Blockhaus
- Moderne Dämmstoffe im Vergleich
- Erker Vor- und Nachteile
- Glasflächen beim Hausbau
- Günstig ein Haus Bauen
- Mediterraner Hausbaustil
- Mehrgenerationenhaus
- Moderne Architektur
- Gartengestaltung leicht gemacht
- Traditioneller Ziegelbau
- Villa als höchster Traum
- Im Eigenheim Ruhestand geniessen
- Altbau sanieren
- Kauf einer Holzgarage
- Immobilienmakler
- Arbeitshandschuhe für den Winter
- Zuhause verschönern
- Outdoor-Plissees
- Schlafzimmer planen
- Terrassenüberdachung
- Wohngebäudeversicherung
- Girokonto für Bauherren finden
- Hauseingang gestalten
- Zaunarten und Eigenschaften
- Der perfekte Grundriss
- Sparsamer heizen im Altbau
- Einfamilienhaus smart finanzieren
- Planung einer PV-Anlage
- Neues Haus
- Immobilienfinanzierung
- Installation einer Photovoltaikanlage
- Asbest erkennen und entfernen
- Gartenpflege im Frühling – worauf achten
- Sauna im Fokus - Wellness zuhause
- Erfolgreich vermieten
- Die perfekte Winterbekleidung
- Das Niedrigenergiehaus
- Der April und seine Stürme
- Architektonische Vielfalt
- Ökologisch und nachhaltig bauen
- Das perfekte Schlafzimmer
- Nachhaltige Energieversorgung
- Zukunftsorientiert bauen
- Nachhaltigkeit beim Hausbau
- Tiny Houses
- Wärmepumpen als nachhaltige Heizvariante
- Maßgeschneiderten Kleiderschrank
- Der richtige Baukredit
- Ratgeber für erfolgreichen Hausbau
- Haus als Altersvorsorge
Do-it-yourself Anleitungen
- Verlegeanleitung für Bodenbeläge und Parkett
- Bodenbeläge und Parkett reinigen und pflegen
- Malerarbeiten am Haus
- Garten Tipps
- Umzug und Reinigung

ᐅ Planung der Terrassenüberdachung. Lichteinfall in den Räumen?

Erstellt am: 20.08.14 15:40
V
Voki1
V
Voki1
20.08.14 15:40
Hallo liebe Freunde,

uns treibt (schon wieder) eine Frage um, auf die wir gerne unterschiedliche Meinungen hören möchten. Wir planen gerade eine Terrassenüberdachung an unserem Bungalow, welche ggf. die gesamte Terrasse überdachen soll (gewöhnliches Dach mit Dachpfannen, also intransparent).

Nun treiben uns Sorgen um, dass hierdurch (Süd/Süd/Ost) ggf. der Lichteinfall so stark reduziert wird, dass es ggf. in den Räumen "zu dunkel" ist. Die Terrasse würde von den Fenstern ca. 3,60 hinausragen und ca. 8,25 breit sein.

Was meint Ihr?
Y
ypg
20.08.14 16:47
In welcher Höhe wird denn das Terrassendach sein? Und wo wird die Neigung sein? Ich frage, da es ja heutzutage auch Bungalows gibt, da wird der Dachgiebel einfach nur vorgezogen, somit wäre das Dach hoch genug, um Licht ins Fenster zu bringen.
Wenn es aber eine normale Höhe an einem konventionellem Bungalow hat (ca. 250cm), dann würde ich sagen, dass das dazugehörige Terrassenfenster darunter für die Raumbeleuchtung nahezu ausgeschlossen werden kann. Ich würde ein lichtundurchlässiges Terrassendach nur vor einen Raum installieren, welcher von einem anderen Fenster belichtet wird.
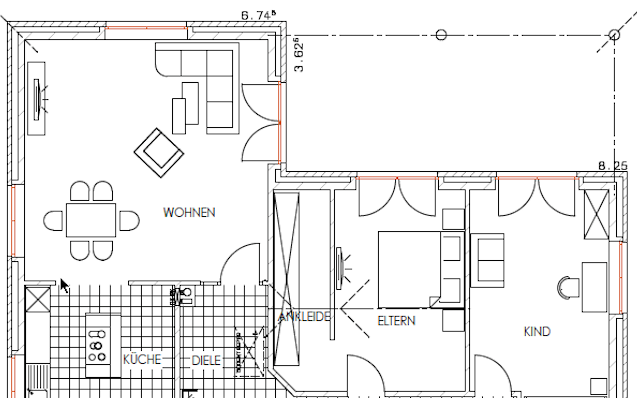
Hast Du eventuell einen Grundriss mit Lage der Überdachung, an dem man beurteilen könnte??
V
Voki1
20.08.14 18:24

Grundriss eines Hauses: Wohn- und Esszimmer, Küche, Diele, Eltern- und Kinderzimmer.

Detail eines Wand- und Dachabschnitts mit Maßlinien und Fensterrahmen in Bauzeichnung
Es soll das Dach vorgezogen werden.
D
Doc.Schnaggls
21.08.14 08:16
Hallo,

zumindest das Elternschlafzimmer dürfte durch eine derartige Terrassenüberdachung sehr dunkel werden. Wohn- und Kinderzimmer haben ja zumindest noch andere Fenster.

Warum wollt Ihr denn eine komplette Überdachung?

Grüße,

Dirk
V
Voki1
21.08.14 11:20
Im Grunde haben wir erst mal die komplette Überdachung vorgesehen. Tatsächlich fragen wir uns auch, ob nicht z. B. die Hälfte dann auch ausreichen würde. Groß genug wäre es allemal.
D
Doc.Schnaggls
21.08.14 11:54
Hi,

die Hälfte wäre lichtechnisch wahrscheinlich deutlich besser, aber wie nutzbar der überdachte Teil bei einer Tiefe von rund 180 cm wäre, wage ich mal in Frage zu stellen.
Da passt (regengeschützt) keine Biertischgarnitur drunter...

Oder überlegt Ihr nur die rechte oder die Linke Hälfte zu überdachen?

Warum wollt Ihr denn überhaupt ein Dach?

Ware nicht eine wasserdichte Markise eine Option?
terrassenüberdachungfensterbungalowüberdachenterrassendach