Hallo Leute,
ich bin gerade dabei meine Elektroleitungen zu legen in meinem Holzhaus.
Nun dachte ich natürlich auch dran Leerrohre zu legen für eine Photovoltaikanlage. Eigentlich habe ich noch keine Ahnung welche Möglichkeiten es da gibt und geben wird in den nächsten Jahren.
Kurze Info
- südliche Dachfläche: 70m²
- Dachneigung: 18°
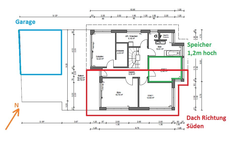
- Ausrichtung: im Anhang zu sehen
Meine drei Fragen:
1. Wie viele Leerrohre lege ich um für später mal flexibel zu sein wenn ich mir was aufs Dach machen lassen möchte? Ich dachte an 3x 25mm Rohre, habe ich zumindest mal irgendwo aufgeschnappt.
2. Wo müssen die Leerrohre beginnen? Das Ende ist eigentlich klar... und zwar in die Garage, da wo auch der Hauptverteiler sitzen wird. Aber können die Rohre auch einfach nur irgendwo unter dem Dach beginnen? Unsere Decken sind im OG hoch bis unters Dach, bis auf einen kleinen 1,2m hohen Speicher an der zur Garage entferntesten Stelle. Wird man von unten ans Dach müssen oder wird das alles von oben gemacht? Dann würde es ja reichen wenn die Leerrohre in der Nähe der Garage in die Sparren legen würde oder?
3. Wie soll der Verlauf sein? So gerade wie möglich oder? Welchen Biegeradius sollte ich einhalten? Könnte ich die Leerrohre eigentlich auch nach außen in die Dämmung legen? Wir haben 20cm Holzfaserdämmung außen an der Massivholzwand. Da könnte ich mir doch einen Kanal reinsägen oder können die Rohre dann nicht mit eingeputzt werden?
Vielen Dank im Voraus für eure Antworten.
Grüße
Tito

ich bin gerade dabei meine Elektroleitungen zu legen in meinem Holzhaus.
Nun dachte ich natürlich auch dran Leerrohre zu legen für eine Photovoltaikanlage. Eigentlich habe ich noch keine Ahnung welche Möglichkeiten es da gibt und geben wird in den nächsten Jahren.
Kurze Info
- südliche Dachfläche: 70m²
- Dachneigung: 18°
- Ausrichtung: im Anhang zu sehen
Meine drei Fragen:
1. Wie viele Leerrohre lege ich um für später mal flexibel zu sein wenn ich mir was aufs Dach machen lassen möchte? Ich dachte an 3x 25mm Rohre, habe ich zumindest mal irgendwo aufgeschnappt.
2. Wo müssen die Leerrohre beginnen? Das Ende ist eigentlich klar... und zwar in die Garage, da wo auch der Hauptverteiler sitzen wird. Aber können die Rohre auch einfach nur irgendwo unter dem Dach beginnen? Unsere Decken sind im OG hoch bis unters Dach, bis auf einen kleinen 1,2m hohen Speicher an der zur Garage entferntesten Stelle. Wird man von unten ans Dach müssen oder wird das alles von oben gemacht? Dann würde es ja reichen wenn die Leerrohre in der Nähe der Garage in die Sparren legen würde oder?
3. Wie soll der Verlauf sein? So gerade wie möglich oder? Welchen Biegeradius sollte ich einhalten? Könnte ich die Leerrohre eigentlich auch nach außen in die Dämmung legen? Wir haben 20cm Holzfaserdämmung außen an der Massivholzwand. Da könnte ich mir doch einen Kanal reinsägen oder können die Rohre dann nicht mit eingeputzt werden?
Vielen Dank im Voraus für eure Antworten.
Grüße
Tito
Anzeige
Hallo titoz,
schau mal hier: Photovoltaikanlage - Wo sollen die Leerrohre verlaufen?. Da wird jeder fündig!
schau mal hier: Photovoltaikanlage - Wo sollen die Leerrohre verlaufen?. Da wird jeder fündig!
Eine Photovoltaikanlage ist meistens in sogenannte "Strings" (= Gruppen der Module) unterteilt.
Auf einer klassischen Dachhälfte werden die Module meistens in zwei Strings aufgeteilt.
Pro String brauchst du drei Kabel (Plus,Minus, Erde). Wobei Erde kann man bei beiden Zusammenführen.
Erde sollte auch getrennt von anderen Kabel verlegt werden (also nicht direkt mit in einem Rohr, damit ein etwaig einschlageneder Blitz nicht überspringen kann).
An die Erde kannste dann auch noch z.B. die Sat Schüssel mit anbinden oder andere Erden.
Bei uns ist der Wechselrichter im Keller.
Daher gehen die Leerrohre von den Dachziegeln bis zum Wechselrichter.
Bei uns sind es also zwei Rohre:
Ein 20er Fränkisches Rohr für 4x Photovoltaik Kabel (2x Plus, 2x Minus)
Ein mind. 16er Fränkisches Rohr für 1x Erde.
zzgl.Leerrohre für SAT, LAN, Strom Spitzboden, allgemeine Reserve für evtl.
Auf einer klassischen Dachhälfte werden die Module meistens in zwei Strings aufgeteilt.
Pro String brauchst du drei Kabel (Plus,Minus, Erde). Wobei Erde kann man bei beiden Zusammenführen.
Erde sollte auch getrennt von anderen Kabel verlegt werden (also nicht direkt mit in einem Rohr, damit ein etwaig einschlageneder Blitz nicht überspringen kann).
An die Erde kannste dann auch noch z.B. die Sat Schüssel mit anbinden oder andere Erden.
Bei uns ist der Wechselrichter im Keller.
Daher gehen die Leerrohre von den Dachziegeln bis zum Wechselrichter.
Bei uns sind es also zwei Rohre:
Ein 20er Fränkisches Rohr für 4x Photovoltaik Kabel (2x Plus, 2x Minus)
Ein mind. 16er Fränkisches Rohr für 1x Erde.
zzgl.Leerrohre für SAT, LAN, Strom Spitzboden, allgemeine Reserve für evtl.
Ähnliche Themen