ᐅ Photovoltaikanlage Ausrichtung
Erstellt am: 17.03.20 09:21
S
Stadtvilla1917.03.20 09:21Hallo,
mich würde mal interessieren ob sich hier jemand richtig gut mit Photovoltaik Anlagen auskennt oder vielleicht weiß ob es irgend eine Seite gibt wo man die Leistung und Ausrichtung berechnen kann.
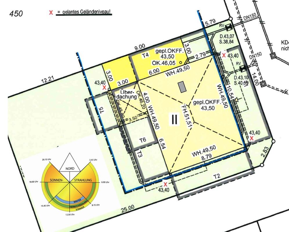
Wir haben eine Stadtvilla 12x9 mit je 60cm Dachüberstand und 25° Neigung. Im Hausangebot steht wir sollen eine 9,9kw Photovoltaikanlage bekommen. Nun wurde uns damals schon gesagt die Dachfläche reicht nicht nund man müsste auch was auf den Anbau stellen. Das wollen wir aber eigentlich nicht, wir wollen alles auf dem Walmdach. Laut Technikfirma würden da nur 9,5kw darauf passen mit Ost/West Ausrichtung.
Da unser Haus eher eine NO/SW Ausrichtung hat von den großen Dachflächen mache ich mir schon ein bisschen Gedanken ob es sinnvoll ist die Hälfte der Anlage auf der NO Seite zu installieren. Laut Tabelle die ich gefunden habe wäre das -110° Azimut und nur 79% Ertrag.
Jetzt frage ich mich was ist Sinnvoller die vorgeschlagene Variante der Technikfirma oder ob es nicht Sinnvoller wäre die kleine Dachfläche daneben zu nutzen die eine SO Ausrichtung hat zu nutzen. Klar passen hier wieder weniger Module hin und die Anlage hätte dann vermutlich nur noch 7KW aber hat es so evtl mehr Ertrag ? Und wir würden noch Geld Sparen, da wir weniger Module benötigen. Die Technikfirma ist ja wahrscheinlich auch eher darauf aus, uns das was im Angebot ist auch irgendwie zu montieren ob es Sinn macht oder nicht, Hauptsache Umsatz!?
Daher würde ich gerne irgendwie ausrechnen wollen was man mit weniger Solarmodulen aber besserer Ausrichtung erreichen kann, gegenüber mehr Modulen aber schlechter Ausrichtung.
mich würde mal interessieren ob sich hier jemand richtig gut mit Photovoltaik Anlagen auskennt oder vielleicht weiß ob es irgend eine Seite gibt wo man die Leistung und Ausrichtung berechnen kann.
Wir haben eine Stadtvilla 12x9 mit je 60cm Dachüberstand und 25° Neigung. Im Hausangebot steht wir sollen eine 9,9kw Photovoltaikanlage bekommen. Nun wurde uns damals schon gesagt die Dachfläche reicht nicht nund man müsste auch was auf den Anbau stellen. Das wollen wir aber eigentlich nicht, wir wollen alles auf dem Walmdach. Laut Technikfirma würden da nur 9,5kw darauf passen mit Ost/West Ausrichtung.
Da unser Haus eher eine NO/SW Ausrichtung hat von den großen Dachflächen mache ich mir schon ein bisschen Gedanken ob es sinnvoll ist die Hälfte der Anlage auf der NO Seite zu installieren. Laut Tabelle die ich gefunden habe wäre das -110° Azimut und nur 79% Ertrag.
Jetzt frage ich mich was ist Sinnvoller die vorgeschlagene Variante der Technikfirma oder ob es nicht Sinnvoller wäre die kleine Dachfläche daneben zu nutzen die eine SO Ausrichtung hat zu nutzen. Klar passen hier wieder weniger Module hin und die Anlage hätte dann vermutlich nur noch 7KW aber hat es so evtl mehr Ertrag ? Und wir würden noch Geld Sparen, da wir weniger Module benötigen. Die Technikfirma ist ja wahrscheinlich auch eher darauf aus, uns das was im Angebot ist auch irgendwie zu montieren ob es Sinn macht oder nicht, Hauptsache Umsatz!?
Daher würde ich gerne irgendwie ausrechnen wollen was man mit weniger Solarmodulen aber besserer Ausrichtung erreichen kann, gegenüber mehr Modulen aber schlechter Ausrichtung.
Hi,
ja die Seite gibt es: google nach Photovoltaik Forum.
Dort kannst du dann dein Haus, Dach und Angebote vorstellen und dir wird sehr gut geholfen. Pläne sind dafür sinnvoll.
Generelle Info: Mach das Dach voll! Speicher eher Nein. Achtung: Förderdeckel ist fast geschlossen, bitte informieren.
Nach deinen Infos sind unsere Häuser/Dächer recht identisch. Bei unserer etwas kleineren Dachfläche passt 9,9 kWp darauf mit 31 Modulen.
Dafür haben wir drei Seiten belegen lassen (SW=12 Module, S/SO=9Module, NO=10 Module).
Bei einem Walmdach sollte als Wechselrichter eher SolarEdge verbaut werden.
ja die Seite gibt es: google nach Photovoltaik Forum.
Dort kannst du dann dein Haus, Dach und Angebote vorstellen und dir wird sehr gut geholfen. Pläne sind dafür sinnvoll.
Generelle Info: Mach das Dach voll! Speicher eher Nein. Achtung: Förderdeckel ist fast geschlossen, bitte informieren.
Nach deinen Infos sind unsere Häuser/Dächer recht identisch. Bei unserer etwas kleineren Dachfläche passt 9,9 kWp darauf mit 31 Modulen.
Dafür haben wir drei Seiten belegen lassen (SW=12 Module, S/SO=9Module, NO=10 Module).
Bei einem Walmdach sollte als Wechselrichter eher SolarEdge verbaut werden.
Ja PVGIS. Den Norden nicht belegen. Sondern SW voll machen. Vor allen im Sommer wird es dich freuen. Da Du dann noch annehmbare Erträge zu später Stunde haben wirst, wo ich dann nur noch mit meinem Süddach irgendwo zweistellig was runterbekomme.
Bin kein Freund von Norddächern, wenn das Geld nicht superlocker sitzt.
Bin kein Freund von Norddächern, wenn das Geld nicht superlocker sitzt.
S
Stadtvilla1917.03.20 11:08Also wir sollten 14 Module je Dachseite bekommen, mehr passt wohl nicht.
Hab das jetzt mal ausgerechnet mit der empfohlenen Seite. Geplant sind 28 Module 14 in SW und 14 in NO Ausrichtung. Bei der NO Ausrichtung würden die 14 Module laut der Seite die ihr mir empfohlen habt ca 3650kw produzieren. Wenn ich das gleiche jetzt mit dem kleinen Dachstück Richtung SO rechne dann brauche ich nur 10 Module um auf fast den gleichen Wert zu kommen.
Ich weiß jetzt natürlich nicht ob 10 Module dort Platz finden aber es wäre doch besser das Geld für 4 Module zu sparen bei gleicher Ausbeute??
Hab das jetzt mal ausgerechnet mit der empfohlenen Seite. Geplant sind 28 Module 14 in SW und 14 in NO Ausrichtung. Bei der NO Ausrichtung würden die 14 Module laut der Seite die ihr mir empfohlen habt ca 3650kw produzieren. Wenn ich das gleiche jetzt mit dem kleinen Dachstück Richtung SO rechne dann brauche ich nur 10 Module um auf fast den gleichen Wert zu kommen.
Ich weiß jetzt natürlich nicht ob 10 Module dort Platz finden aber es wäre doch besser das Geld für 4 Module zu sparen bei gleicher Ausbeute??
S
Stadtvilla1917.03.20 11:18Ähnliche Themen