ᐅ Optimale Position für Esstisch in Wohn-/Essbereich
Erstellt am: 28.02.25 15:21
G
goldfisch13828.02.25 15:21Hallo zusammen,
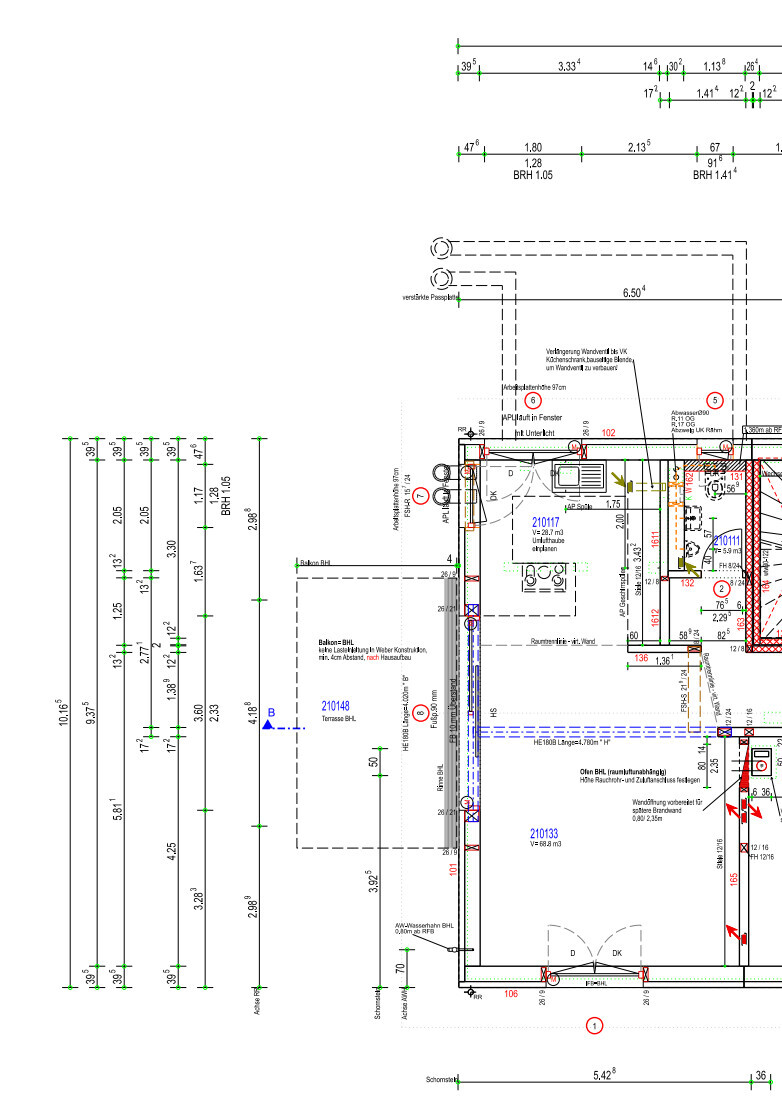
ich bin gerade dabei unsere Einliegerwohnung einzurichten. Hierbei frage ich mich an welcher Position der Esstisch (für 4 P.) positioniert werden kann, um die Laufwege Küche und den Weg auf den Balkon nicht zu versperren. Das große Hebe-/Schiebeelement ist mit einem Anschlag rechts versehen, also öffnet sich links. In der Nische neben dem Sofa wurde noch ein Kamin vorbereitet, in den nächsten 5 Jahren aber nicht geplant.

Von der Planung her sind wir aktuell schon soweit, dass wir die TV-Ecke schon geplant haben, weil sie an der Stelle auch am meisten Sinn macht meiner Meinung nach. Ich bin aber auch hier für Vorschläge offen. Das hier war mal ein erster Entwurf im Planer homebyme:

Ich finde nicht so wirklich eine geeignete Position für den Esstisch, in welcher ich wirklich zufrieden damit bin.
Danke euch vorab für eure Ratschläge.
ich bin gerade dabei unsere Einliegerwohnung einzurichten. Hierbei frage ich mich an welcher Position der Esstisch (für 4 P.) positioniert werden kann, um die Laufwege Küche und den Weg auf den Balkon nicht zu versperren. Das große Hebe-/Schiebeelement ist mit einem Anschlag rechts versehen, also öffnet sich links. In der Nische neben dem Sofa wurde noch ein Kamin vorbereitet, in den nächsten 5 Jahren aber nicht geplant.
Von der Planung her sind wir aktuell schon soweit, dass wir die TV-Ecke schon geplant haben, weil sie an der Stelle auch am meisten Sinn macht meiner Meinung nach. Ich bin aber auch hier für Vorschläge offen. Das hier war mal ein erster Entwurf im Planer homebyme:
Ich finde nicht so wirklich eine geeignete Position für den Esstisch, in welcher ich wirklich zufrieden damit bin.
Danke euch vorab für eure Ratschläge.
N
nordanney28.02.25 15:33goldfisch138 schrieb:
Einliegerwohnung einzurichtenWer wird denn in der Einliegerwohnung wohnen?G
goldfisch13828.02.25 15:40nordanney schrieb:
Wer wird denn in der Einliegerwohnung wohnen?Eine Familie mit einem Kleinkind (3P).
N
nordanney28.02.25 15:47goldfisch138 schrieb:
Eine Familie mit einem Kleinkind (3P).Dann lass die Familie das doch selber planen. Ich würde auch nicht auf einem Blatt Papier überlegen, wo ich einen Tisch unbekannter Größe hinstelle (auf Deinem Bild ist ein Tisch für sechs Personen - gesucht wird für vier Personen.). Das mache ich in real life.
G
goldfisch13828.02.25 15:53Mir geht es primär darum:
Wir möchten einen Tisch planen mit Hängelampe, somit müssen wir ja bereits die Elektroanschlüsse einplanen, sodass die Lampe dann auch an der richtigen Stelle sitzt. Wir haben den identischen Grundriss 2 mal (EG/OG), wir werden unten einziehen und stehen vor dem genannten Problem.
Wir möchten einen Tisch planen mit Hängelampe, somit müssen wir ja bereits die Elektroanschlüsse einplanen, sodass die Lampe dann auch an der richtigen Stelle sitzt. Wir haben den identischen Grundriss 2 mal (EG/OG), wir werden unten einziehen und stehen vor dem genannten Problem.
N
nordanney28.02.25 15:57goldfisch138 schrieb:
sodass die Lampe dann auch an der richtigen Stelle sitzt.DIE Position findest Du nicht. 1m vom Fenster und 1m von der halbhohen Wand der Küche wäre grob meine eigene Planung.Ähnliche Themen