Crossy schrieb:
An die 2,97m Wand soll mit dem Kopfende zum Kinderzimmer Mara-Magdalena das Elternbett?Klar, damit sie beim Zeugen von Kind/Büro/Gast (komischer Name) auch live dabei sein kann!
So eine Zwischenwand kannst du in einem 20qm Schlafzimmer stellen. Aber bei euch wird das einfach nur drückend wirken.
Zeichne auch mal möbel in deine Ankleide ein.
Da bekommst du auch nichts unter.
Außerdem bin ich ebenfalls der Meinung, dass die Anordnung Schlafzimmer/Ankleide so Murks ist.
Zeichne auch mal möbel in deine Ankleide ein.
Da bekommst du auch nichts unter.
Außerdem bin ich ebenfalls der Meinung, dass die Anordnung Schlafzimmer/Ankleide so Murks ist.
C
Coletrickle_780806.05.20 16:27Wie gesagt ich nehme gerne Tipps an und bin nicht unbelehrbar. Dennoch bitte ich manche hier den Ton etwas zu zügeln.
Ich bin auch kein Architekt.
Ich bin mit 2 bekommen Grundrissen zum jetzigen Anbieter und eben den Wünschen Ankleide, symmetrische Fenster Front/Rückansicht.
Das waren die 2 zuvor bekommenen Vorschläge.
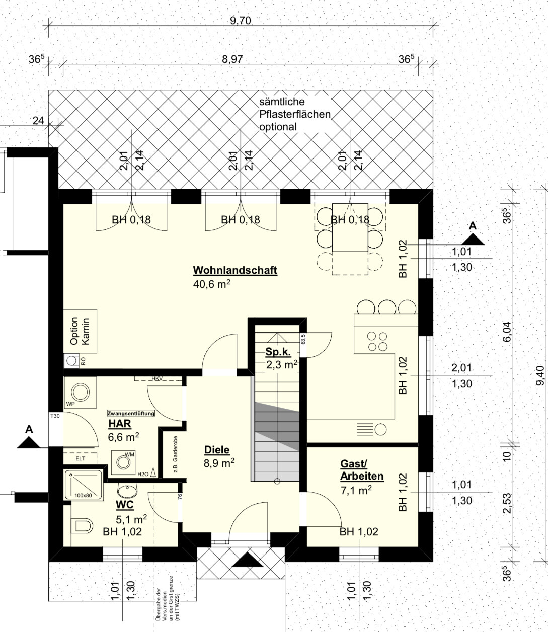
Die Zwischenwand ist entstanden, da das TV Board sons sehr weit weg wäre vom Bett. Aktuell ist zwischen Bett und diesem Board 60cm.





Ich bin auch kein Architekt.
Ich bin mit 2 bekommen Grundrissen zum jetzigen Anbieter und eben den Wünschen Ankleide, symmetrische Fenster Front/Rückansicht.
Das waren die 2 zuvor bekommenen Vorschläge.
Die Zwischenwand ist entstanden, da das TV Board sons sehr weit weg wäre vom Bett. Aktuell ist zwischen Bett und diesem Board 60cm.
Coletrickle_7808 schrieb:
Ich bin auch kein Architekt.Deswegen brauchst Du ja Einen, der nicht ebenfalls keiner ist.https://www.instagram.com/11antgmxde/
https://www.linkedin.com/company/bauen-jetzt/
Ganz einfacher Tipp. Zeichne im gesamten Haus maßstabsgetreue Möbel ein. Denke dran, dass es Rohbaumaße sind. Bspw. wird ein gewünschter 3m Schrank nicht in eine eingezeichnete 3m Nische passen. Rechne 3cm Putz pro Wand.
Bedenke, dass 60 cm momentan vielleicht bei euch funktionieren. Aber ist dass das Raumgefühl was ihr euch wünscht? Bedenke auch praktisches: Kommst du da auch noch mit Gehhilfe durch?
Wie hoch ist der Nutzen eurer Ankleide. Wie viele Schrankmeter bekommst du da unter? Lohnt sich dafür der qm-Investment?
Bedenke, dass 60 cm momentan vielleicht bei euch funktionieren. Aber ist dass das Raumgefühl was ihr euch wünscht? Bedenke auch praktisches: Kommst du da auch noch mit Gehhilfe durch?
Wie hoch ist der Nutzen eurer Ankleide. Wie viele Schrankmeter bekommst du da unter? Lohnt sich dafür der qm-Investment?
C
Coletrickle_780806.05.20 16:36Okay...ich verstehe auch gar nicht warum er immer die Länge kürzt und nicht einfach auf der Seite der Hauswirtschaftsraum etwas gekürzt hat.
Ähnliche Themen