W
WilderSueden28.12.20 16:00Und so, um das Thema Grundrisse mal auf ordentliche Beine zu stellen. Aktuell haben wir folgende Modelle als Basis:
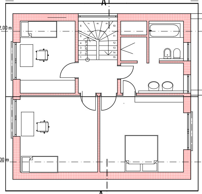
Town & Country: Bodensee 129 in der Variante mit Bad unten, gespiegelt für Ost-Eingang.
Durch die Spiegelung ergeben sich schön viele Süd und West-Fenster im Allraum. Die Küche liegt nah an der Terrasse, vom Arbeitszimmer geht der Blick übers Grundstück. Durch die schmale Form des Hauses bleibt auch recht viel Platz für den Garten übrig. Wenn man die Treppe nochmal spiegelt (d.h. den Aufgang zur Innenseite) bekommt man unter der Treppe eine Garderobe unter. Im OG lässt sich unter Weglassung der Wanne die Dusche schön vergrößern und dahinter gut z.B. die Waschmaschine unterbringen. Kleiner Bonus für die Photovoltaik wäre das Ost-West-Dach für gleichmäßigen Eigenverbrauch.
Weberhaus: Balance 100, ebenfalls gespiegelt
Arbeitszimmer im Nordwesten, Küche in diesem Fall auf der Ostseite. Speisekammer unter der Treppe durch eine zusätzliche Wand. Arbeitszimmer ist etwas klein, sollte aber noch passen. Technikraum ist ebenfalls eher klein, nach der ganzen Haustechnik ist eher fragwürdig ob da noch ein ganzer HAR mit rein passt. Wäre aber weniger ein Problem da oben noch genügend Platz im Bad ist wenn die Wanne rauskommt.
lokaler GU (siehe Anhang)
Der lokale GU arbeitet mit einem Ingenieur locker zusammen der für ihn die Bauplanung, Statik, usw macht. Dem habe ich ein grobes Anforderungsprofil gegeben und er hat 2 Vorentwürfe aus der Schublade gezogen damit eine Basis für eine Kostenschätzung existiert. Unten sind beide Entwürfe praktisch gleich (Fensterfronten sind mal etwas breiter/schmaler aber Räume sind gleich aufgeteilt). Oben unterscheiden die sich dann insofern dass ein Entwurf mit einem Halbgeschoss plant während der andere ein zweites Vollgeschoss hat. Ich habe die mal angehängt. Den Balkon beim Vollgeschoss Entwurf bitte ignorieren, den werden wir nicht bauen da wir ja einen Garten haben. Ebenso ist auch der angebaute Carport rausgeflogen.
Der Entwurf macht optisch schon am meisten her durch die großen Fenster in den Wohnräumen und im Treppenhaus. Die Problematik mit dem Platz für den Technikraum ist hier durch einen Anbau gelöst sodass genug Platz für ein Bad und einen Abstellraum im EG bleibt. Der Technikraumanbau schließt auch den Eingangsbereich ganz gut zur Garage hin ab. Das Arbeitszimmer ist sicher von allen das schönste und großzügigste, auch wenn ich da vielleicht doch ein bisschen weniger Fenster verbauen würde. Die Wohnküche wäre insgesamt etwas kompakter als bei den anderen Entwürfen wobei ich das eher als Vorteil denn als Nachteil sehen würde. So bleibt wenig leerer Raum zwischen dem Ess- und dem Wohnzimmerbereich (was ich zum Beispiel beim Weberhaus-Entwurf sehe). Bei dem Haus würden wir dann die Hinterkante relativ parallel zur Grundstücksgrenze ausrichten sodass das Haus dann in einer Achse WSW-ONO liegt. Das gibt im Wohnzimmer viel Licht, im Arbeitszimmer die Möglichkeit ab Nachmittag ohne direkte Sonne zu arbeiten. Aufgrund der großen Fenster in beiden Richtungen lässt sich im Arbeitszimmer auch immer die Seite verdunkeln die gerade in der Sonne liegt.
Großer Vorteil hier wäre dass wir die volle Freiheit haben den Entwurf zu ändern und dann nicht für die Abweichung von einem Standardentwurf bezahlen sondern für das was es tatsächlich kostet. Leider fehlt immer noch die Baubeschreibung sodass ich das Angebot des GU nicht zuverlässig einschätzen kann (über die Feiertage wollte ich jetzt auch nicht stören, die Tage wird nochmal nachgehakt).



Town & Country: Bodensee 129 in der Variante mit Bad unten, gespiegelt für Ost-Eingang.
Durch die Spiegelung ergeben sich schön viele Süd und West-Fenster im Allraum. Die Küche liegt nah an der Terrasse, vom Arbeitszimmer geht der Blick übers Grundstück. Durch die schmale Form des Hauses bleibt auch recht viel Platz für den Garten übrig. Wenn man die Treppe nochmal spiegelt (d.h. den Aufgang zur Innenseite) bekommt man unter der Treppe eine Garderobe unter. Im OG lässt sich unter Weglassung der Wanne die Dusche schön vergrößern und dahinter gut z.B. die Waschmaschine unterbringen. Kleiner Bonus für die Photovoltaik wäre das Ost-West-Dach für gleichmäßigen Eigenverbrauch.
Weberhaus: Balance 100, ebenfalls gespiegelt
Arbeitszimmer im Nordwesten, Küche in diesem Fall auf der Ostseite. Speisekammer unter der Treppe durch eine zusätzliche Wand. Arbeitszimmer ist etwas klein, sollte aber noch passen. Technikraum ist ebenfalls eher klein, nach der ganzen Haustechnik ist eher fragwürdig ob da noch ein ganzer HAR mit rein passt. Wäre aber weniger ein Problem da oben noch genügend Platz im Bad ist wenn die Wanne rauskommt.
lokaler GU (siehe Anhang)
Der lokale GU arbeitet mit einem Ingenieur locker zusammen der für ihn die Bauplanung, Statik, usw macht. Dem habe ich ein grobes Anforderungsprofil gegeben und er hat 2 Vorentwürfe aus der Schublade gezogen damit eine Basis für eine Kostenschätzung existiert. Unten sind beide Entwürfe praktisch gleich (Fensterfronten sind mal etwas breiter/schmaler aber Räume sind gleich aufgeteilt). Oben unterscheiden die sich dann insofern dass ein Entwurf mit einem Halbgeschoss plant während der andere ein zweites Vollgeschoss hat. Ich habe die mal angehängt. Den Balkon beim Vollgeschoss Entwurf bitte ignorieren, den werden wir nicht bauen da wir ja einen Garten haben. Ebenso ist auch der angebaute Carport rausgeflogen.
Der Entwurf macht optisch schon am meisten her durch die großen Fenster in den Wohnräumen und im Treppenhaus. Die Problematik mit dem Platz für den Technikraum ist hier durch einen Anbau gelöst sodass genug Platz für ein Bad und einen Abstellraum im EG bleibt. Der Technikraumanbau schließt auch den Eingangsbereich ganz gut zur Garage hin ab. Das Arbeitszimmer ist sicher von allen das schönste und großzügigste, auch wenn ich da vielleicht doch ein bisschen weniger Fenster verbauen würde. Die Wohnküche wäre insgesamt etwas kompakter als bei den anderen Entwürfen wobei ich das eher als Vorteil denn als Nachteil sehen würde. So bleibt wenig leerer Raum zwischen dem Ess- und dem Wohnzimmerbereich (was ich zum Beispiel beim Weberhaus-Entwurf sehe). Bei dem Haus würden wir dann die Hinterkante relativ parallel zur Grundstücksgrenze ausrichten sodass das Haus dann in einer Achse WSW-ONO liegt. Das gibt im Wohnzimmer viel Licht, im Arbeitszimmer die Möglichkeit ab Nachmittag ohne direkte Sonne zu arbeiten. Aufgrund der großen Fenster in beiden Richtungen lässt sich im Arbeitszimmer auch immer die Seite verdunkeln die gerade in der Sonne liegt.
Großer Vorteil hier wäre dass wir die volle Freiheit haben den Entwurf zu ändern und dann nicht für die Abweichung von einem Standardentwurf bezahlen sondern für das was es tatsächlich kostet. Leider fehlt immer noch die Baubeschreibung sodass ich das Angebot des GU nicht zuverlässig einschätzen kann (über die Feiertage wollte ich jetzt auch nicht stören, die Tage wird nochmal nachgehakt).
11ant schrieb:
Die sehen ihren unerwartet zum Greifen nahe gekommenen sozialen Aufstieg zum Eigenheimbewohner in der Gefahr, wieder zu platzen, wenn sie sich nicht auf den "Kern" beschränken - was umgekehrt bedeutet, zwei Dinge wegzulassen: 1. den Keller ...Bedeutet dies dann, dass heute fast nur noch Häuser von Menschen gebaut werden, die einfach "dazugehören" wollen, da sie auf den Keller verzichten? 🙂WilderSueden schrieb:
Für mich klingt das Thema Wanne bei einigen Leuten etwas dogmatisch, genau wie dass die Waschmaschine auf keinen Fall im Badezimmer stehen darf.Kannst Du natürlich machen, die Waschmaschine und Trockner in das Bad stellen. Ich frage mich da gerade, ob dann die Zahnbürste noch gehört wird, wenn die Waschmaschine schleudert. Und ob man dann lieber aus dem Bad flüchten möchte, obwohl dort ein Ruhepunkt zu finden sein sollte...WilderSueden schrieb:
Da schlagen extra Räume für Waschmaschine und Dreckwäsche oder auch eine unbenutzte Badewanne ganz schön auf die Wohnfläche.... Oder ob Dreckwäsche dann auch dort gesammelt wird oder die Handwäsche dort getrocknet wird auf nem schicken Ständer, der dann aber nicht platzsparend über der Wanne angebracht werden kann, weil nicht vorhanden. In meinen Augen auch eher eine Fehlplanung, so ein Gestell über der Wanne...Wozu ein grosses Becken mit Wasseranschluss aka Wanne gut ist:
zum über Nacht Einweichen vollgesch** Bekleidung (oder aber Grasflecken, Karottenflecken, Blut usw.)
Wollpullis (hochwertiger Art) sollten schwimmend ausklaren vom Waschmittel
Wolldecken ebenso. Selbst handgefertigtes...
Spielsachen wie Püppis, Legos oder dergleichen kann man am besten in einer Wanne reinigen
Grünkohl... wird dort gereinigt
Haare waschen, wenn man nicht Duschen darf oder kann oder will... das nicht-Duschen-dürfen ist bei uns im Haushalt schon öfters vorgekommen ... das Leben hat immer neue Erfahrungen parat.
Körperbehaarung: geht auch sehr gut in der Wanne, wenn man zB auf dem Beckenrand sitzt
Und ganz nebenbei werden dort auch Kinder drin gebadet, eingeweicht sozusagen.
Mit Ganzkörper-Peelings oder osmosischen Bädern brauche ich Dir ja nicht zu kommen... sag mal: gibt es eigentlich auch eine Frau zum Wilden_Süden?
W
WilderSueden28.12.20 16:07Verrückt, in der Zeit in der ich meinen Grundriss Post schreibe, macht ihr schon wieder 1,5 Seiten OT...
pagoni2020 schrieb:Das war anfangs ja auch meine Idee. Entsprechend frustriert war ich dann als wir mit dem ersten Weberhaus Angebot ohne Keller wieder da waren wo ich mit Keller die Grenze gesehen habe. Und auch beim lokalen GU nicht wirklich günstig waren. Wobei ich da noch hoffe dass das einfach an der hochwertigen Ausstattung liegt
Das stimmt, wobei.....wenn Du vorher einen Plan hattest 130wm Wohnfläche. PLUS Keller und jetzt den Keller weglässt dann ist ja vlt. noch der ein oder andere qm drin, wenn die Kellerkosten entfallen
ypg schrieb:Die findet typische Frauen Dinge doof und schminkt sich nicht, trägt keinen Schmuck und macht auch keine Peelings
Mit Ganzkörper-Peelings oder osmosischen Bädern brauche ich Dir ja nicht zu kommen... sag mal: gibt es eigentlich auch eine Frau zum Wilden_Süden?
ypg schrieb:
...
Wozu ein grosses Becken mit Wasseranschluss aka Wanne gut ist:
...Ergänzung:- Als temporärer Aufenthaltsort des Karpfens für das Festessen
- als Reinigungsort für großformatige Grillroste
- Fuß(nagel)pflege
- ...
WilderSueden schrieb:
Verrückt, in der Zeit in der ich meinen Grundriss Post schreibe, macht ihr schon wieder 1,5 Seiten OT...Also ein Kind auf ca. 12 qm unterzubringen, halte ich für - ich nenne es mal - gewagt. Bitte nicht vergessen: ein Kind wächst 🙂WilderSueden schrieb:
...
Die findet typische Frauen Dinge doof und schminkt sich nicht, trägt keinen Schmuck und macht auch keine Peelings 😉... klingt sympathisch. Dann braucht sie auch keinen Föhn?Ähnliche Themen