Neubau Einfamilienhaus 2 Vollgeschosse mit Doppelgarage 150qm

4,60 Stern(e) 13 Votes
Zuletzt aktualisiert 12.01.2026
Sie befinden sich auf der Seite 4 der Diskussion zum Thema: Neubau Einfamilienhaus 2 Vollgeschosse mit Doppelgarage 150qm
>> Zum 1. Beitrag <<

H

haydee

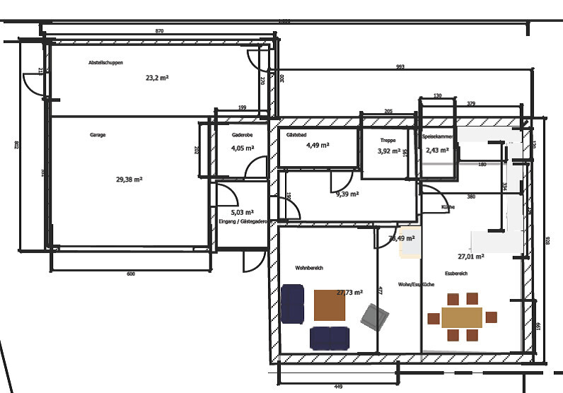
Gefrierschrank an der Stirnseite macht den Raum fast nicht Nutzbar.
Zeichne den mal ein mit Schwenkbereich Tür
Weg ein paar Zentimetern
 
J

j.bautsch

Speisekämmerchen (die eh nicht nutzbar ist da nicht tief genug) streichen!
dafür ne vernünftig große Küche einplanen in der alles unterkommen kann (Stichwort Hochschränke)
 
W

Wugler1978

Der Plan ist nur grob zusammengeschoben, ohne Blenden. 210cm Abstand zwischen den Zeilen wäre zu viel, die Küche zu weit im Wohnbereich, das passt nicht.
Der Plan wurde mit Sweet Home 3d erstellt. Die Maße passen auf den Millimeter genau.Einzig der Tresen wird ggf noch breiter. Aber wie gesagt, vor Finalisierung geht es ins Küchenstudio
 
J

j.bautsch

Küchenfachberater sind leider oft nur semi von Fach (ist nämlich auch kein Ausbildungsberuf, was ich teilweise schon für schreckliche Planung von kfbs gesehen habe ....)

Viele kommen viel zu spät ins Forum, nämlich wenn fast nichts mehr veränderbar ist und wundern sich dann das ihre traumküche nicht realisierbar ist
 
H

halmi

Ich hatte es weiter vorne schon mal geschrieben, Speisekämmerchen raus und die Probleme sind erledigt.
 
W

Wugler1978

Auf die Speis möchten wir eigentlich nicht verzichten. Das stört uns in unserem derzeitigen Haus. Getränke, Papierabfall, Gelber Sack, Gefrierschrank soll alles raus aus der Küche. Gerade weil alles offen ist, möchten wir das nicht in der Küche.
Alternative wäre ggf noch die Speis zu drehen. Sie wäre dann mit 1,3 m tiefer (Thema Gefriertruhe öffnen), aber nicht mehr so lang.

Grundriss eines Hauses mit Wohnzimmer, Essbereich, Küche, Garage und Gästezimmer


Detaillierter 2D-Grundriss eines Hauses mit Küche, Speisekammer und angrenzenden Räumen
 
Zuletzt aktualisiert 12.01.2026
Im Forum Grundrissplanung / Grundstücksplanung gibt es 2565 Themen mit insgesamt 88794 Beiträgen
Oben