S
Siedlerhaus2216.04.22 17:28Hallo zusammen,
Wir lesen hier seit einigen Jahren bereits immer wieder interessiert mit und wollten uns jetzt auch mal mit unserem Projekt zu Wort melden.
Nachdem von Doppelhaus über Abriss bis hinzu Ensemble-Schutz bei uns alles dabei ist, möchten wir dem ein oder anderen etwas die vermeintliche Furcht vor solchen Grundstücken nehmen.
Kurz zu uns, wir sind beide in unseren End-Zwanzigern, selbstständig und beide Bauingenieure.
Trotzdem oder gerade deswegen, haben wir uns gezielt dagegen entschieden, das Projekt selbst zu organisieren bzw. zu leiten.
Die kompletten Leistungsphasen haben wir an ein Architekturbüro abgeben, mit welchem wir auch sonst beruflich eng zusammenarbeiten.
Das Projekt
____________
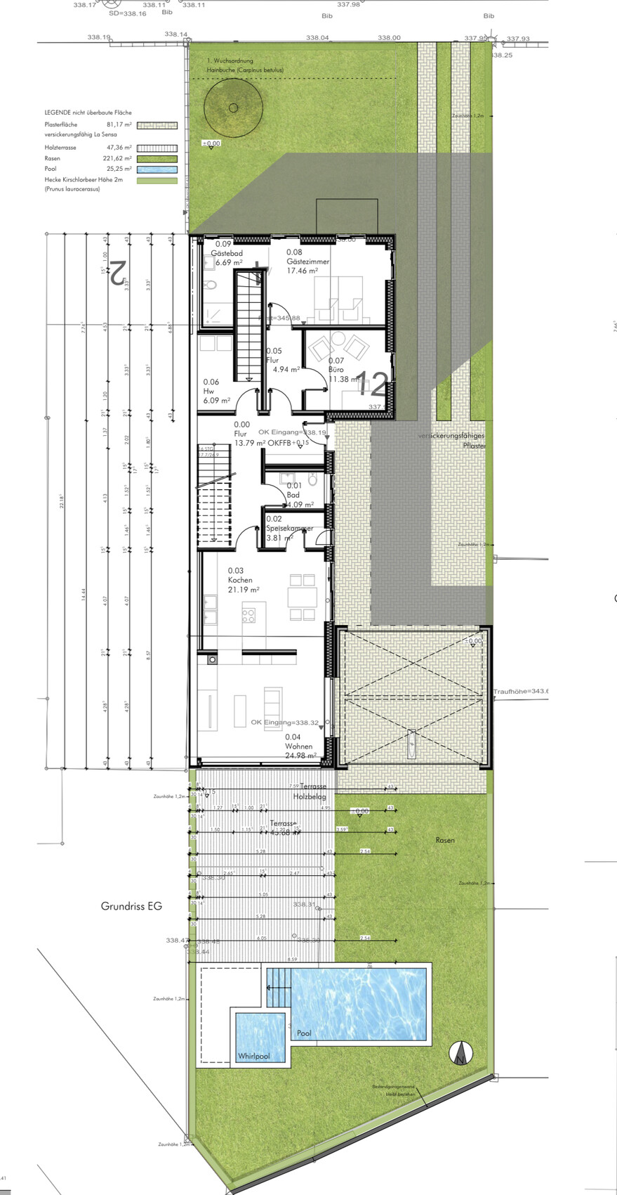
Grundstück: knapp 600m2
Altbestand: Doppelhaushälfte - klassisches Siedlerhaus
Bauvorhaben:
Einfamilienhaus
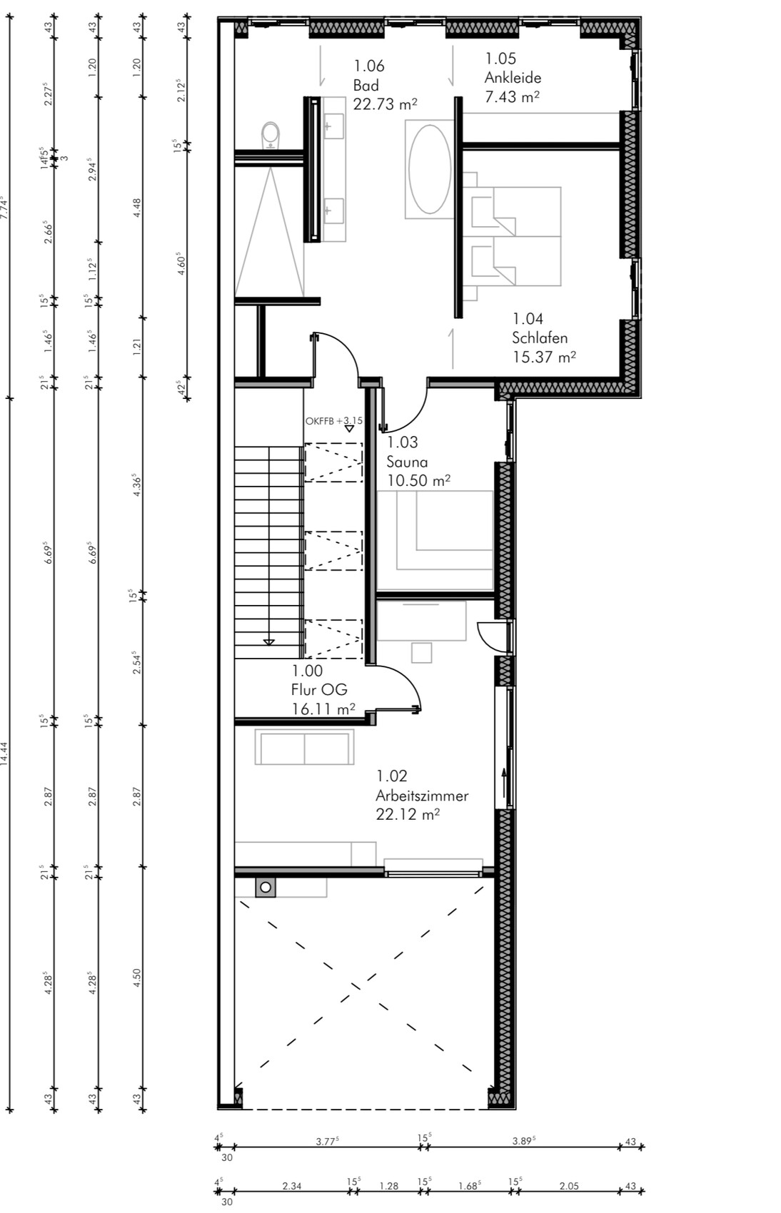
Knapp 210m2 Wohnfläche
Doppelgarage
Teilunterkellert
Kostenschätzung - Stand April 22
Baukosten: 1.450.000,-€
Grundstück inkl. Abriss: 750.000,-€
Gesamtkosten: 2.200.000,-€
zzgl. 350.000€ Budget Innenarchitekt inkl. möblierung und Küche + Fachplaner + Bauleitung
Zielsetzung:
Wir wollten stadtnah wohnen und lieben beide den Charme der Siedlerhäuser. Als uns das Objekt über den weggelaufen ist, wollten wir es ursprünglich in der Form zweier Wohneinheiten entwickeln und vermarkten - letztendlich haben wir es aber als entdeckt.
Wesentliche Ausstattung:
Akustik-Decken im gesamten Haus
Spachtelboden im gesamten Haus
Kragarmtreppe
Sauna
Kebony-Außenfassade
Pool + Whirlpool
Klimaanlage
Zentrale Lüftungsanlage
Gaskamin
Outdoorküche
Holz-Aluminium-Fenster
Fenster,Türen und Sockelleisten flächenbündig
Türen raumhoch
Pelletheizung
Sonos Lautsprecher-System im Haus
KNX System f. Licht, Ton, Rollo, Wärme, Lüftung/Klima, Pool, Türen/Fenster
Aktueller Stand:
Baugenehmigung erhalten
Abriss genehmigt
Gewerke vergeben
Abriss Altbestand läuft
Nächster Step:
Erd/Rohbaubeginn im Mai
Falls als von eurer Seite aus Interesse an dem Projekt besteht, dann würden dieses hier gerne in Form eines kleinen Bauberichts regelmäßig vorstellen.
Mit Bildern, Pleiten, Pech und Pannen 🙂
Anmerkung zu den Grundrissen:
Auf Grund einiger statischer Überlegungen haben wir uns mittlerweile - entgegen der Eingabeplanung gegen eine Holzständerbauweise entschieden. Das Haus wird somit massiv mit einem 36,5 Ziegel (gefüllt mit Holzfasern) errichtet.
Ebenfalls sind ein paar Anpassungen des Innenarchitekten noch nicht eingeflossen - bei Interesse am Projekt ergänzen wir das aber natürlich! 🙂


Wir lesen hier seit einigen Jahren bereits immer wieder interessiert mit und wollten uns jetzt auch mal mit unserem Projekt zu Wort melden.
Nachdem von Doppelhaus über Abriss bis hinzu Ensemble-Schutz bei uns alles dabei ist, möchten wir dem ein oder anderen etwas die vermeintliche Furcht vor solchen Grundstücken nehmen.
Kurz zu uns, wir sind beide in unseren End-Zwanzigern, selbstständig und beide Bauingenieure.
Trotzdem oder gerade deswegen, haben wir uns gezielt dagegen entschieden, das Projekt selbst zu organisieren bzw. zu leiten.
Die kompletten Leistungsphasen haben wir an ein Architekturbüro abgeben, mit welchem wir auch sonst beruflich eng zusammenarbeiten.
Das Projekt
____________
Grundstück: knapp 600m2
Altbestand: Doppelhaushälfte - klassisches Siedlerhaus
Bauvorhaben:
Einfamilienhaus
Knapp 210m2 Wohnfläche
Doppelgarage
Teilunterkellert
Kostenschätzung - Stand April 22
Baukosten: 1.450.000,-€
Grundstück inkl. Abriss: 750.000,-€
Gesamtkosten: 2.200.000,-€
zzgl. 350.000€ Budget Innenarchitekt inkl. möblierung und Küche + Fachplaner + Bauleitung
Zielsetzung:
Wir wollten stadtnah wohnen und lieben beide den Charme der Siedlerhäuser. Als uns das Objekt über den weggelaufen ist, wollten wir es ursprünglich in der Form zweier Wohneinheiten entwickeln und vermarkten - letztendlich haben wir es aber als entdeckt.
Wesentliche Ausstattung:
Akustik-Decken im gesamten Haus
Spachtelboden im gesamten Haus
Kragarmtreppe
Sauna
Kebony-Außenfassade
Pool + Whirlpool
Klimaanlage
Zentrale Lüftungsanlage
Gaskamin
Outdoorküche
Holz-Aluminium-Fenster
Fenster,Türen und Sockelleisten flächenbündig
Türen raumhoch
Pelletheizung
Sonos Lautsprecher-System im Haus
KNX System f. Licht, Ton, Rollo, Wärme, Lüftung/Klima, Pool, Türen/Fenster
Aktueller Stand:
Baugenehmigung erhalten
Abriss genehmigt
Gewerke vergeben
Abriss Altbestand läuft
Nächster Step:
Erd/Rohbaubeginn im Mai
Falls als von eurer Seite aus Interesse an dem Projekt besteht, dann würden dieses hier gerne in Form eines kleinen Bauberichts regelmäßig vorstellen.
Mit Bildern, Pleiten, Pech und Pannen 🙂
Anmerkung zu den Grundrissen:
Auf Grund einiger statischer Überlegungen haben wir uns mittlerweile - entgegen der Eingabeplanung gegen eine Holzständerbauweise entschieden. Das Haus wird somit massiv mit einem 36,5 Ziegel (gefüllt mit Holzfasern) errichtet.
Ebenfalls sind ein paar Anpassungen des Innenarchitekten noch nicht eingeflossen - bei Interesse am Projekt ergänzen wir das aber natürlich! 🙂
S
Siedlerhaus2216.04.22 17:46Definitiv individuell!:-)
Aber definitiv eben auch unser Geschmack und Haus! :-)
Ich kann dir versichern, da ging sehr viel Zeit sowohl beim Architekten, als auch bei gemeinsamen Terminen mit dem Innenarchitekten-Team dafür drauf - am Ende wollten wir es so, wie es zu unserem Wohn- und Lebensgefühl passt.
Übrigens passt da ein größer Esstisch hin *lach*
Genauer gesagt ein
EM Table
Tischplatte 2400x900mm
Tischhöhe 740mm
Untergestell pulverbeschichtet glatt Tischplatte: Furnier Eiche dunkel, Naturholz Schutzlack
Untergestell: tiefschwarz
Macht dann mit 6 Eames Plastic Armchair DAW und einem FLOS Pendell 2097/50 bestimmt etwas her - zumindest für uns :-)
Aber klar, das ist alles sehr individuell.
Ich glaube die wenigstens wollen auch ein Fenster in die Garage, weil Sie gerne Ihre Autos ansehen *lach*
Aber definitiv eben auch unser Geschmack und Haus! :-)
Ich kann dir versichern, da ging sehr viel Zeit sowohl beim Architekten, als auch bei gemeinsamen Terminen mit dem Innenarchitekten-Team dafür drauf - am Ende wollten wir es so, wie es zu unserem Wohn- und Lebensgefühl passt.
Übrigens passt da ein größer Esstisch hin *lach*
Genauer gesagt ein
EM Table
Tischplatte 2400x900mm
Tischhöhe 740mm
Untergestell pulverbeschichtet glatt Tischplatte: Furnier Eiche dunkel, Naturholz Schutzlack
Untergestell: tiefschwarz
Macht dann mit 6 Eames Plastic Armchair DAW und einem FLOS Pendell 2097/50 bestimmt etwas her - zumindest für uns :-)
Aber klar, das ist alles sehr individuell.
Ich glaube die wenigstens wollen auch ein Fenster in die Garage, weil Sie gerne Ihre Autos ansehen *lach*
F
Fuchsbau3516.04.22 17:51Ist das wirklich erst gemeint oder was soll die Angeberei mit dem Tisch und den Stühlen?
Ähnliche Themen