Neubau DH, Hanglage in Hessen - Feedback zum Grundriss

4,70 Stern(e) 6 Votes
Zuletzt aktualisiert 24.11.2025
Sie befinden sich auf der Seite 4 der Diskussion zum Thema: Neubau DH, Hanglage in Hessen - Feedback zum Grundriss
>> Zum 1. Beitrag <<

K

KundF_Hof

Ein weiteres Problem, wenn ich 13 Meter Baubreite richtig deute, dann dürfte dieser Grundriss:


mit Außenwänden Max. 6,50 cm breit sein. Da erscheinen mir einige Möbel zu klein eingezeichnet zu sein (Sofa z. B. ca. 210x80), Gänge zu schmal zu sein, im OG z. B. ca. 85 cm und vor allem die Treppe mehr als knapp kalkuliert, ich komme durch Rückrechnung maximal auf 184x218 cm und sage mal, dass sollten schon mind. 200bis230 mal 210bis230 sein:


Insbesondere bei dem Anspruch.

Einliegerwohnung .. das könnte doch auch ein wundervoller Homeoffice-Bereich werden und der Haupteingang mit etwas Abgrabung im Osten, also planunten.

Dann können andere Bereiche großzügiger werden.
Danke für dein Feedback. Wir bekommen morgen die professionell gezeichneten Pläne vom GU zurück, ggf. komme ich dann noch mal auf euch zu.
Die Abgrabung im Osten funktioniert nicht, da wir dort die Zufahrt zur Garage haben und im Mimimum von 3 Meter Grenzabstand sind. Die Abgrabung mit Freisitz werden wir aber zur Straßenseite hin realisieren.
 
K

KundF_Hof

Hallo Zusammen, nun gibt es Update mit professionellen Zeichnungen. Ich wäre sehr froh und dankbar, wenn ihr mir hierzu wieder eure Gedanken und Meinungen da lasst.

Was ich vermisse:
EG, Speisekammer - aber ich weiß nicht wo hin damit
Wo ich Fragen habe:
Ist der Versatz zu lang von den Häusern und man schaut so oft / viel auf die "weiße Wand" des Nachbarn?
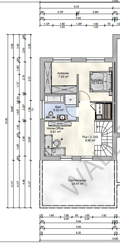
Ist der Hauswirtschaftsraum Raum im 1. OG groß genug?
Passt der Platz in der Küche?
Benötige ich den "Belichtungsflur" im 2. OG wirklich?

Grundriss Obergeschoss: Flur, Schlafzimmer mit Ankleide, zwei Kinderzimmer, Bad, HWR, Treppe.


Grundriss DG: Flur, Schlafen, Ankleide, Bad, Home-Office und Dachterrasse.


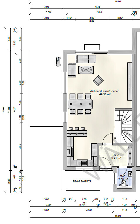
Grundriss: offener Wohnen/Essen/Kochenbereich, Diele, Treppe, WC, Balkon


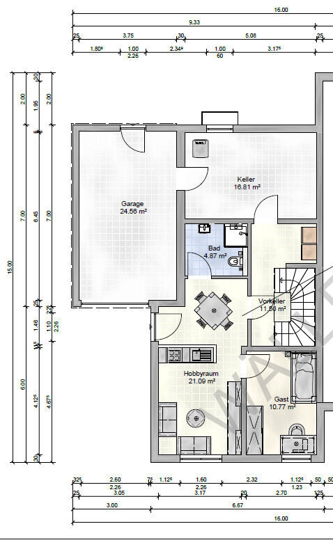
Grundriss eines Hauses mit Garage, Keller, Vorkeller, Hobbyraum, Gast, Bad und Treppenhaus
 
11ant

11ant

nun gibt es Update mit professionellen Zeichnungen.
Eine Profisoftware macht noch nicht, daß auch ein Profi am Schreibtisch sitzt. Die Trennfuge geht hier nicht durch, so ist das eine Kommunwand mit sinnlosem Fingerspalt. Die Kellergarage ist Murks bzw. funktioniert nur bei der anderen Haushälfte: in Deutschland sind linksgelenkte Autos Standard. Im Versatz der Haushälften sehe ich keinen sittlichen Mehrwert.
 
K

KundF_Hof

Eine Profisoftware macht noch nicht, daß auch ein Profi am Schreibtisch sitzt. Die Trennfuge geht hier nicht durch, so ist das eine Kommunwand mit sinnlosem Fingerspalt. Die Kellergarage ist Murks bzw. funktioniert nur bei der anderen Haushälfte: in Deutschland sind linksgelenkte Autos Standard. Im Versatz der Haushälften sehe ich keinen sittlichen Mehrwert.
Danke für dein Feedback: Der Versatz soll a) das ganze optisch auflockern da Frontansicht somit nicht so mächtig und b) sitze ich auf der Terrasse nicht Tisch an Tisch mit dem Nachbarn
 
K

KundF_Hof

Der Versatz ist eine teure und auch Bautiefe verbrauchende Sichtschutzwand, da gäbe es der Weisheit weit letztere Schlüsse.
Und auch die Massigkeitsbrechung kann man pfiffiger anlegen. Warum Pyrrhus heute als verehrter Feldherr so populär ist, entzieht sich meinem Verständnis.
Thema teuer möchte ich hier ausklammern, das Grundstück gibt es in der Länge her den Versatz zu machen. Das es andere Sichtschutzmöglichkeiten gibt ist mir klar. Allerdings wird keine so massiv und auch geräuschhemmend sein wie 2m Haus.
Den zweiten Teil deiner Anmerkung müsstest du mir bitte noch mal erklären.
 
Zuletzt aktualisiert 24.11.2025
Im Forum Grundrissplanung / Grundstücksplanung gibt es 2536 Themen mit insgesamt 88009 Beiträgen
Oben