F
fritzi00116.07.20 22:22Hallo liebe Forumgemeinde,
Ich zerbreche mir seit einiger Zeit den Kopf, wie ich das zukünftige Bad in unserer Wohnung am besten plane.
Aktuell hänge ich sehr am Vorschlag des Bauträgers. Mit Badewanne (180x80) und Dusche (Boden gefliest) in einer Linie und auf der anderen Seite Handtuchhalter, Waschtisch 120cm mit Unterbau und Spiegelschrank sowie Hochkasten daneben
Konzept:

Detailierter und mit Maße

Nachteil:
Installateur kann nur gerade Glaswände, welche dann auf der Badewanne aufgesetzt werden soll, liefern, somit hat die Dusche maximal die Tiefe der Badewanne (180x80cm)
Mit einem Fliesensims könnte man das zwar erweitern jedoch, ist die Breite der Dusche sowieso mit <90cm (271,5-180 -Putz und Fliesen ) begrenzt
im Plan ist eine 90x90cm Dusche eingezeichnet, ist aber nur gefliest am Boden und wäre individuell von der Große anpassbar
Ohne Fliesensims wäre diese aber dann nur 90x80cm
Mit Fliesensims eventuell 90x85 oda so
Man könnte aber auch auf die Badewanne verzichten und hätte dann natürlich sehr viel Platz für einge große begehnbare Dusche, jedoch wäre meine Frau dann nicht mehr so glücklich.
Nachdem ich gestern mit Arbeitskollegen gesprochen habe bin ich auf folgende Variante gestoßen:
Wanne vor dem Fenster (PH ist 150cm, Fenster selbst ist 120cm breit, 80cm hoch)
Vorteil: Dusche könnte wesentlich größer sein (im Plan aktuell 100x100), vom Gefühl etwas zu groß und der EIngangsbereich ist recht überladen
Nachteil: Wanne vor Fenster und ein totes Ecke rechts oben, wobei ich nach Messungen und Abschätzungen es durchaus als möglich erachte das Fenster (leider rechts angeschlagen) über die Wanne hinweg zu öffnen.

Eventuell könnte man auch eine Trockenbauwand in halber Höhe zur Dusche einziehen mit oben Glas um den Raum ein wenig abzutrennen, jedoch habe ich das Gefühl den Raum noch weiter zu verkleinern.
Habt ihr eventuell Anmerkungen oder Verbesserungsvorschläge?
Welche Variante würdet ihr bevorzugen?
Würde mich sehr über Rückmeldungen freuen.
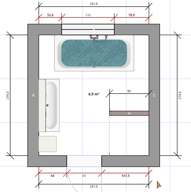
Im Anhang habe ich zur Sicherheit nochmal die Rohbaumaße angehängt.

Ich zerbreche mir seit einiger Zeit den Kopf, wie ich das zukünftige Bad in unserer Wohnung am besten plane.
Aktuell hänge ich sehr am Vorschlag des Bauträgers. Mit Badewanne (180x80) und Dusche (Boden gefliest) in einer Linie und auf der anderen Seite Handtuchhalter, Waschtisch 120cm mit Unterbau und Spiegelschrank sowie Hochkasten daneben
Konzept:
Detailierter und mit Maße
Nachteil:
Installateur kann nur gerade Glaswände, welche dann auf der Badewanne aufgesetzt werden soll, liefern, somit hat die Dusche maximal die Tiefe der Badewanne (180x80cm)
Mit einem Fliesensims könnte man das zwar erweitern jedoch, ist die Breite der Dusche sowieso mit <90cm (271,5-180 -Putz und Fliesen ) begrenzt
im Plan ist eine 90x90cm Dusche eingezeichnet, ist aber nur gefliest am Boden und wäre individuell von der Große anpassbar
Ohne Fliesensims wäre diese aber dann nur 90x80cm
Mit Fliesensims eventuell 90x85 oda so
Man könnte aber auch auf die Badewanne verzichten und hätte dann natürlich sehr viel Platz für einge große begehnbare Dusche, jedoch wäre meine Frau dann nicht mehr so glücklich.
Nachdem ich gestern mit Arbeitskollegen gesprochen habe bin ich auf folgende Variante gestoßen:
Wanne vor dem Fenster (PH ist 150cm, Fenster selbst ist 120cm breit, 80cm hoch)
Vorteil: Dusche könnte wesentlich größer sein (im Plan aktuell 100x100), vom Gefühl etwas zu groß und der EIngangsbereich ist recht überladen
Nachteil: Wanne vor Fenster und ein totes Ecke rechts oben, wobei ich nach Messungen und Abschätzungen es durchaus als möglich erachte das Fenster (leider rechts angeschlagen) über die Wanne hinweg zu öffnen.
Eventuell könnte man auch eine Trockenbauwand in halber Höhe zur Dusche einziehen mit oben Glas um den Raum ein wenig abzutrennen, jedoch habe ich das Gefühl den Raum noch weiter zu verkleinern.
Habt ihr eventuell Anmerkungen oder Verbesserungsvorschläge?
Welche Variante würdet ihr bevorzugen?
Würde mich sehr über Rückmeldungen freuen.
Im Anhang habe ich zur Sicherheit nochmal die Rohbaumaße angehängt.
P
pagoni202016.07.20 22:45Lösen kann ich es Dir nicht aber vlt. ein paar Ideen geben. Quadratisch als Glasdusche sollte sie m.E. 90x90 haben, mehr finde ich zu groß. Begehbar sollte sie 140cm Länge haben, wobei es auch mit 120cm geht, je nach Duschverhalten. Wir haben hier beide Maße imn Gebrauch, mir wäre die 120cm zu kurz, daher haben wir noch ein 20cm Stück Glas anbringen lassen. Die nächste Dusche wird definitiv wieder halbhoch mit Ytong o.ä. und die Glasscheibe vom Glaser außenbündig aufgestellt, dadurch innen Abstellfläche; der Vorteil, man muss nicht immer die riesige Scheibe abziehen und sich ewig bücken (Altersfaulheit). Dazu die Duschstange in der Wand drin verlegen.
Duschwand auf Wanne aufstellen finde ich grässlich, die Wanne unterm Fenster sieht nicht schlecht aus, öffnen ist doch kein Problem. Das "tote Eck" könnte man vermeiden bzw. schön gestalten mit Ablage o.ä. Vlt. auch eine große Wanne mittig schick einmauern und auf beiden Seiten Ablagen oder auch der Handtuchwärmer. Das mal als grobe Idee.....
Wo ist eigentlich das WC?
Duschwand auf Wanne aufstellen finde ich grässlich, die Wanne unterm Fenster sieht nicht schlecht aus, öffnen ist doch kein Problem. Das "tote Eck" könnte man vermeiden bzw. schön gestalten mit Ablage o.ä. Vlt. auch eine große Wanne mittig schick einmauern und auf beiden Seiten Ablagen oder auch der Handtuchwärmer. Das mal als grobe Idee.....
Wo ist eigentlich das WC?
F
fritzi00116.07.20 23:05danke erstmal für die rasche Antwort
das WC ist in einem eigenen Raum links neben dem Bad, wir haben es mal kurz überlegt es zusammenzulegen, jedoch ist es bei Besuch ganz praktisch wenn das WC extra ist. Irgendwie ist das Bad dann doch ein nochmal privaterer Bereich.
Die Idee mit dem Ytong ist gut, damit könnte ich eventuell den Bereich zur Dusche ein wenig abtrennen und hätte zugleich innen Abstellfläche. DIe IDee die Wanne in die Mitte vor das Fenster zu setzen ist gut
leider gibt es der 3D Planner auf die Schnelle nicht her. Den Verbau daneben muss man sich dann halt denken. Eventuell könnte man Fächer vorne zugänglich machen, wo Handtücher usw. drinnen sein.

Dusche:
Glas, wie von pagoni beschrieben außen am Ytong aufgesetzt. Vorne Drehtür um in die Dusche zu kommen.

gefällt mir eigentlch ganz gut,
Engt der Ytong das Badezimmer eventuell zu sehr ein?
Eine wirkliche notwendigkeit die Dusche damit abzugrenzen besteht ja nicht oder?
das WC ist in einem eigenen Raum links neben dem Bad, wir haben es mal kurz überlegt es zusammenzulegen, jedoch ist es bei Besuch ganz praktisch wenn das WC extra ist. Irgendwie ist das Bad dann doch ein nochmal privaterer Bereich.
Die Idee mit dem Ytong ist gut, damit könnte ich eventuell den Bereich zur Dusche ein wenig abtrennen und hätte zugleich innen Abstellfläche. DIe IDee die Wanne in die Mitte vor das Fenster zu setzen ist gut
leider gibt es der 3D Planner auf die Schnelle nicht her. Den Verbau daneben muss man sich dann halt denken. Eventuell könnte man Fächer vorne zugänglich machen, wo Handtücher usw. drinnen sein.
Dusche:
Glas, wie von pagoni beschrieben außen am Ytong aufgesetzt. Vorne Drehtür um in die Dusche zu kommen.
gefällt mir eigentlch ganz gut,
Engt der Ytong das Badezimmer eventuell zu sehr ein?
Eine wirkliche notwendigkeit die Dusche damit abzugrenzen besteht ja nicht oder?
P
pagoni202017.07.20 00:29Also...das sind eher hemdsärmelige Ideen meinerseits bzw. solche, die ich selbst hatte oder habe. Meine Idee wäre jedoch gewesen, die Ytongwand längs zu stellen, also 120 bzw 140cm lang i.R. Fenster, darauf Glas und das Ganze ohne Tür. So wie die Tür auf dem Bild jetzt ist würde sie ja mit der Badtür kollidieren. Wir haben zwei Versionen hier bei uns, einmal mit 140cm und einmal mit 120cm, wa auch möglich ohne Tür (ich mag halt lieber ohne). Der Eingang in die Dusche wäre mit ca. 60cm ok, zumal Du ja auf der linken Seite Armfreiheit hättest (Badewanne). Die Maße musst Du aber selbst prüfen. Die eingemauerte Wanne wäre dann quasi Dein Ende des Duschtraktes. Die Ytongwand sollte nicht allzuhoch sein, vlt. 100cm, der Glaser hat das super gemacht hier und für einen Teil des Preises einer Duschlabine.
Was ich frühr mal hatte und auch klasse fand ist so ne Art Schnecke, auch Ytong unf Glas über Eck aufgesetzt, dadurch das Glas stabil und ohne Verstrebungen.
Falls etwas von Interesse ist kann ich auch mal Bilder schicken; das aber mal als Ideengeber vlt, was Du bei Dir dann anpassen kannst. Die Idee vom Installateur gefällt mir aber nicht, das hat sowas von Mietwohnung der 80er-Jahre.... Alle drei Optionen sind/waren für mich komfortabel (jedes Kästchen im Plan 10cm). Den Badplan mit der Schnecke könntest im Maß ja anpassen oder drehen. Es reicht jas völlig, wenn Deine Badtür 90Grad aufgeht; Ytong reicht 7,5cm Stärke.



Was ich frühr mal hatte und auch klasse fand ist so ne Art Schnecke, auch Ytong unf Glas über Eck aufgesetzt, dadurch das Glas stabil und ohne Verstrebungen.
Falls etwas von Interesse ist kann ich auch mal Bilder schicken; das aber mal als Ideengeber vlt, was Du bei Dir dann anpassen kannst. Die Idee vom Installateur gefällt mir aber nicht, das hat sowas von Mietwohnung der 80er-Jahre.... Alle drei Optionen sind/waren für mich komfortabel (jedes Kästchen im Plan 10cm). Den Badplan mit der Schnecke könntest im Maß ja anpassen oder drehen. Es reicht jas völlig, wenn Deine Badtür 90Grad aufgeht; Ytong reicht 7,5cm Stärke.
fritzi001 schrieb:
Installateur kann nur gerade GlaswändeWelcher Installateur denn? Hast du mal nachgeforscht, ob du nicht jemanden findest, der dir die Glaswand nach deinen Vorstellungen liefern kann?Genau so ein Bad habe ich auch. Badewanne neben Dusche, dazwischen Halbhoch Ytong und dann eine Glaswand drauf. Ich kenne deine Probleme sehr gut.
Beachte eines unbedingt: Du hast nur Rohbaumaße in deinem Plan. Nach dem Verputzen gehen davon noch mehrere cm ab! Bei mir wurde aus 2,88m am Ende 2,83m.
Ganz übles Zwischenmaß für eine 180er Wanne und 100er Duschtasse. Und gerade waren die Wände dann immer noch nicht. Schlecht für die Duschtasse. So ist das manchmal im Altbau.
Gelöst haben wir das ganze, in dem sowohl Wanne als auch Duschtasse leicht in die Wand eingestemmt wurde, sodass wieder 5cm Platz zwischen beiden Objekten war. Dann mit 7,5er Ytong aufgemauert und auch leicht angeschlitzt, dass die Wanne und Tasse in die leicht in der Wand steht.
Glastrennwann fehlt noch, die muss (teuer) vom Glaser kommen. Sanitärinstallateure bieten nur hässliche Fertigsysteme an, die man nicht so einfach auf die Mauer stellen kann.
Wäre es bei dir eine Option eine 1,70m Badewanne zu nehmen?
Beachte eines unbedingt: Du hast nur Rohbaumaße in deinem Plan. Nach dem Verputzen gehen davon noch mehrere cm ab! Bei mir wurde aus 2,88m am Ende 2,83m.
Ganz übles Zwischenmaß für eine 180er Wanne und 100er Duschtasse. Und gerade waren die Wände dann immer noch nicht. Schlecht für die Duschtasse. So ist das manchmal im Altbau.
Gelöst haben wir das ganze, in dem sowohl Wanne als auch Duschtasse leicht in die Wand eingestemmt wurde, sodass wieder 5cm Platz zwischen beiden Objekten war. Dann mit 7,5er Ytong aufgemauert und auch leicht angeschlitzt, dass die Wanne und Tasse in die leicht in der Wand steht.
Glastrennwann fehlt noch, die muss (teuer) vom Glaser kommen. Sanitärinstallateure bieten nur hässliche Fertigsysteme an, die man nicht so einfach auf die Mauer stellen kann.
Wäre es bei dir eine Option eine 1,70m Badewanne zu nehmen?
fritzi001 schrieb:Nein, die Wand wirkt super. Finde ich besser, als eine Glaswand direkt auf die Wanne. Oder was oft angeboten wird ist eine bodentiefe Glaswand, die praktsich vor der Wanne bzw. Trennwand steht.
Engt der Ytong das Badezimmer eventuell zu sehr ein?
Eine wirkliche notwendigkeit die Dusche damit abzugrenzen besteht ja nicht oder?
Ähnliche Themen