S
Shadowblues11.08.13 17:23Ich sagte doch .. wird ein Carport .. zu 95% .. und wenn ich da n Fenster brauche, dann zu 100%
Shadowblues schrieb:
Ich sagte doch .. wird ein Carport .. zu 95% .. und wenn ich da n Fenster brauche, dann zu 100%He, sorry, mein Browser hatte sich noch nicht aktualisiert. Also hier noch eine Denkanregung mit Giebel wieder in die richtige Richtung (man ist das streng bei Euch).Treppe hier als 1/2 gewendelt (Quadrat von 2,20m x 2,20m sollte reichen). Kamin muss eventuell vor die Wand, da die bestimmt trägt. Ansonsten muss man den vorher gut planen.
Im Grunde kein großer Unterschied bis auf den Giebel und das Schlafzimmer hat mehr Platz - das find ich persönlich wichtig.
S
Shadowblues11.08.13 20:03Hallo, danke Dir vielmals fürs mitdenken. Ist allein ohne Feedback immer etwas schwierig und der Architekt hat auch nicht so die Ideen ..
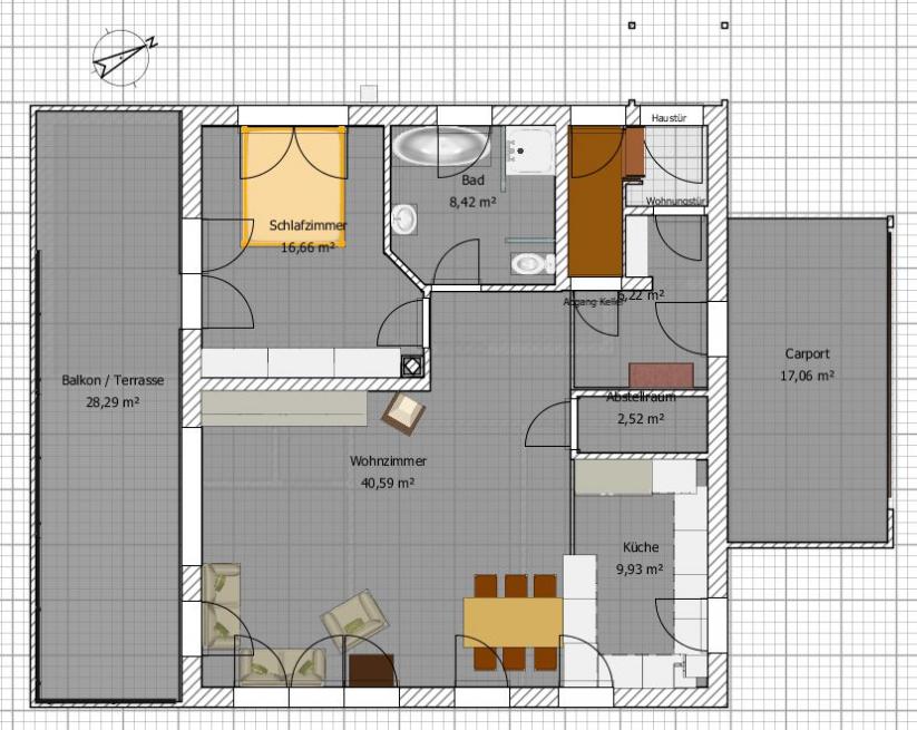
Tür zum Carport? Du, das war n Fenster Aber da ne Tür? Die Idee hat was für sich ... So Terrassentürmaessig evtl.?
Tür zum Carport? Du, das war n Fenster Aber da ne Tür? Die Idee hat was für sich ... So Terrassentürmaessig evtl.?
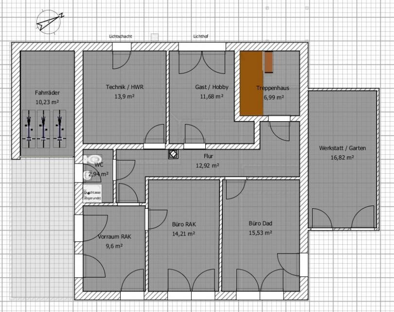
Hallo Roger,ich finde die Außenmaße zu klein um im Eg ein weiteres Zimmer ( bei euch Schlafzimmer einzuplanen. Wir wollten das erst auch, das man im Alter runterziehen kann und barrierefrei wohnen kann usw.wenn das der Antrieb für dich ist. Wir haben uns dann aus folgenden Punkten gegen einen weiteren Raum im Eg entschieden:1.) Raum kann wenn man ihn in 30 Jahren braucht immer noch eingezogen werden. 2) Unsere Oma ist jetzt 95 Jahre alt und läuft immer noch ins OG zum schlafen Treppenlift etc würden Abhilfe schafen will sie nicht!3.)Lebensqualität jetzt (warum ein kleines Wohn und Esszimmer mit Küche (hier spielt sich dass komplette Leben am Tag ab. Zugang von Carport bzw Garage würde ich auf jeden Fall mit einplanen. Beim Ug würde ich das WC besser mit einbinden , dass man zur Not wenn die KInder größer werden ein oder zwei Kinder runtersperren kann - evt auch das Schlafzimmer ins UG Raumtemperatur im Sommer sicher am angenehmsten (kommt natürlich aufs Alter der Kinder an. Im OG habt Ihr da seitlich die Fenster vergessen einzuzeichnen oder tatsächlich keine vorhanden? Gruß Martin
S
Shadowblues12.08.13 00:27Hallo,
also zu klein: Stimmt, aber wenn ich in 15 Jahren vermieten möchte, dann muss es gehen. Und nebenbei: Wohin sonst ein Schlafzimmer? Im OG ist auch kein Platz Vielleicht bin ich ja nur halbwegs genügsam weil ich grade ein Reihenmittelhaus habe. Da ist auch nicht so viel Platz, aktuell sitze ich in nem 9m² Raum ohne Fenster wenn ich was arbeite .. *seufz* Ok, das nervt wirklich. Unser Leben spielt sich in den Büroräumen ab und in den Kinderzimmern, daher ist mir wichtig, dass das größer wird wie jetzt. Wohnzimmer usw. ist ok wie es jetzt ist. Und wenn die Kinder dann in nem Hobbyraum noch Platz für Eisenbahn oder Schlagzeug haben, dann ist das perfekt.
Fenster seitlich im OG gibts nicht, da Kniestock ca. 1.40m sein wird. - sonst komme ich aus den Bauvorgeben - ist so schon hart genug an der Grenze
Es hat mir keine Ruhe gelassen und ich habe den neuen Plan noch mal angepackt und OG und UG dazu gebaut. gefällt mir eigentlich sehr gut wie es jetzt ist, mal schauen was mein Architekt dazu sagt wenn er Zeit für mich findet.
Wird wahrscheinlich n bissel zu teuer, überlege daher n bissel an der Heizung zu sparen .. also so Standard Billigheizung Gas + Solar statt Pellets - aber dazu müssen erst mal Zahlen auf den Tisch ..
Roger





P.S.: Kritik gerne gesehen





also zu klein: Stimmt, aber wenn ich in 15 Jahren vermieten möchte, dann muss es gehen. Und nebenbei: Wohin sonst ein Schlafzimmer? Im OG ist auch kein Platz Vielleicht bin ich ja nur halbwegs genügsam weil ich grade ein Reihenmittelhaus habe. Da ist auch nicht so viel Platz, aktuell sitze ich in nem 9m² Raum ohne Fenster wenn ich was arbeite .. *seufz* Ok, das nervt wirklich. Unser Leben spielt sich in den Büroräumen ab und in den Kinderzimmern, daher ist mir wichtig, dass das größer wird wie jetzt. Wohnzimmer usw. ist ok wie es jetzt ist. Und wenn die Kinder dann in nem Hobbyraum noch Platz für Eisenbahn oder Schlagzeug haben, dann ist das perfekt.
Fenster seitlich im OG gibts nicht, da Kniestock ca. 1.40m sein wird. - sonst komme ich aus den Bauvorgeben - ist so schon hart genug an der Grenze
Es hat mir keine Ruhe gelassen und ich habe den neuen Plan noch mal angepackt und OG und UG dazu gebaut. gefällt mir eigentlich sehr gut wie es jetzt ist, mal schauen was mein Architekt dazu sagt wenn er Zeit für mich findet.
Wird wahrscheinlich n bissel zu teuer, überlege daher n bissel an der Heizung zu sparen .. also so Standard Billigheizung Gas + Solar statt Pellets - aber dazu müssen erst mal Zahlen auf den Tisch ..
Roger
P.S.: Kritik gerne gesehen
Ähnliche Themen