Hallo zusammen,
mich würde eure Meinung, Anregungen und Tipps für die Grundrisse des folgenden Bauvorhabens interessieren.
Das Objekt soll nicht selbst genutzt werden, sondern dient der Vermietung
Kurz die Fakten:
Danke euch und viele Grüße
1. bis 3. OG:

Staffelgeschoss:

Nord-Ost Ansicht:

mich würde eure Meinung, Anregungen und Tipps für die Grundrisse des folgenden Bauvorhabens interessieren.
Das Objekt soll nicht selbst genutzt werden, sondern dient der Vermietung
Kurz die Fakten:
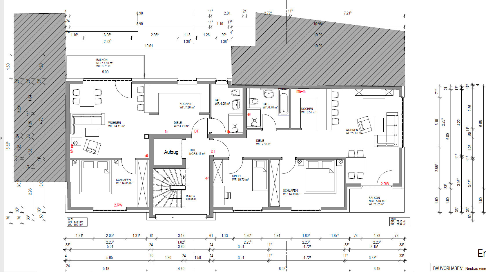
- Mehrfamilienhaus in Innenstadtlage
- Es müssen Stellplätze geschaffen werden, für eine Tiefgarage ist das Grundstück zu klein. Daher EG als Garagenfläche
- 3 Obergeschosse + Staffelgeschoss sowie Keller
Danke euch und viele Grüße
1. bis 3. OG:
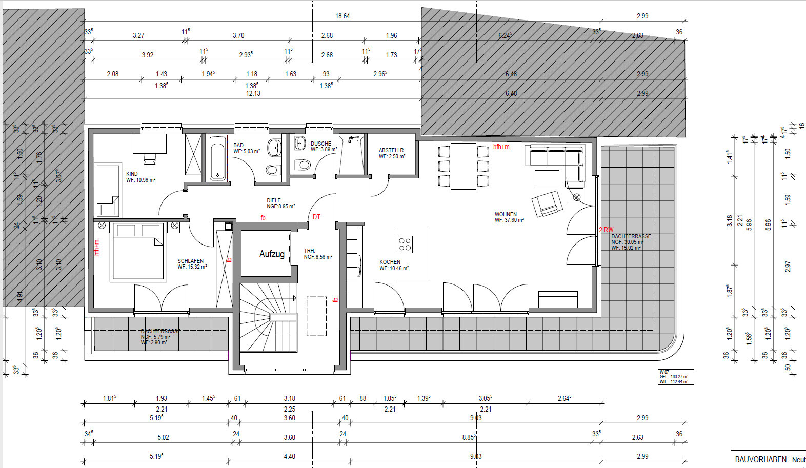
Staffelgeschoss:
Nord-Ost Ansicht:
N
nordanney10.05.21 21:58Standardgrundrisse. 08/15 - gut vermietbar.
M
Myrna_Loy10.05.21 22:34Die Garagenzufahrten im EG sind dort erlaubt? In Innenstadtlagen ist es bei den meisten Genehmigungsbehörden eigentlich nicht gern gesehen.
Ich nehme die Wohnung im Staffelgeschoss.
Für die Vermietung finde ich die Wohnungen gut geschnitten.
Vielleicht könnte man der Wohnung im Staffelgeschoss statt 2 Bädern und ein Abstellraum ein 2. Kinderzimmer/Büro gönnen.
Mit 2 Kindern und oder Homeoffice (was auch außerhalb von Corona ein Thema ist) paßt keine der Wohnungen.
Für die Vermietung finde ich die Wohnungen gut geschnitten.
Vielleicht könnte man der Wohnung im Staffelgeschoss statt 2 Bädern und ein Abstellraum ein 2. Kinderzimmer/Büro gönnen.
Mit 2 Kindern und oder Homeoffice (was auch außerhalb von Corona ein Thema ist) paßt keine der Wohnungen.
T
thoughtless8613.05.21 14:17Denke auch, dass die Grundrisse gut zur Vermietung geeignet sind. Allerdings ist die Frage, wen man erreichen will - sehe die Wohnungen vor allem für Singles und Paare geeignet, mit Kind und/oder Homeoffice schon eher problematisch. Da wäre auch meine Frage, ob man zwingend 2 Bäder im Staffelgeschoss benötigt oder dem ganzen doch eher ein zusätzliches Zimmer/Büro gönnt?!
Ähnliche Themen