ᐅ Mehrfamilienhaus Baujahr 1922 Energieeffizienzklasse G für 200k
Erstellt am: 29.03.24 09:32
S
ScripteyHallo, bin neu und habe mich versucht etwas einzulesen. Ich habe am Wochenende ein Besichtigungstermin in einem 6 Etagen Haus mit 4 Wohneinheiten aus dem Jahre 1922.
Wohnung 1 im Untergeschoss: aktuell 220 €, max. Mieterhöhung bis zu 360 € möglich. (45m2)
Wohnung 2 im Erdgeschoss: aktuell 320 €, max. Mieterhöhung bis zu 504 € möglich.(72m2)
Wohnung 3 im 1. Obergeschoss: 320 €, max. Mieterhöhung bis zu 535 € möglich.(75m2)
Wohnung 4/im 2. Obergeschoss und Dachgeschoss: 144m2 aktuell frei, würde ich selbst bewohnen.
Heizung ist 2017 auf Fernwärme/Nahwärme umgestellt worden. Die Wohnung im 1. Obergeschoss sowie die Wohnung im 2. Obergeschoss und Dachgeschoss werden zusätzlich durch einen Kamin- und Kachelofen beheizt.
Haus ist aktuell Energieeffizienzklasse G [Endenergiebedarf212,1 kWh/(m²*a)] welche laut meinen Recherchen bis 2033 auf "D" muss.
Ich dachte mir das Haus von oben nach unten über mehrere Jahre zu renovieren. Als ersten die 144m2 Wohnung, welche ich gerne bewohnen würde. Später dann Wohnung für Wohnung. Ggf. mit Fachlicher Unterstützung.
Gemacht ist aktuell nichts. Was müsste ich machen, um im gesetzlichen Rahmen der neuen EU Verordnung zu bleiben? Wie viel Geld müsste ich einplanen?
Haus kostet 200.000€ Nebenkosten etwa 25.000€
Aktuell habe ich 60.000 Eigenkapital.
Gehalt, was übrig bleibt etwa 1500 €
Mieteinnahmen zwischen 860 und ggf 1500€
Meine aktuellen monatlichen Lebenshaltungskosten belaufen sich aktuell bei 900 € (Miete, Auto, Essen, Versicherung etc.)
Bin 34 Jahre alt habe Schreiner gelernt, hätte immer jemand, der mir Handlanger spielt.
Laut meinen Recherchen müsste ich:
Dach dämmen
Kellerdecke dämmen
Klimaanlagen würde ich jeweils für ein Schlafzimmer installieren.
Was müsste noch gemacht werden, um Energieeffizienzklasse D zu erreichen?
Hier eine grobe Skizze:

2UG Keller,
1UG 45m2 Wohnung vermietet
EG 72m2 Wohnung vermietet
1. OG 75m2 vermietet
2 OG und DG 144m2 unvermietet

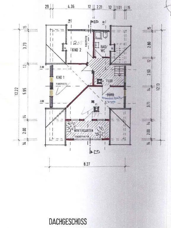
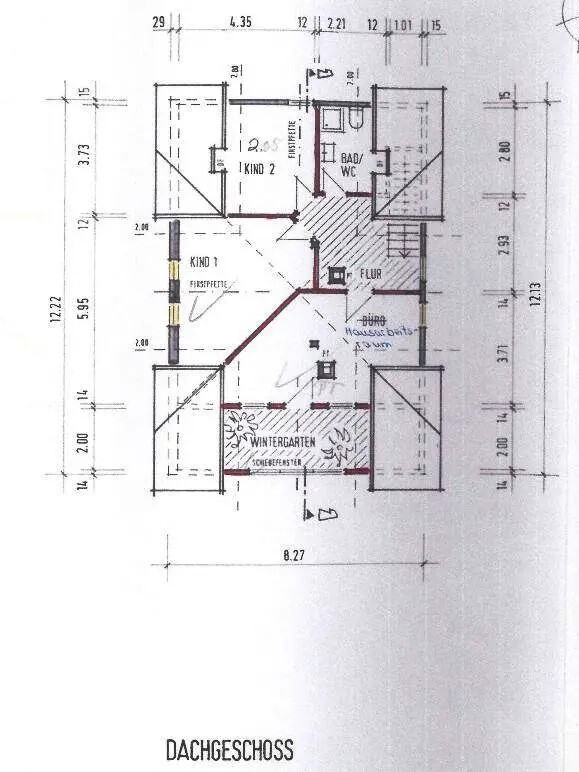
Hier als Beispiel das DG leider liegen aktuell keine anderen Dokumente vor.
Vielen Dank schonmal für die Hilfe, mir gehts tatsächlich nur um eine grobe Einordnung.
Grüße
Wohnung 1 im Untergeschoss: aktuell 220 €, max. Mieterhöhung bis zu 360 € möglich. (45m2)
Wohnung 2 im Erdgeschoss: aktuell 320 €, max. Mieterhöhung bis zu 504 € möglich.(72m2)
Wohnung 3 im 1. Obergeschoss: 320 €, max. Mieterhöhung bis zu 535 € möglich.(75m2)
Wohnung 4/im 2. Obergeschoss und Dachgeschoss: 144m2 aktuell frei, würde ich selbst bewohnen.
Heizung ist 2017 auf Fernwärme/Nahwärme umgestellt worden. Die Wohnung im 1. Obergeschoss sowie die Wohnung im 2. Obergeschoss und Dachgeschoss werden zusätzlich durch einen Kamin- und Kachelofen beheizt.
Haus ist aktuell Energieeffizienzklasse G [Endenergiebedarf212,1 kWh/(m²*a)] welche laut meinen Recherchen bis 2033 auf "D" muss.
Ich dachte mir das Haus von oben nach unten über mehrere Jahre zu renovieren. Als ersten die 144m2 Wohnung, welche ich gerne bewohnen würde. Später dann Wohnung für Wohnung. Ggf. mit Fachlicher Unterstützung.
Gemacht ist aktuell nichts. Was müsste ich machen, um im gesetzlichen Rahmen der neuen EU Verordnung zu bleiben? Wie viel Geld müsste ich einplanen?
Haus kostet 200.000€ Nebenkosten etwa 25.000€
Aktuell habe ich 60.000 Eigenkapital.
Gehalt, was übrig bleibt etwa 1500 €
Mieteinnahmen zwischen 860 und ggf 1500€
Meine aktuellen monatlichen Lebenshaltungskosten belaufen sich aktuell bei 900 € (Miete, Auto, Essen, Versicherung etc.)
Bin 34 Jahre alt habe Schreiner gelernt, hätte immer jemand, der mir Handlanger spielt.
Laut meinen Recherchen müsste ich:
Dach dämmen
Kellerdecke dämmen
Klimaanlagen würde ich jeweils für ein Schlafzimmer installieren.
Was müsste noch gemacht werden, um Energieeffizienzklasse D zu erreichen?
Hier eine grobe Skizze:
2UG Keller,
1UG 45m2 Wohnung vermietet
EG 72m2 Wohnung vermietet
1. OG 75m2 vermietet
2 OG und DG 144m2 unvermietet
Hier als Beispiel das DG leider liegen aktuell keine anderen Dokumente vor.
Vielen Dank schonmal für die Hilfe, mir gehts tatsächlich nur um eine grobe Einordnung.
Grüße
Anzeige
Hallo Scriptey,
schau mal hier: Mehrfamilienhaus Baujahr 1922 Energieeffizienzklasse G für 200k. Da wird jeder fündig!
schau mal hier: Mehrfamilienhaus Baujahr 1922 Energieeffizienzklasse G für 200k. Da wird jeder fündig!
Ähnliche Themen