Moin Allerseits,
wir sind seit Dez 2016 im Haus und ich habe in der Planungs- und Bauphase eine Klimaanlage nie auch nur in Erwägung gezogen.
Im Prinzip kommen wir auch ohne aus, im Extremsommer 2018 hatten wir im OG Max 25,5-26 Grad.
Das war gerade noch ok, aber für mich persönlich zum schlafen schon grenzwertig. Und solche Sommer werden wir vermutlich zukünftig häufiger mal erleben.
Im Sommer 2019 waren es nie mehr als 25 Grad, aber leider zum Teil mit sehr hoher Luftfeuchtigkeit, was die Sache dann auch unangenehm machte. Da brachte dann auch frühmorgendliches Lüften nicht viel, das machte es nur schlimmer. Und Lüften bringt auch nur bei geöffneten Rollläden was, wir schlafen aber gerne im dunkeln...
Nachdem ich inzwischen gelernt habe, das Klimaanlagen sowohl in der Anschaffung als auch im Stromverbrauch deutlich günstiger sind, als ich immer dachte, hätte ich die doch damals einplanen sollen. Nachher ist man immer schlauer...
Es kommt bei mir nun die Idee auf, ob man nicht eine Klimaanlage nachrüsten kann, wenigstens für eine Minimalfunktionalität.
Die Anforderungen wären:
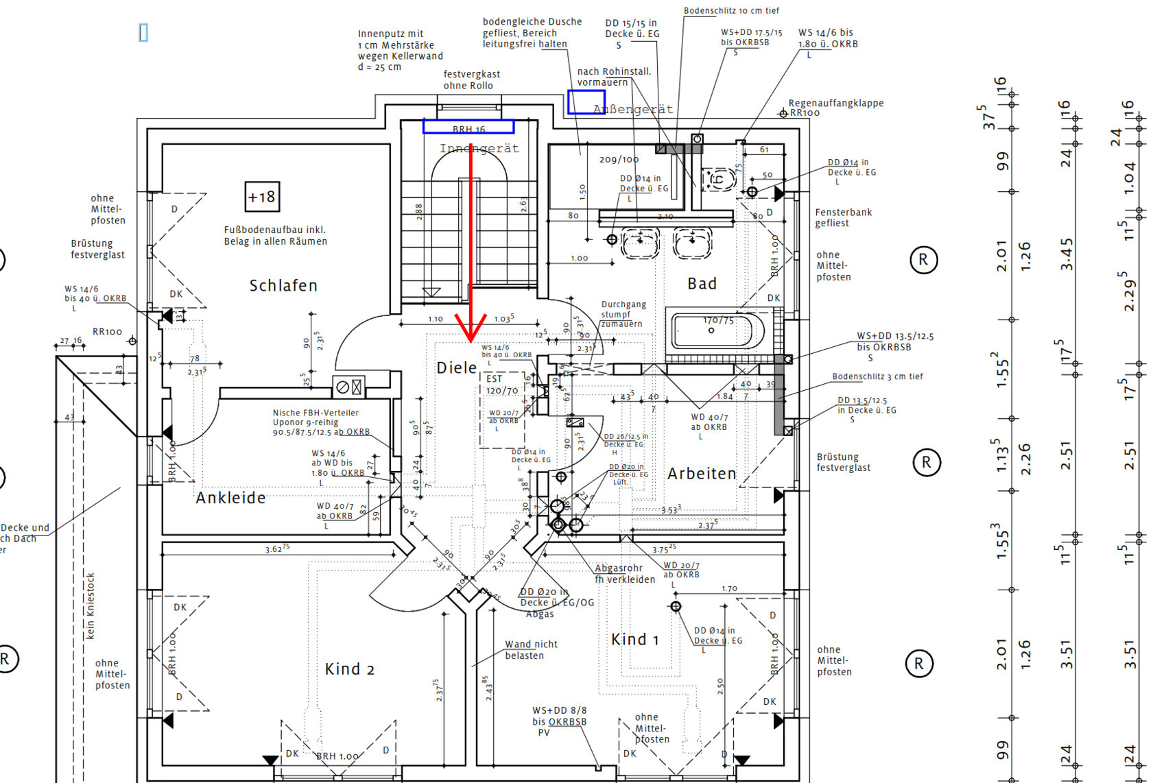
Die Idee wäre nun, im Treppenhaus, über dem Fenster, also direkt unter der OG Decke ein Innengerät zu installieren. Von dort aus könnte das Teil den Flur entlang pusten und bei offenen Türen von Kind 1 / 2 und Schlafen dürfte da zumindest etwas ankommen. Ggfs. auch unterstützt durch einen schwenkenden Ventilator, der in der Diele steht. Laufen würde die Anlage dann vormittags bis kurz nach Mittag, wenn eh keiner zu Hause ist. Dann würde das Haus in der Zeit etwas vorgekühlt und heizt sich somit nicht permanent weiter auf. Wie gesagt, es geht nur um 2 Grad weniger und nicht darum alle Räume gleichmäßig und zugfrei auf 18 Grad runter zu kühlen.
Das Außengerät könnte man neben den Vorsprung stellen und dann die Leitungen gnadenlos in der Ecke hochführen. Wegen meiner noch ein einem Rohr. Das ist unsere Nordseite und da stehen unsere Mülltonnen und Brennholz. Ist also eh nicht die Schokoladenseite...
Fragen (wobei ich mir klar bin, dass man das nicht genau vorhersagen kann)

Viele Grüße,
Andreas
wir sind seit Dez 2016 im Haus und ich habe in der Planungs- und Bauphase eine Klimaanlage nie auch nur in Erwägung gezogen.
Im Prinzip kommen wir auch ohne aus, im Extremsommer 2018 hatten wir im OG Max 25,5-26 Grad.
Das war gerade noch ok, aber für mich persönlich zum schlafen schon grenzwertig. Und solche Sommer werden wir vermutlich zukünftig häufiger mal erleben.
Im Sommer 2019 waren es nie mehr als 25 Grad, aber leider zum Teil mit sehr hoher Luftfeuchtigkeit, was die Sache dann auch unangenehm machte. Da brachte dann auch frühmorgendliches Lüften nicht viel, das machte es nur schlimmer. Und Lüften bringt auch nur bei geöffneten Rollläden was, wir schlafen aber gerne im dunkeln...
Nachdem ich inzwischen gelernt habe, das Klimaanlagen sowohl in der Anschaffung als auch im Stromverbrauch deutlich günstiger sind, als ich immer dachte, hätte ich die doch damals einplanen sollen. Nachher ist man immer schlauer...
Es kommt bei mir nun die Idee auf, ob man nicht eine Klimaanlage nachrüsten kann, wenigstens für eine Minimalfunktionalität.
Die Anforderungen wären:
- Abkühlen der Lufttemperatur im OG um Max 2-3 Grad, wenn wir es unter 24 Grad halten, reicht das vollkommen aus. Kälter wollen wir es gar nicht haben.
- Entfeuchtung der Luft.
Die Idee wäre nun, im Treppenhaus, über dem Fenster, also direkt unter der OG Decke ein Innengerät zu installieren. Von dort aus könnte das Teil den Flur entlang pusten und bei offenen Türen von Kind 1 / 2 und Schlafen dürfte da zumindest etwas ankommen. Ggfs. auch unterstützt durch einen schwenkenden Ventilator, der in der Diele steht. Laufen würde die Anlage dann vormittags bis kurz nach Mittag, wenn eh keiner zu Hause ist. Dann würde das Haus in der Zeit etwas vorgekühlt und heizt sich somit nicht permanent weiter auf. Wie gesagt, es geht nur um 2 Grad weniger und nicht darum alle Räume gleichmäßig und zugfrei auf 18 Grad runter zu kühlen.
Das Außengerät könnte man neben den Vorsprung stellen und dann die Leitungen gnadenlos in der Ecke hochführen. Wegen meiner noch ein einem Rohr. Das ist unsere Nordseite und da stehen unsere Mülltonnen und Brennholz. Ist also eh nicht die Schokoladenseite...
Fragen (wobei ich mir klar bin, dass man das nicht genau vorhersagen kann)
- Bringt eine solche Anordnung was, oder ist das eine Schnapsidee, die mit einem eiskalten Flur und Zimmern, die genauso warm sind wie zuvor, endet? Irgendwo habe ich hier eine ähnliche Konstellation schon gesehen, den Thread finde ich aber nicht mehr.
- Mit welcher notwendigen Kälteleistung sollte man da rechnen? Schlafzimmer, Diele und die beiden Kinderzimmer haben zusammen etwa 65 qm. Da finde ich Angaben zwischen 4 und 6 KW. Aber wir wollen ja nicht runterkühlen auf 19 Grad, sondern nur etwas reduzieren.
- Gibt es Geräte/Marken, die etwas kräftigere Ventilatoren haben? Wir bräuchten ein Gerät, was seinen Luftstrom etwas weiter pustet...
- Wie ist das eigentlich mit den Kondenswasser? Man bräuchte dann vermutlich noch mal einen Schlauch durch die Außenwand?
Viele Grüße,
Andreas
Genau mit dem Thema habe ich mich auch mal ein bissl beschäftigt. Habe auch mit einem Klimabauer gesprochen.
Deine Planung wird wohl so nicht funktionieren. Uns wurde ein Split-Klimagerät mit 3 Innen Geräten (für die 3 Schlafzimmer) empfohlen. Ich persönlich würde Deckengeräte einbauen, die über den Speicher angeschlossen werden und das Außengerät auf eine Dachkonsole montieren.
Wobei man bedenken muss, dass Du an jedem Gerät einen Kondenswasserablauf benötigst.
Wir haben unsere Überlegungen aber auf Eis gelegt, da wir erst andere Projekte machen wollen.
Deine Planung wird wohl so nicht funktionieren. Uns wurde ein Split-Klimagerät mit 3 Innen Geräten (für die 3 Schlafzimmer) empfohlen. Ich persönlich würde Deckengeräte einbauen, die über den Speicher angeschlossen werden und das Außengerät auf eine Dachkonsole montieren.
Wobei man bedenken muss, dass Du an jedem Gerät einen Kondenswasserablauf benötigst.
Wir haben unsere Überlegungen aber auf Eis gelegt, da wir erst andere Projekte machen wollen.
N
nordanney26.03.20 08:24Denk bitte daran, dass kalte Luft nach unten fällt. Also schön die Treppe runter und die warme Luft aus dem EG steigt hoch.
Ich gehe mal davon aus, dass Kind 1/2 von der Klimaanlage genau nichts haben werden mit Deiner Planung. Ähnlich hat es RFR schon geschrieben.
Ich gehe mal davon aus, dass Kind 1/2 von der Klimaanlage genau nichts haben werden mit Deiner Planung. Ähnlich hat es RFR schon geschrieben.
Moin,
danke für die Antwort. Die "richtige" Lösung wären 3-4 Innengeräte, das ist schon klar. Da scheue ich aber doch den Aufwand und vor allem den Kondenswasserablauf der verteilten Innengeräte wird schwierig. Da fängt man mit Geräten mit integrierten Pumpen und all so ein Zeug an. Auch würde ich es gerne vermeiden, die OG Decke durchbohren zu müssen. Wir haben da eine Betondecke, größere Aussparungen bringst du da nicht mal eben so rein.
Werde wohl demnächst mal örtliche Klimabauern befragen.
Viele Grüße,
Andreas
danke für die Antwort. Die "richtige" Lösung wären 3-4 Innengeräte, das ist schon klar. Da scheue ich aber doch den Aufwand und vor allem den Kondenswasserablauf der verteilten Innengeräte wird schwierig. Da fängt man mit Geräten mit integrierten Pumpen und all so ein Zeug an. Auch würde ich es gerne vermeiden, die OG Decke durchbohren zu müssen. Wir haben da eine Betondecke, größere Aussparungen bringst du da nicht mal eben so rein.
Werde wohl demnächst mal örtliche Klimabauern befragen.
Viele Grüße,
Andreas
Ich hab jetzt wirklich keine Ahnung von der Thematik, aber könnte man den gleichen Effekt nicht mit mobilen Geräten in den Schlafzimmern erreichen? Ist ja im Jahresschnitt nur an einigen Tagen nötig. Und außerhalb des Hochsommers könnte man die Geräte dann wo anders lagern. Oder stell ich mir das zu einfach vor? Bzw taugen die mobilen Geräte nichts?
Am besten wäre natürlich der Einbau schon in der Bauphase des Hauses, aber vielleicht als unaufwändige Nachrüstlösung
Am besten wäre natürlich der Einbau schon in der Bauphase des Hauses, aber vielleicht als unaufwändige Nachrüstlösung
Mobile Geräte sind nicht so effizient. Bei den Besseren muss man noch Wasser reinkippen und das regelmäßig. Sind auch lauter.
Größtes Problem ist die Abluft. Entweder unschöne und ineffiziente Variante durch gekippte Türen und Fenster mit abkleben...
Oder halt Wanddurchführung. Preislich bist du dann auch nicht mehr weit weg von einer soliden Lösung.
Monoblockgeräte sind iO für Wohnungen an denen man nicht verändern kann/darf. Hatten wir selbst die letzten Sommer bei unsere Dachwohnung im Einsatz.
Größtes Problem ist die Abluft. Entweder unschöne und ineffiziente Variante durch gekippte Türen und Fenster mit abkleben...
Oder halt Wanddurchführung. Preislich bist du dann auch nicht mehr weit weg von einer soliden Lösung.
Monoblockgeräte sind iO für Wohnungen an denen man nicht verändern kann/darf. Hatten wir selbst die letzten Sommer bei unsere Dachwohnung im Einsatz.
Ähnliche Themen