Hausbau - Ratgeber
Bauherrenhilfe
- Bauherrenhilfe vor Vertragsabschluss
-- Warum einen unabhängigen Baubetreuer?
-- Vertragsgrundlagen
-- Bausumme
-- Zahlungsplan zur Kostenkontrolle
-- Pflichten des Bauherren vor Vertragsabschluss
-- Unterlagen beim Hausbau vor Vertragsabschluss
- Bauherrenhilfe nach Vertragsabschluss
-- Bauantrag bei Behörden
-- Bau-Genehmigungsverfahren bei Baubehörden
-- Bauspezifische Versicherungen
-- Bauzeitenplan
-- Baubeginn - die Letzten Pflichten der Bauherrschaft
- Bauherrenhilfe während der Bauzeit
- Gewährleistungsansprüche
- Bauabnahme
Baufinanzierung
- Baufinanzierung - Allgemeine Fragen
- Kreditarten
- Kredit-Konditionen
- Bausparen
- Staatliche Förderungen
- Verkehrswert
- Haushaltsrechnung und Bonität
Hausbau Planung
- Haustypen
- Hausbau Vorbereitungsarbeiten
- Das Baugrundstück
- Baugrund beim Hausbau
- Baurecht
- Gebäudeschutz
- Erdarbeiten und Wasserhaltung
- Stützmauern
- Einfriedung
- Untergeschoss
- Kanalisation
- Tragende Elemente
- Nichttragende Innenwände
- Fundation / Fundament
- Deckenkonstruktionen
- Dächer
- Kaminanlagen
- Treppen Rampen Leitern
- Dachbeläge und Spengler
- Fenster
- Sonnen und Wetterschutz
- Aussenputze
- Einbauten, Küchen, Türen
- Bodenbeläge und Unterlagsböden
- Parkett
- Gips, Wand, Decke
Haustechnik und Energie
- Heiztechnik
- Lüftung und Klimatechnik
- Sanitärtechnik
- Elektrotechnik
- Erneuerbare Energie
Whirlpools / Jacuzzi
Hausbau Magazin
- Baufinanzierung trotz Krise?
- Das Blockhaus
- Moderne Dämmstoffe im Vergleich
- Erker Vor- und Nachteile
- Glasflächen beim Hausbau
- Günstig ein Haus Bauen
- Mediterraner Hausbaustil
- Mehrgenerationenhaus
- Moderne Architektur
- Gartengestaltung leicht gemacht
- Traditioneller Ziegelbau
- Villa als höchster Traum
- Im Eigenheim Ruhestand geniessen
- Altbau sanieren
- Kauf einer Holzgarage
- Immobilienmakler
- Arbeitshandschuhe für den Winter
- Zuhause verschönern
- Outdoor-Plissees
- Schlafzimmer planen
- Terrassenüberdachung
- Wohngebäudeversicherung
- Girokonto für Bauherren finden
- Hauseingang gestalten
- Zaunarten und Eigenschaften
- Der perfekte Grundriss
- Sparsamer heizen im Altbau
- Einfamilienhaus smart finanzieren
- Planung einer PV-Anlage
- Neues Haus
- Immobilienfinanzierung
- Installation einer Photovoltaikanlage
- Asbest erkennen und entfernen
- Gartenpflege im Frühling – worauf achten
- Sauna im Fokus - Wellness zuhause
- Erfolgreich vermieten
- Die perfekte Winterbekleidung
- Das Niedrigenergiehaus
- Der April und seine Stürme
- Architektonische Vielfalt
- Ökologisch und nachhaltig bauen
- Das perfekte Schlafzimmer
- Nachhaltige Energieversorgung
- Zukunftsorientiert bauen
- Nachhaltigkeit beim Hausbau
- Tiny Houses
- Wärmepumpen als nachhaltige Heizvariante
- Maßgeschneiderten Kleiderschrank
- Der richtige Baukredit
- Ratgeber für erfolgreichen Hausbau
- Haus als Altersvorsorge
Do-it-yourself Anleitungen
- Verlegeanleitung für Bodenbeläge und Parkett
- Bodenbeläge und Parkett reinigen und pflegen
- Malerarbeiten am Haus
- Garten Tipps
- Umzug und Reinigung

ᐅ Lichtsituation in großem Raum ohne Kniestock

Erstellt am: 09.08.16 18:30
B
bluminger
bluminger09.08.16 18:30
Hallo.

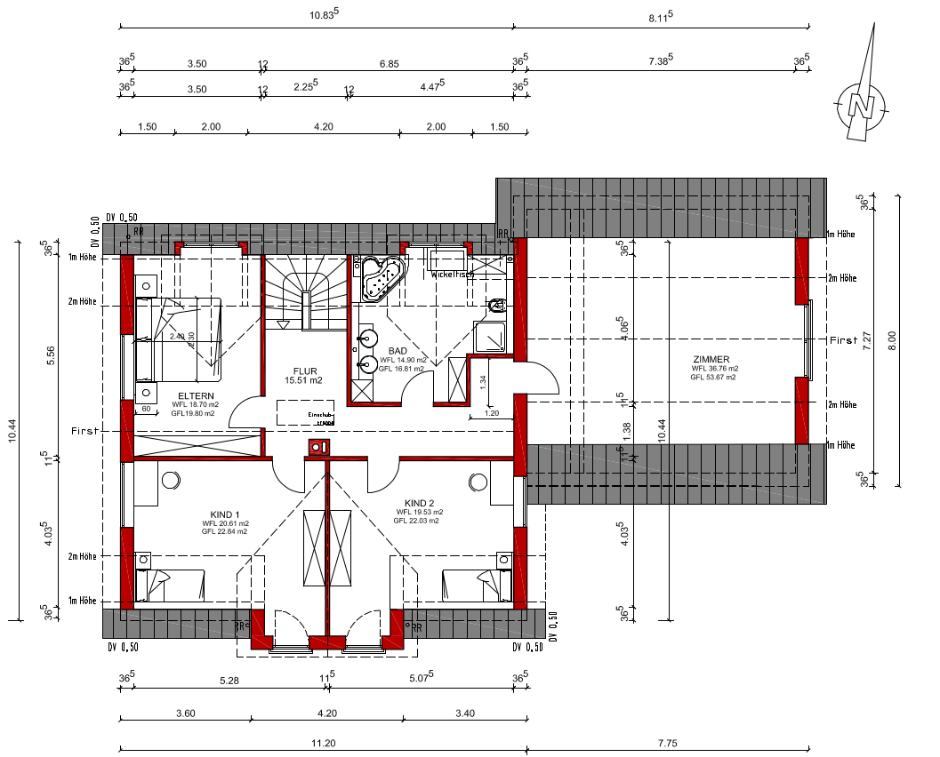
Wir sind uns momentan unklar, ob in dem Raum über der Garage das Licht reicht (im Plan oben rechts). Momentan ist nur ein Giebelfenster im Osten (größenmäßig ca 2 Türen) eingeplant.
Der Raum ist 7 Meter lang.


2D-Grundriss eines Hauses mit Flur, Bad, Schlafzimmern und Treppen

Außenansicht eines Hauses mit Satteldach, Fenstern und Garage im Architekturplan


Grundsätzlich schwebt uns eigentlich auch vor, den Raum evtl. zweizuteilen. An der Giebelseite ein größeres Zimmer und davor ein kleines Durchgangszimmer, zB mit einem Gästebett.

Wie beurteilt Ihr die Lichtsituation?
Was für Möglichkeiten hätte man? Dachflächenfenster?

Danke schonmal für Eure Anregungen.
L
Legurit
09.08.16 18:55
Was ist der Zweck des Raums? Mehr Licht geht immer... ein, zwei Dachfenster gen Norden (kein Sonnenschutz notwendig) geht immer...
bluminger12.08.16 12:40
Hallo.

Zweck des Raums an der Giebelseite: Hobbyraum, evtl. 3. Kinderzimmer.
Durchgangsraum: Gästezimmer.
L
Legurit
12.08.16 12:59
Ich würde dann wirklich noch über 3 große Dachfenster Richtung Norden nachdenken - besonders wenn ihr da noch Wände oder ähnliches einziehen wollt.
D
develloper
12.08.16 13:00
Hallo bluminger,

auch wenn ich das Haus für deine Bedürfnisse immer noch etwas "überdimensioniert" finde, würde ich in jedem Fall Dachflächenfenster einbauen. Du kannst so den Raum teilen, ohne einen Deunkelraum zu schaffen, und ein 3. Kind würde sich sicherlich auch über ein wenig Ausblick in den Garten/auf die Einfahrt freuen. Ich würde machen und nicht drüber nachdenken, ob das große Doppelfenster reicht 🙂

Euch viel Erfolg beim bauen! Das Haus gefällt mir sonst 🙂

PS: kann man euren Honig auch kaufen oder ist das Eigenbedarf?
giebelseitedachflächenfensterdachfenster