Hallo zusammen,
unser Wohn-Koch- und Essbereich ist leider nicht die größte (33qm) und vermutlich auch nicht optimal geschnitten. Am meisten bedauern wir jedoch unsere kurze TV-Wand.

Habt ihr Ideen wie wir das gestalten könnten? Ich dachte an einen Raumteiler neben der Wand, allerdings weiß ich nicht wie und was, da an der Wand auch Schalter für Rollläden und Steckdosen da sind, die ich nicht versperren kann.
Über Ideen wäre ich sehr dankbar.
LG
unser Wohn-Koch- und Essbereich ist leider nicht die größte (33qm) und vermutlich auch nicht optimal geschnitten. Am meisten bedauern wir jedoch unsere kurze TV-Wand.
Habt ihr Ideen wie wir das gestalten könnten? Ich dachte an einen Raumteiler neben der Wand, allerdings weiß ich nicht wie und was, da an der Wand auch Schalter für Rollläden und Steckdosen da sind, die ich nicht versperren kann.
Über Ideen wäre ich sehr dankbar.
LG
W
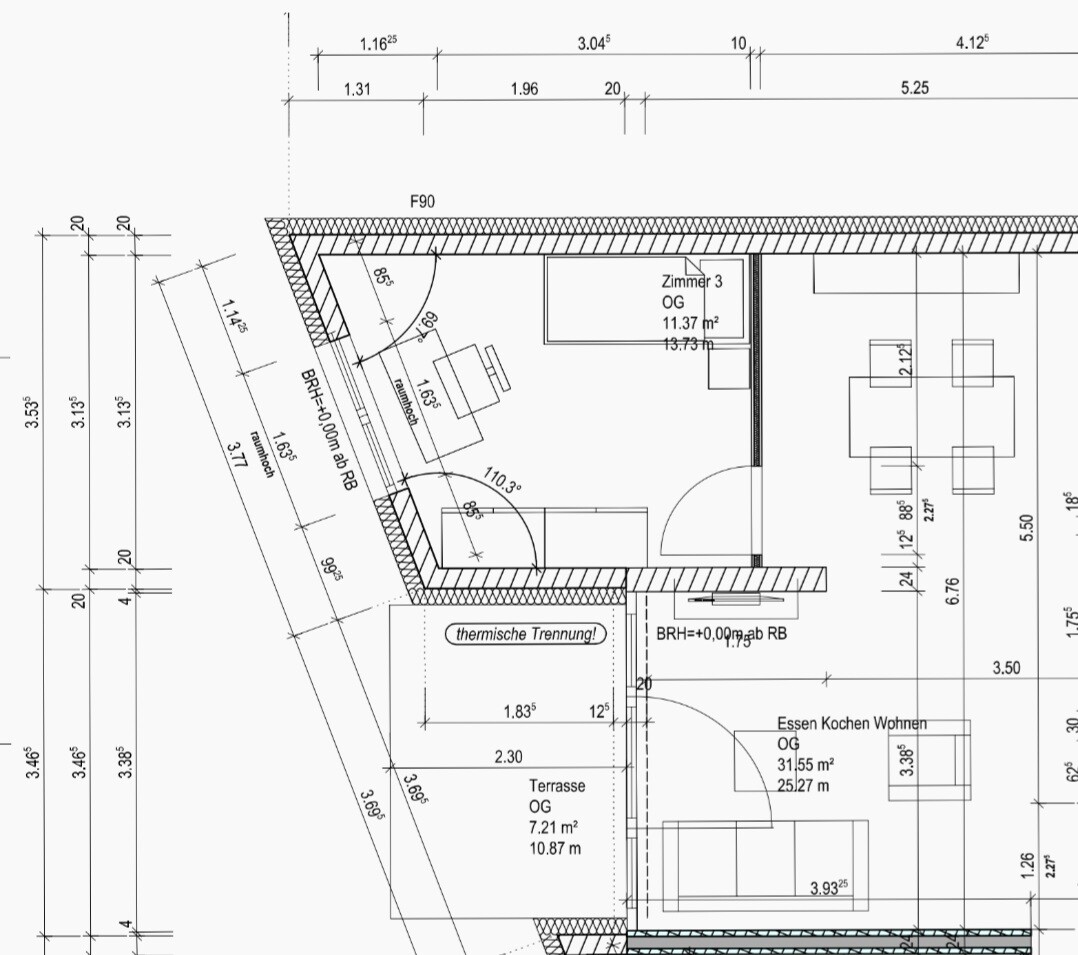
WilderSueden02.02.23 11:52Kannst du einen Plan mit allen Maßen einstellen? Idealerweise mit bisher geplanter möblierung.
Aus dem Foto sehe ich mich nicht in der Lage qualifizierte Tipps zu geben
Aus dem Foto sehe ich mich nicht in der Lage qualifizierte Tipps zu geben
Mycraft schrieb:
Hmm ja mehr als ungünstig. Verlege doch die Schalter irgendwo anders hin, wo diese besser passend sind. Eben dann in den Raumteiler wenn der dann da ist.
Darf ich fragen warum man so baut? Man weiß doch vorher dass ein TV etc. in den Raum soll.Die Wohnung wurde so vom Bauträger gekauft. Als wir das gesehen hatten, haben wir die gleiche Frage gestellt. Aussage war, dass ein längerer Wand den Bereich kleiner macht, was mE auch vertretbar ist. Allerdings hätte man die Wand trotzdem ein paar cm länger machen sollen. Ein weitere Punkt ist auch, dass sie weniger Tageslicht in den Kochbereich abwerfen würde. Insgesamt also selber schuld, allerdings wollte ich das ganze Vorhaben nicht vom kurzen TV Wand abhängig machen.Dein Tipp ging mir auch schon durch den Kopf. Aber die Tatsache, dass der ohnehin schon kleine Wohn-Koch-Essbereich dadurch optisch noch kleiner ausfällt, hat mich bisher davon abgehalten.
Mein Ziel ist wirklich nur, dass es optisch etwas besser aussieht, als den TV nackt in die kurze Wand zu hängen -.-
Wären evtl. solche Raumaufteiler in diese Richtung sinnvoll. Hier würde man auch die Schalter nicht behindern.
WilderSueden schrieb:
Kannst du einen Plan mit allen Maßen einstellen? Idealerweise mit bisher geplanter Möblierung.
Aus dem Foto sehe ich mich nicht in der Lage qualifizierte Tipps zu gebenIch habe gerade nur einen Screenshot parat. Musste ihn auch noch etwas eingrenzem, da man sonst Zahlen schwierig erkennt. Hilft das weiter? Tatsächlich ist bisher nur der Wohnbereich ungeplant. Es kommt wohl ein kleiner Ecksofa/Wohnlandschaft vor die TV Wand (4-Sitzer)
Ähnliche Themen