Hausbau - Ratgeber
Bauherrenhilfe
- Bauherrenhilfe vor Vertragsabschluss
-- Warum einen unabhängigen Baubetreuer?
-- Vertragsgrundlagen
-- Bausumme
-- Zahlungsplan zur Kostenkontrolle
-- Pflichten des Bauherren vor Vertragsabschluss
-- Unterlagen beim Hausbau vor Vertragsabschluss
- Bauherrenhilfe nach Vertragsabschluss
-- Bauantrag bei Behörden
-- Bau-Genehmigungsverfahren bei Baubehörden
-- Bauspezifische Versicherungen
-- Bauzeitenplan
-- Baubeginn - die Letzten Pflichten der Bauherrschaft
- Bauherrenhilfe während der Bauzeit
- Gewährleistungsansprüche
- Bauabnahme
Baufinanzierung
- Baufinanzierung - Allgemeine Fragen
- Kreditarten
- Kredit-Konditionen
- Bausparen
- Staatliche Förderungen
- Verkehrswert
- Haushaltsrechnung und Bonität
Hausbau Planung
- Haustypen
- Hausbau Vorbereitungsarbeiten
- Das Baugrundstück
- Baugrund beim Hausbau
- Baurecht
- Gebäudeschutz
- Erdarbeiten und Wasserhaltung
- Stützmauern
- Einfriedung
- Untergeschoss
- Kanalisation
- Tragende Elemente
- Nichttragende Innenwände
- Fundation / Fundament
- Deckenkonstruktionen
- Dächer
- Kaminanlagen
- Treppen Rampen Leitern
- Dachbeläge und Spengler
- Fenster
- Sonnen und Wetterschutz
- Aussenputze
- Einbauten, Küchen, Türen
- Bodenbeläge und Unterlagsböden
- Parkett
- Gips, Wand, Decke
Haustechnik und Energie
- Heiztechnik
- Lüftung und Klimatechnik
- Sanitärtechnik
- Elektrotechnik
- Erneuerbare Energie
Whirlpools / Jacuzzi
Hausbau Magazin
- Baufinanzierung trotz Krise?
- Das Blockhaus
- Moderne Dämmstoffe im Vergleich
- Erker Vor- und Nachteile
- Glasflächen beim Hausbau
- Günstig ein Haus Bauen
- Mediterraner Hausbaustil
- Mehrgenerationenhaus
- Moderne Architektur
- Gartengestaltung leicht gemacht
- Traditioneller Ziegelbau
- Villa als höchster Traum
- Im Eigenheim Ruhestand geniessen
- Altbau sanieren
- Kauf einer Holzgarage
- Immobilienmakler
- Arbeitshandschuhe für den Winter
- Zuhause verschönern
- Outdoor-Plissees
- Schlafzimmer planen
- Terrassenüberdachung
- Wohngebäudeversicherung
- Zaunarten und Eigenschaften
- Hauseingang gestalten
- Der perfekte Grundriss
- Sparsamer heizen im Altbau
- Einfamilienhaus smart finanzieren
- Planung einer PV-Anlage
- Neues Haus
- Immobilienfinanzierung
- Installation einer Photovoltaikanlage
- Asbest erkennen und entfernen
- Gartenpflege im Frühling – worauf achten
- Sauna im Fokus - Wellness zuhause
- Erfolgreich vermieten
- Die perfekte Winterbekleidung
- Das Niedrigenergiehaus
- Der April und seine Stürme
- Architektonische Vielfalt
- Ökologisch und nachhaltig bauen
- Das perfekte Schlafzimmer
- Nachhaltige Energieversorgung
- Zukunftsorientiert bauen
- Nachhaltigkeit beim Hausbau
- Tiny Houses
- Wärmepumpen als nachhaltige Heizvariante
- Maßgeschneiderten Kleiderschrank
- Der richtige Baukredit
- Ratgeber für erfolgreichen Hausbau
- Haus als Altersvorsorge
Do-it-yourself Anleitungen
- Verlegeanleitung für Bodenbeläge und Parkett
- Bodenbeläge und Parkett reinigen und pflegen
- Malerarbeiten am Haus
- Garten Tipps
- Umzug und Reinigung

ᐅ Küchenplanung Neubau Einfamilienhaus - erstes Angebot Nolte

Erstellt am: 11.05.23 11:37
D
Dachshund90
D
Dachshund90
11.05.23 11:37
Hallo zusammen,

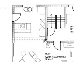
wir haben uns nun auf Anraten des Architekten Gedanken um unsere Küchenplanung gemacht, da wir aktuell natürlich noch die Möglichkeit hätten, Wände, Fenster oder Türen zu verschieben, falls dies der Optimierung der Küche dient.
Anbei findet ihr mal einen ersten Entwurf von einer erstellten Küchenplanung, die ich "nachgemalt" habe. Bilder, wie es vom Stil/Fronten etc. ungefähr aussehen soll, findet ihr anbei.
Der Preis wird laut Aussage des Verkäufers bei ca. 13500€ liegen. Einige Infos findet ihr noch in dem Bild. Falls euch noch Infos fehlen, gerne melden.

Wie findet ihr die Küche Nolte Manhattan grundsätzlich? Wie findet ihr die grundsätzliche Aufteilung von der Planung her? Findet ihr das Angebot fair? Sehr ihr Verbesserungsvorschläge?


vielen Dank und viele Grüße
Grundriss einer Küche: Insel, Schränke, Herd, Kühlschrank, Fenster, Türen, Maße 3,70×3,80 m.

Moderne Küche mit Holz-Arbeitsplatten, Kochfeld auf Insel, Spüle und Barhockern.

Moderne Küchenzeile mit Holz-Arbeitsplatte, weißen Unterschränken, Spüle und Geschirr.

Moderne Kücheninsel mit Holzoberfläche, Induktionskochfeld, Backofen, Kaffee-Setup und Pflanze.

2D Grundriss eines Wohn- und Kuechenbereichs mit Treppe im Erdgeschoss
S
Schorsch_baut
11.05.23 11:58
Ich finde das abgesetzte Grau scheußlich. Als ob die Fronten nicht zum Korpus passen. Ich empfinde die Küchensuche aber auch als extrem unangenehm. Intransparent, teuer und letztlich ist alles doch nur beschichtete Spanplatte für zigtausend Euro. Ich bin froh, wenn das Thema erledigt ist. Wir haben uns eine ähnliche Küche von Schüller angeschaut, die wir (also die Hausherrin) aktuell favorisieren. Jetzt hängen wir aber am Thema Arbeitsplatte fest.
Moderne Kücheninsel mit Holzarbeitsplatte, Spüle, Wasserhahn und weißen Schränken im Showroom.
D
Dachshund90
11.05.23 12:01
Schorsch_baut schrieb:

Ich finde das abgesetzte Grau scheußlich. Als ob die Fronten nicht zum Korpus passen. Ich empfinde die Küchensuche aber auch als extrem unangenehm. Intransparent, teuer und letztlich ist alles doch nur beschichtete Spanplatte für zigtausend Euro. Ich bin froh, wenn das Thema erledigt ist. Wir haben uns eine ähnliche Küche von Schüller angeschaut, die wir (also die Hausherrin) aktuell favorisieren. Jetzt hängen wir aber am Thema Arbeitsplatte fest.
Hallo Schorsch,

gebe dir vollkommen recht, äußerst intransparent, wie in dieser Industrie Geld verdient wird.
Welches GRAU meinst du? Die Frontplatten haben umlaufend die Holzoptik in Vulkaneiche, wie auch die Türen der hängeschränke. Oder was meinst du?
S
Schorsch_baut
11.05.23 12:10
Die Vertiefungen zwischen den Schüben und der Sockel sehen grau aus.
D
Dachshund90
11.05.23 12:44
Schorsch_baut schrieb:

Die Vertiefungen zwischen den Schüben und der Sockel sehen grau aus.
Denke da täuschen die Bilder, sind Schatten.
Y
Yaso2.0
11.05.23 12:56
Dachshund90 schrieb:

Findet ihr das Angebot fair? Sehr ihr Verbesserungsvorschläge?

Ein Angebot in der Form gibt es ja nicht, das ist lediglich ein Preis. Um ein Angebot bewerten zu können, müssen die Geräte mit entsprechender Modellnr. und dem angesetzten Preis genannt sein. Ich persönlich habe kein Angebot bekommen gehabt, wo die Preise einzeln aufgeführt waren. Dementsprechend kann 13500 € super sein, kann aber euch teuer sein. Steht und fällt ja quasi fast alles mit den E-Geräten.
küchenplanungtürenfronten