J
JuliaAlex05.07.21 17:46Liebe Forums-Nutzer,
nachdem wir in einem anderen Thread (https://www.hausbau-forum.de/threads/beleuchtung-von-langem-schmalen-wohn-essbereich-im-rmh.39728/) inzwischen bei der Küchenplanung hängen geblieben sind, erstelle ich hier mal ein neues Thema auf, damit man die hilfreichen Antworten und Anregungen später besser finden kann 🙂
Zu den Rahmendaten: Unsere Küche ist 265cm breit. Die Wand zur Diele ist nach dem Standard-Bauträger-Entwurf 3,60m lang, wir würden sie allerdings gerne auf 2,40m kürzen, da das Haus mit 5,88m Breite und 12,23m Länge (Außenmaße) ohnehin schon recht schmal ist und der offene Wohn-Essbereich so großzügiger wirkt. Auf der gegenüberliegenden Seite sind der Küchenlänge keine Grenzen gesetzt.
Zur Nutzung des EG: Wir haben vor, das EG nicht zu überfrachten. In den Wohn-Essbereich sollen im Wesentlichen nur ein großer esstisch, ein Sofa, ein Sessel und ein Regal für Kinderspielzeug und evtl. Gläser sowie ein Sideboard - also kein TV, E-Piano oder Sonstiges. Es soll im Wesentlichen tägliche Begegnungsfläche der Familie sein, wo man isst, kocht, spielt und Hausaufgaben macht. Als echte Rückzugsorte sind die Kinderzimmer sowie ein weiterer Wohnbereich im Studio vorgesehen.
Das hier war unser (bereits von verschiedenen Seiten viel gescholtener 😉) erster Entwurf:




Was uns dazu bewegt hat: Da der Raum im EG recht schmal ist und in Richtung Küche immer schmaler zuläuft, wollten wir die Küche möglichst luftig und offen gestalten (sie soll nicht hinten in die Ecke gequetscht wirken). Den Einsatz von hochschränken, bei denen man vom Essbereich auf die doch recht wuchtige Breitseite schaut, die den Raum ja zudem auch optisch nochmal schmälert, wollten wir nach Möglichkeit verzichten, aber trotzdem einen Backofen auf Brusthöhe haben. Zu eng sollte die Küche auch nicht sein, damit wir uns nicht auf den Füßen herumtreten. Wichtig ist uns weiterhin, das Licht aus dem recht großen Küchenfenster möglichst gut zu nutzen, damit möglichst viel davon noch in den Essbereich reicht und nicht von (hohen) Schränken ausgebremst wird.
Was wir aber eingesehen haben: Die Spüle mit Müll und den Kühlschrank - also die Sachen, die man am häufigsten braucht - ganz hinten in der Küche ist wahrscheinlich nicht die beste Idee, und mit den Dimensionen der Küche haben wir wohl auch etwas übertrieben...
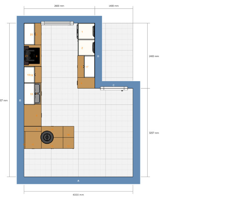
Das ist unser neuer Entwurf:




Wir sind gespannt auf eure Meinungen und Rückmeldungen. Hat hemand eine ähnliche Küche und schon Erfahrungen damit? Gibt es doch Befürweoter der L-Küche + Tresen? Ich hadere immer noch etwas damit, den Raum vor dem Fenster ungenutzt zu lassen. Insbesondere da wir kein bodentiefes Fenster haben, sieht das irgendwie etwas komisch aus - aber Ecken in einer Küche sind halt auch nicht sonderlich praktisch. Gibt es für die Stirnseite irgendwelche Nutzungsvorschläge? Ich dachte schon evtl an eine Mini-Frühstücksecke, aber wahrscheinlich ist das viel zu eng...
Hier übrigens noch der Link zu unserem Grund-Thread mit mehr Einzelheiten zum Haus: https://www.hausbau-forum.de/threads/grundrissoptimierung-1-og-falls-moeglich.39724/page-5#post-508854

nachdem wir in einem anderen Thread (https://www.hausbau-forum.de/threads/beleuchtung-von-langem-schmalen-wohn-essbereich-im-rmh.39728/) inzwischen bei der Küchenplanung hängen geblieben sind, erstelle ich hier mal ein neues Thema auf, damit man die hilfreichen Antworten und Anregungen später besser finden kann 🙂
Zu den Rahmendaten: Unsere Küche ist 265cm breit. Die Wand zur Diele ist nach dem Standard-Bauträger-Entwurf 3,60m lang, wir würden sie allerdings gerne auf 2,40m kürzen, da das Haus mit 5,88m Breite und 12,23m Länge (Außenmaße) ohnehin schon recht schmal ist und der offene Wohn-Essbereich so großzügiger wirkt. Auf der gegenüberliegenden Seite sind der Küchenlänge keine Grenzen gesetzt.
Zur Nutzung des EG: Wir haben vor, das EG nicht zu überfrachten. In den Wohn-Essbereich sollen im Wesentlichen nur ein großer esstisch, ein Sofa, ein Sessel und ein Regal für Kinderspielzeug und evtl. Gläser sowie ein Sideboard - also kein TV, E-Piano oder Sonstiges. Es soll im Wesentlichen tägliche Begegnungsfläche der Familie sein, wo man isst, kocht, spielt und Hausaufgaben macht. Als echte Rückzugsorte sind die Kinderzimmer sowie ein weiterer Wohnbereich im Studio vorgesehen.
Das hier war unser (bereits von verschiedenen Seiten viel gescholtener 😉) erster Entwurf:
Was uns dazu bewegt hat: Da der Raum im EG recht schmal ist und in Richtung Küche immer schmaler zuläuft, wollten wir die Küche möglichst luftig und offen gestalten (sie soll nicht hinten in die Ecke gequetscht wirken). Den Einsatz von hochschränken, bei denen man vom Essbereich auf die doch recht wuchtige Breitseite schaut, die den Raum ja zudem auch optisch nochmal schmälert, wollten wir nach Möglichkeit verzichten, aber trotzdem einen Backofen auf Brusthöhe haben. Zu eng sollte die Küche auch nicht sein, damit wir uns nicht auf den Füßen herumtreten. Wichtig ist uns weiterhin, das Licht aus dem recht großen Küchenfenster möglichst gut zu nutzen, damit möglichst viel davon noch in den Essbereich reicht und nicht von (hohen) Schränken ausgebremst wird.
Was wir aber eingesehen haben: Die Spüle mit Müll und den Kühlschrank - also die Sachen, die man am häufigsten braucht - ganz hinten in der Küche ist wahrscheinlich nicht die beste Idee, und mit den Dimensionen der Küche haben wir wohl auch etwas übertrieben...
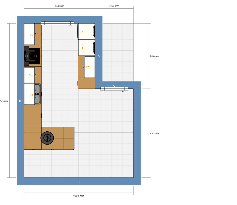
Das ist unser neuer Entwurf:
Wir sind gespannt auf eure Meinungen und Rückmeldungen. Hat hemand eine ähnliche Küche und schon Erfahrungen damit? Gibt es doch Befürweoter der L-Küche + Tresen? Ich hadere immer noch etwas damit, den Raum vor dem Fenster ungenutzt zu lassen. Insbesondere da wir kein bodentiefes Fenster haben, sieht das irgendwie etwas komisch aus - aber Ecken in einer Küche sind halt auch nicht sonderlich praktisch. Gibt es für die Stirnseite irgendwelche Nutzungsvorschläge? Ich dachte schon evtl an eine Mini-Frühstücksecke, aber wahrscheinlich ist das viel zu eng...
Hier übrigens noch der Link zu unserem Grund-Thread mit mehr Einzelheiten zum Haus: https://www.hausbau-forum.de/threads/grundrissoptimierung-1-og-falls-moeglich.39724/page-5#post-508854
Ist ja schon besser als die erste Version oben.
Es gibt ein Forum auf einer anderen Website: Küchen und Forum bei Google eingeben.
Ihr oder Du solltet Euch die Arbeitsabläufe verinnerlichen. Zwar ist jetzt der Arbeitsbereich näher zu Herd und Spüle, aber der Weg zum Kühlschrank recht lang. Nunja, tolerierbar. Man muss eben mit dem, was man hat, auskommen.
Ich würde die hochschränke aber wohl eine Schranktiefe vorschieben und eine Zeile unters Fenster machen. An die Fassade für ein bodentiefes Fenster darfst Du wohl nicht ran?!
Dadurch ergibt sich viel Ablage/Stellfläche für Kaffeevollautomat und Sonstiges.
Es gibt ein Forum auf einer anderen Website: Küchen und Forum bei Google eingeben.
Ihr oder Du solltet Euch die Arbeitsabläufe verinnerlichen. Zwar ist jetzt der Arbeitsbereich näher zu Herd und Spüle, aber der Weg zum Kühlschrank recht lang. Nunja, tolerierbar. Man muss eben mit dem, was man hat, auskommen.
Ich würde die hochschränke aber wohl eine Schranktiefe vorschieben und eine Zeile unters Fenster machen. An die Fassade für ein bodentiefes Fenster darfst Du wohl nicht ran?!
Dadurch ergibt sich viel Ablage/Stellfläche für Kaffeevollautomat und Sonstiges.
Wir hatten ja auch ein Reihenhaus. Mit ähnlichem Grundriss unten, zwar offener Treppe und 50cm breiter, aber separate Küche, wo wir einen Durchbruch gemacht haben. Da hatten wir dann einen Tresen zw Küche und Essbereich. Das sah dann ungefähr so aus. Dadurch, dass die Küche innen dann ca. 1,40 breit war, hat alles gut und wunderbar funktioniert - trotz des unliebsamen Geschirrspülers
Planlinks war dann der Kühlschrank.

Planlinks war dann der Kühlschrank.
Ich bekomme die Visualisierung und den Grundriss überhaupt nicht zusammen.
Ist die Küche offen oder geschlossen?
Wenn die geschlossen wie in der Visualisierung ist, macht die Halbinsel doch überhaupt keinen Sinn.
Kein Mensch stellt oder setzt sich da in die Nische zwischen Wand und Insel.
Gehe also mal von offen aus. Dann ist das grundsätzlich nicht so schlecht.
Spülmaschine und Müll sollten meiner Erfahrung nach nah beieinander, am besten nebeneinander sein.
Häufig benutztes Geschirr / Besteck am besten auch ganz in der Nähe der Spülmaschine.
Hochschränke würde ich nicht schon über der Spüle aufhören, da kann noch einer daneben.
Ist die Küche offen oder geschlossen?
Wenn die geschlossen wie in der Visualisierung ist, macht die Halbinsel doch überhaupt keinen Sinn.
Kein Mensch stellt oder setzt sich da in die Nische zwischen Wand und Insel.
Gehe also mal von offen aus. Dann ist das grundsätzlich nicht so schlecht.
Spülmaschine und Müll sollten meiner Erfahrung nach nah beieinander, am besten nebeneinander sein.
Häufig benutztes Geschirr / Besteck am besten auch ganz in der Nähe der Spülmaschine.
Hochschränke würde ich nicht schon über der Spüle aufhören, da kann noch einer daneben.
Ähnliche Themen