Hausbau - Ratgeber
Bauherrenhilfe
- Bauherrenhilfe vor Vertragsabschluss
-- Warum einen unabhängigen Baubetreuer?
-- Vertragsgrundlagen
-- Bausumme
-- Zahlungsplan zur Kostenkontrolle
-- Pflichten des Bauherren vor Vertragsabschluss
-- Unterlagen beim Hausbau vor Vertragsabschluss
- Bauherrenhilfe nach Vertragsabschluss
-- Bauantrag bei Behörden
-- Bau-Genehmigungsverfahren bei Baubehörden
-- Bauspezifische Versicherungen
-- Bauzeitenplan
-- Baubeginn - die Letzten Pflichten der Bauherrschaft
- Bauherrenhilfe während der Bauzeit
- Gewährleistungsansprüche
- Bauabnahme
Baufinanzierung
- Baufinanzierung - Allgemeine Fragen
- Kreditarten
- Kredit-Konditionen
- Bausparen
- Staatliche Förderungen
- Verkehrswert
- Haushaltsrechnung und Bonität
Hausbau Planung
- Haustypen
- Hausbau Vorbereitungsarbeiten
- Das Baugrundstück
- Baugrund beim Hausbau
- Baurecht
- Gebäudeschutz
- Erdarbeiten und Wasserhaltung
- Stützmauern
- Einfriedung
- Untergeschoss
- Kanalisation
- Tragende Elemente
- Nichttragende Innenwände
- Fundation / Fundament
- Deckenkonstruktionen
- Dächer
- Kaminanlagen
- Treppen Rampen Leitern
- Dachbeläge und Spengler
- Fenster
- Sonnen und Wetterschutz
- Aussenputze
- Einbauten, Küchen, Türen
- Bodenbeläge und Unterlagsböden
- Parkett
- Gips, Wand, Decke
Haustechnik und Energie
- Heiztechnik
- Lüftung und Klimatechnik
- Sanitärtechnik
- Elektrotechnik
- Erneuerbare Energie
Whirlpools / Jacuzzi
Hausbau Magazin
- Baufinanzierung trotz Krise?
- Das Blockhaus
- Moderne Dämmstoffe im Vergleich
- Erker Vor- und Nachteile
- Glasflächen beim Hausbau
- Günstig ein Haus Bauen
- Mediterraner Hausbaustil
- Mehrgenerationenhaus
- Moderne Architektur
- Gartengestaltung leicht gemacht
- Traditioneller Ziegelbau
- Villa als höchster Traum
- Im Eigenheim Ruhestand geniessen
- Altbau sanieren
- Kauf einer Holzgarage
- Immobilienmakler
- Arbeitshandschuhe für den Winter
- Zuhause verschönern
- Outdoor-Plissees
- Schlafzimmer planen
- Terrassenüberdachung
- Wohngebäudeversicherung
- Zaunarten und Eigenschaften
- Hauseingang gestalten
- Der perfekte Grundriss
- Sparsamer heizen im Altbau
- Einfamilienhaus smart finanzieren
- Planung einer PV-Anlage
- Neues Haus
- Immobilienfinanzierung
- Installation einer Photovoltaikanlage
- Asbest erkennen und entfernen
- Gartenpflege im Frühling – worauf achten
- Sauna im Fokus - Wellness zuhause
- Erfolgreich vermieten
- Die perfekte Winterbekleidung
- Das Niedrigenergiehaus
- Der April und seine Stürme
- Architektonische Vielfalt
- Ökologisch und nachhaltig bauen
- Das perfekte Schlafzimmer
- Nachhaltige Energieversorgung
- Zukunftsorientiert bauen
- Nachhaltigkeit beim Hausbau
- Tiny Houses
- Wärmepumpen als nachhaltige Heizvariante
- Maßgeschneiderten Kleiderschrank
- Der richtige Baukredit
- Ratgeber für erfolgreichen Hausbau
- Haus als Altersvorsorge
Do-it-yourself Anleitungen
- Verlegeanleitung für Bodenbeläge und Parkett
- Bodenbeläge und Parkett reinigen und pflegen
- Malerarbeiten am Haus
- Garten Tipps
- Umzug und Reinigung

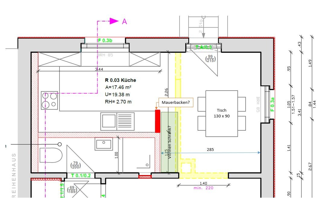
ᐅ Küchenplanung / Anschlüsse bei Kernsanierung

Erstellt am: 30.09.21 09:53
R
RomeoZwo
RomeoZwo30.09.21 09:53
Hallo Küchenexperten,

es geht in dem Thread nicht um eine genaue Küchenplanung, sondern eher für Ideen / Konzepte für die grobe Anordnung und damit auch die Position der Anschlüsse.

Must Have sind 2-3 hochschränke, die neben dem Kühlschrank auch Platz für Staubsauger und Co haben, da es im EG keinen zusätzlichen Abstellraum gibt. Das Haus wird später vermietet. Die Küche werde daher wahrscheinlich nicht ich kaufen und einbauen, es wäre also gut, wenn möglichst viele Optionen noch möglich wären.


Küchen-Grundriss mit Insel, Herd, Spüle und Esstisch im Essbereich


Die Planung des Architekten gefällt mir nicht wirklich, ich denke die Hochschränke als Umrahmung des Fensters machen die nicht gerade großzügigen Räume noch kleiner.
Der Wasseranschluss sollte aus technischen Gründen aber an der unteren oder linken Wand sein.

Meine Ideen wären:
A:
- an der Wand unten die Hochschränke (3x 60) inkl. Kühlschrank, evtl. auch durchgehend
- Spüle an der linken Wand (wo jetzt der Herd eingezeichnet ist
- Herd unterhalb des Fensters, rechts und link Arbeitsfläche

B:
- Hochschränke an der linken Wand (wird wahrscheinlich knapp)
- Spüle so wie eingezeichnet
- Herd unterhalb des Fensters oder neben Spüle

C:
- ????

Zusätzlich stellt sich mir die Frage, ob die Wand zum Esszimmer über die Küchenschränke weitergezogen werden soll. Dies ergäbe die Möglichkeit im Esszimmer noch einen flachen schrank zu stellen. Das Esszimmer hat aber nur 2,85m Breite, wird das zu eng? (Der eingezeichnete Tisch ist m.M.n. viel zu klein).

Habt ihr Ideen? Vielen Dank!
E
evelinoz
30.09.21 11:18
und wegen der Raummaße kommen wir alle vorbei zum Messen?
RomeoZwo30.09.21 13:14
evelinoz schrieb:

und wegen der Raummaße kommen wir alle vorbei zum Messen?
Gerne :-) , aber welche fehlen dir in der Zeichnung?
hochschränkespüleherdesszimmerkühlschrank