
kbt09
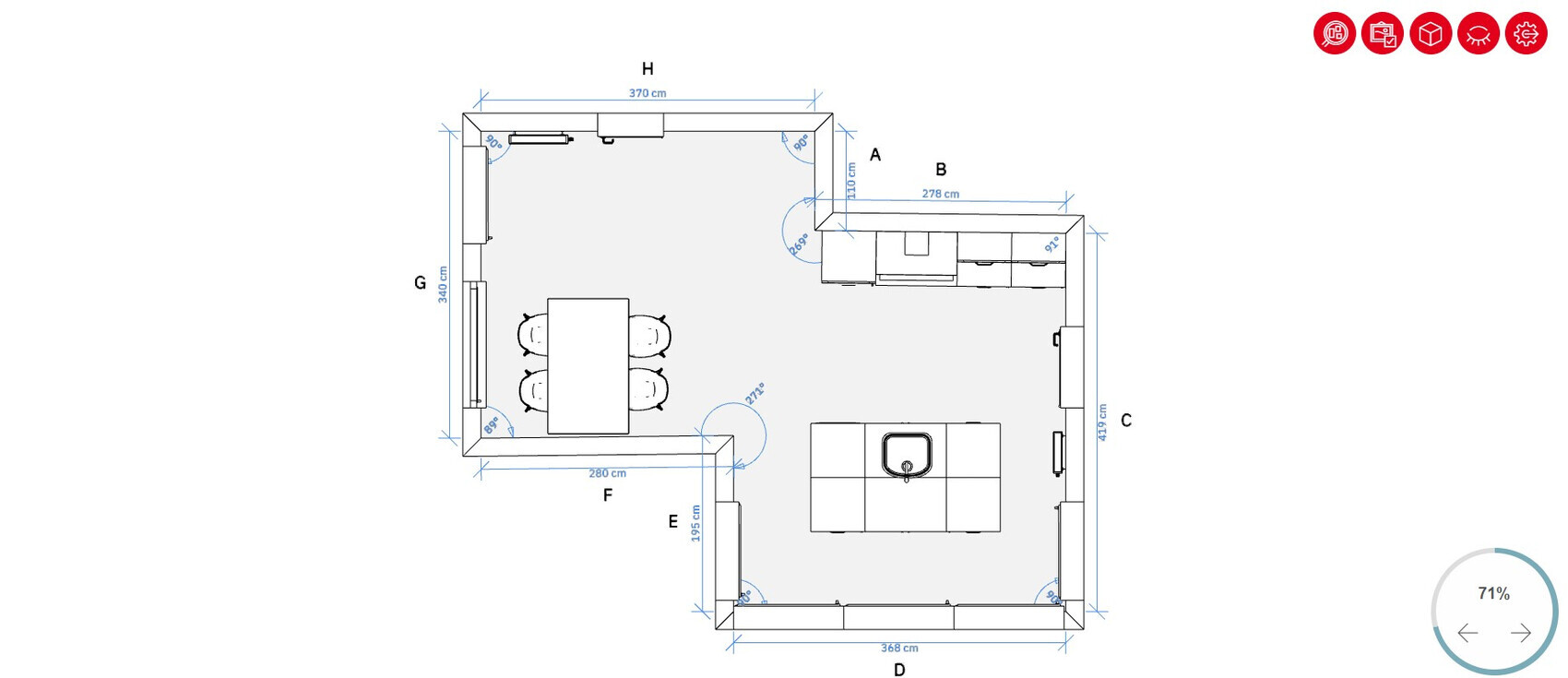
Äh ... 2m mit Spüle .. da können optimal 2 Leute arbeiten. Und die Spülmaschine ist natürlich in der Insel mit untergebracht.Auf der Kochinsel hast du mehr als 2lfm Arbeitsfläche, das ist viel.
Ich finde es unglücklich Geschirrspüler und Spüle zu trennen.