Hausbau - Ratgeber
Bauherrenhilfe
- Bauherrenhilfe vor Vertragsabschluss
-- Warum einen unabhängigen Baubetreuer?
-- Vertragsgrundlagen
-- Bausumme
-- Zahlungsplan zur Kostenkontrolle
-- Pflichten des Bauherren vor Vertragsabschluss
-- Unterlagen beim Hausbau vor Vertragsabschluss
- Bauherrenhilfe nach Vertragsabschluss
-- Bauantrag bei Behörden
-- Bau-Genehmigungsverfahren bei Baubehörden
-- Bauspezifische Versicherungen
-- Bauzeitenplan
-- Baubeginn - die Letzten Pflichten der Bauherrschaft
- Bauherrenhilfe während der Bauzeit
- Gewährleistungsansprüche
- Bauabnahme
Baufinanzierung
- Baufinanzierung - Allgemeine Fragen
- Kreditarten
- Kredit-Konditionen
- Bausparen
- Staatliche Förderungen
- Verkehrswert
- Haushaltsrechnung und Bonität
Hausbau Planung
- Haustypen
- Hausbau Vorbereitungsarbeiten
- Das Baugrundstück
- Baugrund beim Hausbau
- Baurecht
- Gebäudeschutz
- Erdarbeiten und Wasserhaltung
- Stützmauern
- Einfriedung
- Untergeschoss
- Kanalisation
- Tragende Elemente
- Nichttragende Innenwände
- Fundation / Fundament
- Deckenkonstruktionen
- Dächer
- Kaminanlagen
- Treppen Rampen Leitern
- Dachbeläge und Spengler
- Fenster
- Sonnen und Wetterschutz
- Aussenputze
- Einbauten, Küchen, Türen
- Bodenbeläge und Unterlagsböden
- Parkett
- Gips, Wand, Decke
Haustechnik und Energie
- Heiztechnik
- Lüftung und Klimatechnik
- Sanitärtechnik
- Elektrotechnik
- Erneuerbare Energie
Whirlpools / Jacuzzi
Hausbau Magazin
- Baufinanzierung trotz Krise?
- Das Blockhaus
- Moderne Dämmstoffe im Vergleich
- Erker Vor- und Nachteile
- Glasflächen beim Hausbau
- Günstig ein Haus Bauen
- Mediterraner Hausbaustil
- Mehrgenerationenhaus
- Moderne Architektur
- Gartengestaltung leicht gemacht
- Traditioneller Ziegelbau
- Villa als höchster Traum
- Im Eigenheim Ruhestand geniessen
- Altbau sanieren
- Kauf einer Holzgarage
- Immobilienmakler
- Arbeitshandschuhe für den Winter
- Zuhause verschönern
- Outdoor-Plissees
- Schlafzimmer planen
- Terrassenüberdachung
- Wohngebäudeversicherung
- Girokonto für Bauherren finden
- Hauseingang gestalten
- Zaunarten und Eigenschaften
- Der perfekte Grundriss
- Sparsamer heizen im Altbau
- Einfamilienhaus smart finanzieren
- Planung einer PV-Anlage
- Neues Haus
- Immobilienfinanzierung
- Installation einer Photovoltaikanlage
- Asbest erkennen und entfernen
- Gartenpflege im Frühling – worauf achten
- Sauna im Fokus - Wellness zuhause
- Erfolgreich vermieten
- Die perfekte Winterbekleidung
- Das Niedrigenergiehaus
- Der April und seine Stürme
- Architektonische Vielfalt
- Ökologisch und nachhaltig bauen
- Das perfekte Schlafzimmer
- Nachhaltige Energieversorgung
- Zukunftsorientiert bauen
- Nachhaltigkeit beim Hausbau
- Tiny Houses
- Wärmepumpen als nachhaltige Heizvariante
- Maßgeschneiderten Kleiderschrank
- Der richtige Baukredit
- Ratgeber für erfolgreichen Hausbau
- Haus als Altersvorsorge
Do-it-yourself Anleitungen
- Verlegeanleitung für Bodenbeläge und Parkett
- Bodenbeläge und Parkett reinigen und pflegen
- Malerarbeiten am Haus
- Garten Tipps
- Umzug und Reinigung

ᐅ Kinderzimmerwand 3,50 Meter Höhe

Erstellt am: 11.06.14 23:21
Z
zovima15
Z
zovima15
11.06.14 23:21
Im angehängten Bild ist der Grundriss von unserem OG zu sehen (Unten ist Süden)

Grundriss eines Dachgeschosses: zwei Kinderzimmer, Bad, Flur und Treppe.

Zweistöckiges modernes Haus mit Glas-Pergola, Terrasse und Garage im Garten.

Wenn man die Decken nicht abhängt würde eine Raum Höhe an der Nordwand von ca. 3,50 Meter entstehen.
Würdet ihr die Decken abhängen oder offen lassen? Und warum?
Y
ypg
12.06.14 10:03
Offen lassen! Die Raumbreite gibt das her
Y
ypg
12.06.14 10:07
... und auf jeden Fall das Wohnzimmer offen lassen
Z
zovima15
12.06.14 12:52
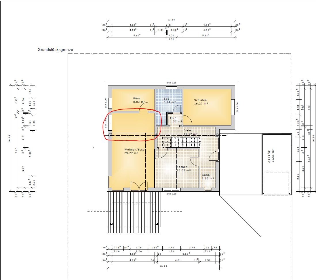
Im Wohnzimmer kann ich es leider nicht machen, da nur der rot umrandete Bereich offen bleiben würde, und ich denke dass das nicht gut ausschaut.

Grundriss: Wohnen, Büro, Küche, Bad, Schlafen; roter Kreis markiert Türbereich Wohnen/Büro.

Gibt es denn irgendwelche Ideen wie man diese Raumhöhen in den Kinderzimmern auch sinnvoll nutzen könnte?
P
Polle 1967
12.06.14 14:43
Je nach alter der Kinder, könnte man das Bett auf eine Erhöhung mit Leiter zu gang (Hochbett) stellen, und unten einen Wohn-Spielbereich schaffen.
Y
ypg
12.06.14 17:00
Man hat mehr Regalfläche oder einfach nur ein schönes Bild weiter oben.
Davon mal abgesehen, dass man Hochbeet oder Höhle oder halt zweite Ebene setzen kann, muss nicht alles sinnvoll sein. Wenn man sich an der Grosszügigkeit und vor Allem Luftigkeit der Räume nicht satt sehen kann, dann hat es halt "nur" diesen Sinn. Style und Besonderheit lässt auch den Wiederverkaufswert in die Höhe treiben

Auch im Wohnbereich wird die Ecke schick aussehen! Das sind nämlich die Möglichkeiten und Pluspunkte eines Daches mit geringer Neigung, dass man nach oben etwas besonderes vorweisen kann - und nicht eine plumpe Decke, die ja jeder als normal kennt und die man nicht mehr sieht.
wohnzimmer